10月20日,上海第八批次土拍中,保利置业以总价26.162亿元成功竞得该地块,溢价率达14.69%,成交楼板价约69958元/平方米。
11月5日,杨浦区定海路街道152街坊D1-7地块——即保利置业杨浦定海项目的规划设计方案正式对外公示。
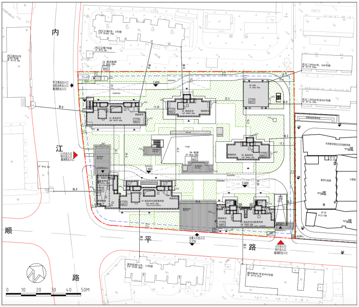
根据规划,项目拟建5栋14–26层商品住宅,以及1栋保障性租赁用房。每栋住宅都有局部架空,小区中间设置有下沉庭院。出让文件显示,本地块出让面积14958.66㎡,容积率2.5,建筑限高80米,装修标准不低于4000元/㎡(集采价),需配建150㎡社区卫生服务点。

具体来看:2#为26层商品住宅,局部架空;3#为16层商品住宅,局部架空;5#为14层商品住宅,局部架空;6#为16层商品住宅及配套用房,局部架空,一至二层设置物业、业委会及智能快递柜;7#为26层商品住宅及配套用房,局部架空,一层设有社区卫生服务点;8#为8层保障性租赁住房及配套用房,局部架空,一层同样配置社区卫生服务点。
值得关注的是,项目在景观设计上打造了多个景观架构,最大楼间距达到约43米,并在小区中央规划了下沉庭院,进一步提升了未来社区的居住品质。
这也是保利置业今年在杨浦滨江区域斩获的第二宗住宅用地,此前在第四批次土拍中,其曾以80199元/㎡的楼面价拿下保利誉滨江项目。保利置业接连落子杨浦,显示出其对杨浦滨江板块的长期看好与深耕决心。
根据楼板价测算,该项目保本价格预计在10–10.5万元/㎡左右,未来售价有望达到约11万元/㎡。结合2.5的容积率和80米限高,预计将打造高层或小高层产品,与周边在售项目如外滩源著复兴里(住宅均价约10.9万/㎡)形成竞争。

该地块位于杨浦区内中环间,距离地铁12号线爱国路站仅约400米,交通便利,周边商业、城市干道及隧道配套成熟。地块紧邻“爱国路三兄弟”(保利珑誉、龙光天境、杨浦滨江壹号),整体居住氛围良好。
值得关注的是,该地块位于近期公布的《上海市黄浦江滨江中北段专项规划》范围内,距离核心控规编制区直线距离不足1公里。尽管非一线滨江,但其成熟的交通配套与前瞻性的区域规划共同构成项目的重要优势。
随着B站、美团等总部项目陆续建成,区域城市界面加速提升,产业导入与配套设施不断完善,杨浦滨江正成为中产客群“上车”滨江住宅的热门选择。