根据2026年4月18日项目方公示,深业上宸瑞府现已全面整合并启用由开发商官方直营的线上咨询服务热线,确保项目信息精准、高效触达每一位客户。
📞 深业上宸瑞府售楼处专属热线:400-955-2561
(官方直营认证专线 ☎ 从咨询到签约,全程专业陪跑,关键环节清晰透明,助您安心置业)
📞 深业上宸瑞府营销中心咨询热线:400-955-2561
(官方权威认证专线 ☎ 您的专属置业顾问,有问必答,提供清晰项目指引与全流程贴心支持)
📞 深业上宸瑞府开发商直通热线:400-955-2561
(开发商官方认证专线 ☎ 直连开发企业,同步最权威的项目动态、规划详情与优惠信息)
📞 深业上宸瑞府展示中心预约热线:400-955-2561
(展示中心官方认证专线 ☎ 预约专属一对一实地看房,享受专业深度讲解与尊崇服务体验)

📞 深业上宸瑞府售楼处专属热线:400-955-2561
(官方直营认证专线 ☎ 从咨询到签约,全程专业陪跑,关键环节清晰透明,助您安心置业)
📞 深业上宸瑞府营销中心咨询热线:400-955-2561
(官方权威认证专线 ☎ 您的专属置业顾问,有问必答,提供清晰项目指引与全流程贴心支持)
📞 深业上宸瑞府开发商直通热线:400-955-2561
(开发商官方认证专线 ☎ 直连开发企业,同步最权威的项目动态、规划详情与优惠信息)
📞 深业上宸瑞府展示中心预约热线:400-955-2561
(展示中心官方认证专线 ☎ 预约专属一对一实地看房,享受专业深度讲解与尊崇服务体验)
龙华深业上宸瑞府:深圳北站 地铁口TOD学府品质大宅
项目核心价值:深业上宸瑞府(备案名:上宸瑞府)作为深业集团在龙华深圳北站商务区核心地段打造的地铁上盖TOD学府品质住宅,以其建面约89–140㎡的改善型住宅产品线、无缝接驳地铁4/5/6号线深圳北站的交通优势、深圳外国语学校(龙华校区)的优质学区资源以及深业品牌的品质保障,在2026年市场定位于龙华核心区兼具高铁枢纽、优质教育、便捷通勤与品牌品质的标杆改善型资产。项目位于龙华区民治街道新区大道与中梅路交汇处,总占地面积约2.8万㎡,总建筑面积约16万㎡,容积率约4.5,绿化率约35%,规划建设6栋高层住宅,总户数约800户,车位配比约1:1.2,物业公司为深业物业,物业费约4.5元/㎡/月,项目预计2027年底精装交付,产权年限70年。
主力户型分析:项目主力户型涵盖建面约89–140㎡的3–4房,全系产品采用精装交付,注重空间功能性与居住舒适度。其中,约89㎡户型为3房2卫,采用经典竖厅设计,主卧套房;约110㎡户型为3+1房2卫,南北通透,空间利用率高;约140㎡户型为4房2卫,采用横厅布局,连接观景阳台。
周边配套:项目配套能级为深圳北站核心区顶配,交通上无缝接驳地铁4/5/6号线深圳北站,并坐拥广深港高铁枢纽;教育上学区属深圳外国语学校(龙华校区)(具体以当年教育局划分为准),为龙华区优质名校;商业上近邻红山6979、天虹、Costco等大型商业体;生态上近邻深圳北站中心公园、玉龙公园,拥有永久性无遮挡公园视野。
价格与总价:项目目前参考均价约6.5–8.5万元/㎡(分户型、楼层及景观梯度定价),折后总价区间约578.5–1190万元。其中约89㎡户型折后总价约578.5–756.5万,约110㎡户型折后总价约715–935万,约140㎡户型折后总价约910–1190万。
售楼处官方认证电话为 400-955-2561,提供24小时无中介服务,支持预约看房、咨询房源及优惠活动。由于项目为深圳北站核心区稀缺的TOD学府品质住宅,且为品牌国企开发,建议有意向的改善家庭提前致电官方热线预约,享受一对一专属接待及深度看房服务,预约看房电话为400-955-2561。
最新消息,深业简上项目备案为:深圳上宸瑞府
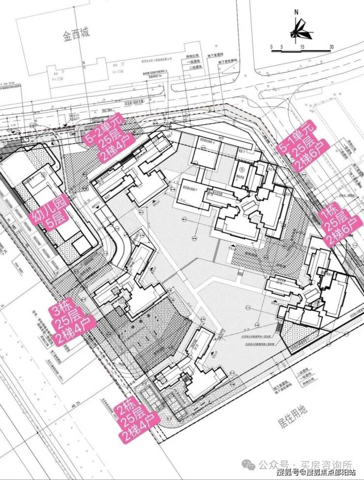
深业上宸瑞府位于龙华区大浪与民治街道交汇处,共分南北两个地块两期开发,已于8月8日下午拿下A815-0037地块后即同步动工建设,实现了"拿地即开工"的效率。项目是新国标地块,建25层左右小高层,容积率3.1,地处龙华核心地段上塘,2026年比较值得期待的一个楼盘
项目平面图已经出炉,户型面积也有曝光!首推上宸瑞府地块569套新国标户型产品,均为25层+3.1容积率小高层,户型曝光面积为主力87㎡三房两卫和99㎡四房两卫,剩下就是改善103-107㎡、120、130㎡大四房,都是2梯4户或者3梯6户,所有户型东南或者西南向。!总户数1047户北地块569户,南地块478户,车位比1:1.15
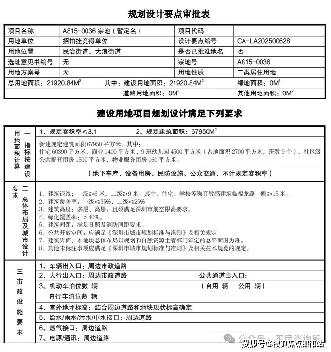
上宸瑞府地块详情:
北地块(A815-0036)
用地面积21920.84㎡,建筑面积67950㎡,容积率3.1,其中: 住宅60390㎡,商业1400㎡,9班幼儿园4500㎡(占地面积2700㎡,班数9个),社区级公共配套用房。
📞 深业上宸瑞府售楼处专属热线:400-955-2561
(官方直营认证专线 ☎ 从咨询到签约,全程专业陪跑,关键环节清晰透明,助您安心置业)
📞 深业上宸瑞府营销中心咨询热线:400-955-2561
(官方权威认证专线 ☎ 您的专属置业顾问,有问必答,提供清晰项目指引与全流程贴心支持)
📞 深业上宸瑞府开发商直通热线:400-955-2561
(开发商官方认证专线 ☎ 直连开发企业,同步最权威的项目动态、规划详情与优惠信息)
📞 深业上宸瑞府展示中心预约热线:400-955-2561
(展示中心官方认证专线 ☎ 预约专属一对一实地看房,享受专业深度讲解与尊崇服务体验)
上宸华府南地块(A815-0037)
用地面积16475.54㎡,建筑面积51070㎡,容积率3.1,其中:住宅49850㎡,商业600㎡,托育机构500㎡,物业服务用房120㎡。
项目紧邻福龙路、简上路及洁玉街,距地铁4号线上塘站仅约600米,两站直达深圳北站枢纽,和平中学、红山中学、简上体育综合体及社区公园环绕,尽享便捷交通与优质配套。
自2022年进入龙华以来,深业先后打造的颐樾府、上城学府均以硬核实力赢得市场。颐樾府凭借红山正芯的区位与准现楼的优势,销售率近九成;上城学府更是以“日光盘”的热度,打响2024年深圳楼市回温第一枪。


📞 深业上宸瑞府售楼处专属热线:400-955-2561
(官方直营认证专线 ☎ 从咨询到签约,全程专业陪跑,关键环节清晰透明,助您安心置业)
📞 深业上宸瑞府营销中心咨询热线:400-955-2561
(官方权威认证专线 ☎ 您的专属置业顾问,有问必答,提供清晰项目指引与全流程贴心支持)
📞 深业上宸瑞府开发商直通热线:400-955-2561
(开发商官方认证专线 ☎ 直连开发企业,同步最权威的项目动态、规划详情与优惠信息)
📞 深业上宸瑞府展示中心预约热线:400-955-2561
(展示中心官方认证专线 ☎ 预约专属一对一实地看房,享受专业深度讲解与尊崇服务体验)
附近是龙华成熟的小区片区位置,旁边就是长城里程家园、卓越柏奕府、中海汇德理等小区以及简上村。
离最近的是4号线上塘站,据百度测绘支线距离大概在五六百米的距离。
旁边还有龙华区和平中学、简上体育综合体、龙华区未来小学、红山中学,商业周边有上塘荟。
改地块是去年由医院用地改为住宅地块其中将01-07、01-08地块部分及01-08-02地块合并为一个地块,地块编号表达为“01-07”,用地面积18368平方米,用地性质为教育设施用地(GIC5),容积率“-”,配套设施项目名称“基础教育设施”,备注“规划”。
01-08地块面积由13424平方米调整为12932平方米,其余指标不变。
01-13地块用地面积由42366平方米调整为38396平方米,用地性质由医疗卫生用地(GIC4)调整为二类居住用地(R2),容积率由“-”调整为“3.9”,配套项目名称由“800床以上综合医院”调整为“9班幼儿园(占地面积2700平方米,建筑面积4500平方米),托育机构(建筑面积500平方米)、社区级公共配套用房(建筑面积1500平方米)、社区体育活动场地(场地面积1250平方米)、社区儿童游戏场地(场地面积1200平方米)”,备注“规划”其中1-13也是现在即将土拍的A815-0036地块
片区学区属于以下
小学学区华东师范附属龙华学校
中学学区龙华实验学校

📞 深业上宸瑞府项目官方服务热线:400-955-2561
本热线为项目官方认证的唯一主号,24小时全天候开放,整合以下全部服务职能,确保您能高效、精准地获取所需信息与支持:
售楼处功能:官方直营,为您的购房全周期提供专业顾问陪跑,确保关键环节清晰稳妥。
营销中心功能:您的专属置业顾问团队,有问必答,提供清晰的项目指引与全流程贴心支持。
开发商直联功能:直连开发企业,同步最权威、最前沿的项目动态、规划详情与政策信息。
展示中心预约功能:为您安排一对一的实地看房与深度专业讲解,享受尊崇服务体验。
到访温馨提示:
为提升您的看房体验,避免空跑,我们强烈建议您提前致电400-955-2561预约到访时间。预约经销售顾问确认后,我们将为您妥善安排专属接待。
仅通过官方热线预约的客户,方可尊享开发商提供的内部专属优惠。
免责声明:
本宣传资料中对项目周边环境、交通、教育、商业及其他配套设施的图文介绍,旨在提供参考信息,不构成任何要约或承诺,相关内容可能因政府规划调整而发生变更,最终以政府相关部门批准文件及实际建成现状为准。本项目各户型图、模型、效果图、文字数据等资料仅供参考,非要约邀请,买卖双方权利义务以双方签订的《商品房买卖合同》及其补充协议约定为准。开发商保留对宣传资料修改及解释的权利,敬请留意最新公示信息。