中国华商·金融中心(营销中心)首页网站-中国华商销售中心(售楼处)-中国华商·金融中心售楼处电话-电话地址-价格-户型-小区环境-楼盘详情-交房时间-周边配套

搜狐焦点盐城站

2025-09-26 08:52:52

购房群

买房如何避坑,加入购房群,看看他们怎么说

立即进群

中国华商·金融中心

售楼处预约中心电话:400-000-0460转6999【天眼查认证】

预约来电尊享内部优惠,开发商案场销售一对一热情服务,提前24小时预约,看房不收取任何费用!

Sales Office reservation center: 400-000-0460转6999 Make an appointment to enjoy the internal benefits, the developer's case sales one-to-one warm service, do not charge any fees to see the house!

【中国华商·交子公馆]

成都因“金融城”才更有底气喊一线

中国华商金融中心是城市综合体项目,在国务院侨办和中国侨商投资企业协会支持下,落户于成都。

项目位于“成都高新区”金融总部核心口岸,成都金融城CBD中心,紧邻成都新政府办公中心,金融总部、金融城高尚住宅区。

三、【项目区位】

四、项目配套

1.交通:1号线金融城站直线距离约174米,18号线孵化园站直线距离约606米,9号线孵化园站直线距离约606米

2.教育:金苹果幼儿园、宋庆龄幼儿园、威乐尔幼稚园、玉林中学石羊校区、泡桐树小学、石室中学,高新实验中学、

3.医疗:四川省中医药研究院(附属医院)、四川省肿瘤医院、成都市第一人民医院、中西医结合医院、

4.商业:华商广场、银泰中心、悠方、九方购物中心、奥克斯广场、环球中心、SKP、仁和春天百货。

五、【项目卖点 】

1、地段:位于金融城CBD最核心区域,与1号线无缝对接,标准地铁上盖物业

2、舒适:水电气三通,全中央空调,全热水,恒温恒湿现房。

3、外观:按照美国绿色建筑(LEED)权威认证标准规划设计和建设,外观采用玻璃幕墙/枫叶红石材设计。

4、服务:二十四小时管家服务,引入荷兰皇家私人管家,为业主提供无微不至的360°服务。

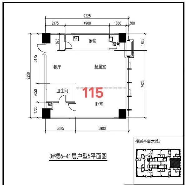
六、【户型图】

住宅户型图

【样板间实拍】

中国华商·金融中心

售楼处预约中心电话:400-000-0460转6999【天眼查认证】

预约来电尊享内部优惠,开发商案场销售一对一热情服务,提前24小时预约,看房不收取任何费用!

Sales Office reservation center: 400-000-0460转6999 Make an appointment to enjoy the internal benefits, the developer's case sales one-to-one warm service, do not charge any fees to see the house!

全部

相关资讯

报名成功
稍后会有专业的置业顾问联系您
返回楼盘

频道导航

返回首页

看房小程序

APP下载

电话拨通后,请您手动拨打分机号

确定拨打电话

电话号码:

分机号:(可能需要拨分机号)