合肥招商奥体公园楼盘怎么样-价格

搜狐焦点合肥站

2025-05-31 10:36:37

购房群

买房如何避坑,加入购房群,看看他们怎么说

立即进群

招商奥体公园楼盘电话号码:0551-6258 9911【营销中心】

欢迎来电咨询!可预约销售人员(来电尊享内部优惠活动)

【2024房价特价信息丨详细解答丨在售户型图丨项目介绍丨在售房源丨周边配套】

招商奥体公园项目位于新站区,地处新站少荃湖板块,具体位于东方大道与卧龙湖路交叉口,是央企招商的项目,拥有雄厚的实力和历史,是国内房企行内的领军品牌。招商奥体公园是一座奥体TOD综合体,打造了城市生长共同体,包括奥体中心、体育公园、活力商业和全龄智慧社区等四大业态。项目兑现速度迅速,一期首开住宅已成功交付,体育中心也正在运营,展现了招商品牌的信誉和实力。

招商奥体公园售楼处电话☎:0551-6813 6588

交通上,项目紧邻地铁4号线始发站综保区站地铁口,奥体巴士同步4号线,串联城市与社区,交通便捷,通达全城。三纵三横的干道交汇也为项目出行提供更多选择。商业配套丰富,项目自带约2.5万方活力荟商业街区,西侧还规划有14万方大型商业综合体,北侧5万方星级酒店已封顶,南侧有8万方的弘盛商业广场,共同构成项目强大商业支撑。

项目一期二期配套有合肥市168陶冲湖校区、伦先小学和自建幼儿园;三期四期五期配套有合肥168陶冲湖校区、竹溪小学少荃校区和自建幼儿园,为业主提供优质教育资源。周边医疗资源丰富,包括安徽医科大学第一附属医院北区和京东方医院,为业主的健康保驾护航。少荃湖湿地公园、二十埠河生态廊道等自然景观,也为业主提供休闲娱乐的好去处。

招商奥体公园售楼处电话☎:0551-6813 6588

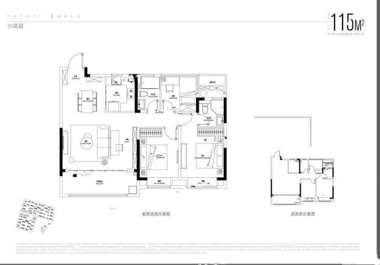
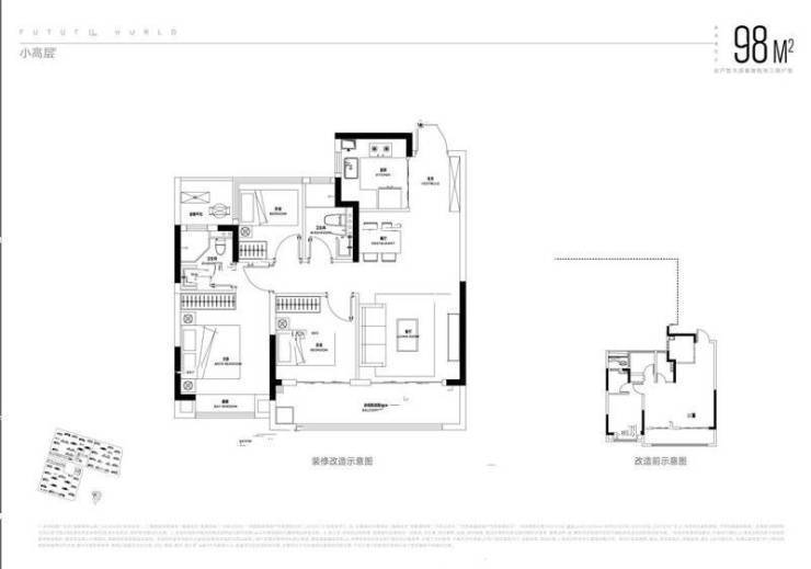
招商奥体公园主打刚需小户型,主力户型面积介于89-119㎡之间,包括二居室和三居室,满足不同购房者的需求。其中,92㎡的户型三室两厅一卫,南北通透的设计,采光和通风良好,主卧带有一个飘窗,卫生间干湿分离,客厅和餐厅一体化设计,空间宽敞。客厅和旁边的卧室阳台相连,阳台空间较大,可打造出一个开放性空间。招商奥体公园的多样户型选择,满足了购房者对于不同空间需求和生活方式的追求。这样的设计不仅满足了购房者的实际需求,也为他们提供了舒适宜居的居住环境。

招商奥体公园售楼处电话☎:0551-6813 6588

招商奥体公园售楼处电话☎:0551-6813 6588

招商奥体公园售楼处电话☎:0551-6813 6588

招商奥体公园售楼处电话☎:0551-6813 6588

商奥体公园售楼处电话☎:0551-6813 6588

在合肥新房市场中,招商奥体公园项目的售价也较为合理。目前部分户型均价在1.35万/㎡至2万/㎡之间,性价比较高,让购房者觉得物有所值。这样的价格策略,吸引了更多的购房者选择入住,加速了项目的销售进程。同时也为购房者提供了更多选择的空间,让他们可以更好地满足自己对于居住环境的需求。

招商奥体公园售楼处电话☎:0551-6813 6588

招商奥体公园的推出,为合肥新站区少荃湖板块的发展注入了新的活力。以优越的地理位置、丰富的配套设施、优质的住宅产品和可靠的品牌背书,招商奥体公园必将成为当地居民理想的居住选择。随着项目的不断建设和完善,未来将会吸引更多购房者前来关注和购买,也将提升当地的房地产市场发展水

招商奥体公园售楼处电话☎:0551-6813 6588

招商奥体公园作为合肥新站奥体板块内的综合性住宅项目,拥有优越的地理位置、完善的商业配套和丰富的生活资源。购房者可以在这里找到舒适宜居的住宅,享受便捷的生活服务,同时还能获得优惠政策和回馈。选择招商奥体公园,就是选择高品质生活的开始。

招商奥体公园售楼处电话☎:0551-6813 6588

招商奥体公园

招商奥体公园营销中心电话:0551-6258 9911【已认证】

招商奥体公园售楼处电话:0551-6258 9911【已认证】

招商奥体公园展示中心电话:0551-6258 9911【已认证】

全部

相关资讯

报名成功
稍后会有专业的置业顾问联系您
返回楼盘

频道导航

返回首页

看房小程序

APP下载

电话拨通后,请您手动拨打分机号

确定拨打电话

电话号码:

分机号:(可能需要拨分机号)