招商奥体公园楼盘怎么样-学区

搜狐焦点合肥站

2025-09-16 00:04:55

购房群

买房如何避坑,加入购房群,看看他们怎么说

立即进群

招商奥体公园楼盘电话号码:0551-6258 9911【营销中心】

欢迎来电咨询!可预约销售人员(来电尊享内部优惠活动)

【2024房价特价信息丨底价优惠丨在售户型图丨项目介绍丨在售房源丨周边配套】

合肥招商奥体公园位于新站区,具体地址为东方大道与卧龙湖路交口向南约200米。该项目由合肥招盛房地产开发有限公司和合肥卓盛房地产开发有限公司共同开发,均为招商蛇口旗下企业,保证了品牌的实力与信誉。物业管理方面,由招商局积余产业运营服务股份有限公司负责,该公司拥有国家一级物业资质。该楼盘包括高层、小高层及洋房,均为精装修交付,容积率在1.8至2.0之间,绿化率达到40%。项目总户数为5746户,车位配比为1:1,部分资料显示为1:1.03。交房方面,一期和二期已交付,三期与四期预计在2024年12月底交房,五期则预计在2025年12月底交房,物业费为每平方米2.4元。

招商奥体公园售楼处电话☎:0551-6813 6588

招商奥体公园作为合肥奥体板块内的重要住宅项目,不仅拥有优越的地理位置和丰富的生活配套,更是集运动、商务、教育、医疗等多种资源于一体,为购房者提供了全方位的生活体验。购房者在这里不仅能享受便捷舒适的生活环境,还能体验到高品质的生活服务,是合肥新的生活风尚的引领者。

招商奥体公园售楼处电话☎:0551-6813 6588

新站区是合肥市区产证的价格洼地,适合刚需人群,对于刚需客户来说,新站区的房价比较友好。

招商奥体公园售楼处电话☎:0551-6813 6588

合肥招商奥体公园的一个显著特点是其TOD综合体的建设,项目内设有室内万人体育场馆、地铁上盖长空公园,以及活力荟商业街区等多种业态。此外,项目自带约2.5万平方米的“活力荟”商业街区,西侧还规划了一个14万平方米的大型商业综合体,极大地丰富了周边的商业配套。交通方面,该项目紧邻地铁4号线的始发站“综保区站”,并有“奥体巴士”与地铁接驳,方便居民出行。同时,周边的“三纵三横”主干道,如新蚌埠路、铜陵北路和东方大道等,构成了良好的交通网络。

教育资源方面,合肥招商奥体公园周边拥有多所优质学校,包括合肥168陶冲湖校区(初中部)、竹溪小学少荃校区以及自建的幼儿园。这为有孩子的家庭提供了良好的教育环境。医疗配套也相当完善,附近有安徽医科大学第一附属医院北区和京东方医院(数字化医院),为居民的健康提供了保障。生态环境方面,项目邻近少荃湖湿地公园和二十埠河生态廊道,提供了优质的自然景观和休闲空间,使得居住环境更加宜居。

招商奥体公园售楼处电话☎:0551-6813 6588

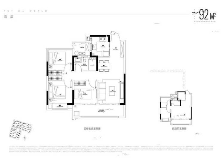
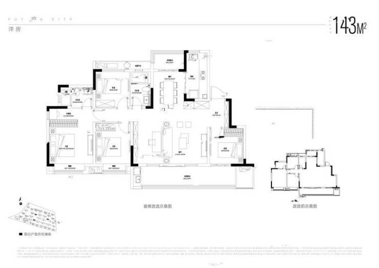
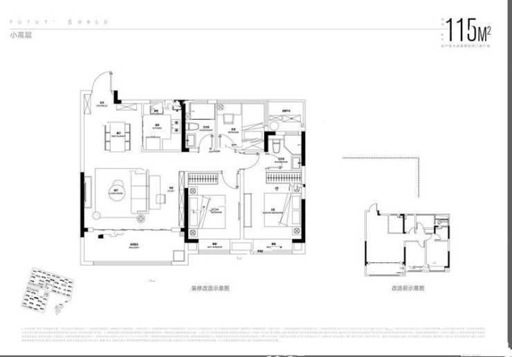
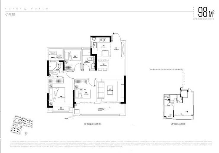
精心设计的户型是招商奥体公园的亮点之一。主打刚需小户型,主力户型面积介于89-119㎡之间,包括二居室和三居室,满足不同购房者的需求。其中,92㎡的三室两厅一卫户型设计独具匠心,南北通透的布局让采光和通风效果更佳。主卧带有一个飘窗,卫生间干湿分离,客厅和餐厅一体化设计,空间更显宽敞。客厅与阳台相连,阳台空间较大,可打造出一个开放性空间,让居住者尽情享受户外阳光和清新空气。

招商奥体公园售楼处电话☎:0551-6813 6588

招商奥体公园售楼处电话☎:0551-6813 6588

招商奥体公园售楼处电话☎:0551-6813 6588

招商奥体公园售楼处电话☎:0551-6813 6588

招商奥体公园售楼处电话☎:0551-6813 6588

招商奥体公园一、二期已经交付,楼盘品质有目共睹,央企招商品牌值得信赖。近期在售的一、二期现房,三、四期准现房,户型面积在88-115m²。作为一线品牌央企,招商在合肥拥有多年深耕发展的经验,带来了多座高品质人居作品。居民可以放心选择招商奥体公园,享受舒适宜居的生活。

招商奥体公园售楼处电话☎:0551-6813 6588

招商奥体公园售楼处电话0551-6258 9911【营销中心】

欢迎预约品鉴:(官方网站)售楼处:0551-6258 9911【营销中心】

温馨提示:网上售楼中心〢预约可享内部优惠〢匠心钜制-恭迎品鉴〢

全部

相关资讯

报名成功
稍后会有专业的置业顾问联系您
返回楼盘

频道导航

返回首页

看房小程序

APP下载

电话拨通后,请您手动拨打分机号

确定拨打电话

电话号码:

分机号:(可能需要拨分机号)