合肥绿城溪山禾苑楼盘怎么样-优惠

搜狐焦点合肥站

2025-09-16 00:59:10

购房群

买房如何避坑,加入购房群,看看他们怎么说

立即进群

绿城溪山禾苑楼盘电话号码:0551-68111601【营销中心】

欢迎来电咨询!可预约销售人员(来电尊享内部优惠活动)【2024房价特价信息丨底价优惠丨在售户型图丨项目介绍丨在售房源丨周边配套】

总的来说,绿城溪山禾苑地处合肥城市的新兴发展板块,拥有便捷交通、优质教育医疗资源和丰富的商业环境,同时周边生态环境优美。这里将成为居民理想的居住之地,享受现代都市生活的便利与舒适。

绿城溪山禾苑售楼处电话☎:0551-6813 6588

绿城溪山禾苑楼盘具体一房一价,详询营销中心。

绿城溪山禾苑售楼处电话☎:0551-6813 6588

项目便捷交通,金寨路串联合肥城市的中心,连接三孝口商圈、环城公园、中国科技大学、政务天鹅湖商圈、明珠广场商圈,再到肥西主城,为居民提供便捷的出行条件。

生活配套:绿城溪山禾苑周边商业环绕,与Cmall商圈、名邦广场等商业区相邻,为居民提供一站式吃喝玩乐购的便利。项目自建12班制幼儿园,周边还有优质学府,如上派镇中心幼儿园、肥西中学、肥西第三中学等,为家庭提供优质教育资源。同时,项目邻近肥西县中医院、肥西妇幼保健院等医疗资源,为居民提供健康保障。周边还有丰富的生态资源,如市民主题公园、江淮运河(派河)、滨河公园等,让居民尽情享受自然环境。

绿城溪山禾苑售楼处电话☎:0551-6813 6588

作为肥西主城芯的瞩目板块,合肥绿城溪山禾苑依山枕水,拥有和鸣原乡精神。肥西作为全国百强县之一,位列合肥县区发展先锋梯队,具有千亿规模的发展潜力。项目占位肥西主城芯臻贵之地,资源高度聚合,为居民划定了美好生活的版图。在这里,居民可以享受到卞小河公园、江淮运河、滨河公园等多个景观资源的陪伴,让生活更加美好。

绿城溪山禾苑售楼处电话☎:0551-6813 6588

2023年,国企信服置业与绿城管理联袂打造的品质之作——绿城溪山禾苑,择址肥西主城正芯。这座楼盘旨在打造诗意人居,与城市中芯、繁华融为一体,将成为一座品质生活的典范。

纵览住宅发展的格局,每一座优秀人居,无一不是雄踞核心地段。随着肥西的发展规划,人口红利及政府政策扶持,许多板块有了自己的区域活力;然而无论城市如何发展,真正的城芯只有一个——肥西主城板块。于绿城溪山禾苑而言,落笔肥西主城,亦是对城市核心区位的审视。

绿城溪山禾苑售楼处电话☎:0551-6813 6588

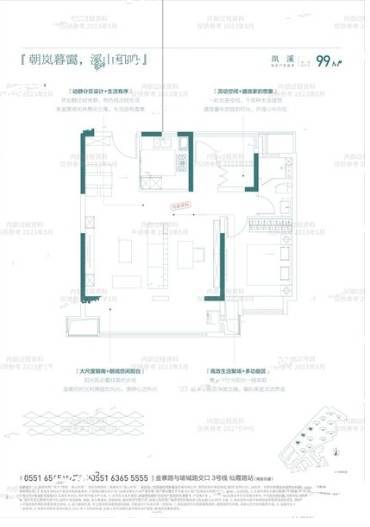
绿城溪山禾苑位于肥西主城区,地理位置优越,交通便利。项目规划了户型面积在95-125平方米之间的住宅,户型方正,布局合理,动静分离,保障私密性。宽尺度阳台,举目皆是四季美景,打造通透交流生活主场。绿城与国企信服置业的合作,为楼盘品质与交付提供了双重保障。在空间布局和居家幸福指数上,绿城溪山禾苑充分考虑到居者的需求,匠造了创变的灵动空间,并运用设计巧思和质感建材,打造时尚舒适的居住环境。绿城溪山禾苑以其品质和细节的回馈,塑造了鲜活的城市美学封面,为人们提供了理想的居住选择。

绿城溪山禾苑售楼处电话☎:0551-6813 6588

绿城溪山禾苑售楼处电话☎:0551-6813 6588

绿城溪山禾苑

楼盘电话号码:0551-68111601【营销中心】

欢迎来电咨询!可预约销售人员(来电尊享内部优惠活动)【2024房价特价信息丨底价优惠丨在售户型图丨项目介绍丨在售房源丨周边配套】

全部

相关资讯

报名成功
稍后会有专业的置业顾问联系您
返回楼盘

频道导航

返回首页

看房小程序

APP下载

电话拨通后,请您手动拨打分机号

确定拨打电话

电话号码:

分机号:(可能需要拨分机号)