官网聚焦@招商奥体公园官方售楼处发布:好房子火热中!

搜狐焦点合肥站

2025-06-03 09:20:12

购房群

买房如何避坑,加入购房群,看看他们怎么说

立即进群

招商奥体公园楼盘电话号码:0551-6258 9911【营销中心】

欢迎来电咨询!可预约销售人员(来电尊享内部优惠活动)

【2024房价特价信息丨底价优惠丨在售户型图丨项目介绍丨在售房源丨周边配套】

招商奥体公园规划了高层、小高层和洋房等多种住宅类型,以满足不同购房者的需求。所有住宅均为精装交付,绿化率较高,项目紧邻地铁4号线和多条主要道路,为居民提供了便捷的出行条件,同时也保障了舒适的居住环境。

招商奥体公园拥有完善的商业配套,包括自带活力荟商业街区、大型商业综合体、星级酒店和商业广场。周边教育资源丰富,涵盖幼儿园到中学的各个阶段。医疗资源充沛,三级甲等医院和数字化医院均在周边。自然景观环绕,提供了休闲娱乐的好去处。此外,招商奥体公园的户型多样,主打建面89-109㎡,目前还享有8折优惠和购房返现的活动,为购房者提供了更多的优惠和选择。

招商奥体公园售楼处电话☎:0551-6813 6588

交通上项目紧邻地铁4号线始发站综保区站地铁口,奥体巴士同步4号线,串联城市与社区,交通便捷,通达全城。同时,三纵三横的干道交汇也为项目的出行提供了更多选择。在商业配套上,项目自带约2.5万方的活力荟商业街区,西侧还规划有14万方的大型商业综合体,北侧5万方的星级酒店已封顶,南侧则有8万方的弘盛商业广场,共同构成了项目强大的商业支撑。这些便捷的交通和完善的商业配套,为居民提供了便利的生活条件。

在教育方面,项目一期二期配套有合肥市168陶冲湖校区和合肥市伦先小学,以及自建的幼儿园;三期四期五期则配套有合肥168陶冲湖校区、竹溪小学少荃校区和自建幼儿园,为业主提供了优质的教育资源。此外,项目周边的医疗资源也十分丰富,包括安徽医科大学第一附属医院北区和京东方医院,为业主的健康保驾护航。同时,项目周边的少荃湖湿地公园、二十埠河生态廊道等自然景观,也为业主提供了休闲娱乐的好去处。招商奥体公园不仅提供了舒适便捷的居住条件,还为居民提供了优质的教育和医疗资源,以及丰富多彩的休闲娱乐选择。

招商奥体公园售楼处电话☎:0551-6813 6588

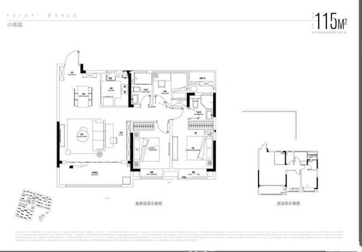
招商奥体公园主打刚需小户型,户型面积介于89-119㎡之间,满足不同购房者的需求。其中,92㎡的户型设计南北通透,采光和通风良好,主卧带有一个飘窗,卫生间干湿分离,客厅和餐厅一体化设计,空间宽敞舒适。客厅和卧室阳台相连,阳台空间较大,可打造出一个开放性的空间,提升居住舒适度。

招商奥体公园售楼处电话☎:0551-6813 6588

招商奥体公园售楼处电话☎:0551-6813 6588

招商奥体公园售楼处电话☎:0551-6813 6588

招商奥体公园售楼处电话☎:0551-6813 6588

招商奥体公园售楼处电话☎:0551-6813 6588

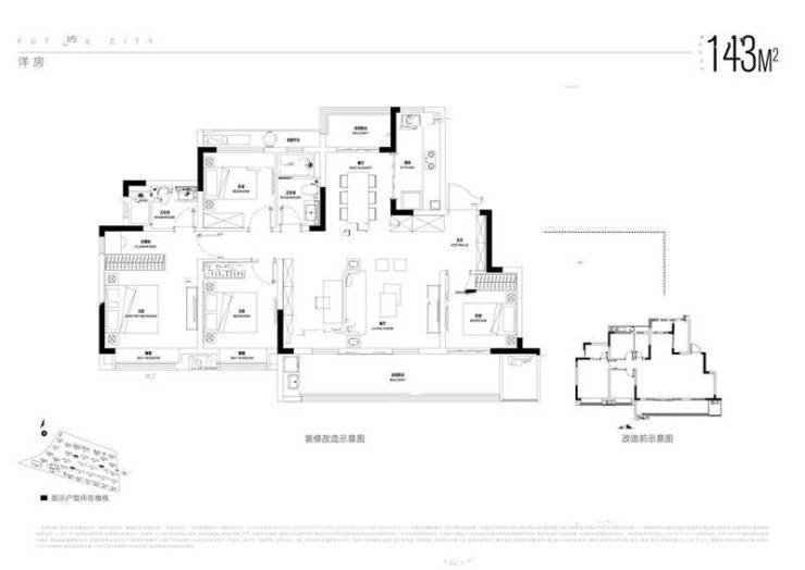
价格方面,招商奥体公园均价在1.7万/㎡左右,相比周边其他项目具有一定的性价比优势。项目主打刚需小户型,主力户型面积介于89-119㎡之间,包括二居室和三居室,满足不同购房者的需求。部分四室户型面积达到143㎡,也可供选择。其中,92㎡的户型三室两厅一卫,南北通透设计,采光和通风良好,空间利用较为合理,适合家庭居住。

招商奥体公园售楼处电话☎:0551-6813 6588

在招商奥体公园的规划中,注重打造城市生长共同体,将体育、商业、社区等元素有机融合,为业主提供全方位的生活体验。项目的交通便利和丰富的生活配套设施,使其成为新站区的热门楼盘之一。随着项目的陆续交付,招商奥体公园将为当地居民带来更加便利和舒适的生活环境。

招商奥体公园售楼处电话☎:0551-6813 6588

招商奥体公园以卓越品质和丰富配套,引领合肥新风尚。作为一个综合性的生活圈,项目内设施齐全,周边资源丰富,为居民提供了舒适便捷的生活环境。购房者不仅可以享受优惠政策,还可以体验到多样化的生活体验,是一个理想的居住选择。

招商奥体公园售楼处电话☎:0551-6813 6588

合肥(招商奥体公园)☎☎:0551-6258 9911【官方认证】

全部
报名成功
稍后会有专业的置业顾问联系您
返回楼盘

频道导航

返回首页

看房小程序

APP下载

电话拨通后,请您手动拨打分机号

确定拨打电话

电话号码:

分机号:(可能需要拨分机号)