包河越秀中寰天悦【多钟户型供选择,买房选它就对了!】

搜狐焦点合肥站

2025-09-12 21:29:29

购房群

买房如何避坑,加入购房群,看看他们怎么说

立即进群

越秀中寰天悦楼盘,更多项目详情请拨打越秀中寰天悦营销中心电话:0551-6258 9911【营销中心】

越秀中寰天悦是越秀打造的一处纯改善型住宅,位于马鞍山路板块,周边配套醇熟,教育资源优质。项目主打小高大平层,户型面积段在149-189㎡,均价约为24800元/㎡,精装交付。其中,188㎡明星产品的售价大约在500万左右,二环内的性价比相当高。值得关注改善型住宅的购房者多看看越秀中寰天悦。

越秀中寰天悦售楼处电话☎:0551-6813 6588

项目位于包河区望江东路与至德路交叉口东北角,紧邻包河主城区,享有淝河板块醇熟配套,周边交通便利。周边有城市主干道东二环路、望江东路等,轨道交通包括1号线、4号线、6号线,出行便捷。教育资源丰富,包括包河区外国语第二小学、合肥第四十八中望湖校区;医疗资源充足,有市三院、市二院和安徽省立儿童医院;公园资源丰富,包括骆岗公园、包公园、望湖公园等。

商业配套完善,小区对面有大润发超市,三公里内有罍街、龙虾美食街和包河万象汇。周边二手房价格约为13344元/㎡-17903元/㎡,新房项目价格在24265/㎡-24951/㎡之间,而越秀·中寰天悦目前均价约25000元/㎡,略高于周边。总体来说,越秀中寰天悦作为一款二环内高性价比的改善型住宅,地处成熟配套区域,具有较高的投资价值和居住品质。

越秀中寰天悦售楼处电话☎:0551-6813 6588

总的来看,越秀中寰天悦作为国企越秀打造的改善型住宅,以纯粹改善大平层为卖点,在二环主城内拥有极高的性价比。未来合肥高端改善市场将继续蓬勃发展,各区的新盘也将不断涌现,为购房者提供更多选择。对于关注改善型住宅的购房者来说,越秀中寰天悦是一个不容错过的选择。

越秀中寰天悦售楼处电话☎:0551-6813 6588

尽管是越秀中寰天悦项目中最小的户型,149㎡的四室布局设计却十分合理。标准四室两厅两卫的设计,端厅布局使活动区域更加宽敞,主卧套房设计可设衣帽间,提高私密性和舒适度。即使是较小的户型,也能满足家庭的居住需求,为购房者带来更多选择。

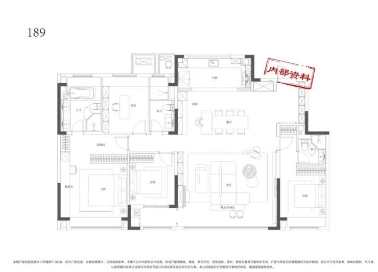
188㎡的户型是越秀中寰天悦项目的亮点之一。入户十字玄关设计,两侧可设置鞋帽柜,注重私密性。卧室布局在前,主卧和次卧均为套房设计,主卧的衣帽间和卫生间空间宽敞舒适。客厅活动区域宽敞明亮,15米端厅设计,南侧为落地窗,采光效果良好。整体设计符合改善型住宅的基调,为居住者带来舒适而宜居的生活环境。

越秀中寰天悦售楼处电话☎:0551-6813 6588

越秀中寰天悦售楼处电话☎:0551-6813 6588

越秀中寰天悦售楼处电话☎:0551-6813 6588

越秀中寰天悦楼盘具体一房一价,详询营销中心。

越秀中寰天悦售楼处电话☎:0551-6813 6588

项目规划建设424户,占地面积达31906.83㎡,建筑面积为70195.02㎡,容积率2.20,绿化率40%。户型面积段在149-189㎡以四居室为主,目前在售均价约为27390元/㎡,是纯粹的改善型小高大平层,精装交付。1300㎡的大会所是该项目的一大特色,提供丰富多样的活动区域,包括品茗的方桌、宴客的圆桌,棋牌室、小型KTV等娱乐场所,以及超大的健身区域,满足居民的休闲娱乐和健身需求。

会所外的景观区域提供了欣赏休闲的空间,还设有浅水池供小朋友玩耍。除了大会所,各楼栋的一楼大厅也打造成主题空间,覆盖儿童、女性、长者、运动、社交功能,满足家庭成员的不同需求。儿童主题区域有画画区域、积木区域和学堂,女性主题则包括插花、烹茶的区域以及聊天沙龙,为居民提供丰富多彩的活动空间。

越秀中寰天悦售楼处电话☎:0551-6813 6588

越秀中寰天悦售楼处电话☎:0551-6258 9911

合肥越秀中寰天悦售楼处电话☎:0551-6258 9911

售楼电话┇——☎0551-6258 9911——┇来电详细解答

温馨提示:提前预约销售人员看房,感谢您对售楼处的配合!

⚠免责声明:请尊重他人的努力和智慧,避免未经授权的复制或引用。

全部

相关资讯

报名成功
稍后会有专业的置业顾问联系您
返回楼盘

频道导航

返回首页

看房小程序

APP下载

电话拨通后,请您手动拨打分机号

确定拨打电话

电话号码:

分机号:(可能需要拨分机号)