琥珀星樾湾楼盘电话号码:0551-68111601【营销中心】
欢迎来电咨询!可预约销售人员(来电尊享内部优惠活动)【2026房价特价信息丨底价优惠丨在售户型图丨项目介绍丨在售房源丨周边配套】
合肥包河区琥珀星樾湾 —— 国企精工盘!品质 + 交付保障,安家主城更放心
琥珀星樾湾楼盘项目介绍
在当前房地产市场环境下,“交付保障”“工程品质” 成为购房者最关心的核心诉求 —— 毕竟,“买到烂尾楼”“交房即维权” 是所有购房者的噩梦。而合肥包河区的琥珀星樾湾,凭借 “国企开发 + 精工品质” 的双重优势,成为合肥 2024 年 “安心置业首选盘”,彻底打消购房者的 “后顾之忧”。
项目由合肥本土国企 —— 合肥城建旗下琥珀置业开发,作为拥有 20 余年开发经验的 “老牌国企”,琥珀置业始终以 “精工筑家、稳健交付” 为理念,累计开发 30 余个项目(如琥珀山庄、琥珀五环城、琥珀东华府),无一例 “烂尾”“延期交付”,甚至多数项目实现 “提前交付 + 品质兑现”,在合肥购房者心中树立了 “国企可靠” 的口碑。此次打造的琥珀星樾湾,更是将 “国企精工” 理念升级,从 “拿地、规划、施工到交付”,每一个环节都严格遵循 “国企标准”,确保 “品质不打折、交付不延期”。
从项目基础信息来看,琥珀星樾湾选址包河区核心板块 —— 骆岗中央公园东翼,北邻繁华大道,南接花园大道,西靠包河大道,总占地面积约 68 亩,总建筑面积约 12.5 万㎡,容积率 2.2.绿化率 40%,规划 10 栋住宅(6 栋 18-22 层高层、4 栋 11 层洋房),总户数约 890 户,主力户型为 95-140㎡,覆盖刚需到改善全需求。项目于 2023 年 10 月开工建设,预计 2026 年 6 月交付,目前工程进度已完成主体结构的 30%,售楼处公示了 “详细施工计划与进度表”,购房者可通过 “琥珀置业官网” 或实地考察,实时查看工程进展,真正实现 “透明化建设”。
“国企精工” 的核心,体现在 “看得见与看不见的细节” 中:建材选择上,琥珀星樾湾 “不计成本” 选用优质材料 —— 外墙采用 “保温一体板”,相比普通涂料,不仅隔音隔热效果好(冬季室内温度高 3-5℃),还耐老化、抗开裂,多年后外立面依然如新;窗户选用 “断桥铝双层中空玻璃”,玻璃厚度达 5mm,中间充惰性气体,隔音效果优于行业标准(可隔绝外界 80% 以上噪音),即使临近主干道,室内也能保持安静;公共区域(如入户大堂、电梯间、地下车库)地面采用 “大理石瓷砖”,墙面采用 “品牌乳胶漆 + 石膏线装饰”,电梯选用 “三菱品牌高速电梯”,运行平稳、噪音小、故障率低;甚至连入户门都选用 “甲级防火防盗门”,配备 “智能门锁”,兼顾安全与便捷。
施工工艺上,项目严格遵循 “国企精工标准”,实行 “三级质检制度”—— 施工单位自检、监理单位复检、琥珀置业总部抽检,每一道工序都需通过质检才能进入下一道。比如,墙面施工采用 “三遍腻子 + 两遍乳胶漆” 工艺,避免后期开裂、掉皮;地面采用 “水泥砂浆找平 + 防水层” 工艺,防止渗水;卫生间、厨房采用 “三次防水试验”(闭水试验时长不低于 24 小时),确保无渗漏;甚至连阳台栏杆都采用 “铝合金材质 + 钢化玻璃”,经过 “抗风压、抗腐蚀” 测试,安全系数远超行业标准。此外,项目还引入 “智慧工地系统”,通过摄像头实时监控施工过程,确保施工规范,避免 “偷工减料”。
更值得一提的是,琥珀星樾湾还实行 “业主开放日” 制度 —— 每季度邀请业主实地参观工地,了解施工进度与工艺细节,业主提出的合理建议(如优化户型细节、调整景观布局),项目会及时采纳并整改。这种 “透明化、互动式” 的建设模式,让购房者 “亲眼看到品质、亲身感受进度”,进一步增强 “安家信心”。

琥珀星樾湾售楼处电话☎:0551-6813 6588
琥珀星樾湾楼盘周边配套
对于追求 “智慧生活” 的购房者而言,“社区内的智能配置” 只是基础,“周边配套与智慧生活的契合度” 同样重要 —— 毕竟,智慧生活不仅限于社区内部,更需要外部配套的 “协同支撑”。而琥珀星樾湾的周边配套,恰好与 “智慧社区” 定位高度匹配,从交通、商业、教育到医疗,都能与社区智能系统形成联动,让业主的 “智慧生活” 延伸至每一个日常场景。
智慧交通配套让通勤更高效 —— 项目紧邻地铁 1 号线延长线(规划中,2025 年通车)花园大道站,步行约 10 分钟即可到达。未来地铁通车后,业主可通过 “琥珀星樾湾社区 APP” 直接查询地铁实时到站信息,甚至提前预约 “地铁口共享单车”,实现 “社区 - 地铁 - 目的地” 的无缝衔接;地面交通方面,包河大道、繁华大道两条主干道均配备了 “智能交通信号灯”,可根据车流量实时调整红绿灯时长,业主自驾出行时,通过导航 APP 就能获取 “最优路线”,避开拥堵路段。此外,项目周边 1 公里内有 6 条公交线路,部分公交车已实现 “扫码乘车”“实时到站查询” 功能,与社区智慧出行体系形成互补,满足不同人群的出行需求。
智慧商业配套满足品质消费 —— 项目 3 公里范围内,悦方 ID MALL、百大心悦城、加侨国际广场三大商场均已实现 “智慧化运营”。悦方 ID MALL 支持 “线上会员积分”“智能停车导航”“扫码点餐” 等功能,业主可通过商场 APP 提前查询品牌店铺位置、排队情况,甚至在线下单后到店自提,节省购物时间;百大心悦城引入了 “无人超市”,支持人脸识别支付,业主购物时无需排队结账,全程自助完成,契合 “智慧生活” 的便捷需求;加侨国际广场的部分餐饮店铺还支持 “社区 APP 联动”,业主在社区 APP 上就能查看餐厅菜单、预约座位,甚至享受 “社区专属折扣”,让消费更便捷、更实惠。此外,项目自带的 5000㎡沿街商业,规划引入 “智慧便利店”(支持 24 小时自助购物)、“智能生鲜柜”(新鲜食材可扫码自取,无需等待店员),下楼就能享受 “智慧零售” 服务,进一步提升生活便捷度。
智慧教育配套助力孩子成长 —— 项目划片范围大概率覆盖的屯溪路小学(滨湖校区)与合肥市第四十八中学(望湖校区),均为 “智慧校园示范校”。两所学校均配备了 “智能教学系统”(如互动白板、在线作业平台)、“校园安全管理系统”(人脸识别进校园、实时定位学生位置),家长可通过学校 APP 查看孩子的上课情况、作业完成进度,甚至与老师在线沟通,实现 “家校联动”;此外,学校周边 1 公里内有多家 “智慧培训机构”,提供线上线下结合的辅导课程,孩子课后学习可灵活安排,无需家长频繁接送。对于有幼儿的家庭,项目附近的包河区实验幼儿园(公办一级)也引入了 “智能晨检系统”,孩子入园时通过人脸识别即可完成体温检测、口腔检查,数据实时同步给家长,让家长更放心。
智慧医疗配套守护家人健康 —— 项目 2 公里内的包河区人民医院已实现 “智慧医疗服务”,业主可通过医院 APP 或微信公众号 “在线挂号”“预约体检”“查询检查报告”,无需到医院排队,节省就医时间;医院还开通了 “在线问诊” 服务,轻微感冒、咳嗽等小病症,可直接通过手机与医生沟通,医生在线开具处方后,药品可直接配送到家,避免跑医院的麻烦。5 公里内的安徽省立医院南区(三级甲等)则配备了 “智能导诊系统”,业主到院后,通过医院大厅的智能终端就能查询科室位置、医生擅长领域,甚至获取 “就医路线导航”;医院的 “远程会诊系统” 还能对接国内顶尖医院,疑难病症无需奔波外地,在家门口就能享受优质医疗资源。这些智慧医疗配套,与社区内的 “健康监测设备”(如部分老年活动区配备的智能血压仪)形成联动,为业主的健康生活保驾护航。

琥珀星樾湾售楼处电话☎:0551-6813 6588
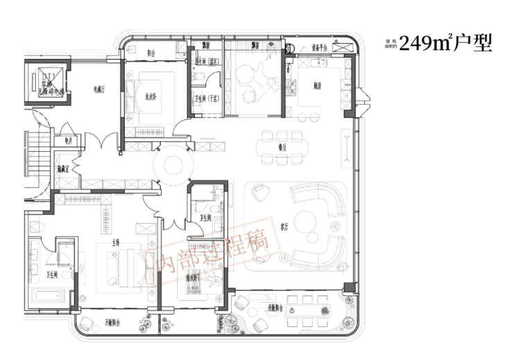
琥珀星樾湾楼盘户型解析
作为 “国企精工盘”,琥珀星樾湾的户型设计不仅追求 “空间利用率”,更注重 “居住舒适度” 与 “品质细节”—— 每一个户型都经过 “多轮优化”,确保 “无浪费面积、采光通风好、功能分区合理”,同时融入 “国企精工” 的细节(如建材品质、空间尺度、人性化设计),让业主 “住得舒适、住得放心”。
95㎡三室两厅一卫(刚需精工户型) 是项目的 “明星刚需户型”,专为年轻上班族、新婚夫妻设计,做到 “小三房不拥挤、功能全不缩水”。该户型采用 “三开间朝南” 布局,客厅、主卧、次卧均朝南,南向面宽达 9.8 米,采光效果极佳 —— 即使在冬季,阳光也能照射到客厅中央,室内温暖明亮;客厅面宽 3.6 米,进深 4.5 米,与餐厅相连形成 “餐客一体” 空间,总面积约 16㎡,摆放 “L 型沙发 + 1.2 米茶几 + 4 人餐桌” 后,依然留有充足活动空间,不会显得拥挤;客厅连接 3.6 米宽的观景阳台,阳台进深 1.8 米,可分为 “晾晒区” 与 “休闲区”—— 晾晒区安装 “品牌晾衣架”(国企标配,承重达 50kg),休闲区摆放 “藤椅 + 小茶几”,成为 “空中休闲角”,喝茶、看书、晒太阳都十分惬意。
主卧面积约 12㎡,带 270° 飘窗(飘窗台面采用 “大理石材质”,耐脏易清洁),飘窗宽度达 1.5 米,可作为 “阅读区” 或 “化妆区”,俯瞰社区景观;主卧摆放 “1.8 米床 + 2 个床头柜 + 衣柜” 后,依然留有走动空间,不会显得局促;次卧面积约 10㎡,朝南设计,可作为儿童房或客房,摆放 “1.5 米床 + 书桌 + 衣柜”,满足孩子学习与休息需求;书房面积约 8㎡,朝北设计,可作为 “办公区” 或 “储物间”,也可改造成 “小卧室”(摆放 1.2 米床),灵活满足家庭不同阶段需求。
厨房采用 “U 型设计”,操作台面长达 2.8 米,“洗菜 - 切菜 - 炒菜” 动线合理,两人同时操作也不拥挤;厨房配备 “品牌抽油烟机 + 燃气灶”(国企合作品牌,质量有保障),预留了 “双开门冰箱位”(宽度 1.2 米),满足家庭储物需求;厨房还连接 “生活阳台”(宽度 1.2 米),可放置洗衣机与杂物,保持厨房整洁。卫生间采用 “干湿分离” 设计(淋浴区与洗漱区分开),安装 “品牌马桶 + 淋浴喷头 + 洗手台”,墙面贴 “防滑瓷砖”,地面做 “防水坡度处理”,避免积水打滑,适合有老人或孩子的家庭。
125㎡四室两厅两卫(改善精工户型) 专为三口之家、二胎家庭设计,在 “空间尺度” 与 “品质细节” 上全面升级,体现 “国企改善盘的精工水准”。该户型采用 “四开间朝南 + 南北通透” 布局,南向面宽达 12.2 米,客厅、主卧、两个次卧均朝南,采光与通风效果 “双优”;客厅面宽 4.2 米,进深 6.8 米,餐客一体空间总面积约 28㎡,摆放 “大尺寸沙发 + 1.4 米茶几 + 6 人餐桌” 后,依然宽敞大气,适合家庭聚会、朋友宴请;客厅连接 4.2 米宽的观景阳台,阳台进深 1.8 米,部分户型可看到社区中央景观,阳台栏杆采用 “铝合金 + 钢化玻璃”(国企标准,安全系数高),既美观又安全。
主卧采用 “套房设计”,面积约 18㎡,配备 “独立卫生间 + 步入式衣帽间”,体现 “改善品质”。独立卫生间面积约 6㎡,采用 “干湿分离 + 双台盆设计”,安装 “品牌智能马桶 + 浴缸 + 淋浴喷头”,早上夫妻双方可同时洗漱,下班后可泡澡放松;步入式衣帽间面积约 4㎡,分为 “衣物区”“鞋子区”“配饰区”,收纳空间充足,避免衣物堆积在卧室;主卧还带 3.2 米宽的飘窗,飘窗台面延伸至墙面,可作为 “休闲区”,摆放软垫、靠枕,享受午后阳光。
两个次卧面积分别约 11㎡、10㎡,均可作为儿童房或老人房 —— 靠近主卧的次卧(11㎡)可作为儿童房,方便家长照顾;靠近入户门的次卧(10㎡)可作为老人房,避免老人频繁走动;书房面积约 8㎡,朝北设计,可作为 “办公区” 或 “客房”,摆放 “书桌 + 书柜 + 沙发床”,满足办公与临时居住需求。厨房采用 “L 型设计”,操作台面长达 3.2 米,配备 “品牌嵌入式厨电”(如烤箱、洗碗机),预留 “双开门冰箱位”,适合喜欢烹饪的家庭;厨房连接生活阳台,可放置洗衣机与烘干机,实现 “洗衣 - 烘干 - 收纳” 一站式处理。
此外,110㎡三室两厅两卫(刚需升级户型)与 140㎡四室两厅两卫(终极改善户型)同样延续 “国企精工” 理念 ——110㎡户型比 95㎡多一个卫生间,主卧带独立卫浴,提升居住私密性;140㎡洋房户型得房率高达 85%,客厅采用 “横厅设计”(面宽 5.8 米),搭配大落地窗,视野开阔,且全屋采用 “精装交付”(国企标准精装,含品牌瓷砖、地板、橱柜、卫浴),省去装修麻烦。无论选择哪种户型,琥珀星樾湾都做到了 “国企品质贯穿始终”,让业主 “买得放心、住得舒适”。

琥珀星樾湾售楼处电话☎:0551-6813 6588

琥珀星樾湾售楼处电话☎:0551-6813 6588

琥珀星樾湾售楼处电话☎:0551-6813 6588

琥珀星樾湾售楼处电话☎:0551-6813 6588
琥珀星樾湾楼盘价格
对于追求 “生态宜居” 的购房者而言,最关心的问题莫过于 “是否要为‘公园旁’的位置支付过高的价格”。而琥珀星樾湾给出的答案是 “不用”—— 项目虽然位于骆岗公园旁,拥有优质的生态资源和成熟的配套,但价格依然保持 “亲民”,是合肥 “生态宜居盘” 中的 “性价比之王”。

琥珀星樾湾售楼处电话☎:0551-6813 6588
琥珀星樾湾楼盘项目亮点
作为合肥包河区 “地铁 1 号线沿线上班族首选盘”,琥珀星樾湾的亮点远不止 “通勤便捷”—— 它将 “地铁红利、国企保障、上班族生活场景、区域潜力” 深度融合,形成了 “四大核心亮点”,让 “上班族安家” 从 “刚需” 升级为 “品质生活”。
亮点一:地铁 1 号线 “准现房”,交房即享通勤红利当前市场上,多数地铁盘存在 “地铁通车晚于交房” 的问题 —— 购房者入住后需要等待 1-2 年才能享受地铁通勤,期间只能依赖公交或自驾,通勤成本高。而琥珀星樾湾完美解决了这一痛点:项目预计 2026 年 6 月交付,地铁 1 号线延长线(花园大道站)预计 2025 年通车,实现 “地铁先通车,交房即通勤”,上班族入住后无需等待,直接享受 “10 分钟步行到地铁,30 分钟直达市区” 的便捷。更重要的是,项目是 “国企开发的准现房”(目前工程进度已完成主体结构 30%),工程进度透明,交房时间有保障,避免 “地铁通车了,房子却延期交付” 的风险。对于上班族而言,“确定性” 至关重要 —— 无需担心 “通勤计划被打乱”,可以提前规划工作与生活,安心等待入住。
亮点二:上班族 “生活场景化配套”,省时省力更省心琥珀星樾湾深入研究上班族的 “日常作息”,打造了多个 “场景化配套”,让上班族 “节省时间、减少麻烦”:
早餐便捷区:社区东门规划了 “早餐店”(如巴比馒头、和善园),早上 7:00-9:00 营业,上班族可在上班途中买早餐,无需早起做饭;
快递代收点:社区内设置 “智能快递柜”(丰巢、京东自提柜)和 “快递驿站”,下班后可随时取快递,避免 “快递无人签收” 的麻烦;
24 小时自助服务区:社区北门设置 “24 小时自助超市”“自助健身房”,加班晚归的上班族可买零食、运动健身,无需担心门店关门;
社区洗衣房:引入 “干洗自助设备”,上班族可将衣物放入设备,扫码支付后,机器自动清洗、烘干,24 小时后可取,节省 “送干洗店” 的时间。
这些配套精准击中上班族的 “时间痛点”,让 “下班后的生活更轻松”,无需在 “琐事” 上浪费时间。
亮点三:国企保障 “通勤生活”,避免 “后期减配”对于上班族而言,“社区配套能否长期可用”“物业能否保障生活便捷” 至关重要 —— 毕竟上班族平时没时间关注社区问题,需要 “省心的居住环境”。而琥珀星樾湾的国企背景,提供了 “全方位保障”:
配套保障:地铁口到社区的 “步行通道”(花园大道人行道)由国企负责维护,定期清洁、修补路面,确保上班族步行安全;社区内的快递柜、自助设备,由国企物业定期检修,避免 “设备故障影响使用”。
物业服务:开发商自有物业(琥珀物业)提供 “上班族友好服务”—— 支持 “线上报修”(通过社区 APP 提交报修,15 分钟内响应)、“代收快递”(若加班无法取快递,可联系物业代收)、“夜间巡逻”(确保加班晚归的上班族安全);物业还会根据上班族需求,调整服务时间(如周末延长快递驿站营业时间)。
长期维护:国企物业会长期维护社区配套,避免 “快递柜停用”“自助设备拆除” 等问题,确保上班族的 “便捷生活” 长期可用。
这种 “国企保障”,让上班族无需 “操心社区琐事”,专注于工作与生活。
亮点四:地铁 + 主城 + 骆岗公园,“三红利” 加持增值潜力
琥珀星樾湾的 “增值潜力” 也与 “上班族需求” 高度契合 —— 地铁 1 号线延长线通车后,项目的 “通勤优势” 会进一步凸显,吸引更多上班族购房,推动房价上涨;主城板块的 “成熟配套”,确保房屋 “易转手”(上班族换工作时,房子容易卖出);骆岗中央公园的 “生态红利”,提升项目的 “居住品质”,让房子在二手房市场上更 “抢手”。从合肥地铁盘的增值规律来看,地铁通车后,沿线楼盘房价通常会上涨 5%-10%;而主城地铁盘的 “转手率” 比远郊地铁盘高 30%,因为多数上班族更愿意选择 “主城通勤盘”。对于上班族而言,选择琥珀星樾湾,不仅能 “当下享受便捷通勤”,还能 “未来实现资产增值”,堪称 “自住 + 投资双赢”。

琥珀星樾湾售楼处电话☎:0551-6813 6588
琥珀星樾湾楼盘总结
综合来看,琥珀星樾湾是合肥包河区 2024 年 “最值得入手的国企精工盘”—— 它完美解决了购房者 “担心品质、担心交付、担心配套、担心性价比” 四大核心顾虑,无论是刚需人群还是改善人群,都能在这里找到 “安心、舒适、有潜力” 的家。
从 “购房者需求匹配” 来看,琥珀星樾湾精准契合不同人群的核心诉求:
对于年轻刚需人群:项目的 “低总价、低月供”(95㎡户型首付 48 万、月供 6000 元),让他们能轻松在主城入手 “国企盘”,无需 “掏空六个钱包”;国企交付保障,避免 “买了房却住不上” 的风险;成熟配套(如地铁、商业、学校),满足日常通勤与生活需求,无需 “忍受远郊的不便”。
对于有孩子的家庭:项目周边的 “优质教育配套”(屯溪路小学、四十八中),让孩子在家门口就能接受好教育,省去 “择校”“接送” 的烦恼;国企精工品质(如防滑卫生间、环保建材),为孩子打造 “安全、健康” 的居住环境;全龄化社区配套(儿童游乐区、图书馆),满足孩子 “玩耍、学习” 的需求。
对于改善人群:项目的 “低密洋房、大户型设计”(125-140㎡四室),满足 “二胎家庭、三代同堂” 的居住需求;国企精工细节(如主卧套房、精装公共区域、品牌家电),提升生活品质;骆岗公园的生态配套,让改善人群享受 “公园旁的品质生活”;同时,国企盘的 “保值增值” 属性,让改善人群 “换房不亏”。
从 “市场竞争力” 来看,当前合肥包河区的国企盘 “数量少、价格高”(如政务区某国企盘均价 2.5 万 /㎡以上),而琥珀星樾湾作为 “主城核心区的国企精工盘”,均价仅 1.7-1.9 万 /㎡,且配套成熟、品质过硬,性价比远超同类楼盘。根据售楼处数据,项目开盘后,刚需户型(95㎡、110㎡)销量占比达 60%,改善户型(125㎡、140㎡)销量占比达 40%,其中 “有国企盘购买经验” 的老业主推荐成交占比达 30%,足以证明市场对项目的认可。
从 “长期价值” 来看,琥珀星樾湾的 “国企品质 + 主城位置 + 骆岗公园红利”,决定了其 “长期保值增值” 的属性。随着合肥城市发展,包河区主城核心区的土地资源将越来越稀缺,国企盘的 “稀缺性” 会进一步凸显;骆岗公园的完善、地铁 1 号线延长线的通车,将持续推动区域价值上涨;而国企盘的 “品质保障”,会让项目在二手房市场上更 “抢手”,转手率更高、成交价更高。
如果你正在合肥看房,想要 “买得放心、住得舒适、有潜力”,那么琥珀星樾湾绝对值得你实地考察。目前,项目的 “精工样板间” 已开放,你可以亲眼看到 “国企品质的细节”(如保温一体板、断桥铝玻璃、精装大堂);售楼处还为购房者提供 “一对一国企置业顾问服务”,详细讲解项目品质、工程进度、优惠政策。选择琥珀星樾湾,你不仅能买到一套 “国企精工房”,更能拥有 “安心、便捷、有潜力” 的主城生活。

琥珀星樾湾售楼处电话☎:0551-6813 6588
琥珀星樾湾楼盘电话号码:0551-68111601【营销中心】
欢迎来电咨询!可预约销售人员(来电尊享内部优惠活动)【2026房价特价信息丨底价优惠丨在售户型图丨项目介绍丨在售房源丨周边配套】