肥东信达碧桂园楼盘怎么样-价格

搜狐焦点合肥站

2025-06-19 10:56:26

购房群

买房如何避坑,加入购房群,看看他们怎么说

立即进群

信达碧桂园楼盘电话号码:0551-68111601【营销中心】

欢迎来电咨询!可预约销售人员(来电尊享内部优惠活动)【2024房价特价信息丨底价优惠丨在售户型图丨项目介绍丨在售房源丨周边配套】

信达碧桂园位于肥东县酿泉路与日出路交口西北角,地理位置优越,交通便利,周边配套设施齐全。项目规划33栋住宅楼,包括28栋高层和5栋洋房,总占地面积165.59亩,适合居住。交付时间分为一期和二期,分别为2023年5月30日和2024年4月30日,为购房者提供明确期待。交付标准为毛坯,让购房者更加个性化和自由地进行装修。

在教育方面,附近拥有多所幼儿园、小学和中学,包括安师大附属肥东实验中学等知名学府。医疗方面,距离一级医院肥东县人民医院仅3公里。购物中心、公园等生活配套也齐全,满足居民的各种需求。信达碧桂园的地址位于合肥市肥东县酿泉路与日出路交口,交通便利,生活便捷。

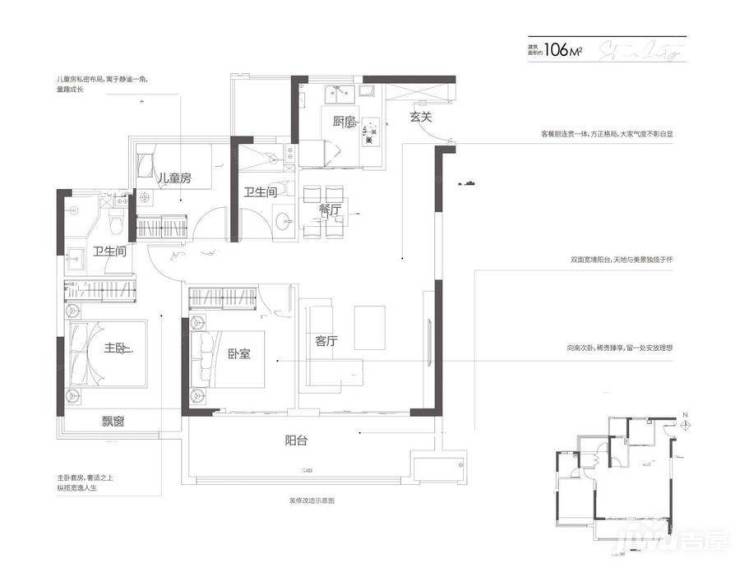
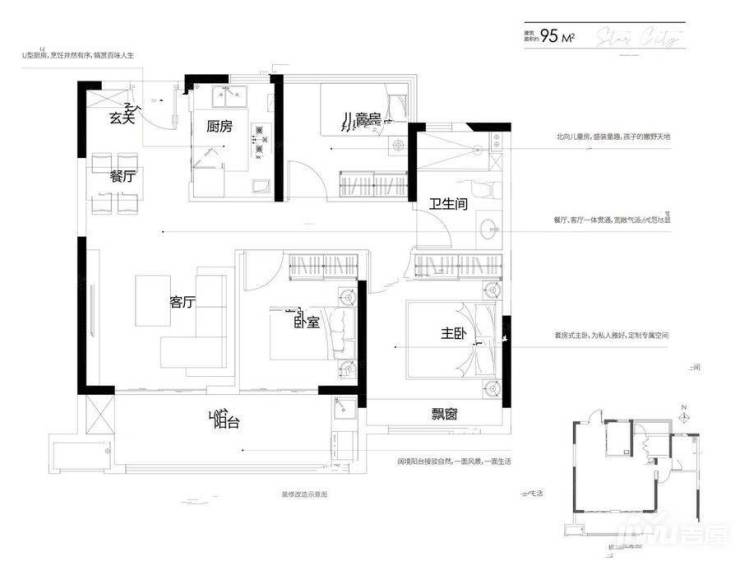
信达碧桂园的户型设计非常精心,不仅满足实际的居住需求,更能在物理与精神层面上实现全新的提升。其中,3+1房的灵动户型格局,让居住者在保证品质的基础上,还能营造出个性化的空间。无论是家庭还是个人居住,都能找到最适合自己的居所。

信达碧桂园楼盘具体一房一价,详询营销中心。

信达碧桂园注重品质,建筑设计精良,采用优质材料,保证了房屋的质量和耐久性。项目内设有儿童乐园、健身房、社区花园等配套设施,为居民提供便利的生活体验。这些配套设施不仅丰富了居民的生活,也提升了整个社区的居住品质。信达碧桂园将成为一个集舒适、便利和品质于一体的理想居住地。

信达碧桂园作为肥东县的新兴住宅项目,以其优越的地理位置、多样化的户型选择和注重品质的建筑设计,吸引了众多购房者的关注。无论是购房者的居住需求还是生活体验,信达碧桂园都能为他们提供理想的选择。希望信达碧桂园能成为更多家庭梦想的归宿,为他们营造一个舒适、便利、品质的家园。

信达碧桂园楼盘电话号码:0551-68111601【营销中心】

欢迎来电咨询!可预约销售人员(来电尊享内部优惠活动)【2024房价特价信息丨底价优惠丨在售户型图丨项目介绍丨在售房源丨周边配套】

全部
报名成功
稍后会有专业的置业顾问联系您
返回楼盘

频道导航

返回首页

看房小程序

APP下载

电话拨通后,请您手动拨打分机号

确定拨打电话

电话号码:

分机号:(可能需要拨分机号)