越秀中寰天悦新房本月新开楼盘,低首付入住富人区

搜狐焦点合肥站

2025-10-02 01:36:35

购房群

买房如何避坑,加入购房群,看看他们怎么说

立即进群

合肥(越秀中寰天悦)☎☎:0551-6258 9911【官方认证】

越秀中寰天悦是越秀打造的纯改善型住宅,位于马鞍山路板块,小高大平层,户型面积段在149-189㎡,均价约为24800元/㎡,精装交付。188㎡的明星产品约在500万上下,二环内性价比很高。149㎡的四居室产品空间利用度高,适合关注改善型住宅的购房者。

越秀中寰天悦售楼处电话☎:0551-6813 6588

项目位于包河区望江东路与至德路交叉口东北角,紧邻包河主城区,享有淝河板块醇熟配套,周边交通便利。周边有城市主干道东二环路、望江东路等,轨道交通包括1号线、4号线、6号线,出行便捷。教育资源丰富,包括包河区外国语第二小学、合肥第四十八中望湖校区;医疗资源充足,有市三院、市二院和安徽省立儿童医院;公园资源丰富,包括骆岗公园、包公园、望湖公园等。

商业配套完善,小区对面有大润发超市,三公里内有罍街、龙虾美食街和包河万象汇。周边二手房价格约为13344元/㎡-17903元/㎡,新房项目价格在24265/㎡-24951/㎡之间,而越秀·中寰天悦目前均价约25000元/㎡,略高于周边。总体来说,越秀中寰天悦作为一款二环内高性价比的改善型住宅,地处成熟配套区域,具有较高的投资价值和居住品质。

越秀中寰天悦售楼处电话☎:0551-6813 6588

越秀中寰天悦的户型设计以小高大平层为主,149㎡的产品也提供了四居室的布局,空间利用度非常高。标准四室两厅两卫的布局,端厅设计使活动区域更加宽敞,主卧套房设计可设衣帽间,满足家庭生活的需求。

188㎡的户型是项目的亮点,入户十字玄关设计,注重私密性。卧房布局在前面,主次卧均为套房设计,主卧的衣帽间和卫生间空间很大,符合改善型住宅的需求。15米端厅,南边是落地窗,客厅活动区域布局合理,提供了舒适的生活空间。

越秀中寰天悦售楼处电话☎:0551-6813 6588

越秀中寰天悦售楼处电话☎:0551-6813 6588

越秀中寰天悦售楼处电话☎:0551-6813 6588

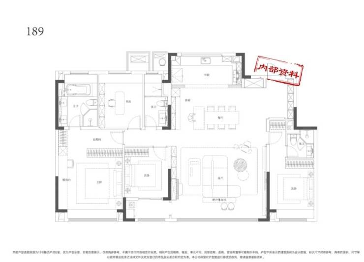
越秀中寰天悦大户型房源在售,户型建筑面积149㎡、187㎡、188㎡、189㎡,在售均价24800元/㎡,具体一房一价,目前在售房源充足,后期有房源加推,具体加推时间未定。可联系项目置业顾问或者致电项目了解详情。

越秀中寰天悦售楼处电话☎:0551-6813 6588

项目负一层设有约1300㎡的独立下沉式会所,内设有多种活动区域,包括品茗区、宴客区、棋牌室、小型KTV等娱乐场所。会所还拥有超大健身区域,为居民提供私密的健身环境,满足不同人群的锻炼需求。会所外的景观区域则提供了休闲放松的空间,包括戏水池等设施,让居民在夏日炎炎时也能享受户外乐趣。

除了大会所外,各楼栋的一楼大厅也被打造成了主题空间,覆盖了儿童、女性、长者、运动、社交等功能,满足了家庭成员不同的需求。儿童主题区域包括画画区、积木区等,为小朋友提供学习和玩乐的场所;而女性主题区域则有插花、烹茶区域,为女主人们提供休闲放松的空间。整个项目不仅提供了高品质的住宅产品,还为居民提供了丰富多彩的社区活动空间,促进了居民之间的社交和互动。

越秀中寰天悦售楼处电话☎:0551-6813 6588

越秀中寰天悦作为一处纯改善型住宅,不仅在户型设计上独具特色,而且周边配套完善,教育资源丰富,性价比也相对较高。在合肥高端改善市场蓬勃发展的背景下,越秀中寰天悦提供了一个不错的选择,值得购房者关注和考虑。

越秀中寰天悦售楼处电话☎:0551-6813 6588

越秀中寰天悦

越秀中寰天悦营销中心电话:0551-6258 9911【已认证】

越秀中寰天悦售楼处电话:0551-6258 9911【已认证】

越秀中寰天悦展示中心电话:0551-6258 9911【已认证】

全部

相关资讯

报名成功
稍后会有专业的置业顾问联系您
返回楼盘

频道导航

返回首页

看房小程序

APP下载

电话拨通后,请您手动拨打分机号

确定拨打电话

电话号码:

分机号:(可能需要拨分机号)