合肥信达碧桂园楼盘怎么样-值得买吗

搜狐焦点合肥站

2025-07-16 02:29:28

购房群

买房如何避坑,加入购房群,看看他们怎么说

立即进群

信达碧桂园楼盘电话号码:0551-68111601【营销中心】

欢迎来电咨询!可预约销售人员(来电尊享内部优惠活动)【2024房价特价信息丨底价优惠丨在售户型图丨项目介绍丨在售房源丨周边配套】

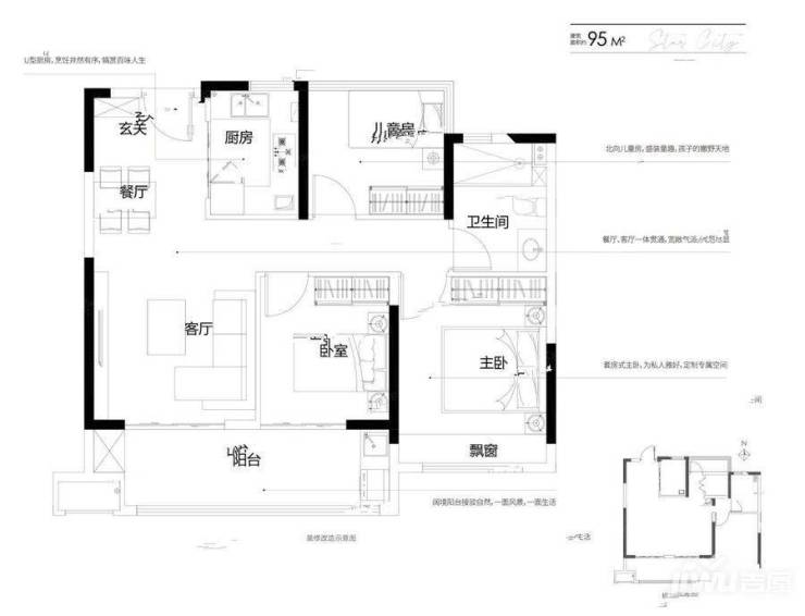
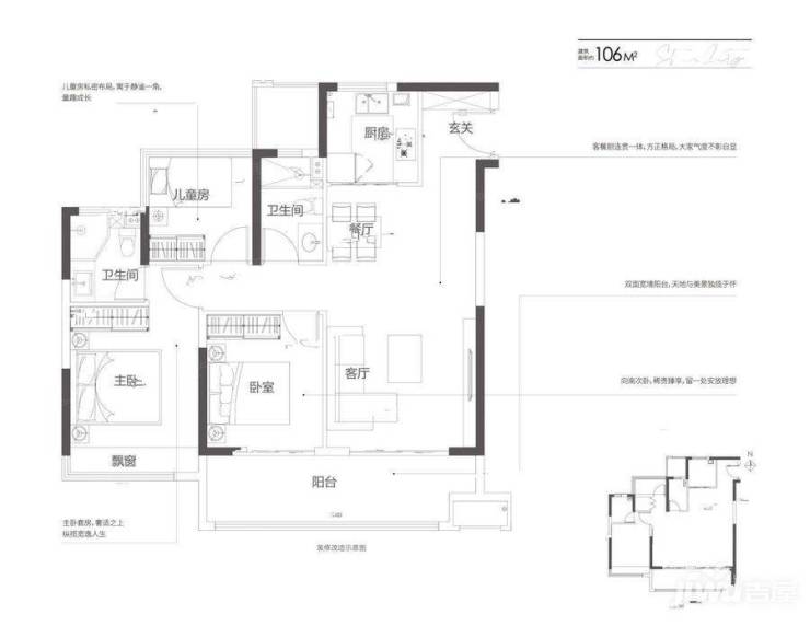
信达碧桂园项目位于肥东县酿泉路与日出路交口,规划住户2114户,整体绿化40%,容积率为2,是低密好社区。项目包括三室的95-105㎡和四室的118㎡户型,同时还会修建幼儿园和睦邻中心,小区物业费为2元/㎡/月,停车位达2359个。

信达碧桂园周边的生活配套设施也十分完善。交通方面,项目紧邻在建中的地铁2号线东延线,肥东高铁站,有轨电车规划中、裕溪路高架等多种交通方式,方便快捷地连接城市各个繁华地带。教育资源丰富,周边有多所幼儿园、小学和中学,医疗保障也不在话下,距离一级以上医院仅2.7公里。此外,商业设施和生态环境也是项目的亮点,让居民享受便捷的日常生活和优美的自然环境。

信达碧桂园的户型设计致力于提供高品质的居住体验。建面95-118平方米的户型充分考虑了居住者的需求,合理分区功能,视野采光俱佳的通透户型,带来舒适的生活感受。特别是3+1房的户型格局,不仅保证了居住品质,更在空间设计上营造出个性化的生活空间。精心设计的户型不仅满足了实际的居住需求,更能在物理与精神层面上实现全新的提升,让居住者享受到独特的居住体验。

信达碧桂园楼盘具体一房一价,详询营销中心。

信达碧桂园项目周边拥有和睦湖公园、肥东体育公园等生态资源,让业主在闲暇时可以享受赏景散步的乐趣。关于信达碧桂园的购买价值,基本信息已经介绍完毕,欢迎关注项目动态和资讯,预购从速,体验醇熟配套带来的舒适体验。

信达碧桂园项目由信达地产和碧桂园集团联合开发建设,地处肥东和睦湖板块,拥有高品质的住宅产品和丰富的周边配套设施。项目的户型设计合理,让居民享受舒适的居住体验;周边交通、教育、医疗和商业设施完善,生活便利无忧。信达碧桂园致力于打造高品质生活,让每一位居民都能享受到舒适便利的居住环境。

信达碧桂园楼盘电话号码:0551-68111601【营销中心】

欢迎来电咨询!可预约销售人员(来电尊享内部优惠活动)【2024房价特价信息丨底价优惠丨在售户型图丨项目介绍丨在售房源丨周边配套】

全部
报名成功
稍后会有专业的置业顾问联系您
返回楼盘

频道导航

返回首页

看房小程序

APP下载

电话拨通后,请您手动拨打分机号

确定拨打电话

电话号码:

分机号:(可能需要拨分机号)