招商奥体公园楼盘介绍

搜狐焦点合肥站

2025-06-13 10:29:11

购房群

买房如何避坑,加入购房群,看看他们怎么说

立即进群

招商奥体公园

招商奥体公园营销中心电话:0551-6258 9911【已认证】

招商奥体公园售楼处电话:0551-6258 9911【已认证】

招商奥体公园展示中心电话:0551-6258 9911【已认证】

招商奥体公园位于合肥新站奥体板块内,是一个占地超过百万平方米的大型住宅项目,汇集了六种不同业态。项目内包括室内万人体育场馆、地铁上盖长空公园和活力荟TOD商业体等,形成了一个综合性的生活圈。无论是运动爱好者、商务人士还是家庭购房者,这里都能找到适合自己的生活方式。

招商奥体公园售楼处电话☎:0551-6813 6588

交通上,项目紧邻地铁4号线始发站综保区站地铁口,奥体巴士同步4号线,串联城市与社区,交通便捷,通达全城。三纵三横的干道交汇也为项目出行提供更多选择。商业配套丰富,项目自带约2.5万方活力荟商业街区,西侧还规划有14万方大型商业综合体,北侧5万方星级酒店已封顶,南侧有8万方的弘盛商业广场,共同构成项目强大商业支撑。

项目一期二期配套有合肥市168陶冲湖校区、伦先小学和自建幼儿园;三期四期五期配套有合肥168陶冲湖校区、竹溪小学少荃校区和自建幼儿园,为业主提供优质教育资源。周边医疗资源丰富,包括安徽医科大学第一附属医院北区和京东方医院,为业主的健康保驾护航。少荃湖湿地公园、二十埠河生态廊道等自然景观,也为业主提供休闲娱乐的好去处。

招商奥体公园售楼处电话☎:0551-6813 6588

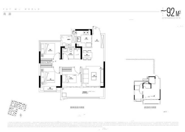
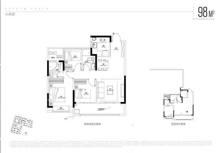
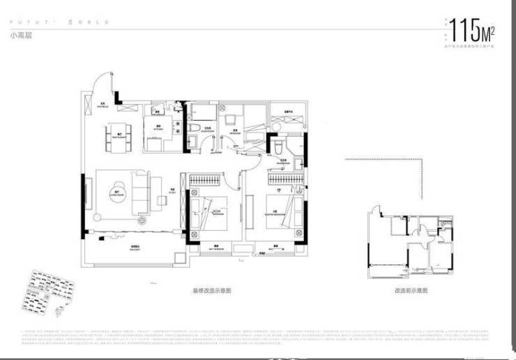
招商奥体公园主打刚需小户型,户型面积介于89-119㎡之间,满足不同购房者的需求。其中,92㎡的户型设计南北通透,采光和通风良好,主卧带有一个飘窗,卫生间干湿分离,客厅和餐厅一体化设计,空间宽敞舒适。客厅和卧室阳台相连,阳台空间较大,可打造出一个开放性的空间,提升居住舒适度。

招商奥体公园售楼处电话☎:0551-6813 6588

招商奥体公园售楼处电话☎:0551-6813 6588

招商奥体公园售楼处电话☎:0551-6813 6588

招商奥体公园售楼处电话☎:0551-6813 6588

招商奥体公园售楼处电话☎:0551-6813 6588

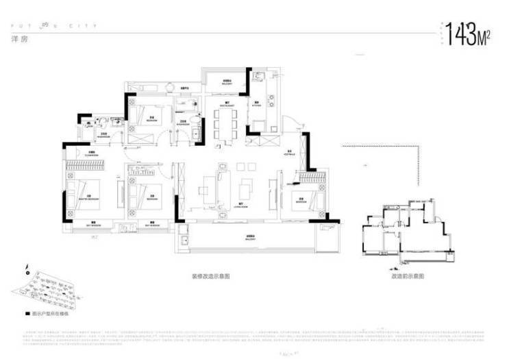
价格方面,招商奥体公园均价在1.7万/㎡左右,相比周边其他项目具有一定的性价比优势。项目主打刚需小户型,主力户型面积介于89-119㎡之间,包括二居室和三居室,满足不同购房者的需求。部分四室户型面积达到143㎡,也可供选择。其中,92㎡的户型三室两厅一卫,南北通透设计,采光和通风良好,空间利用较为合理,适合家庭居住。

招商奥体公园售楼处电话☎:0551-6813 6588

招商奥体公园作为合肥新站区的重要项目,以其丰富的业态和配套设施,以及便利的交通和周边资源,为居民提供了高品质的生活方式选择。随着项目的不断完善和发展,相信将会成为合肥地区的热门生活区域,吸引更多购房者的关注和青睐。

招商奥体公园售楼处电话☎:0551-6813 6588

招商奥体公园是合肥首座45万方奥体TOD综合体,集“体育中心、长空公园、TOD商业、智慧社区”四大业态于一体,为居民提供全方位的生活体验。项目采用5S智慧管理服务体系,保障社区的安全性和便利性。此外,项目设有5大主体架空层泛会所,覆盖各个年龄段的需求,提供丰富的休闲娱乐设施。招商奥体公园以其便捷交通、价格优势、多样户型选择和综合体验,吸引了众多购房者的关注和青睐,成为合肥新站区的一匹刚需“黑马”。

招商奥体公园售楼处电话☎:0551-6813 6588

招商奥体公园

招商奥体公园营销中心电话:0551-6258 9911【已认证】

招商奥体公园售楼处电话:0551-6258 9911【已认证】

招商奥体公园展示中心电话:0551-6258 9911【已认证】

全部
报名成功
稍后会有专业的置业顾问联系您
返回楼盘

频道导航

返回首页

看房小程序

APP下载

电话拨通后,请您手动拨打分机号

确定拨打电话

电话号码:

分机号:(可能需要拨分机号)