招商奥体公园楼盘卖那么好,背后的底气在哪?

搜狐焦点合肥站

2025-08-05 13:20:03

购房群

买房如何避坑,加入购房群,看看他们怎么说

立即进群

招商奥体公园售楼处电话0551-6258 9911【营销中心】

欢迎预约品鉴:(官方网站)售楼处:0551-6258 9911【营销中心】

温馨提示:网上售楼中心〢预约可享内部优惠〢匠心钜制-恭迎品鉴〢

2021年,招商地产选择在合肥新站区少荃湖板块布局,打造了合肥首个百万方奥体TOD体育综合体。这个项目位于东方大道与卧龙湖路交叉口,包括少荃体育中心、长空公园、花园里商街、奥体上城等多个业态,为居民提供了丰富多彩的生活方式。招商奥体公园不仅拥有丰富的住宅产品,还有公园、体育中心、购物中心、社区商业中心等配套设施,满足居民多重生活需求。同时,项目周边还有地铁四号线、竹溪小学、京东方医院、少荃湖湿地公园等资源,为居民提供便利的生活环境。

招商奥体公园售楼处电话☎:0551-6813 6588

项目紧邻地铁4号线始发站综保区站地铁口,奥体巴士同步4号线,串联城市与社区,提供便捷交通。同时,项目周边三纵三横的干道交汇,为出行提供更多选择。商业配套方面,项目自带约2.5万方的活力荟商业街区,西侧规划有14万方大型商业综合体,北侧有5万方星级酒店,南侧有8万方弘盛商业广场,构成强大商业支撑。

项目一期二期配套有合肥市168陶冲湖校区和合肥市伦先小学,以及自建的幼儿园;三期四期五期配套有合肥168陶冲湖校区、竹溪小学少荃校区和自建幼儿园,提供优质教育资源。周边医疗资源包括安徽医科大学第一附属医院北区和京东方医院,保障业主健康。自然景观少荃湖湿地公园、二十埠河生态廊道等为业主提供休闲娱乐去处。

招商奥体公园售楼处电话☎:0551-6813 6588

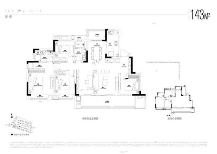
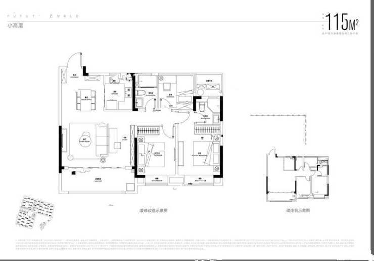
精心设计的户型是招商奥体公园的亮点之一。主打刚需小户型,主力户型面积介于89-119㎡之间,包括二居室和三居室,满足不同购房者的需求。其中,92㎡的三室两厅一卫户型设计独具匠心,南北通透的布局让采光和通风效果更佳。主卧带有一个飘窗,卫生间干湿分离,客厅和餐厅一体化设计,空间更显宽敞。客厅与阳台相连,阳台空间较大,可打造出一个开放性空间,让居住者尽情享受户外阳光和清新空气。

招商奥体公园售楼处电话☎:0551-6813 6588

招商奥体公园售楼处电话☎:0551-6813 6588

招商奥体公园售楼处电话☎:0551-6813 6588

招商奥体公园售楼处电话☎:0551-6813 6588

招商奥体公园售楼处电话☎:0551-6813 6588

近期在售的招商奥体公园一、二期现房,三、四期准现房,户型面积在88-115m²。作为一线品牌央企,招商在合肥拥有多年深耕发展的经验,带来了多座高品质人居作品。选择招商奥体公园,不仅能享受便利的生活配套和优越的交通条件,更能拥有一个品质生活的家园。

招商奥体公园售楼处电话☎:0551-6813 6588

招商奥体公园的推出,为合肥新站区少荃湖板块的发展注入了新的活力。以优越的地理位置、丰富的配套设施、优质的住宅产品和可靠的品牌背书,招商奥体公园必将成为当地居民理想的居住选择。随着项目的不断建设和完善,未来将会吸引更多购房者前来关注和购买,也将提升当地的房地产市场发展水

招商奥体公园售楼处电话☎:0551-6813 6588

合肥招商奥体公园楼盘凭借其优越的地理位置、多样化的业态配套以及丰富的教育和医疗资源,吸引了不少刚需和改善型家庭的关注。随着新站区的快速发展和地铁4号线的通车,项目的未来潜力必将进一步提升。如果您对该楼盘感兴趣,建议直接联系售楼处获取最新动态或安排实地考察。

招商奥体公园售楼处电话☎:0551-6813 6588

招商奥体公园楼盘电话号码:0551-6258 9911【营销中心】

欢迎来电咨询!可预约销售人员(来电尊享内部优惠活动)

【2024房价特价信息丨底价优惠丨在售户型图丨项目介绍丨在售房源丨周边配套】

全部
报名成功
稍后会有专业的置业顾问联系您
返回楼盘

频道导航

返回首页

看房小程序

APP下载

电话拨通后,请您手动拨打分机号

确定拨打电话

电话号码:

分机号:(可能需要拨分机号)