招商奥体公园项目电话号码-价格

搜狐焦点合肥站

2025-05-28 09:57:31

购房群

买房如何避坑,加入购房群,看看他们怎么说

立即进群

合肥(招商奥体公园)☎☎:0551-6258 9911【官方认证】

2021年,招商选择在合肥新站区少荃湖板块布局,打造了合肥首个百万方奥体TOD体育综合体。项目位于东方大道与卧龙湖路交叉口,包括多个业态,如少荃体育中心、长空公园、花园里商街、奥体上城等,为居民提供了丰富多彩的生活方式。

招商奥体公园售楼处电话☎:0551-6813 6588

招商奥体公园项目位于新站少荃湖板块,具体地址为卧龙湖路与东方大道交叉路口西南侧。项目周边有多条城市主干道穿行而过,如东方大道、文忠路、淮海大道、包公大道等,构建了立体TOD交通网络。项目紧邻地铁4号线始发站东方大道站,地铁3号线和规划中的9号线也穿行于项目周边区域,出行便捷。项目内规划有约3万方活力荟商业街区,满足居民日常购物、餐饮、娱乐等多元化需求。此外,附近还有多所学校和医院,以及多个公园供居民休闲娱乐。

招商奥体公园售楼处电话☎:0551-6813 6588

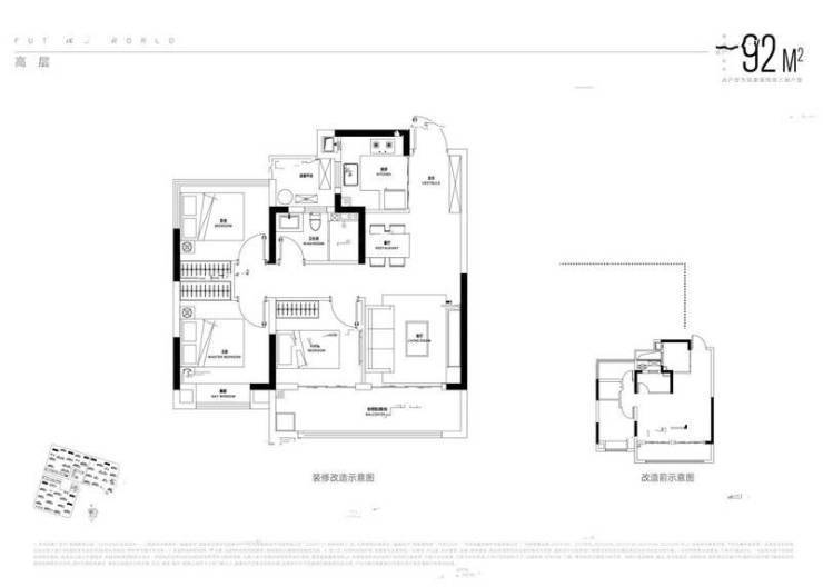
招商奥体公园主打刚需小户型,主力户型面积介于89-119㎡之间,包括二居室和三居室,满足不同购房者的需求。其中,92㎡的户型三室两厅一卫,南北通透的设计,采光和通风良好,主卧带有一个飘窗,卫生间干湿分离,客厅和餐厅一体化设计,空间宽敞。客厅和旁边的卧室阳台相连,阳台空间较大,可打造出一个开放性空间。招商奥体公园的多样户型选择,满足了购房者对于不同空间需求和生活方式的追求。

招商奥体公园售楼处电话☎:0551-6813 6588

招商奥体公园售楼处电话☎:0551-6813 6588

招商奥体公园售楼处电话☎:0551-6813 6588

招商奥体公园售楼处电话☎:0551-6813 6588

招商奥体公园售楼处电话☎:0551-6813 6588

在合肥新房市场中,招商奥体公园项目的售价也较为合理。目前部分户型均价在1.35万/㎡至2万/㎡之间,性价比较高,让购房者觉得物有所值。这样的价格策略,吸引了更多的购房者选择入住,加速了项目的销售进程。同时也为购房者提供了更多选择的空间,让他们可以更好地满足自己对于居住环境的需求。

招商奥体公园售楼处电话☎:0551-6813 6588

新站区是合肥市区产证的价格洼地,适合刚需人群,对于刚需客户来说,新站区的房价比较友好。

招商奥体公园售楼处电话☎:0551-6813 6588

总的来说,招商奥体公园在合肥新房市场中表现突出,成为了刚需购房者关注的焦点。优越的地理位置、合适的价格、丰富的业态配套以及智能化的管理服务,使这个项目备受青睐。对于想要在新站区购房的购房者来说,招商奥体公园无疑是一个不错的选择。

招商奥体公园售楼处电话☎:0551-6813 6588

招商奥体公园楼盘电话号码:0551-6258 9911【营销中心】

欢迎来电咨询!可预约销售人员(来电尊享内部优惠活动)

【2024房价特价信息丨底价优惠丨在售户型图丨项目介绍丨在售房源丨周边配套】

全部

相关资讯

报名成功
稍后会有专业的置业顾问联系您
返回楼盘

频道导航

返回首页

看房小程序

APP下载

电话拨通后,请您手动拨打分机号

确定拨打电话

电话号码:

分机号:(可能需要拨分机号)