招商奥体公园项目售楼部地址在哪里

搜狐焦点合肥站

2025-11-21 00:06:04

购房群

买房如何避坑,加入购房群,看看他们怎么说

立即进群

招商奥体公园售楼处电话☎:0551-6258 9911

合肥招商奥体公园售楼处电话☎:0551-6258 9911

售楼电话┇——☎0551-6258 9911——┇来电详细解答

温馨提示:提前预约销售人员看房,感谢您对售楼处的配合!

⚠免责声明:请尊重他人的努力和智慧,避免未经授权的复制或引用。

三、招商奥体公园楼盘户型解析

针对有教育需求的家庭,招商奥体公园深入洞察其居住需求,打造了多款适合家庭居住、兼顾学习与生活的户型产品,涵盖 89㎡、105㎡、128㎡、143㎡四个主力面积段,从刚需小三室到高端改善大四室,满足不同家庭结构的教育居住需求。

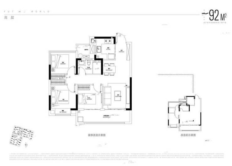
89㎡三室两厅一卫:刚需教育户,紧凑实用

89㎡三室两厅一卫户型是刚需教育家庭的首选,整体布局方正,南北通透,空间利用率高达 85%,无浪费面积,既能满足家庭居住需求,又能为孩子提供独立的学习空间。

入户处设置独立玄关,宽度 1.2 米,深度 1.5 米,既保障了室内隐私,又能作为收纳空间,放置鞋柜、衣帽架、孩子的书包柜等。玄关右侧设有换鞋凳和挂钩,方便孩子放学回家后及时换鞋、挂书包,细节设计贴心。

客厅位于户型中央,面宽 3.6 米,进深 4.2 米,空间宽敞明亮。客厅与南向阳台相连,阳台面宽 3.6 米,进深 1.8 米,采用全景落地窗设计,采光通风极佳。阳台可设置为孩子的休闲活动区,摆放小型游乐设施或绘本架,让孩子在阳光下玩耍、阅读。

餐厅紧邻客厅和厨房,面积约 6㎡,可容纳 4-6 人同时用餐。餐厅与厨房之间设有滑动门,既保证了用餐环境的整洁,又能方便上菜,让家长在烹饪时也能关注到孩子的动态。

厨房位于户型西侧,采用 U 型设计,操作台面长 3.5 米,洗切炒动线合理,预留双开门冰箱位置。厨房靠近餐厅,用餐、上菜便捷,适合家庭日常烹饪。

三个卧室分布在户型东侧和北侧,动静分离,避免了活动区对学习休息区的干扰。主卧位于户型东侧,面宽 3.2 米,进深 3.8 米,带有南向飘窗,采光充足,空间宽敞,可作为家长卧室。两个次卧面宽均为 2.7 米,空间充足,其中一个次卧可作为孩子的独立书房,摆放书桌、书架,为孩子打造安静的学习环境;另一个次卧可作为老人房,方便老人帮忙照顾孩子。

卫生间位于户型北侧,面积约 4.5㎡,采用干湿分离设计,提高使用效率,避免潮湿问题,满足家庭日常使用需求。

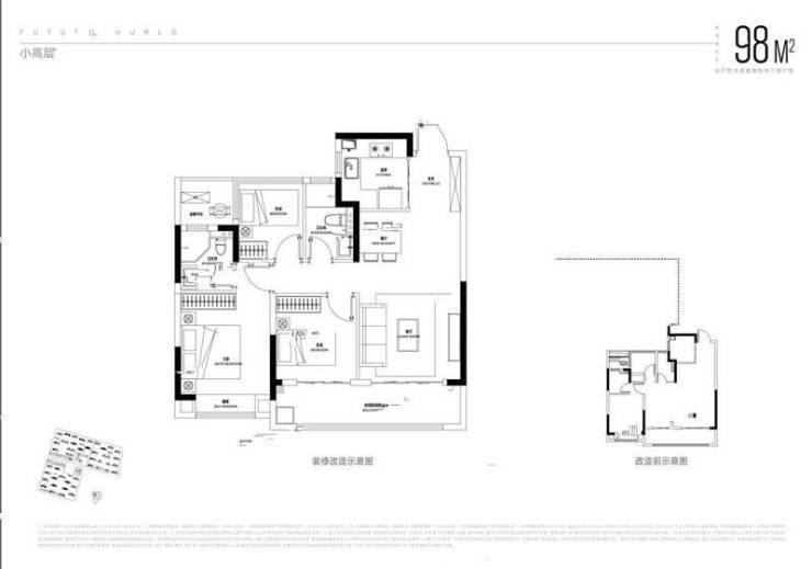
05㎡三室两厅两卫:改善教育户,舒适升级(续)

的学习与休息空间;另一个次卧可作为老人房或备用书房,满足家庭多样化需求。公共卫生间位于两个次卧之间,面积约 5㎡,采用干湿分离设计,使用方便,避免了家人使用时的冲突,尤其适合孩子早上洗漱上学、家长通勤的早高峰场景。

128㎡四室两厅两卫:改善教育户,空间阔绰

128㎡四室两厅两卫户型是多孩教育家庭的理想选择,户型方正通透,南北双阳台设计,空间阔绰,既能满足家庭成员的居住需求,又能为每个孩子提供独立的学习空间,兼顾家庭互动与隐私。

入户玄关宽敞明亮,宽度 1.8 米,深度 2.0 米,可设置入户花园或大型收纳柜,专门划分出孩子的书包、绘本、运动器材收纳区,让居家环境整洁有序。玄关处摆放孩子的荣誉墙,展示奖状、作品,增强孩子的自信心。

客厅面宽 4.0 米,进深 4.8 米,空间宽敞开阔,与南向景观阳台相连,阳台面宽 4.0 米,进深 2.0 米,采光通风极佳。客厅可打造为家庭互动区,摆放投影仪、书架,周末全家一起观影、阅读,营造浓厚的家庭学习氛围。

北向生活阳台与餐厅相连,面宽 3.0 米,进深 1.8 米,可作为孩子的手工创作区或小型运动区,放置跑步机、瑜伽垫,让孩子在学习之余锻炼身体,实现 “学习 + 运动” 两不误。

厨房采用 L 型设计,操作台面长 4.0 米,空间宽敞,动线合理,与餐厅相邻,用餐便捷。厨房预留了辅食机、烤箱等家电位置,方便家长为孩子制作营养餐食,满足孩子成长过程中的饮食需求。

四个卧室分布合理,动静分离,确保学习与休息互不干扰。主卧套房设计,面宽 3.5 米,进深 5.0 米,配备独立卫生间和步入式衣帽间,空间宽敞奢华,让家长拥有专属私密空间。两个南向次卧面宽 3.0 米,采光良好,可分别作为两个孩子的卧室,每个卧室都能摆放书桌、书架,打造独立学习区;北向次卧可作为家庭书房,放置多人书桌和大型书架,全家一起学习,营造良好的学习氛围。

公共卫生间位于户型北侧,面积约 5.5㎡,采用干湿分离设计,配备孩子专用的洗漱台和马桶,方便孩子使用,提升生活便利性。

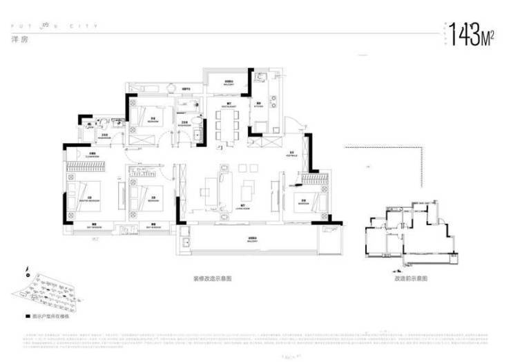
143㎡四室两厅两卫:高端教育户,品质尊享

143㎡四室两厅两卫户型是高端教育家庭的终极之选,空间开阔,布局奢华,品质感十足,为孩子提供优质的成长环境,同时满足家长对高品质生活的追求。

入户采用子母门设计,玄关宽度 2.0 米,深度 2.2 米,大理石地面搭配吊顶设计,彰显尊贵感。玄关处设置大型收纳柜和孩子的展示区,收纳孩子的各类物品,展示孩子的作品、奖杯,打造专属的成长纪念空间。

客厅面宽 4.2 米,进深 5.0 米,与南向 6.8 米宽超宽阳台相连,阳台进深 2.0 米,采用全景落地窗设计,视野开阔,采光通风极佳。阳台可打造为多功能学习休闲区,一侧设置书桌和书架,让孩子在自然光线中高效学习;另一侧摆放休闲沙发和绿植,学习之余放松身心。

餐厅面积约 9㎡,可容纳 10-12 人同时用餐,与客厅形成通透的一体化空间,增强了空间的开阔感。餐厅与北向生活阳台相连,北向阳台可作为孩子的兴趣培养区,放置钢琴、绘画工具等,发展孩子的兴趣爱好。

厨房采用中西厨设计,中厨封闭烹饪,西厨可作为早餐台或孩子的简易烘焙区,培养孩子的动手能力。中厨操作台面长 4.5 米,空间宽敞,预留双开门冰箱位置和各类家电接口,满足家庭多样化烹饪需求。

四个卧室分布合理,动静分离,私密性强。主卧豪华套房设计,面宽 3.6 米,进深 5.2 米,配备独立卫生间、步入式衣帽间和南向全景飘窗,空间宽敞奢华,让家长在照顾孩子之余,能享受高品质的私密生活。两个南向次卧面宽 3.2 米,空间充足,采光良好,可作为孩子的卧室和书房,每个房间都能满足学习、休息、储物的多重需求;北向次卧可作为家庭影音室或健身区,丰富家庭业余生活,实现 “学习 + 休闲” 平衡。

公共卫生间位于户型北侧,面积约 6㎡,采用干湿分离设计,配备高端洁具和孩子专用洗漱设施,满足家庭成员的日常使用需求。

招商奥体公园售楼处电话☎:0551-6813 6588

招商奥体公园售楼处电话☎:0551-6813 6588

招商奥体公园售楼处电话☎:0551-6813 6588

招商奥体公园售楼处电话☎:0551-6813 6588

商奥体公园售楼处电话☎:0551-6813 6588

在快节奏的城市生活中,人们对生态宜居的需求日益迫切,而位于合肥新站区东方大道与卧龙湖路交口往南 200 米的招商奥体公园,正是为满足这份需求而生的低密生态标杆楼盘。项目由百年央企招商蛇口匠心打造,作为深耕地产行业 40 余年的领军企业,招商蛇口始终秉持 “以人为本、生态优先” 的开发理念,在全国范围内打造了众多生态宜居标杆项目,此次落子新站区核心区位,更是将生态宜居理念贯彻到底,为合肥购房者带来 “推窗见绿、出门入园” 的高品质居住体验。

招商奥体公园总占地面积约 180 亩,总建筑面积超 35 万平方米,规划容积率仅 2.0.建筑密度 22%,绿化率高达 40%,是区域内稀缺的低密生态社区。这样的规划指标意味着,项目将更多空间留给自然,让业主在城市核心区也能享受宁静、舒适的居住环境。项目整体规划遵循 “一轴两带多节点” 的园林布局,将住宅、商业、教育、休闲等业态与自然生态有机融合,打造全龄段、全场景的生态宜居社区。

项目住宅部分由 18 栋高层和 12 栋洋房组成,高层层数 18-24 层,洋房层数 6-8 层,总户数约 2200 户,车位配比 1:1.2.充分满足业主居住与停车需求。建筑风格采用现代简约风格,外立面选用真石漆与玻璃幕墙组合材质,线条流畅利落,既美观大方,又能最大化引入自然光线。同时,建筑布局充分考虑采光与通风,确保每一栋楼、每一户都能享受充足的阳光和良好的通风效果。

社区内部规划了丰富的生态休闲配套,包括约 5000㎡中央景观花园、800 米环形健身步道、景观水系、亲水平台、儿童游乐区、老年活动中心等。中央景观花园种植了香樟、桂花、樱花、红枫等多种名贵绿植,形成四季有景的园林景观;环形健身步道环绕中央景观花园,沿途设置休息座椅、健身驿站,让业主在健身的同时享受自然美景;景观水系与亲水平台相映成趣,为社区增添灵动气息。此外,项目还引入了智慧社区管理系统,在保障业主生活便捷的同时,最大限度减少对生态环境的影响,打造绿色、智能的生态宜居社区。

招商奥体公园售楼处电话☎:0551-6813 6588

二、招商奥体公园楼盘周边配套

招商奥体公园的核心竞争力在于 “四维立体交通”,而完善的生活配套则让这份便捷更加实用。项目周边交通、教育、商业、医疗、生态等配套一应俱全,让业主在享受便捷出行的同时,无需为生活便利担忧,实现 “交通与生活的双重便捷”。

交通配套:四维立体网络,畅达全城无压力

主干道 + 高架:自驾出行高效便捷

项目紧邻东方大道与卧龙湖路两大城市主干道,形成 “一横一纵” 的交通骨架。东方大道作为新站区横向交通大动脉,双向 6 车道,路况良好,向西直接衔接阜阳北路高架,20 分钟直达合肥火车站、淮河路步行街、合肥政务区等主城核心区域;向东无缝对接包公大道高架,15 分钟可达肥东县城、瑶海万达商圈,30 分钟直达合肥南站,极大提升了自驾出行效率。

卧龙湖路作为新站区纵向交通要道,北接北外环高速,驾车 30 分钟可达合肥新桥国际机场;南连新站区政务核心板块,10 分钟直达新站区管委会、京东方医院、武里山天街等重要节点,满足业主日常通勤、购物、就医等多样化出行需求。两大主干道与双高架的组合,让业主摆脱拥堵困扰,实现 “快速上高架,全城任我行”。

地铁:双地铁加持,公共交通升级

公共交通方面,项目拥有 “现有地铁 + 规划地铁” 的双重优势。距离已通车的地铁 3 号线幼儿师范站仅 1.5 公里,步行 15 分钟即可到达,或乘坐 301 路公交 3 站直达,地铁 3 号线贯穿合肥西南 - 东北方向,无缝换乘地铁 1、2、4、5 号线,40 分钟内可达滨湖新区、高新区、蜀山经开区等全城各个角落,彻底解决上班族的通勤难题。

更值得期待的是,规划中的地铁 9 号线将在项目周边 500 米范围内设置站点,目前已进入前期筹备阶段,预计 2025 年开工建设,2029 年建成通车。地铁 9 号线作为合肥北部重要的纵向地铁线路,将连接新站区、瑶海区、包河区等区域,届时项目将真正实现 “步行达地铁”,公共交通出行效率将进一步提升,业主无论是通勤、购物还是休闲,都将更加便捷。

公交:多条线路环绕,短途出行便利

项目周边 500 米范围内设有卧龙湖路东方大道、东方大道卧龙湖路、新站寿春实验中学等 3 个公交站点,涵盖 301 路、302 路、686 路、803 路等多条公交线路。301 路连接地铁 3 号线与新站区北部区域,302 路直达合肥火车站,686 路覆盖新站区核心商圈,803 路串联起周边多个社区与学校,满足业主短途出行、接驳地铁等需求,为老人、孩子等不便于自驾的人群提供了便捷的出行选择。

教育配套:交通便捷 + 名校环绕,上学无忧

项目周边教育资源丰富,形成了从幼儿园到中学的全龄段教育体系,且依托便捷的交通网络,孩子上学更加轻松。项目内部规划有 12 班制公办幼儿园,预计 2025 年正式投入使用,业主子女足不出社区即可享受优质启蒙教育,无需担心通勤安全问题。

步行 1 公里范围内,合肥新站寿春实验中学、合肥市庆平希望学校、合肥市第 168 中学东校区等多所名校环绕。借助便捷的交通,孩子步行或乘坐公交即可到达学校,家长无需远距离接送,节省了大量时间和精力。优质的教育资源与便捷的交通相结合,让孩子上学无忧,家长更省心。

商业配套:交通赋能,购物娱乐更便捷

依托立体交通网络,项目周边商业配套的可达性大幅提升。项目自带约 2 万方社区商业,预计 2026 年开业,涵盖超市、便利店、餐饮、生鲜卖场等业态,满足业主日常购物需求,下楼即可解决。

距离项目 3 公里的武里山天街商圈,驾车 10 分钟即可到达;5 公里范围内的拓基广场、家天下生活广场,驾车 15 分钟可达,这些商圈涵盖大型购物中心、品牌餐饮、电影院、儿童乐园等丰富业态,满足业主多样化消费需求。便捷的交通让业主无需为购物远途奔波,周末休闲娱乐更加轻松。

医疗配套:快速通达,健康保障无延迟

优质的医疗资源搭配便捷的交通,为业主的健康保驾护航。项目距离安徽省第二人民医院(北区)约 4 公里,驾车 15 分钟可达;距离合肥京东方医院约 3.5 公里,驾车 12 分钟可达,这两所医院均为三级医院,医疗设备先进,医疗水平高,能够为业主提供高水平的医疗服务。

周边 3 公里内还有多家社区卫生服务中心,步行或乘坐公交即可到达,日常就医、健康体检、疫苗接种等十分便捷。便捷的交通让业主在突发健康问题时能够快速抵达医院,为健康争取时间,无健康后顾之忧。

生态配套:交通便捷,休闲出游更轻松

项目周边生态资源丰富,借助便捷的交通,业主休闲出游更加轻松。距离少荃湖公园约 3 公里,驾车 10 分钟可达,该公园作为合肥北部最大的城市湖泊公园,是业主休闲散步、跑步健身、周末出游的绝佳去处;距离新站区生态公园约 4 公里,驾车 15 分钟可达,公园内空气清新,环境优美,适合全家休闲放松。

此外,瑶海公园、李鸿章享堂等景点距离项目均在 10 公里范围内,驾车 20-30 分钟即可到达,便捷的交通让业主周末闲暇时光能够轻松出行,感受自然美景,放松身心。

招商奥体公园售楼处电话☎:0551-6813 6588

四、招商奥体公园楼盘价格

在合肥楼市中,新站区凭借高性价比成为刚需与投资客的热门选择,而招商奥体公园作为区域内的标杆楼盘,不仅品质出众,价格更具竞争力,同时具备清晰的升值预期,是投资置业的优选。

主力户型价格区间

目前,招商奥体公园销售均价为 13500 元 /㎡-15000 元 /㎡,根据户型、楼层、朝向不同,价格有所差异,具体如下:

89㎡三室两厅一卫:总价 120 万元 - 130 万元,单价 13500 元 /㎡-14600 元 /㎡。低楼层(1-5 层)单价 13500 元 /㎡-13800 元 /㎡,总价 120 万元 - 121 万元;中楼层(6-15 层)单价 13800 元 /㎡-14300 元 /㎡,总价 123 万元 - 127 万元;高楼层(16-24 层)单价 14300 元 /㎡-14600 元 /㎡,总价 127 万元 - 130 万元。

105㎡三室两厅两卫:总价 140 万元 - 155 万元,单价 13300 元 /㎡-14800 元 /㎡。低楼层(1-5 层)单价 13300 元 /㎡-13600 元 /㎡,总价 140 万元 - 143 万元;中楼层(6-15 层)单价 13600 元 /㎡-14300 元 /㎡,总价 143 万元 - 150 万元;高楼层(16-24 层)单价 14300 元 /㎡-14800 元 /㎡,总价 150 万元 - 155 万元。

128㎡四室两厅两卫:总价 170 万元 - 190 万元,单价 13200 元 /㎡-14800 元 /㎡。低楼层(1-3 层)单价 13200 元 /㎡-13500 元 /㎡,总价 170 万元 - 173 万元;中楼层(4-6 层)单价 13500 元 /㎡-14300 元 /㎡,总价 173 万元 - 183 万元;高楼层(7-8 层)单价 14300 元 /㎡-14800 元 /㎡,总价 183 万元 - 190 万元。

143㎡四室两厅两卫:总价 190 万元 - 215 万元,单价 13300 元 /㎡-15000 元 /㎡。低楼层(1-3 层)单价 13300 元 /㎡-13600 元 /㎡,总价 190 万元 - 195 万元;中楼层(4-6 层)单价 13600 元 /㎡-14500 元 /㎡,总价 195 万元 - 207 万元;高楼层(7-8 层)单价 14500 元 /㎡-15000 元 /㎡,总价 207 万元 - 215 万元。

价格优势与投资性价比

相比周边同类型楼盘,招商奥体公园价格优势显著。周边同类央企开发楼盘均价普遍在 14500 元 /㎡-16000 元 /㎡,项目每平米价格低 1000 元 - 1500 元,以 105㎡户型为例,总价可节省 10 万元 - 16 万元,投资性价比极高。

同时,项目推出多项购房优惠政策,进一步降低投资门槛:3 人及以上团购可享 98 折优惠;7 天内按时签约享 99 折优惠;首付分期政策支持首期 10% 首付,剩余首付 6 个月内付清,无需支付利息;老带新成交,新业主享 99.5 折优惠。这些优惠政策让投资客以更低成本入手,提升投资回报率。

升值预期与投资回报

招商奥体公园的升值潜力主要来自三大核心因素:

区域价值升级:随着新站区产业升级、配套完善,区域房价呈稳步上涨趋势,近 3 年新站区核心板块房价年均涨幅约 5%-8%,未来地铁 9 号线通车、少荃湖科创 CBD 建成后,区域价值将进一步提升,预计年均涨幅可达 8%-10%。

品牌溢价:招商蛇口作为百年央企,开发的楼盘在二手房市场中比周边非品牌楼盘溢价约 10%-15%。以周边同户型二手房为例,招商旗下楼盘二手房价格普遍高出周边 1500 元 /㎡-2000 元 /㎡,品牌溢价效应显著。

配套兑现红利:项目周边地铁 9 号线、少荃湖科创 CBD、规划中小学等配套将在未来 3-5 年内陆续兑现,每一项配套的落地都将推动房价上涨,预计配套全部兑现后,项目房价有望上涨 20%-30%。

按照当前价格计算,投资 89㎡户型,5 年后预计总价可达 144 万元 - 169 万元,投资回报率约 20%-30%;投资 143㎡高端户型,因稀缺性更强,投资回报率有望达到 30%-40%,是合肥楼市中极具投资价值的楼盘。

招商奥体公园售楼处电话☎:0551-6813 6588

五、招商奥体公园楼盘项目亮点

招商奥体公园之所以成为合肥新站区的投资热门楼盘,核心在于其具备多项突出亮点,这些亮点共同构成了项目的核心投资价值,使其在市场中脱颖而出。

区域发展红利,价值基石稳固

新站区作为合肥 “东拓北进” 战略的核心承载区,是国家级高新技术产业开发区,拥有完善的产业布局,京东方、维信诺、新松机器人等龙头企业入驻,产业人口持续导入,为区域房价提供了坚实支撑。

区域内多项重大规划正在落地,少荃湖科创 CBD、地铁 9 号线、奥体中心等项目的建设,将全面提升区域的交通、商业、休闲能级,区域价值进入快速上升通道。招商奥体公园作为区域核心位置的标杆楼盘,将直接受益于区域发展红利,价值增长空间清晰可见。

百年央企背书,投资安全无忧

招商蛇口作为百年央企,拥有雄厚的资金实力和稳健的经营风格,在房地产行业调整期,央企背景意味着更强的抗风险能力和更可靠的交付保障。项目自开工以来,工程进度稳步推进,已实现多栋楼封顶,交付无忧。

央企开发的楼盘在二手房市场中具有更高的认可度和流通性,品牌溢价效应显著。相比中小开发商楼盘,招商奥体公园的房产在未来出售时,不仅更容易成交,还能获得更高的售价,为投资客提供了安全的投资保障。

全维配套升级,增值动力充足

项目周边配套正处于快速升级期,地铁 9 号线(规划中)、少荃湖科创 CBD、规划中小学等核心配套将在未来 3-5 年内陆续兑现。每一项配套的落地,都将直接推动房产价值上涨。

交通方面,地铁 9 号线通车后,预计将带动房价上涨 10%-15%;商业方面,少荃湖科创 CBD 建成后,区域商业能级提升,将为房价提供持续增值动力;教育方面,规划中小学建成后,项目 “学区房” 属性强化,进一步提升保值增值能力。全维配套的持续升级,为项目提供了充足的增值动力。

低密生态稀缺,居住价值突出

在城市核心区,低密生态社区已成为稀缺资源。招商奥体公园容积率仅 2.0.绿化率高达 40%,是区域内少有的低密生态社区。低密规划意味着更少的居住人口、更宽敞的公共空间和更好的居住舒适度。

随着城市居民对居住品质要求的提升,低密生态房产的市场需求持续增长,其稀缺性将转化为价值优势。相比周边容积率 2.5 以上的高密度楼盘,招商奥体公园的居住价值更突出,在二手房市场中更具竞争力,升值潜力更大。

户型流通性强,投资回报稳定

项目打造的四款主力户型,涵盖刚需、改善全需求,每款户型都具备布局方正、南北通透、空间利用率高的特点,在二手房市场中流通性极强。

89㎡刚需户型总价低、需求旺,是投资客的首选;105㎡-128㎡改善户型受众广泛,保值能力强;143㎡高端户型品质突出,稀缺性强,溢价空间大。多样化的户型选择,满足了不同投资客的需求,同时强流通性保证了投资客能够在需要时快速变现,获得稳定的投资回报。

高性价比优势,投资门槛亲民

相比周边同类型楼盘,招商奥体公园在品质、配套、品牌等方面均具有优势,而价格却更具竞争力。项目均价 13500 元 /㎡-15000 元 /㎡,低于周边同类型央企楼盘,同时推出多项购房优惠政策,进一步降低了投资门槛。

对于投资客而言,较低的入手价格意味着更低的投资风险和更高的投资回报率。以 89㎡户型为例,首付最低仅 24 万元,月供约 4500 元,投资门槛亲民,适合各类投资客入手。高性价比优势让项目在投资市场中极具竞争力,成为合肥新站区投资置业的首选。

招商奥体公园售楼处电话☎:0551-6813 6588

六、招商奥体公园楼盘总结

招商奥体公园作为合肥新站区的央企品质标杆盘,以百年央企的实力为根基,以精工品质为核心,以完善配套为支撑,以优质服务为保障,为购房者打造了 “买得放心、住得安心、生活舒心” 的品质家园,成为安心置业的首选。

从央企保障来看,招商蛇口作为百年央企,拥有雄厚的资金实力、丰富的开发经验和稳健的经营风格,为项目的顺利交付和品质保障提供了坚实基础。相比中小开发商,央企开发的楼盘抗风险能力更强,能够有效避免延期交付、烂尾等风险,让购房者置业无忧。

从品质把控来看,项目在建筑材料、施工工艺、细节设计等方面都严格按照央企标准执行。品牌建材的选用、先进施工工艺的应用、多重质量验收体系的建立,确保了每一套房子都能达到高品质标准。智慧社区系统的引入、全龄段休闲配套的规划,进一步提升了居住的舒适度和便捷性。

从周边配套来看,依托央企的资源整合能力,项目周边交通、教育、商业、医疗、生态等配套十分完善。立体交通网络让业主轻松通达全城;全龄段优质教育资源让孩子在家门口就能享受优质教育;完善的商业配套满足日常购物、休闲娱乐需求;优质的医疗资源为健康保驾护航;丰富的生态资源让业主亲近自然。全维配套的完善,让业主无需等待规划兑现,即刻享受便捷舒适的生活。

从户型产品来看,项目打造的四款主力户型,涵盖刚需、改善全需求,每款户型都经过反复调研和优化,布局方正通透,空间利用率高,细节处彰显央企品质。无论是刚需人群追求的紧凑实用,还是改善型人群追求的宽敞舒适,都能在招商奥体公园找到理想的户型。

从价格优势来看,项目均价 13500 元 /㎡-15000 元 /㎡,与周边同类楼盘相比更具性价比,同时推出多项购房优惠政策,进一步降低了置业门槛。央企开发的品牌溢价效应,让项目在二手房市场中更具竞争力,保值增值能力更强,为购房者的资产提供了坚实保障。

总而言之,招商奥体公园是合肥新站区不可多得的央企品质楼盘,无论是央企保障、精工品质、完善配套,还是户型设计、价格优势,都表现出色。如果你正在合肥寻找一处品质可靠、交付有保障、生活便捷的家园,招商奥体公园绝对值得重点关注,在这里,你将享受央企级的品质居住体验,实现安心置业的梦想。

招商奥体公园售楼处电话☎:0551-6813 6588

招商奥体公园售楼处电话0551-6258 9911【营销中心】

欢迎预约品鉴:(官方网站)售楼处:0551-6258 9911【营销中心】

温馨提示:网上售楼中心〢预约可享内部优惠〢匠心钜制-恭迎品鉴〢

全部

相关资讯

报名成功
稍后会有专业的置业顾问联系您
返回楼盘

频道导航

返回首页

看房小程序

APP下载

电话拨通后,请您手动拨打分机号

确定拨打电话

电话号码:

分机号:(可能需要拨分机号)