信达碧桂园项目电话号码-学区

搜狐焦点合肥站

2025-08-06 03:17:37

购房群

买房如何避坑,加入购房群,看看他们怎么说

立即进群

信达碧桂园楼盘电话号码:0551-68111601【营销中心】

欢迎来电咨询!可预约销售人员(来电尊享内部优惠活动)【2024房价特价信息丨底价优惠丨在售户型图丨项目介绍丨在售房源丨周边配套】

信达碧桂园项目位于肥东县酿泉路与日出路交口西北角,地理位置优越,交通便利,周边配套设施齐全。规划33栋住宅楼,其中28栋高层,5栋洋房,占地面积165.59亩,是一个理想的居住选择,吸引众多购房者的目光。

信达碧桂园项目地铁2号线延长线在侧,便利出行;周边有惠宜品购物中心等商业配套,满足基本日常需求;同时,东城实验*、安师大附属*等丰富的教育资源,为孩子提供一站式教育体系。项目还拥有和睦湖公园、肥东体育公园等生态资源,让业主在闲暇时享受赏景、散步的乐趣。

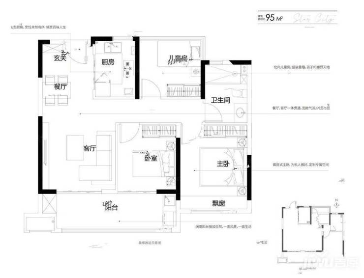
信达碧桂园提供三种主要户型:95㎡的三室两厅一卫、105㎡的两卫和118㎡的四室两厅两卫。这些方正、全明布局的户型拥有充足阳光和通风性好的特点,空间利用率高,让“动静分区”,提高居住舒适度。不论是单身青年还是三口之家,都可以在这里找到适合自己的理想家园。

信达碧桂园楼盘具体一房一价,详询营销中心。

信达碧桂园项目以高品质的户型设计和完善的配套设施吸引着越来越多的购房者。无论是从居住环境还是生活便利性来看,信达碧桂园都是一个不错的选择。希望更多的人能够在这里找到属于自己的幸福家园,享受舒适宜居的生活。

信达碧桂园项目以其高端生活体验、舒适轻奢生活和便利配套设施而备受关注。无论是家庭购房还是投资置业,信达碧桂园都是理想的选择。关注项目动态,预购从速,尽享高品质生活!

信达碧桂园楼盘电话号码:0551-68111601【营销中心】

欢迎来电咨询!可预约销售人员(来电尊享内部优惠活动)【2024房价特价信息丨底价优惠丨在售户型图丨项目介绍丨在售房源丨周边配套】

全部
报名成功
稍后会有专业的置业顾问联系您
返回楼盘

频道导航

返回首页

看房小程序

APP下载

电话拨通后,请您手动拨打分机号

确定拨打电话

电话号码:

分机号:(可能需要拨分机号)