琥珀星樾湾楼盘电话号码:0551-68111601【营销中心】
欢迎来电咨询!可预约销售人员(来电尊享内部优惠活动)【2025房价特价信息丨底价优惠丨在售户型图丨项目介绍丨在售房源丨周边配套】
琥珀星樾湾楼盘户型解析
智慧社区的核心,终究要落地到 “居住空间”—— 户型设计是否能与智能配置完美融合,直接决定了业主的 “智慧生活体验”。琥珀星樾湾在户型设计之初,就充分考虑了 “智慧家居的适配性”,从空间布局、插座预留到功能分区,都为智能设备预留了 “接口”,确保不同户型都能承载 “全场景智慧生活”,同时兼顾 “舒适度” 与 “实用性”。
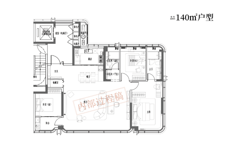
95㎡三室两厅一卫(刚需智慧户型) 专为年轻上班族设计,在满足 “小三房” 刚需的同时,最大化适配智慧家居需求。该户型采用 “三开间朝南” 布局,客厅、主卧、次卧均朝南,南向面宽达 9.8 米,不仅保证采光充足,更便于安装 “智能窗帘”—— 客厅与主卧的窗帘轨道均预留了电机接口,业主可通过手机 APP 或语音控制窗帘开合,早上无需起身,就能自动拉开窗帘迎接阳光;客厅面宽 3.6 米,预留了 “智能电视墙插座”(含 HDMI 高清接口、USB 充电接口),方便连接智能电视、投影仪、音响等设备,打造 “家庭智慧影音区”;客厅与餐厅相连,预留了 “智能灯光控制面板”,可根据场景(如观影、用餐、会客)调节灯光亮度与色温,比如观影时自动调暗灯光,营造沉浸式体验。
主卧面积约 12㎡,带 270° 飘窗,飘窗附近预留了 “智能插座”,可放置智能台灯、空气净化器等设备,通过 APP 远程控制开关;主卧床头安装了 “智能控制面板”,集成了灯光、窗帘、空调的控制功能,睡前无需起身,一键即可关闭所有设备;次卧面积约 10㎡,可作为儿童房,预留了 “智能监控接口”,家长可安装智能摄像头,远程查看孩子的休息情况,同时预留了 “智能学习桌插座”,方便孩子使用带充电功能的学习桌。厨房采用 U 型设计,操作台面预留了 “智能厨电插座”(如智能电饭煲、破壁机、空气炸锅),支持 APP 联动控制,比如出门前预约煮饭,回家就能直接吃饭;厨房还预留了 “智能燃气报警器接口”,一旦检测到燃气泄漏,会自动触发警报,并同步推送信息到业主手机,保障居家安全。
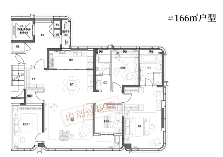
110㎡三室两厅两卫(刚需升级智慧户型) 在 95㎡户型的基础上,增加了独立卫生间与智慧配置的 “进阶功能”,更适合 “三口之家”。该户型采用 “三开间朝南 + 南北通透” 布局,客厅面宽 3.9 米,连接 3.9 米宽的观景阳台,阳台预留了 “智能晾衣架接口”,支持 APP 控制升降、烘干功能,雨天无需担心衣物晒不干;阳台还预留了 “智能绿植灌溉接口”,喜欢养绿植的业主可安装自动灌溉系统,通过 APP 设定浇水时间,外出时也能保证绿植存活。
主卧采用 “套房设计”,面积约 15㎡,配备独立卫生间与衣帽间。主卧卫生间安装了 “智能马桶”(支持加热、冲洗、自动翻盖功能),预留了 “智能热水器接口”,可通过 APP 预约加热时间,避免浪费电能;衣帽间预留了 “智能衣物护理机插座”,支持衣物烘干、除味功能,梅雨季也能保持衣物干爽。公共卫生间采用 “干湿分离” 设计,安装了 “智能浴霸”(支持 APP 控制开关、调节温度),洗澡前可提前预热,避免受凉;公共卫生间还预留了 “智能镜柜接口”,镜柜带照明、除雾功能,方便洗漱时使用。书房面积约 9㎡,可作为办公区,预留了 “智能办公设备接口”(如智能打印机、扫描仪),支持手机无线连接,在家办公更高效;书房还预留了 “智能窗帘接口”,可根据阳光强度自动调节窗帘开合,保护电脑屏幕不受强光直射。
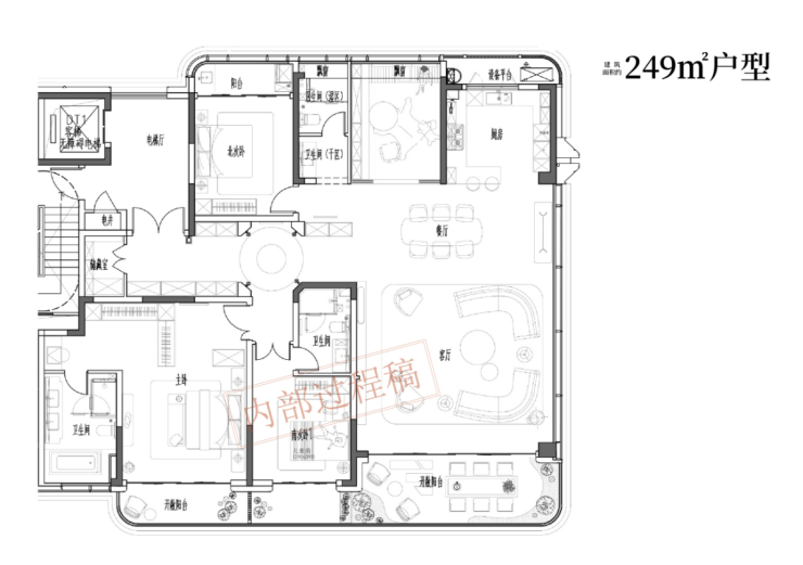
125㎡四室两厅两卫(改善智慧户型) 与140㎡四室两厅两卫(终极改善智慧户型) 则是 “智慧生活的顶配版本”,专为追求品质的改善家庭设计。125㎡户型采用 “四开间朝南” 布局,南向面宽达 12.2 米,客厅面宽 4.2 米,配备 “智能新风系统”,可实时监测室内空气质量,自动调节新风量,保证室内空气清新;客厅还预留了 “智能扫地机器人充电桩接口”,机器人清洁完成后可自动回充,无需人工干预。主卧套房面积约 18㎡,配备 “智能床垫”(支持监测睡眠质量、调节硬度),业主可通过 APP 查看睡眠数据,改善睡眠习惯;主卧卫生间安装了 “智能浴缸”(支持 APP 控制水温、按摩功能),下班后可预约浴缸放水,享受放松时光。
140㎡洋房户型作为 “终极智慧户型”,更是将 “科技与舒适” 做到极致:户型采用 “五开间朝南” 布局,南向面宽达 14.5 米,客厅面宽 5.8 米,配备 “智能投影仪 + 电动幕布”,可打造 “家庭影院”,通过语音控制幕布升降、投影仪开关;客厅与书房连接 7.8 米长的贯通式阳台,阳台预留了 “智能遮阳棚接口”,可根据阳光强度自动调节遮阳棚角度,避免强光直射室内;全屋配备 “智能温控系统”,可分区域调节温度(如客厅 26℃、卧室 24℃),既满足家人不同需求,又能节省空调费用;此外,140㎡户型还预留了 “全屋智能安防接口”,可安装门磁传感器、窗户传感器,一旦检测到门窗异常开启,会自动触发警报,并同步推送信息到业主手机,全方位保障居家安全。
无论是刚需户型还是改善户型,琥珀星樾湾都做到了 “智慧配置与空间布局的无缝融合”,让每一个户型都能承载 “便捷、安全、舒适” 的智慧生活,真正实现 “科技服务于人”。

琥珀星樾湾售楼处电话☎:0551-6813 6588

琥珀星樾湾售楼处电话☎:0551-6813 6588

琥珀星樾湾售楼处电话☎:0551-6813 6588

琥珀星樾湾售楼处电话☎:0551-6813 6588
琥珀星樾湾楼盘价格
在合肥,“智慧社区” 往往与 “高房价” 挂钩 —— 多数主打智慧配置的楼盘,均价普遍比同区域普通楼盘高 10%-15%。但琥珀星樾湾作为 “国企开发的智慧社区”,却打破了这一惯例,在提供 “全场景智慧配置” 的同时,保持了 “亲民的价格”,成为合肥包河区 “智慧盘性价比之王”。
从区域智慧盘价格对比来看,包河区 2024 年主打 “智慧社区” 的楼盘,均价普遍在 2.0-2.3 万 /㎡,比如位于包河大道附近的某民营智慧盘,高层均价 2.1 万 /㎡,洋房均价 2.3 万 /㎡,且部分智慧配置(如全屋智能控制系统)需要 “额外付费升级”;而琥珀星樾湾的均价仅 1.7-1.9 万 /㎡,不仅低于周边智慧盘 10%-20%,且所有智慧配置(如智慧安防、智慧出行、基础全屋智能系统)均为 “标配”,无需额外付费,相当于 “花普通楼盘的钱,享受智慧楼盘的配置”。
具体到户型价格,琥珀星樾湾的性价比优势更为明显:
刚需智慧户型:95㎡三室两厅一卫,单价 1.7-1.8 万 /㎡,总价约 160-171 万,首付最低 48 万(按 30% 首付计算),月供约 6000 元(按 LPR+20BP,贷款 30 年计算)。对比周边同面积智慧盘(总价约 180-190 万),一套房能省 20-19 万,相当于普通上班族 2-3 年的工资,且无需额外支付智慧系统费用。
刚需升级智慧户型:110㎡三室两厅两卫,单价 1.75-1.85 万 /㎡,总价约 192.5-203.5 万,首付最低 57.75 万,月供约 7200 元。该户型比 95㎡多一个卫生间,且智慧配置更丰富(如主卧智能控制面板、公共卫生间智能浴霸),性价比远超周边同类型智慧户型。
改善智慧户型:125㎡四室两厅两卫,单价 1.8-1.9 万 /㎡,总价约 225-237.5 万,首付最低 67.5 万,月供约 8500 元;140㎡洋房智慧户型,单价 1.85-1.95 万 /㎡,总价约 259-273 万,首付最低 77.7 万,月供约 9800 元。对比周边同面积洋房智慧盘(总价约 280-300 万),140㎡户型能省 21-27 万,且得房率高达 85%(周边智慧盘洋房得房率约 80%),实际使用面积更大,智慧配置更全面(如智能新风系统、全屋温控系统)。
更重要的是,琥珀星樾湾针对 “智慧社区” 购房者,推出了 “专属优惠政策”,进一步降低购房成本:
智慧配置礼包:即日起购房,可免费升级 “全屋智能进阶套餐”(含智能门锁、智能摄像头、智能音箱各 1 台),市场价值约 5000 元,无需额外付费;
付款优惠:全款购房享 97 折优惠,商业贷款享 98 折优惠,公积金贷款享 98.5 折优惠,且支持 “组合贷”,满足不同购房者的付款需求;
老带新奖励:老业主推荐新客户成交,老业主可获赠 “智慧社区运维年费”(价值 2000 元 / 年,含智能设备检修、系统升级服务),新客户可额外享 1% 房款优惠;
智慧特价房:每月推出 5 套 “智慧特价房”,主要为高层中间楼层,单价可低至 1.65 万 /㎡,且智慧配置不缩水,性价比更高。
从 “长期价值” 来看,琥珀星樾湾的智慧配置还能 “降低生活成本”:比如智能温控系统可节省 15%-20% 的空调电费,智能新风系统减少空气净化器使用成本,智能安防系统降低居家安全风险(如燃气泄漏、盗窃)。这些 “隐性节省”,进一步提升了项目的性价比。对于追求 “智慧生活” 的购房者而言,选择琥珀星樾湾,不仅能以低预算入手 “国企智慧盘”,还能长期享受 “科技带来的便捷与节省”,堪称 “明智之选”。

琥珀星樾湾售楼处电话☎:0551-6813 6588
琥珀星樾湾楼盘周边配套
全龄友好社区的核心,不仅在于 “社区内部的配套”,更在于 “周边配套能否与家庭需求深度契合”—— 孩子的教育、老人的医疗、全家的消费,都需要便捷的外部资源支撑。而琥珀星樾湾所处的包河区核心板块,恰好具备 “全龄化配套体系”,从 “0 岁到 80 岁” 的需求都能一站式满足,让 “家庭生活更便捷”。
全龄教育配套:从幼儿园到中学,家门口的优质教育对于有孩子的家庭,“教育便捷” 是核心需求,而琥珀星樾湾周边 3 公里内,形成了 “15 年一贯制优质教育圈”,覆盖 “幼儿园 - 小学 - 中学”,无需跨区择校,孩子上学更安全,家长更省心。
幼儿园:距离项目最近的是 “包河区实验幼儿园(花园大道分园)”,仅 500 米,步行 5 分钟可达。该园是公办一级幼儿园,师资稳定(教师均为本科以上学历,5 年以上教龄),收费合理(公办幼儿园月费约 500 元,远低于私立园),开设 “蒙氏启蒙班”“艺术兴趣班”,适合 0-6 岁孩子;此外,周边 1 公里内还有 “滨湖启明星幼儿园”“望湖城幼儿园” 等私立园,家长可灵活选择。
小学:项目划片范围大概率覆盖 “屯溪路小学(滨湖校区)”,距离约 1.2 公里,步行 15 分钟或骑行 5 分钟可达。该校是合肥 “名校集团” 核心校,由屯溪路小学本部直接管理,教学设施先进(配备多媒体教室、科学实验室、图书馆、室内体育馆),2023 年学生升学率位列包河区前三,且学校开设 “课后托管班”(17:30-18:30),解决家长 “下班晚接娃难” 的问题。
中学:对应 “合肥市第四十八中学(望湖校区)”,距离约 2 公里,可乘坐 14 路公交(2 站直达)或家长骑行接送。该校是合肥重点初中,2023 年中考普高录取率达 85%,远超全市平均水平(约 65%),学校注重 “素质教育”,开设篮球、舞蹈、编程等兴趣班,助力孩子全面发展。
此外,周边 3 公里内还有 “合肥工业大学附属中学”(高中)、“包河区青少年活动中心”(周末兴趣班),从 “启蒙教育” 到 “高中升学”,再到 “兴趣培养”,全阶段教育需求都能在家门口解决。
全龄医疗配套:从日常保健到大病诊疗,守护全家健康老人和孩子的 “医疗需求” 是家庭重点关注的问题,琥珀星樾湾周边 “二级医院 + 三级甲等医院 + 社区医疗” 全覆盖,确保 “小病不出社区,大病不跑远路”。
社区医疗:项目自带 “社区卫生服务站”(规划中,2025 年投入使用),将配备全科医生、护士各 2 名,可提供 “日常问诊、疫苗接种、慢性病管理” 服务,老人高血压、糖尿病随访,孩子疫苗接种,都无需跑大医院,步行即可解决;服务站还将开通 “家庭医生签约服务”,为老人、孩子建立健康档案,定期上门体检。
二级医院:距离项目 2 公里的 “包河区人民医院”,是综合性二级医院,开设内科、外科、儿科、妇产科、中医科等科室,配备 DR、B 超、化验室等基础医疗设备,日常感冒、发烧、儿童常见病、老人慢性病都能在此诊治,且医院人少、排队时间短,就医体验好。
三级甲等医院:5 公里内的 “安徽省立医院南区”,是合肥顶尖的综合医院,拥有心血管内科、肿瘤科、儿科、骨科等国家级重点专科,可满足 “大病诊疗、手术、重症监护” 需求。医院开通了 “线上挂号”“预约检查” 服务,可通过手机提前预约,避免排队;同时,医院与包河区人民医院建立 “医联体”,可实现 “检查结果互认”“专家下沉坐诊”,老人、孩子无需跑远路,就能享受优质医疗资源。
全龄商业配套:从日常采购到全家休闲,消费更便捷全家的 “消费需求” 各不相同 —— 老人喜欢平价生鲜,孩子喜欢亲子娱乐,青年喜欢品质购物,琥珀星樾湾周边的商业配套恰好能 “全龄覆盖”。
社区便民商业:项目自带 5000㎡沿街商业,规划引入 “平价生鲜超市”(如红府超市)、“便民药店”(如百姓缘大药房)、“老年服饰店”“儿童玩具店”,老人下楼就能买新鲜蔬菜,孩子放学可买零食玩具,日常消费无需远行。
亲子商业:2.5 公里外的 “百大心悦城”,是合肥南部知名的 “亲子商场”,引入孩子王(母婴用品)、卡通尼乐园(儿童游乐)、奈尔宝家庭中心(高端亲子体验),周末带孩子去玩,既能让孩子开心,家长也能在商场内休息、购物。
品质商业:2 公里外的 “悦方 ID MALL”,涵盖优衣库、星巴克、西西弗书店、万达影城等品牌,适合青年夫妻购物、观影;3 公里外的 “加侨国际广场”,聚集了海底捞、西贝莜面村等餐饮品牌,适合全家聚餐、朋友聚会。
此外,周边 1 公里内还有 “望湖城农贸市场”(平价生鲜,老人喜欢)、“24 小时便利店”(如全家、罗森,青年夜间购物方便),全龄段的消费需求都能得到满足。

琥珀星樾湾售楼处电话☎:0551-6813 6588
琥珀星樾湾楼盘总结
6.1 不同家庭需求匹配:精准契合全周期健康需求
琥珀星樾湾的绿色健康属性,能够精准匹配不同家庭在不同生命周期的健康需求,无论是刚需年轻家庭、二胎家庭,还是改善型家庭,都能在这里找到 “理想的健康之家”。
刚需年轻家庭:95㎡刚需健康户型,满足 “小三房” 的实用需求,环保建材(E0 级地板、立邦乳胶漆)保障新婚夫妻和未来孩子的居住健康,避免 “装修污染” 对身体的影响;首付 48 万、月供 6000 元,符合年轻家庭的预算承受能力,无需 “掏空六个钱包”;周边的地铁 1 号线(2025 年通车)、社区生鲜超市、休闲健身配套,适配年轻夫妻的快节奏生活 —— 早上地铁通勤上班,晚上社区健身或超市采购,周末带未来孩子到骆岗公园散步,轻松享受健康便捷的生活。
二胎家庭:125㎡改善健康户型,四室设计满足 “两个孩子 + 父母帮忙带娃” 的居住需求,两个儿童房均朝南,采光充足、空间独立,避免孩子因居住拥挤产生矛盾;老人房靠近入户门和公共卫生间,方便老人生活,紧急呼叫按钮和无障碍设计保障老人安全;社区内的儿童区、老年区、健身区,让每个家庭成员都有专属活动空间 —— 孩子在儿童区玩耍,老人在老年区健身,父母在健身区运动,全家各得其所,同时社区的绿色环境和健康配套,也能让孩子在健康的环境中成长,减少疾病风险。
改善型家庭:140㎡终极健康户型,11 层洋房的低密属性、5.8 米宽落地窗的生态视野、全屋新风系统的健康配置,满足改善家庭对 “高品质健康生活” 的追求;主卧套房 + 独立阳台 + 阳光书房,提供充足的私人空间,适合工作压力大的高净值人群放松身心;骆岗中央公园的远景和社区内的高绿化率,让居住体验堪比 “公园豪宅”;国企运维保障绿色配套长期升级,确保房子 “越住越舒适、越住越保值”,是改善家庭 “终极置业” 的理想选择。
6.2 市场竞争力:绿色健康盘里的 “性价比天花板”
在合肥包河区的绿色健康盘市场中,琥珀星樾湾凭借 “国企保障、高性价比、全配套” 的组合优势,成为 “性价比天花板”,远超同类竞品。当前包河区的绿色健康盘,主要存在三大痛点:一是 “民营盘减配风险”,部分民营绿色盘交付时存在建材品牌更换、健康配套停用等问题,业主维权困难;二是 “高端盘价格过高”,定位豪宅的绿色盘均价超 2.4 万 /㎡,刚需和普通改善家庭难以承受;三是 “远郊盘配套不足”,部分绿色盘位于远郊,周边缺乏商业、医疗、教育配套,入住后生活不便。而琥珀星樾湾完美解决了这些痛点:
国企开发,无减配风险:琥珀置业作为合肥本土国企,资金链稳定,工程质量和交付有保障,绿色健康配置全程透明,避免 “概念炒作” 和 “交付减配”;
均价 1.7-1.9 万 /㎡,性价比高:低于周边同类绿色盘 10%-20%,且所有绿色健康配置均为标配,无需额外付费,刚需和改善家庭均能承受;
主城核心,全配套覆盖:位于包河区主城,周边地铁、商业、教育、医疗、生态配套成熟,入住即可享受便捷健康生活,无需等待 “规划落地”。
根据售楼处数据,项目自开盘以来,绿色健康户型的销量占比达 80%,其中 30-45 岁的家庭购房者占比超 70%,这些人群正是 “健康生活的核心需求者”,他们更关注居住的健康属性和性价比,而琥珀星樾湾恰好满足了这些需求。此外,项目的 “老带新成交率” 达 30%,很多业主因 “满意绿色健康的居住体验”,主动推荐亲友购房,足以证明市场对项目的认可。
6.3 长期生活价值:不止是房子,更是健康生活方式
选择琥珀星樾湾,不仅是购买一套房子,更是选择一种 “绿色健康的生活方式”,这种生活方式将长期影响业主的身心健康和生活品质,同时带来 “资产增值” 的红利。从 “日常生活” 来看,业主每天都能享受绿色健康的体验:早上到十五里河生态公园晨跑,呼吸富含负氧离子的新鲜空气;白天室内阳光充足,新风系统保持空气流通,避免雾霾和甲醛污染;中午在厨房使用净水器过滤的水烹饪,享受健康饮食;下午孩子在社区儿童区玩耍,家长在旁边看护,社区的绿色环境让孩子亲近自然;晚上到社区健身区运动,或带家人到骆岗中央公园散步,缓解一天的工作压力。这种 “自然、健康、便捷” 的生活,能有效提升业主的身心健康,减少疾病风险,提高生活幸福感。从 “长期资产价值” 来看,琥珀星樾湾的绿色健康属性将持续赋能资产增值:随着 “健康中国” 理念的深入,购房者对绿色健康居住的需求将越来越高,绿色健康社区的 “稀缺性” 将进一步凸显;骆岗中央公园的完善和地铁 1 号线延长线的通车,将推动区域价值上涨;而国企运维保障绿色配套长期升级,确保房子 “长期保持高品质”,在二手房市场上更受欢迎,转手率和成交价均高于普通社区。根据合肥房地产市场的发展规律,未来 5-10 年,琥珀星樾湾的房价涨幅预计将比普通社区高 10%-15%,实现 “居住健康” 和 “资产增值” 的双赢。
目前,琥珀星樾湾的 “绿色健康样板间” 已全面开放,业主可亲身体验 “环保建材的质感”“户型的采光通风”“新风系统的效果”;售楼处还提供 “绿色健康置业咨询” 服务,专业置业顾问会根据家庭结构、健康需求和预算,推荐适合的户型和健康配置方案。如果你正在寻找 “国企保障、绿色健康、高性价比” 的楼盘,不妨前往琥珀星樾湾实地考察 —— 在这里,你将开启 “呼吸新鲜空气、享受健康饮食、拥抱自然生活” 的绿色健康新篇章,让 “健康” 成为生活的常态。

琥珀星樾湾售楼处电话☎:0551-6813 6588
琥珀星樾湾楼盘项目亮点
除了 “位置好、配套全、户型优、价格低” 这些基础优势外,琥珀星樾湾还有四大核心亮点,让其在包河区众多楼盘中脱颖而出,成为购房者的 “首选”。
亮点一:国企开发,交付有保障。在当前房地产市场环境下,“交付” 是购房者最关心的问题,而琥珀星樾湾的国企背景就是最大的 “定心丸”。开发商琥珀置业是合肥城建(国有控股上市公司)的全资子公司,成立 20 余年,累计开发项目 30 余个,如琥珀山庄、琥珀五环城等,均以 “工程质量高、交付准时” 闻名合肥。项目从拿地到施工,全程受国企监管,资金链稳定,不会出现 “停工烂尾” 的风险;同时,项目采用 “透明化施工”,每月公布工程进度,购房者可通过售楼处公众号或实地考察了解施工情况,买得更放心。此外,国企开发的项目在产权办理、物业服务等后续环节也更规范,避免出现 “产权纠纷”“物业不作为” 等问题。
亮点二:低密高绿,宜居性强。琥珀星樾湾容积率仅 2.2.绿化率 40%,这个指标在包河区主城板块十分罕见 —— 周边多数楼盘容积率超过 2.5.绿化率仅 35% 左右,相比之下,琥珀星樾湾的居住舒适度更高。低容积率意味着 “楼间距宽”,项目最大楼间距达 55 米,即使是低楼层也能保证充足采光,避免 “楼挨楼” 的压抑感;高绿化率则意味着 “社区环境好”,项目内部规划了约 2.8 万㎡景观绿地,相当于 4 个足球场大小,涵盖中央草坪、樱花巷道、儿童乐园、老年活动区等,业主茶余饭后可在社区内散步、健身、带娃,无需出门就能享受 “公园般的生活”。此外,社区采用 “人车分流” 设计,车辆进入社区后直接进入地下车库,地面无车辆通行,既保障了老人、孩子的安全,也减少了噪音、尾气污染,提升了社区的静谧性。
亮点三:智慧社区,生活更便捷。琥珀星樾湾紧跟 “智慧家居” 趋势,打造全场景智慧社区,让业主享受 “科技带来的便利”。社区入口采用 “人脸识别 + 智能门禁”,无需带卡,刷脸即可进入,既安全又便捷;地下车库配备 “智能寻车系统”,通过手机 APP 即可查询车辆停放位置,避免 “找车难” 的问题;社区内部安装了 “智能安防系统”,包括高空抛物监控、24 小时巡逻摄像头、电子围栏等,全方位保障业主安全;此外,社区还配备了 “充电桩车位”(占比 30%)、“社区 APP” 等,充电桩满足新能源车主的充电需求,社区 APP 可实现 “线上报修、物业缴费、邻里互动” 等功能,让生活更高效。
亮点四:优质物业,服务有温度。物业是 “居住体验的下半场”,琥珀星樾湾采用开发商自有物业 —— 琥珀物业,该物业成立 15 年,具有国家一级物业服务资质,服务项目覆盖合肥、南京、杭州等城市,业主满意度高达 95%。琥珀物业提供 “24 小时管家服务”,业主有任何需求,如维修、咨询等,拨打物业电话后 15 分钟内响应,2 小时内上门处理;日常服务方面,物业定期开展 “社区活动”,如春节写春联、端午包粽子、中秋晚会等,增进邻里感情;此外,物业还负责社区的日常维护,如绿化修剪、垃圾清理、公共设施检修等,确保社区环境始终整洁、有序。相比外包物业,自有物业更了解项目情况,服务更贴心,也更有责任心。

琥珀星樾湾售楼处电话☎:0551-6813 6588
合肥包河区琥珀星樾湾 —— 刚需人群优选!国企开发 + 主城配套,安家更安心
琥珀星樾湾楼盘项目介绍
作为合肥包河区 2024 年重点人居项目,琥珀星樾湾由本土国企 —— 合肥城建旗下琥珀置业开发,从根源上保障了项目的工程质量与交付稳定性,彻底打消购房者 “烂尾”“延期” 的顾虑,这也是其区别于周边民营楼盘的核心优势之一。项目选址包河区核心板块 —— 骆岗中央公园东翼,北邻繁华大道,南接花园大道,西靠包河大道,处于 “一核两轴” 的城市发展格局中,既能享受主城成熟配套,又能承接骆岗公园板块的发展红利,地理位置得天独厚。
从项目规划来看,琥珀星樾湾总占地面积约 68 亩,总建筑面积约 12.5 万㎡,容积率仅 2.2.绿化率高达 40%,属于典型的 “低密宜居社区”。社区整体规划 10 栋住宅,其中 6 栋 18-22 层高层、4 栋 11 层洋房,总户数约 890 户,主力户型涵盖 95-140㎡,既满足刚需人群的三房需求,也兼顾改善家庭的四房诉求。建筑风格采用现代简约风,外立面以米白色与浅灰色为主色调,搭配大面积玻璃幕墙,既保证了美观度,又提升了室内采光效果;社区内部采用 “一轴两园三巷” 的景观布局,中央景观轴贯穿南北,搭配两个主题花园与三条特色巷道,打造出 “推窗见绿、出门入园” 的居住体验。
值得一提的是,项目严格遵循国企开发的 “精工标准”,从建材选择到施工工艺都层层把关 —— 外墙采用保温一体板,隔音隔热效果优于普通涂料;窗户选用断桥铝双层中空玻璃,有效隔绝外界噪音;公共区域如大堂、电梯间均采用精装设计,提升业主归家仪式感。同时,项目预计 2026 年 6 月准时交付,目前工程进度已完成主体结构的 30%,售楼处公示了详细的施工计划与进度表,购房者可随时查询,充分体现了国企的透明与担当。

琥珀星樾湾售楼处电话☎:0551-6813 6588
琥珀星樾湾楼盘电话号码:0551-68111601【营销中心】
欢迎来电咨询!可预约销售人员(来电尊享内部优惠活动)【2025房价特价信息丨底价优惠丨在售户型图丨项目介绍丨在售房源丨周边配套】