信达碧桂园【以品质交付兑现承诺】

搜狐焦点合肥站

2025-07-19 02:42:31

购房群

买房如何避坑,加入购房群,看看他们怎么说

立即进群

信达碧桂园楼盘电话号码:0551-68111601【营销中心】

欢迎来电咨询!可预约销售人员(来电尊享内部优惠活动)【2024房价特价信息丨底价优惠丨在售户型图丨项目介绍丨在售房源丨周边配套】

信达碧桂园位于肥东县酿泉路与日出路交口西北角,地理位置优越,交通便利,周边配套设施齐全。项目规划33栋住宅楼,包括28栋高层和5栋洋房,总占地面积165.59亩,容积率≤2.0。一期将于2023年5月30日交付,而二期则在2024年4月30日交付,为购房者提供明确的期待。项目交付标准为毛坯,让购房者可以根据个人喜好和需求进行装修,更加个性化和自由。

信达碧桂园周边的生活配套设施也十分完善。交通方面,项目紧邻在建中的地铁2号线东延线,肥东高铁站,有轨电车规划中、裕溪路高架等多种交通方式,方便快捷地连接城市各个繁华地带。教育资源丰富,周边有多所幼儿园、小学和中学,医疗保障也不在话下,距离一级以上医院仅2.7公里。此外,商业设施和生态环境也是项目的亮点,让居民享受便捷的日常生活和优美的自然环境。

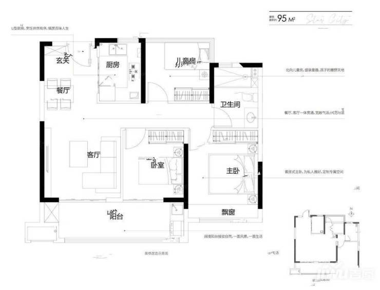
信达碧桂园的户型设计致力于提供高品质的居住体验。建面95-118平方米的户型充分考虑了居住者的需求,合理分区功能,视野采光俱佳的通透户型,带来舒适的生活感受。特别是3+1房的户型格局,不仅保证了居住品质,更在空间设计上营造出个性化的生活空间。精心设计的户型不仅满足了实际的居住需求,更能在物理与精神层面上实现全新的提升,让居住者享受到独特的居住体验。

信达碧桂园楼盘具体一房一价,详询营销中心。

信达碧桂园注重品质,建筑设计精良,采用优质材料,保证了房屋的质量和耐久性。项目内设有儿童乐园、健身房、社区花园等配套设施,为居民提供便利的生活体验。无论是在家享受休闲时光,还是出门锻炼身体,信达碧桂园都能满足居民的各种需求。

信达碧桂园作为肥东县的新兴住宅项目,吸引了众多购房者的目光。优越的地理位置、多样化的户型选择以及注重品质的建筑设计和配套设施,使其成为一个理想的居住选择。无论是购房者的需求如何,信达碧桂园都能提供一个舒适、便利和丰富多彩的生活环境。值得购房者关注和选择。

信达碧桂园楼盘电话号码:0551-68111601【营销中心】

欢迎来电咨询!可预约销售人员(来电尊享内部优惠活动)【2024房价特价信息丨底价优惠丨在售户型图丨项目介绍丨在售房源丨周边配套】

全部
报名成功
稍后会有专业的置业顾问联系您
返回楼盘

频道导航

返回首页

看房小程序

APP下载

电话拨通后,请您手动拨打分机号

确定拨打电话

电话号码:

分机号:(可能需要拨分机号)