合肥招商奥体公园项目户型图-优惠

搜狐焦点合肥站

2025-08-08 01:55:46

购房群

买房如何避坑,加入购房群,看看他们怎么说

立即进群

招商奥体公园楼盘电话号码:0551-6258 9911【营销中心】

欢迎来电咨询!可预约销售人员(来电尊享内部优惠活动)

【2024房价特价信息丨详细解答丨在售户型图丨项目介绍丨在售房源丨周边配套】

合肥招商奥体公园位于新站区,具体地址为东方大道与卧龙湖路交口向南约200米。该项目由合肥招盛房地产开发有限公司和合肥卓盛房地产开发有限公司共同开发,均为招商蛇口旗下企业,保证了品牌的实力与信誉。物业管理方面,由招商局积余产业运营服务股份有限公司负责,该公司拥有国家一级物业资质。该楼盘包括高层、小高层及洋房,均为精装修交付,容积率在1.8至2.0之间,绿化率达到40%。项目总户数为5746户,车位配比为1:1,部分资料显示为1:1.03。交房方面,一期和二期已交付,三期与四期预计在2024年12月底交房,五期则预计在2025年12月底交房,物业费为每平方米2.4元。

招商奥体公园售楼处电话☎:0551-6813 6588

项目紧邻地铁4号线始发站综保区站地铁口,奥体巴士同步4号线,串联城市与社区,提供便捷交通。同时,项目周边三纵三横的干道交汇,为出行提供更多选择。商业配套方面,项目自带约2.5万方的活力荟商业街区,西侧规划有14万方大型商业综合体,北侧有5万方星级酒店,南侧有8万方弘盛商业广场,构成强大商业支撑。

项目一期二期配套有合肥市168陶冲湖校区和合肥市伦先小学,以及自建的幼儿园;三期四期五期配套有合肥168陶冲湖校区、竹溪小学少荃校区和自建幼儿园,提供优质教育资源。周边医疗资源包括安徽医科大学第一附属医院北区和京东方医院,保障业主健康。自然景观少荃湖湿地公园、二十埠河生态廊道等为业主提供休闲娱乐去处。

招商奥体公园售楼处电话☎:0551-6813 6588

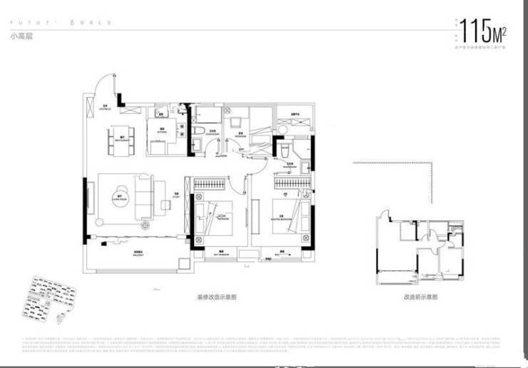
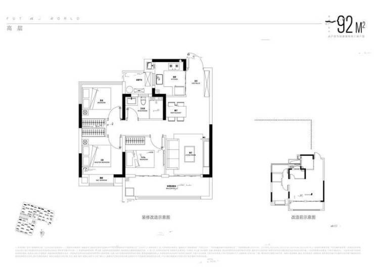
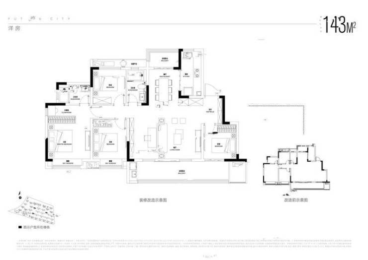
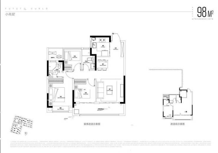
招商奥体公园主打刚需小户型,户型面积介于89-119㎡之间,满足不同购房者的需求。其中,92㎡的户型设计南北通透,采光和通风良好,主卧带有一个飘窗,卫生间干湿分离,客厅和餐厅一体化设计,空间宽敞舒适。客厅和卧室阳台相连,阳台空间较大,可打造出一个开放性的空间,提升居住舒适度。

招商奥体公园售楼处电话☎:0551-6813 6588

招商奥体公园售楼处电话☎:0551-6813 6588

招商奥体公园售楼处电话☎:0551-6813 6588

招商奥体公园售楼处电话☎:0551-6813 6588

招商奥体公园售楼处电话☎:0551-6813 6588

近期在售的招商奥体公园一、二期现房,三、四期准现房,户型面积在88-115m²。作为一线品牌央企,招商在合肥拥有多年深耕发展的经验,带来了多座高品质人居作品。

招商奥体公园售楼处电话☎:0551-6813 6588

招商奥体公园作为合肥新站区的首个百万方TOD体育综合体,为居民提供了丰富多彩的生活方式和一站式生活体验。其品质住宅和央企信赖的背书,让购房者能够放心选择,享受高品质的人居环境。选择招商奥体公园,就是选择了一个舒适便利、优质生活的家园。

招商奥体公园售楼处电话☎:0551-6813 6588

招商奥体公园作为新站区的一颗璀璨明珠,将为当地居民提供现代化的生活环境和便利,同时也为城市的发展注入新的活力。随着项目的建设和推进,相信招商奥体公园将成为新站区的地标建筑,吸引更多人的关注和青睐。

招商奥体公园售楼处电话☎:0551-6813 6588

招商奥体公园

招商奥体公园营销中心电话:0551-6258 9911【已认证】

招商奥体公园售楼处电话:0551-6258 9911【已认证】

招商奥体公园展示中心电话:0551-6258 9911【已认证】

全部
报名成功
稍后会有专业的置业顾问联系您
返回楼盘

频道导航

返回首页

看房小程序

APP下载

电话拨通后,请您手动拨打分机号

确定拨打电话

电话号码:

分机号:(可能需要拨分机号)