信达碧桂园项目户型图-优惠

搜狐焦点合肥站

2025-07-06 06:48:06

购房群

买房如何避坑,加入购房群,看看他们怎么说

立即进群

信达碧桂园楼盘电话号码:0551-68111601【营销中心】

欢迎来电咨询!可预约销售人员(来电尊享内部优惠活动)【2024房价特价信息丨底价优惠丨在售户型图丨项目介绍丨在售房源丨周边配套】

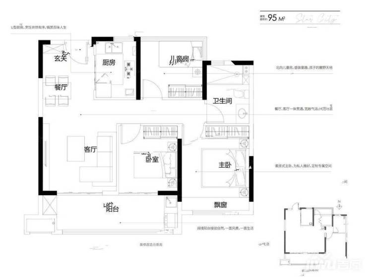
信达碧桂园项目位于肥东县酿泉路与日出路交口,规划住户2114户,整体绿化40%,容积率为2,是低密好社区。项目包括三室的95-105㎡和四室的118㎡户型,同时还会修建幼儿园和睦邻中心,小区物业费为2元/㎡/月,停车位达2359个。

信达碧桂园项目地铁2号线延长线在侧,便利出行;周边有惠宜品购物中心等商业配套,满足基本日常需求;同时,东城实验*、安师大附属*等丰富的教育资源,为孩子提供一站式教育体系。项目还拥有和睦湖公园、肥东体育公园等生态资源,让业主在闲暇时享受赏景、散步的乐趣。

信达碧桂园提供三种主要户型:95㎡的三室两厅一卫、105㎡的两卫和118㎡的四室两厅两卫。这些方正、全明布局的户型拥有充足阳光和通风性好的特点,空间利用率高,让“动静分区”,提高居住舒适度。不论是单身青年还是三口之家,都可以在这里找到适合自己的理想家园。

信达碧桂园楼盘具体一房一价,详询营销中心。

信达碧桂园注重品质,建筑设计精良,采用优质材料,保证了房屋的质量和耐久性。项目内设有儿童乐园、健身房、社区花园等配套设施,为居民提供便利的生活体验。这些配套设施不仅丰富了居民的生活,也提升了整个社区的居住品质。信达碧桂园将成为一个集舒适、便利和品质于一体的理想居住地。

信达碧桂园作为一个新兴的住宅项目,不仅地理位置优越,交通便利,周边配套设施齐全,而且在户型设计和质量保障上都有着很高的水准,为购房者提供了一个理想的家园选择。无论是单身青年还是三口之家,都能在这里找到满足自己需求的房屋,享受轻奢生活。信达碧桂园,值得入手!

信达碧桂园楼盘电话号码:0551-68111601【营销中心】

欢迎来电咨询!可预约销售人员(来电尊享内部优惠活动)【2024房价特价信息丨底价优惠丨在售户型图丨项目介绍丨在售房源丨周边配套】

全部

相关资讯

报名成功
稍后会有专业的置业顾问联系您
返回楼盘

频道导航

返回首页

看房小程序

APP下载

电话拨通后,请您手动拨打分机号

确定拨打电话

电话号码:

分机号:(可能需要拨分机号)