合肥伟星长城御澜道营销中心/位置/评价如何/全面介绍

搜狐焦点合肥站

2025-09-29 20:38:34

购房群

买房如何避坑,加入购房群,看看他们怎么说

立即进群

伟星长城御澜道楼盘电话号码:0551-6258 9911【营销中心】

欢迎来电咨询!可预约销售人员(来电尊享内部优惠活动)【2024房价特价信息丨底价优惠丨在售户型图丨项目介绍丨在售房源丨周边配套】

伟星长城御澜道项目位于瑶海老城,均价1.7万元/m²,面积110-143m²,地处繁华区域,对面就是万达商圈,出门即是行知本部,配套齐全。对于想要在瑶海老城置业的购房者来说,这个项目绝对是不可错过的首选之一。

伟星长城御澜道售楼处电话☎:0551-6813 6588

拟建2栋24层高层和1栋11层小高层,共计226套。虽然地块较小,但仍采取了纵向摆放的方式,南北无遮挡,确保了居住环境的采光和通风。外立面设计携手国际一线设计单位·拓观设计,采用非对称顶檐设计、南北公建化立面和大面积玻璃幕窗,打造出现代简约的建筑风格。

地下车库也是精心选材,入户大堂设计华丽,从效果图中可以看出项目注重品质和细节。整体来看,伟星长城御澜道项目不仅地理位置优越,周边配套完善,建筑设计精致,而且注重居住体验,是理想的居住选择。

伟星长城御澜道售楼处电话☎:0551-6813 6588

伟星长城御澜道位于瑶海区临泉东路以南、和县路以东,距2号线漕冲站直线距离约600米,距4号线站塘站直线距离约900米。临泉东路、北二环、长江中路串联合肥东西主城,铜陵路高架、东二环、郎溪路高架接连合肥南北动脉交通网。商业方面,对面就是瑶海万达,周边有长江180、瑶海天街、东城广场、万象汇(在建),商业配套醇熟。

教育方面,行知本部(初中)距离御澜道直线距离约600m,近6年来综合排名位列合肥初中前列。周边还有合肥众望中学、和平小学教育集团郎溪路小学、合肥市行知小学等,教育资源浓厚。生活配套设施齐全,购物、餐饮、娱乐等一应俱全,为居民提供便利的生活环境。

伟星长城御澜道售楼处电话☎:0551-6813 6588

伟星长城御澜道项目作为瑶海老城的一处高品质地产选择,不仅在区位上具有优势,还在建筑设计和配套设施等方面做到了极致。对于想要置业或者投资的购房者来说,这个项目无疑是一个不容错过的选择。选择伟星长城御澜道,将为您带来舒适、便利和品质生活。

伟星长城御澜道售楼处电话☎:0551-6813 6588

伟星长城御澜道楼盘具体一房一价,详询营销中心。

伟星长城御澜道售楼处电话☎:0551-6813 6588

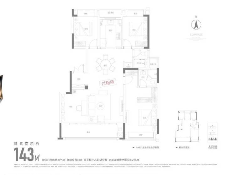
110-143m²主打刚改+改善的户型设计。以122m²三室两厅两卫为例,动静分区明显,厨房、客厅、餐厅在西边,卫生间和卧室集中在东边,每个卧室都配有飘窗。然而客厅区域的厨房侧向通风,南北通风、采光效果会稍显不足。143m²三室两厅两卫户型中,三个卧室+一个书房,书房可自行改造,主卧设有衣帽间,但三个卧室均朝北,采光稍昧。

伟星长城御澜道售楼处电话☎:0551-6813 6588

伟星长城御澜道售楼处电话☎:0551-6813 6588

伟星长城御澜道售楼处电话☎:0551-6813 6588

伟星长城御澜道楼盘电话号码:0551-6258 9911【营销中心】

欢迎来电咨询!可预约销售人员(来电尊享内部优惠活动)【2024房价特价信息丨底价优惠丨在售户型图丨项目介绍丨在售房源丨周边配套】

全部
报名成功
稍后会有专业的置业顾问联系您
返回楼盘

频道导航

返回首页

看房小程序

APP下载

电话拨通后,请您手动拨打分机号

确定拨打电话

电话号码:

分机号:(可能需要拨分机号)