肥东信达碧桂园项目现房还是期房?什么时候交房?

搜狐焦点合肥站

2025-06-22 12:14:06

购房群

买房如何避坑,加入购房群,看看他们怎么说

立即进群

信达碧桂园楼盘电话号码:0551-68111601【营销中心】

欢迎来电咨询!可预约销售人员(来电尊享内部优惠活动)【2024房价特价信息丨底价优惠丨在售户型图丨项目介绍丨在售房源丨周边配套】

信达碧桂园位于肥东县酿泉路与日出路交口西北角,地理位置优越,交通便利,周边配套设施齐全。项目规划33栋住宅楼,包括28栋高层和5栋洋房,总占地面积165.59亩,适合居住。交付时间分为一期和二期,分别为2023年5月30日和2024年4月30日,为购房者提供明确期待。交付标准为毛坯,让购房者更加个性化和自由地进行装修。

项目毗邻地铁2号线延长线,便利业主的日常出行;拥有惠宜品购物中心等繁华商业配套,满足业主的基本日常生活需求;同时,周边还有东城实验*、安师大附属*等丰富的教育资源,为孩子提供一站式教育体系。此外,和睦湖公园、肥东体育公园等生态资源,让业主在闲暇时能够享受自然景观,放松身心。

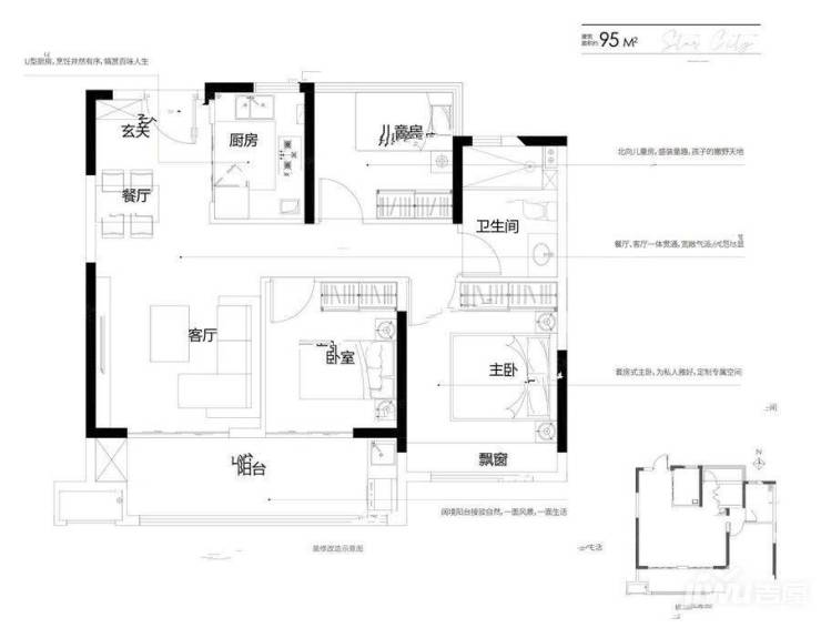
信达碧桂园在户型设计上,打造了三室两厅一卫的95㎡、两卫的105㎡和四室两厅两卫的118㎡房型,方正、全明布局,阳光充足、通风性好,空间利用率高,提高了业主的居住舒适度。无论是单身青年还是三口之家,都可以在这里找到适合自己的理想家园。这个面积范围可以满足不同购房者的需求,让每个家庭都能找到合适的居住空间。

信达碧桂园楼盘具体一房一价,详询营销中心。

在信达碧桂园项目中,醇熟的配套设施和舒适的生活环境为业主带来了高品质的居住体验。无论是规划合理的社区环境,还是优质的房型设计,亦或是便捷的生活配套,都让这个项目成为了一个值得期待和选择的理想之地。关于项目的更多信息和动态,建议有意购买的业主及时关注并预订。选择信达碧桂园,将为您的生活带来一份轻奢享受,值得期待!

信达碧桂园作为一个新兴的住宅项目,不仅地理位置优越,交通便利,周边配套设施齐全,而且在户型设计和质量保障上都有着很高的水准,为购房者提供了一个理想的家园选择。无论是单身青年还是三口之家,都能在这里找到满足自己需求的房屋,享受轻奢生活。信达碧桂园,值得入手!

信达碧桂园楼盘电话号码:0551-68111601【营销中心】

欢迎来电咨询!可预约销售人员(来电尊享内部优惠活动)【2024房价特价信息丨底价优惠丨在售户型图丨项目介绍丨在售房源丨周边配套】

全部

相关资讯

报名成功
稍后会有专业的置业顾问联系您
返回楼盘

频道导航

返回首页

看房小程序

APP下载

电话拨通后,请您手动拨打分机号

确定拨打电话

电话号码:

分机号:(可能需要拨分机号)