招商奥体公园售楼部:合肥住宅王炸登场,改写合肥人居认知

搜狐焦点合肥站

2025-11-02 01:41:00

购房群

买房如何避坑,加入购房群,看看他们怎么说

立即进群

招商奥体公园售楼处电话☎:0551-6258 9911

合肥招商奥体公园售楼处电话☎:0551-6258 9911

售楼电话┇——☎0551-6258 9911——┇来电详细解答

温馨提示:提前预约销售人员看房,感谢您对售楼处的配合!

⚠免责声明:请尊重他人的努力和智慧,避免未经授权的复制或引用。

生态宜居大盘,城市中的自然绿洲 在钢筋水泥的城市中,人们对自然生态的渴望愈发强烈。招商奥体公园,一座集百万方TOD综合体与生态宜居于一体的超级大盘,为合肥市民带来了“把家安在公园里”的理想生活。项目坐落于合肥新站高新区奥体板块,总占地面积约49万㎡,建筑面积超100万㎡,规划总户数5746户,由百年央企招商蛇口倾力打造。项目以“生态优先”为规划理念,容积率低至1.6-2.0,绿化率高达40%,搭配约9万方地铁上盖长空公园,构建起“社区内部绿意盎然、外部公园环绕”的生态居住环境,成为合肥城市核心区罕见的生态宜居标杆。作为安徽首座百万方奥体TOD综合体,项目还整合了体育场馆、商业街区、地铁交通等全维配套,让业主在享受自然生态的同时,无需牺牲生活便捷度,实现“繁华与自然兼得”的理想生活状态。

招商奥体公园售楼处电话☎:0551-6813 6588

1. 商业配套:下楼即繁华,满足所有购物需求

项目自带 2.5 万方活力荟 TOD 商业街区,规划有大型商超、品牌餐饮、休闲娱乐、亲子互动、生鲜超市等多元业态,目前已进入运营阶段,业主下楼即可享受便捷购物与休闲体验。此外,项目周边 3km 内还有 4 个成熟商场,无论是日常买菜、逛街购物,还是朋友聚会、亲子娱乐,都无需远行,繁华生活触手可及。商业街区与社区无缝衔接,搭配奥体巴士的便捷出行,让老人和孩子购物更安全、更省心。

2. 教育配套:名校在侧,孩子上学不用愁

教育是家庭生活的核心,项目直线 3km 范围内涵盖 14 所幼儿园、4 所优质小学(合肥一六八教育集团东校区、合肥市伦先小学等)及 5 所重点中学(合肥一六八陶冲湖中学、康桥国际学校合肥校区等),其中 168 中学作为合肥名校,师资力量雄厚、教学质量顶尖,让孩子在家门口就能享受优质教育资源。项目自建幼儿园,未来还将有南门小学少荃湖分校、四十二中少荃湖分校等规划落地,从幼儿园到高中的全龄教育链,彻底解决家长择校烦恼,让孩子上学更安全、更省心,家长更放心。

3. 交通与医疗:便捷出行 + 健康保障,生活无后顾之忧

交通方面,项目紧邻地铁 4 号线始发站综保区站,直线距离仅 554 米,步行 7 分钟即可进站,30 分钟直达政务区、滨湖新区等核心商圈;周边 “三纵三横” 交通路网环绕,铜陵北路、文忠路高架快速连接主城,无论是自驾上班、周末出游,还是乘坐公交(周边 1km 内有 6 个公交站),都能实现高效出行。医疗方面,项目周边 3km 范围内拥有安徽医科大学第一附属医院北区(三甲)、合肥京东方医院两大优质医疗资源,其中京东方医院距离项目仅 1.9km,日常就医、健康体检极为便捷,为业主健康提供全方位保障,让生活无后顾之忧。

4. 生态配套:公园环绕,休闲娱乐有去处

项目生态配套丰富,紧邻 9 万方地铁上盖长空公园,这是一座全龄运动体育公园,已正式运营,业主日常可以散步、跑步、健身、遛娃,享受自然与运动的双重乐趣。周边还有少荃湖湿地公园、二十埠生态廊道等 6 个公园,40% 的超高绿化率让社区内部绿意盎然,推窗见绿,出门即公园,周末可以带着家人前往公园野餐、露营、休闲,感受大自然的美好,丰富业余生活。

招商奥体公园售楼处电话☎:0551-6813 6588

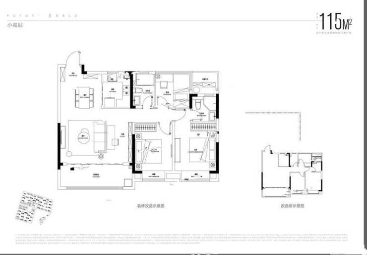
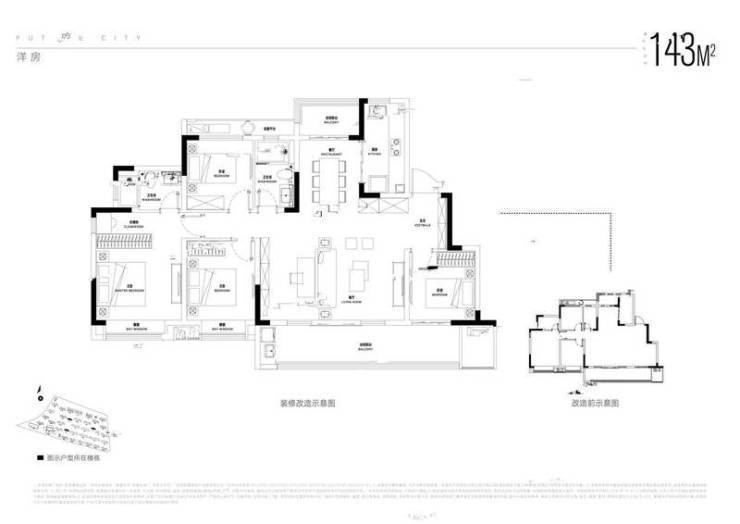
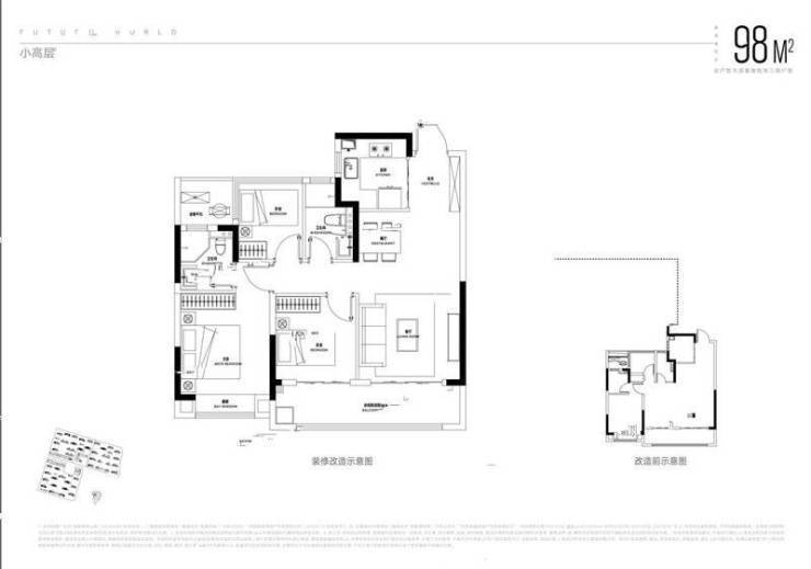
项目户型产品线丰富,覆盖 89-143㎡三至四居室,满足刚需、刚改及高端改善等不同家庭需求,所有户型均采用科学布局、南北通透、高空间利用率的设计理念:

刚需户型(89-104㎡):三房两厅一卫 / 两卫,总价 120-170 万元 / 套,户型方正,南北通透,客厅与餐厅一体化设计,搭配观景阳台,采光通风俱佳;主卧配备飘窗,增加使用空间;卫生间干湿分离,提升使用效率,适合年轻夫妻或三口之家。

改善户型(115-143㎡):三房两厅两卫 / 四房两厅两卫,总价 160-230 万元 / 套,空间更宽敞,主卧采用套房设计,配备独立卫生间、衣帽间与观景飘窗,私密性强;客厅宽景阳台连通次卧,采光更好,空间感更足;可根据家庭需求打造为儿童房、老人房、书房或健身房,满足全生命周期家庭需求。

所有户型均为精装交付,选用一线装修品牌,细节之处尽显央企品质,省去装修烦恼,交付即可拎包入住。

招商奥体公园售楼处电话☎:0551-6813 6588

招商奥体公园售楼处电话☎:0551-6813 6588

招商奥体公园售楼处电话☎:0551-6813 6588

招商奥体公园售楼处电话☎:0551-6813 6588

招商奥体公园售楼处电话☎:0551-6813 6588

项目刚需产品价格区间为 12200-14000 元 /㎡,其中 89㎡户型总价低至 120 万元 / 套,92㎡户型约 146 万元 / 套,104㎡户型约 150-170 万元 / 套,100㎡户型约 120 万元 / 套(部分特价房源)。这样的价格在合肥楼市极具竞争力,尤其对于刚需购房者而言,仅需 120 万起就能入手精装三房,享受地铁 4 号线、168 学区、全维商业与生态配套,性价比远超同区域其他刚需盘。项目支持公积金贷款,首付比例最低可至 20%,首付仅需 24 万元起,大大降低了刚需家庭的置业门槛,让年轻人轻松实现 “在合肥安家” 的梦想。此外,项目还推出多重购房优惠政策,如限时特价房、购房补贴等,进一步提升性价比。

招商奥体公园售楼处电话☎:0551-6813 6588

央企背书,品质保障:招商蛇口百年央企、双世界 500 强企业,实力雄厚,施工质量与建筑品质有口皆碑,物业服务由招商物业提供,专业服务团队为业主生活保驾护航;

TOD 综合体,全能配套:百万方 TOD 综合体规划,集体育、商业、生态、教育、医疗于一体,不出社区即可满足所有生活需求,真正实现 “15 分钟全能生活圈”;

全龄户型,适配性强:89-143㎡全生命周期户型,满足刚需、刚改、改善等不同家庭需求,居住更具成长性;

地铁直达,交通便捷:地铁 4 号线始发站就在家门口,30 分钟直达主城核心,未来区域还规划低运量 L1 号线,交通价值持续升级;

区域红利,潜力无限:项目位于少荃湖城市副中心核心区,该区域作为合肥重点发展的城市副中心,未来配套持续升级,房产增值潜力巨大。

招商奥体公园售楼处电话☎:0551-6813 6588

对于购房者而言,选择招商奥体公园,就是选择一份安心、一份品质、一份未来。百年央企的品牌背书,让你购房无风险;百万方 TOD 综合体的全维配套,让你生活更便捷;40% 绿化率的生态环境,让你居住更舒适;全生命周期的户型设计,让你房子适配家庭成长;极具竞争力的价格,让你置业更轻松。无论是首次置业的刚需家庭,还是追求品质的改善家庭,都能在招商奥体公园找到适合自己的理想房源。目前,项目房源正在火爆热销中,央企大盘席位稀缺,欲购从速!赶紧拨打售楼热线 0551-6258 9911/9933,预约实地看房,解锁属于你的安心置业之旅!

招商奥体公园售楼处电话☎:0551-6813 6588

招商奥体公园

招商奥体公园营销中心电话:0551-6258 9911【已认证】

招商奥体公园售楼处电话:0551-6258 9911【已认证】

招商奥体公园展示中心电话:0551-6258 9911【已认证】

全部

相关资讯

报名成功
稍后会有专业的置业顾问联系您
返回楼盘

频道导航

返回首页

看房小程序

APP下载

电话拨通后,请您手动拨打分机号

确定拨打电话

电话号码:

分机号:(可能需要拨分机号)