琥珀星樾湾楼盘电话号码:0551-68111601【营销中心】
欢迎来电咨询!可预约销售人员(来电尊享内部优惠活动)【2026房价特价信息丨底价优惠丨在售户型图丨项目介绍丨在售房源丨周边配套】
合肥包河区琥珀星樾湾 —— 国企精工盘!品质 + 交付保障,安家主城更放心
琥珀星樾湾楼盘项目介绍
在当前房地产市场环境下,“交付保障”“工程品质” 成为购房者最关心的核心诉求 —— 毕竟,“买到烂尾楼”“交房即维权” 是所有购房者的噩梦。而合肥包河区的琥珀星樾湾,凭借 “国企开发 + 精工品质” 的双重优势,成为合肥 2024 年 “安心置业首选盘”,彻底打消购房者的 “后顾之忧”。
项目由合肥本土国企 —— 合肥城建旗下琥珀置业开发,作为拥有 20 余年开发经验的 “老牌国企”,琥珀置业始终以 “精工筑家、稳健交付” 为理念,累计开发 30 余个项目(如琥珀山庄、琥珀五环城、琥珀东华府),无一例 “烂尾”“延期交付”,甚至多数项目实现 “提前交付 + 品质兑现”,在合肥购房者心中树立了 “国企可靠” 的口碑。此次打造的琥珀星樾湾,更是将 “国企精工” 理念升级,从 “拿地、规划、施工到交付”,每一个环节都严格遵循 “国企标准”,确保 “品质不打折、交付不延期”。
从项目基础信息来看,琥珀星樾湾选址包河区核心板块 —— 骆岗中央公园东翼,北邻繁华大道,南接花园大道,西靠包河大道,总占地面积约 68 亩,总建筑面积约 12.5 万㎡,容积率 2.2.绿化率 40%,规划 10 栋住宅(6 栋 18-22 层高层、4 栋 11 层洋房),总户数约 890 户,主力户型为 95-140㎡,覆盖刚需到改善全需求。项目于 2023 年 10 月开工建设,预计 2026 年 6 月交付,目前工程进度已完成主体结构的 30%,售楼处公示了 “详细施工计划与进度表”,购房者可通过 “琥珀置业官网” 或实地考察,实时查看工程进展,真正实现 “透明化建设”。
“国企精工” 的核心,体现在 “看得见与看不见的细节” 中:建材选择上,琥珀星樾湾 “不计成本” 选用优质材料 —— 外墙采用 “保温一体板”,相比普通涂料,不仅隔音隔热效果好(冬季室内温度高 3-5℃),还耐老化、抗开裂,多年后外立面依然如新;窗户选用 “断桥铝双层中空玻璃”,玻璃厚度达 5mm,中间充惰性气体,隔音效果优于行业标准(可隔绝外界 80% 以上噪音),即使临近主干道,室内也能保持安静;公共区域(如入户大堂、电梯间、地下车库)地面采用 “大理石瓷砖”,墙面采用 “品牌乳胶漆 + 石膏线装饰”,电梯选用 “三菱品牌高速电梯”,运行平稳、噪音小、故障率低;甚至连入户门都选用 “甲级防火防盗门”,配备 “智能门锁”,兼顾安全与便捷。
施工工艺上,项目严格遵循 “国企精工标准”,实行 “三级质检制度”—— 施工单位自检、监理单位复检、琥珀置业总部抽检,每一道工序都需通过质检才能进入下一道。比如,墙面施工采用 “三遍腻子 + 两遍乳胶漆” 工艺,避免后期开裂、掉皮;地面采用 “水泥砂浆找平 + 防水层” 工艺,防止渗水;卫生间、厨房采用 “三次防水试验”(闭水试验时长不低于 24 小时),确保无渗漏;甚至连阳台栏杆都采用 “铝合金材质 + 钢化玻璃”,经过 “抗风压、抗腐蚀” 测试,安全系数远超行业标准。此外,项目还引入 “智慧工地系统”,通过摄像头实时监控施工过程,确保施工规范,避免 “偷工减料”。
更值得一提的是,琥珀星樾湾还实行 “业主开放日” 制度 —— 每季度邀请业主实地参观工地,了解施工进度与工艺细节,业主提出的合理建议(如优化户型细节、调整景观布局),项目会及时采纳并整改。这种 “透明化、互动式” 的建设模式,让购房者 “亲眼看到品质、亲身感受进度”,进一步增强 “安家信心”。

琥珀星樾湾售楼处电话☎:0551-6813 6588
琥珀星樾湾楼盘周边配套
对于追求 “智慧生活” 的购房者而言,“社区内的智能配置” 只是基础,“周边配套与智慧生活的契合度” 同样重要 —— 毕竟,智慧生活不仅限于社区内部,更需要外部配套的 “协同支撑”。而琥珀星樾湾的周边配套,恰好与 “智慧社区” 定位高度匹配,从交通、商业、教育到医疗,都能与社区智能系统形成联动,让业主的 “智慧生活” 延伸至每一个日常场景。
智慧交通配套让通勤更高效 —— 项目紧邻地铁 1 号线延长线(规划中,2025 年通车)花园大道站,步行约 10 分钟即可到达。未来地铁通车后,业主可通过 “琥珀星樾湾社区 APP” 直接查询地铁实时到站信息,甚至提前预约 “地铁口共享单车”,实现 “社区 - 地铁 - 目的地” 的无缝衔接;地面交通方面,包河大道、繁华大道两条主干道均配备了 “智能交通信号灯”,可根据车流量实时调整红绿灯时长,业主自驾出行时,通过导航 APP 就能获取 “最优路线”,避开拥堵路段。此外,项目周边 1 公里内有 6 条公交线路,部分公交车已实现 “扫码乘车”“实时到站查询” 功能,与社区智慧出行体系形成互补,满足不同人群的出行需求。
智慧商业配套满足品质消费 —— 项目 3 公里范围内,悦方 ID MALL、百大心悦城、加侨国际广场三大商场均已实现 “智慧化运营”。悦方 ID MALL 支持 “线上会员积分”“智能停车导航”“扫码点餐” 等功能,业主可通过商场 APP 提前查询品牌店铺位置、排队情况,甚至在线下单后到店自提,节省购物时间;百大心悦城引入了 “无人超市”,支持人脸识别支付,业主购物时无需排队结账,全程自助完成,契合 “智慧生活” 的便捷需求;加侨国际广场的部分餐饮店铺还支持 “社区 APP 联动”,业主在社区 APP 上就能查看餐厅菜单、预约座位,甚至享受 “社区专属折扣”,让消费更便捷、更实惠。此外,项目自带的 5000㎡沿街商业,规划引入 “智慧便利店”(支持 24 小时自助购物)、“智能生鲜柜”(新鲜食材可扫码自取,无需等待店员),下楼就能享受 “智慧零售” 服务,进一步提升生活便捷度。
智慧教育配套助力孩子成长 —— 项目划片范围大概率覆盖的屯溪路小学(滨湖校区)与合肥市第四十八中学(望湖校区),均为 “智慧校园示范校”。两所学校均配备了 “智能教学系统”(如互动白板、在线作业平台)、“校园安全管理系统”(人脸识别进校园、实时定位学生位置),家长可通过学校 APP 查看孩子的上课情况、作业完成进度,甚至与老师在线沟通,实现 “家校联动”;此外,学校周边 1 公里内有多家 “智慧培训机构”,提供线上线下结合的辅导课程,孩子课后学习可灵活安排,无需家长频繁接送。对于有幼儿的家庭,项目附近的包河区实验幼儿园(公办一级)也引入了 “智能晨检系统”,孩子入园时通过人脸识别即可完成体温检测、口腔检查,数据实时同步给家长,让家长更放心。
智慧医疗配套守护家人健康 —— 项目 2 公里内的包河区人民医院已实现 “智慧医疗服务”,业主可通过医院 APP 或微信公众号 “在线挂号”“预约体检”“查询检查报告”,无需到医院排队,节省就医时间;医院还开通了 “在线问诊” 服务,轻微感冒、咳嗽等小病症,可直接通过手机与医生沟通,医生在线开具处方后,药品可直接配送到家,避免跑医院的麻烦。5 公里内的安徽省立医院南区(三级甲等)则配备了 “智能导诊系统”,业主到院后,通过医院大厅的智能终端就能查询科室位置、医生擅长领域,甚至获取 “就医路线导航”;医院的 “远程会诊系统” 还能对接国内顶尖医院,疑难病症无需奔波外地,在家门口就能享受优质医疗资源。这些智慧医疗配套,与社区内的 “健康监测设备”(如部分老年活动区配备的智能血压仪)形成联动,为业主的健康生活保驾护航。

琥珀星樾湾售楼处电话☎:0551-6813 6588
琥珀星樾湾楼盘户型解析
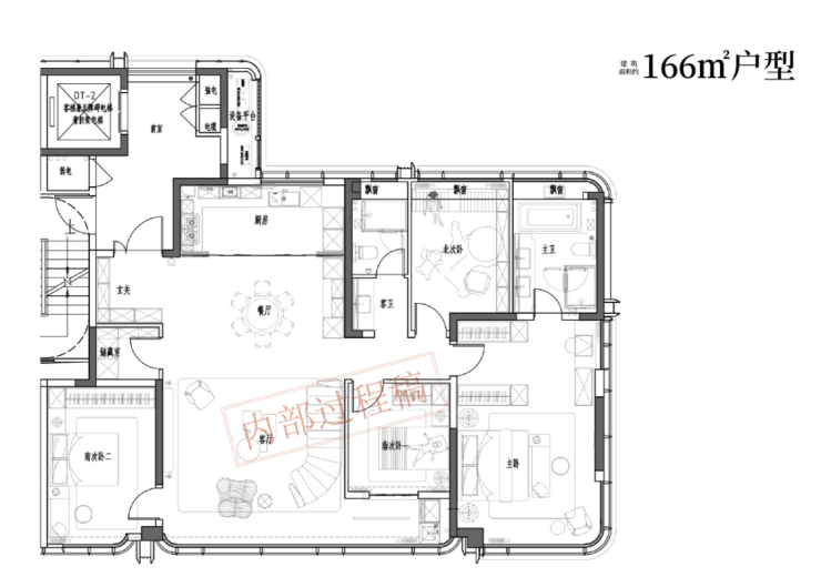
上班族对户型的需求,核心是 “实用、便捷、舒适”—— 既要满足 “休息、做饭、储物” 的基础需求,又要避免 “空间浪费”,还要兼顾 “偶尔招待朋友” 的需求。琥珀星樾湾针对上班族的 “通勤生活习惯”,设计了 95㎡、110㎡两款主力刚需户型,以及 125㎡改善户型,每一款都精准匹配不同阶段上班族的需求。
95㎡三室两厅一卫(单身 / 新婚上班族户型):小空间,高利用该户型专为 “单身上班族” 或 “新婚夫妻上班族” 设计,95㎡的紧凑空间,做到 “三室 + 全明”,无浪费面积,满足 “休息 + 办公 + 储物” 需求。户型采用 “三开间朝南” 布局,客厅、主卧、次卧均朝南,南向面宽达 9.8 米,确保 “休息区” 和 “活动区” 采光充足 —— 上班族白天上班,晚上回家需要 “明亮的空间” 缓解疲劳,客厅和主卧的充足采光,能让人心情更舒畅。客厅面宽 3.6 米,进深 4.5 米,餐客一体空间总面积约 16㎡,划分 “休息区”(摆放 L 型沙发 + 1.2 米茶几)和 “简易办公区”(靠近阳台一侧,摆放 1.2 米书桌),解决 “偶尔在家办公” 的需求 —— 下班后若有未完成的工作,可在书桌前处理,避免在床上办公影响休息;周末可在沙发上看电视、刷剧,放松身心。主卧面积约 12㎡,带 270° 飘窗,飘窗台面铺设大理石,可作为 “休闲区”—— 睡前坐在飘窗上看书、刷手机,或周末晒太阳,享受 “独处时光”;主卧摆放 1.8 米床 + 2 个床头柜 + 衣柜后,依然留有走动空间,不显得拥挤;衣柜采用 “顶天立地” 设计,储物空间充足,适合上班族存放四季衣物。次卧面积约 10㎡,可作为 “客房” 或 “储物间”—— 若有朋友偶尔来住,可摆放 1.5 米床;若暂时用不到,可改造成 “储物间”,存放行李箱、换季衣物、健身器材等,避免客厅杂乱。书房面积约 8㎡,可作为 “专属办公区” 或 “兴趣区”—— 摆放 1.2 米书桌 + 书柜,适合需要经常在家办公的上班族;或改成 “健身区”,摆放瑜伽垫、哑铃,下班后在家运动,无需去健身房。厨房采用 U 型设计,操作台面长达 2.8 米,“洗菜 - 切菜 - 炒菜” 动线合理,即使是 “厨房小白” 也能轻松操作;厨房预留了 “双开门冰箱位”(宽度 1.2 米),适合上班族储存速食、饮料、水果;厨房连接生活阳台,可放置洗衣机和杂物,保持厨房整洁。公共卫生间面积约 5㎡,做到 “干湿分离”,安装 “智能马桶”(支持加热、冲洗功能),冬天使用更舒适;卫生间预留了 “收纳柜” 位置,可存放洗漱用品、洗衣液等,避免台面杂乱;上班族早上洗漱、晚上洗澡,无需排队,使用便捷。
110㎡三室两厅两卫(三口之家上班族户型):功能全,更舒适该户型专为 “有孩子的上班族夫妻” 设计,在 95㎡户型的基础上,增加了一个卫生间,提升 “居住舒适度” 和 “私密性”,满足 “三口之家” 的生活需求。户型采用 “三开间朝南 + 南北通透” 布局,南向面宽达 10.5 米,客厅、主卧、次卧(儿童房)均朝南,北向为书房和厨房,空气对流性好,室内更干爽 —— 上班族平时没时间经常打扫,南北通透的户型能减少 “潮湿发霉”,降低家务负担。客厅面宽 3.9 米,进深 5 米,餐客一体空间总面积约 19.5㎡,划分 “家庭互动区”(摆放沙发、茶几、电视)和 “儿童游戏区”(靠近阳台,设置收纳式玩具柜)—— 下班后可陪孩子在游戏区玩耍,或全家一起看电视,增进亲子感情;周末可邀请同事、朋友来家聚餐,空间足够容纳 6-8 人。主卧采用 “套房设计”,面积约 15㎡,配备独立卫生间,满足上班族夫妻的 “私密性” 需求 —— 早上夫妻双方可同时洗漱,避免抢卫生间;晚上下班后可在独立卫生间泡澡放松,不影响孩子休息。主卧带 3.2 米宽飘窗,飘窗旁设置 “梳妆台”,女主人可化妆,男主人可在窗边看书,互不干扰;主卧衣柜采用 “步入式设计”,储物空间充足,可存放夫妻双方的衣物、配饰。儿童房面积约 11㎡,靠近主卧,方便上班族夫妻照顾孩子 —— 摆放 1.5 米床 + 书桌 + 衣柜,孩子可在房间学习、休息;房间预留了 “玩具收纳区”(墙面安装置物架),避免玩具散落客厅;儿童房朝南,采光充足,有利于孩子健康成长。书房面积约 9㎡,可作为 “上班族专属办公区”—— 摆放 1.4 米书桌 + 书柜,配备台灯、打印机,适合需要经常在家加班的上班族;书房与客厅之间采用 “玻璃隔断”,既能保持安静,又能看到客厅孩子的动态,兼顾 “工作” 与 “带娃”。公共卫生间面积约 5㎡,位于儿童房和书房之间,方便孩子和客人使用;卫生间做到 “干湿分离”,安装 “儿童马桶圈”(可拆卸)和 “洗手台台阶”(方便孩子自主洗漱),减少上班族的 “带娃负担”。厨房采用 L 型设计,操作台面长达 3.2 米,预留了 “嵌入式烤箱” 和 “洗碗机” 位置 —— 上班族周末可烤蛋糕、做饭,洗碗机则能减少 “洗碗时间”,多陪伴家人;厨房连接生活阳台,可放置洗衣机和烘干机,实现 “洗衣 - 烘干 - 收纳” 一站式处理,节省时间。
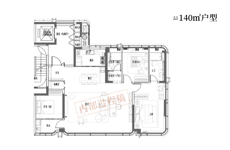
125㎡四室两厅两卫(改善型上班族户型):宽空间,高品质该户型专为 “工作多年、追求品质生活的上班族” 设计,125㎡的四室空间,适合 “三口之家 + 偶尔父母来住” 的需求,兼顾 “舒适” 与 “实用性”。户型采用 “四开间朝南” 布局,南向面宽达 12.2 米,客厅、主卧、儿童房、老人房均朝南,每个房间都有充足阳光;客厅面宽 4.2 米,搭配大落地窗,视野开阔,摆放 “大尺寸沙发 + 茶几 + 投影仪”,打造 “家庭影院”,下班后可享受 “沉浸式观影”;客厅与餐厅相连,总面积约 28㎡,周末可举办 “家庭聚餐” 或 “朋友派对”,空间宽敞不拥挤。主卧套房面积约 18㎡,配备独立卫生间(双台盆、浴缸、智能马桶)和步入式衣帽间 —— 双台盆设计,夫妻双方可同时洗漱;浴缸可在下班后泡澡放松,缓解工作压力;步入式衣帽间划分 “衣物区”“鞋子区”“配饰区”,收纳有序,避免杂乱。儿童房面积约 12㎡,带独立阳台,孩子可在阳台玩耍、种植绿植;房间预留了 “学习区” 和 “游戏区”,兼顾 “学习” 与 “娱乐”。老人房面积约 11㎡,靠近入户门,方便父母偶尔来住时进出;房间带飘窗,老人可在窗边晒太阳、看书;老人房与公共卫生间相邻,方便老人夜间上厕所。书房面积约 10㎡,作为 “上班族专属办公区”,配备 “老板桌”“书柜”“办公椅”,适合需要在家处理重要工作的上班族;书房还可改造成 “兴趣室”,摆放吉他、画板等,培养兴趣爱好,丰富生活。

琥珀星樾湾售楼处电话☎:0551-6813 6588

琥珀星樾湾售楼处电话☎:0551-6813 6588

琥珀星樾湾售楼处电话☎:0551-6813 6588

琥珀星樾湾售楼处电话☎:0551-6813 6588
琥珀星樾湾楼盘价格
对于上班族而言,“买房预算” 是核心考量 —— 既要 “通勤便捷”,又要 “价格亲民”,还要 “月供压力小”。而琥珀星樾湾作为 “地铁 1 号线沿线国企盘”,在满足 “通勤便捷” 的同时,价格极具竞争力,让上班族 “轻松安家主城”。

琥珀星樾湾售楼处电话☎:0551-6813 6588
琥珀星樾湾楼盘项目亮点
5.1 亮点一:国企背书的绿色健康,避免 “概念炒作”
当前房地产市场上,“绿色健康社区” 常被部分民营楼盘当作 “营销噱头”,实际交付时却存在 “环保建材减配、绿化缩水、健康配套停用” 等问题,让购房者 “买得失望、住得糟心”。而琥珀星樾湾由国企琥珀置业开发,从 “建设到交付” 全程透明可控,将 “绿色健康” 从 “概念” 落地为 “实际品质”,彻底打消购房者的顾虑。在 “建设阶段”,项目严格遵循 “国家绿色建筑二星级标准”,公示 “绿色建材清单” 和 “检测报告”—— 比如外墙保温一体板选用亚士创能品牌,每批次建材均提供 “质量检测报告”,并邀请业主代表参与 “建材进场验收”,确保建材品牌与承诺一致;社区绿化采用 “全冠移植” 技术,种植的香樟、桂花等乔木均为胸径 10cm 以上的成熟苗木,避免 “小树苗短期枯萎” 的问题,交付时即可呈现 “绿树成荫” 的景观效果。在 “交付阶段”,项目提供 “绿色建筑认证证书” 和 “室内空气质量检测报告”—— 业主收房时,可现场使用专业设备检测室内甲醛、苯、TVOC 等有害物质浓度,若检测结果不达标,项目将免费整改(如更换建材、加强通风),直至达标;社区内的健康配套(如新风系统接口、中央净水系统、健身器材)均会进行 “交付前调试”,确保正常使用,避免 “配套停用” 的问题。在 “后期维护阶段”,项目成立 “绿色社区运维团队”,专门负责绿色健康配套的长期维护 —— 团队每月对社区绿化进行修剪、浇水、施肥,每季度对中央净水系统、新风系统接口进行检修,每年对社区空气质量、水质进行检测,并将检测结果公示在社区 APP 上;此外,运维团队还会根据业主反馈,持续升级绿色配套,比如 2025 年计划在社区内增设 “太阳能充电座椅”“雨水回收灌溉系统”,进一步提升社区的绿色环保属性。这种 “国企兜底” 的保障,让 “绿色健康” 不再是 “短期营销手段”,而是 “长期居住承诺”。
5.2 亮点二:全场景健康联动,而非 “单一设备堆砌”
多数绿色盘的 “健康” 停留在 “加装几台设备”(如新风系统、空气净化器),缺乏系统性设计,无法形成 “全场景健康体验”。而琥珀星樾湾从 “业主日常动线” 出发,打造 “建材 - 社区 - 配套 - 户型” 的全场景健康联动,让健康融入居住的每一个环节。
归家场景联动:业主从骆岗中央公园散步回家,呼吸富含负氧离子的新鲜空气;进入社区后,通过 “人车分流” 的步行道,避免汽车尾气和噪音污染;走到单元门口,人脸识别开门(无需接触,减少细菌传播);进入电梯后,电梯内安装 “紫外线消毒灯”(每小时消毒 1 次),按钮旁配备 “免洗消毒液”;回到家中,新风系统自动开启,置换室内空气,厨房的净水器已过滤好可直接饮用的自来水 —— 从 “户外到室内”,每一个环节都体现健康关怀。
居住场景联动:白天,阳光通过户型的全明窗户照射室内,杀菌消毒,客厅的智能面板实时显示室内空气质量(PM2.5 浓度、甲醛含量),业主可根据数据调节新风系统档位;中午,在厨房使用集成灶烹饪,油烟快速排出,避免扩散至其他空间;下午,孩子在社区儿童区玩耍,家长在旁边的休闲椅上看护,儿童区的监控和紧急呼叫按钮确保孩子安全;晚上,业主在社区健身区运动,或带老人到十五里河公园散步,享受夜间的新鲜空气 —— 从 “白天到夜晚”,健康体验贯穿始终。
特殊场景联动:遇到雾霾天,社区 APP 会推送 “空气质量预警”,并自动提醒业主关闭窗户、开启新风系统;冬季流感高发期,社区卫生服务站会组织 “健康讲座”,教业主如何预防流感,并提供免费的流感疫苗接种预约服务;夏季多雨时,社区的雨水回收系统会收集雨水,用于灌溉绿化,减少水资源浪费 —— 从 “日常到特殊情况”,健康保障全方位覆盖。这种 “全场景联动”,让绿色健康不再是 “孤立的设备”,而是 “可感知的生活体验”。
5.3 亮点三:全龄化健康关怀,覆盖 “老中青少”
琥珀星樾湾的绿色健康设计,充分考虑不同年龄段业主的生理特点和健康需求,做到 “全龄适配”,让每个家庭成员都能在社区中找到适合自己的健康生活方式。
儿童健康关怀:针对儿童 “免疫力较低、活泼好动” 的特点,儿童房采用 “E0 级环保建材”(地板、涂料、家具均无甲醛污染),窗户安装 “限位器”(防止孩子攀爬坠落),墙面采用 “可擦洗涂料”(避免孩子涂鸦后难以清洁);社区儿童区种植 “无毒花卉”(如太阳花、雏菊),避免孩子接触有毒植物;儿童区地面铺设 5cm 厚的 EPDM 塑胶,即使孩子摔倒也不会受伤;儿童区还配备 “监控摄像头” 和 “紧急呼叫按钮”,家长可随时关注孩子动态,突发情况时可快速求助。此外,社区定期举办 “儿童健康活动”,如 “亲子植树日”“环保小卫士” 等,培养孩子的环保意识和健康习惯。
青年健康关怀:针对青年 “工作压力大、运动需求高” 的特点,社区规划 500 米夜光健身步道、户外羽毛球场、乒乓球台,满足青年 “日常运动” 需求;周边 2 公里内有专业健身房,业主可享受 “专属折扣”,参加瑜伽、动感单车等团体课程,缓解工作压力;户型预留 “健身角” 空间,业主可在家中放置健身器材,利用碎片化时间运动;社区 APP 还开设 “健康资讯板块”,推送 “职场健康小贴士”“运动饮食搭配” 等内容,帮助青年养成健康的生活习惯。
老年健康关怀:针对老人 “行动不便、需要特殊照顾” 的特点,社区内所有道路均设置 “无障碍坡道”(坡度≤1:12),单元门口安装 “无障碍扶手”,电梯内设置 “老年按键”(字体放大、高度降低至 1.2 米);老人房预留 “紧急呼叫按钮”(连接物业中控室和子女手机),突发情况时可一键求助;社区老年区配备 “适合老人的健身器材”(如太极揉推器、漫步机),器材扶手包裹软质材料,避免冬天冰冷;社区卫生服务站提供 “老人定期体检”“慢性病管理” 服务,医生每月上门为行动不便的老人测量血压、血糖,建立健康档案。此外,社区还开设 “老年大学”,设置书法、绘画、合唱等课程,丰富老人的精神文化生活,促进身心健康。
5.4 亮点四:绿色 + 生态 + 主城,三重红利叠加
琥珀星樾湾的 “绿色健康” 属性,与 “生态配套”“主城位置” 形成完美互补,实现 “绿色健康 + 生态资源 + 主城便捷” 的三重红利叠加,让项目的 “居住价值” 和 “资产价值” 远超普通绿色盘。
绿色 + 生态红利:项目紧邻骆岗中央公园、十五里河生态公园两大生态资源,骆岗公园作为亚洲最大的城市中央公园,是 “天然氧吧”,社区内 40% 的绿化率与外部生态形成 “内外联动”—— 业主在社区内可享受绿色健康的居住环境,走出社区即可进入公园,呼吸新鲜空气、进行户外健身,实现 “社区绿色 + 公园生态” 的双重健康体验。这种 “生态 + 绿色” 的组合,在合肥极为稀缺,也是项目区别于其他绿色盘的核心优势。
绿色 + 主城红利:项目位于包河区主城核心板块,周边交通、商业、教育、医疗配套成熟,避免了 “远郊绿色盘” 配套不足的问题 —— 地铁 1 号线延长线(2025 年通车)确保通勤便捷,三大商场满足购物需求,优质学校保障教育,顶尖医院守护健康。业主无需 “为了绿色健康牺牲便捷生活”,而是能 “在主城享受绿色健康生活”,这种 “主城 + 绿色” 的组合,极大提升了项目的居住舒适度和性价比。
绿色 + 地铁红利
:项目距离地铁 1 号线延长线花园大道站仅 800 米,地铁通勤不仅 “便捷”,还契合 “绿色环保” 理念 —— 地铁出行可减少汽车尾气排放,与社区的绿色健康属性相呼应;同时,地铁通车后将进一步提升项目的 “通勤优势” 和 “区域价值”,吸引更多追求 “绿色健康 + 便捷通勤” 的购房者,未来增值潜力巨大。这种 “三重红利叠加”,让琥珀星樾湾不仅是 “绿色健康社区”,更是 “宜居 + 增值” 的优质资产。

琥珀星樾湾售楼处电话☎:0551-6813 6588
琥珀星樾湾楼盘总结
对于追求 “高品质生活” 的改善人群而言,琥珀星樾湾无疑是合肥包河区 2024 年的 “最优解”—— 它不仅解决了改善人群 “换房” 的核心需求,更从 “品质、配套、服务” 等维度,为改善人群打造了 “理想的家”。
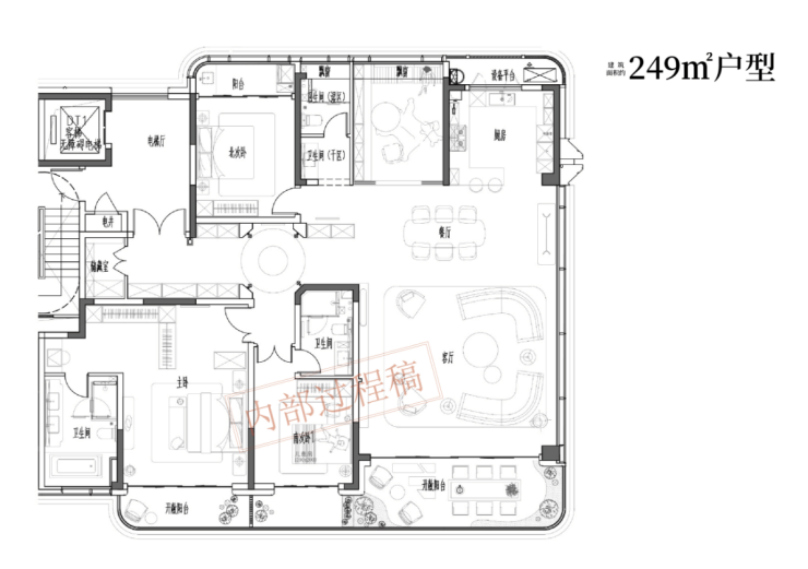
从 “改善需求匹配度” 来看,琥珀星樾湾完美契合了改善人群的四大核心诉求:一是 “空间升级”,125-140㎡洋房户型,四室设计,满足二胎家庭、三代同堂的居住需求,得房率高,空间宽敞舒适;二是 “环境升级”,低密社区、高绿化率、专属景观,远离拥挤与喧嚣,享受 “公园般的生活”;三是 “配套升级”,骆岗公园、高端商业、优质教育、顶尖医疗,满足改善人群对 “高品质生活” 的追求;四是 “保障升级”,国企开发、自有物业,确保房屋质量与后期服务,买得放心、住得安心。
从 “区域价值” 来看,琥珀星樾湾所处的包河区骆岗公园板块,是合肥未来的 “城市新客厅”,发展潜力巨大。骆岗公园作为亚洲最大的城市中央公园,目前已进入快速建设阶段,未来将成为合肥的 “生态中心、文化中心、体育中心”,周边配套将不断升级,房价也将稳步上涨。琥珀星樾湾距离骆岗公园仅 1.5 公里,是 “公园红利” 的直接受益者,无论是自住还是投资,都极具价值。
从 “市场竞争力” 来看,琥珀星樾湾在包河区改善市场中几乎没有竞争对手。目前包河区主城板块的改善楼盘,要么价格过高(洋房均价 2.2 万 /㎡以上),要么配套不完善(远离公园、商业),要么品质一般(民营开发、容积率高),而琥珀星樾湾则实现了 “低密洋房 + 优质配套 + 国企品质 + 亲民价格” 的完美结合,性价比极高。根据售楼处数据,项目洋房户型开盘后销量已突破 150 套,其中 80% 的购房者是 “改善型客户”,足以证明市场对其的认可。
如果你是改善人群,正在合肥包河区寻找 “高品质、高性价比” 的洋房项目,那么琥珀星樾湾绝对值得你重点关注。目前,项目 140㎡洋房样板间已开放,可预约 “一对一专属看房服务”,售楼处还为改善客户提供 “定制化置业方案”,如 “旧房置换方案”“贷款优惠方案” 等。想要在合肥主城享受 “低密洋房 + 公园生活” 的改善家庭,不妨前往琥珀星樾湾售楼处实地考察,相信这里会成为你 “理想的家”。

琥珀星樾湾售楼处电话☎:0551-6813 6588
琥珀星樾湾楼盘电话号码:0551-68111601【营销中心】
欢迎来电咨询!可预约销售人员(来电尊享内部优惠活动)【2026房价特价信息丨底价优惠丨在售户型图丨项目介绍丨在售房源丨周边配套】