招商奥体公园【合肥2024】丨营销中心电话→售楼中心→新站区新房

搜狐焦点合肥站

2024-10-14 15:02:20

购房群

买房如何避坑,加入购房群,看看他们怎么说

立即进群

招商奥体公园楼盘详情,详询:0551-68111210

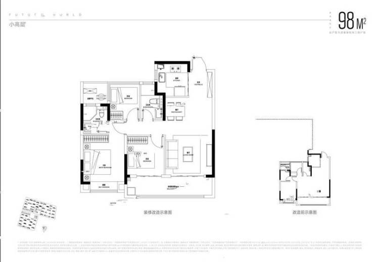
位于新站少荃湖板块的招商奥体公园项目备受关注。这个项目由招商蛇口开发,包含低密度多层、小高层、高层及花园洋房等多种住宅类型,容积率1.8,绿化率高于40%,建面89-119㎡。相比周边其他项目,招商奥体公园的价格相对更具性价比,吸引了不少购房者的关注。

项目周边有多条城市主干道穿行而过,如东方大道、文忠路、淮海大道、包公大道等,构建了立体TOD交通网络。项目紧邻地铁4号线始发站东方大道站,地铁3号线和规划中的9号线也穿行于项目周边区域,出行便捷。项目内规划有约3万方活力荟商业街区,满足居民日常购物、餐饮、娱乐等多元化需求,此外还紧邻鸿盛商业广场、百大商业广场等大型商业综合体。作为奥体TOD综合体项目,招商奥体公园还规划有体育主题商业配套,将运动、休闲、购物融为一体,为居民提供独特的消费体验。

教育资源方面,附近有竹溪小学、康桥国际学校、168分校陶冲湖东校区;项目周边医疗配套完善,有安徽医科大学第四附属医院、京东方数字医院等三甲医院;还有奥体公园、少荃湖湿地公园、陶冲湖公园等为居民提供了休闲娱乐的好去处。价格方面,招商奥体公园颇具性价比,目前均价在1.7万/㎡左右。对比周边二手房,绿地柏仕公园1.3万/㎡、旭辉公园府1.5万/㎡;周边新房乐富强湖光秋色花园1.4万/㎡,国贸璟原1.7万/㎡。

招商奥体公园包含低密度多层、小高层、高层及花园洋房等多种住宅类型,容积率为1.8,绿化率高于40%。建面介于89-119㎡之间,满足了不同购房者对于户型的需求。此外,项目还设有部分四室户型,面积达到143㎡,为大户型购房者提供了选择空间。

在合肥新房市场中,招商奥体公园项目的售价也较为合理。目前部分户型均价在1.35万/㎡至2万/㎡之间,性价比较高,让购房者觉得物有所值。这样的价格策略,吸引了更多的购房者选择入住,加速了项目的销售进程。同时也为购房者提供了更多选择的空间,让他们可以更好地满足自己对于居住环境的需求。

综上所述,招商奥体公园项目在合肥新房市场中崭露头角,成为备受瞩目的刚需“黑马”。其综合性规划、地理位置优越、价格合理的特点,让它成为购房者关注的焦点。未来,随着项目的逐步完工和居民的入住,相信招商奥体公园会成为新站区的一颗璀璨明珠,为当地居民带来更加美好和便利的生活体验。

招商奥体公园楼盘详情,详询:0551-68111210

全部

相关资讯

报名成功
稍后会有专业的置业顾问联系您
返回楼盘

频道导航

返回首页

看房小程序

APP下载

电话拨通后,请您手动拨打分机号

确定拨打电话

电话号码:

分机号:(可能需要拨分机号)