新站区招商奥体公园【楼盘价值分析报告-58同城】

搜狐焦点合肥站

2025-07-17 01:36:35

购房群

买房如何避坑,加入购房群,看看他们怎么说

立即进群

招商奥体公园

招商奥体公园营销中心电话:0551-6258 9911【已认证】

招商奥体公园售楼处电话:0551-6258 9911【已认证】

招商奥体公园展示中心电话:0551-6258 9911【已认证】

2021年,招商选择在合肥新站区少荃湖板块布局,打造了合肥首个百万方奥体TOD体育综合体。项目位于东方大道与卧龙湖路交叉口,包括多个业态,如少荃体育中心、长空公园、花园里商街、奥体上城等,为居民提供了丰富多彩的生活方式。

招商奥体公园售楼处电话☎:0551-6813 6588

交通上,项目紧邻地铁4号线始发站综保区站地铁口,奥体巴士同步4号线,串联城市与社区,交通便捷,通达全城。三纵三横的干道交汇也为项目出行提供更多选择。商业配套丰富,项目自带约2.5万方活力荟商业街区,西侧还规划有14万方大型商业综合体,北侧5万方星级酒店已封顶,南侧有8万方的弘盛商业广场,共同构成项目强大商业支撑。

项目一期二期配套有合肥市168陶冲湖校区、伦先小学和自建幼儿园;三期四期五期配套有合肥168陶冲湖校区、竹溪小学少荃校区和自建幼儿园,为业主提供优质教育资源。周边医疗资源丰富,包括安徽医科大学第一附属医院北区和京东方医院,为业主的健康保驾护航。少荃湖湿地公园、二十埠河生态廊道等自然景观,也为业主提供休闲娱乐的好去处。

招商奥体公园售楼处电话☎:0551-6813 6588

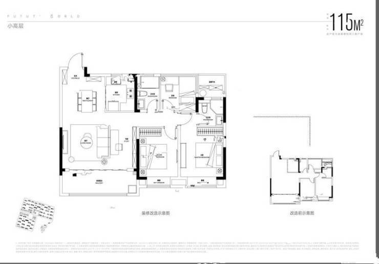
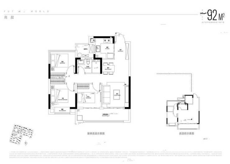
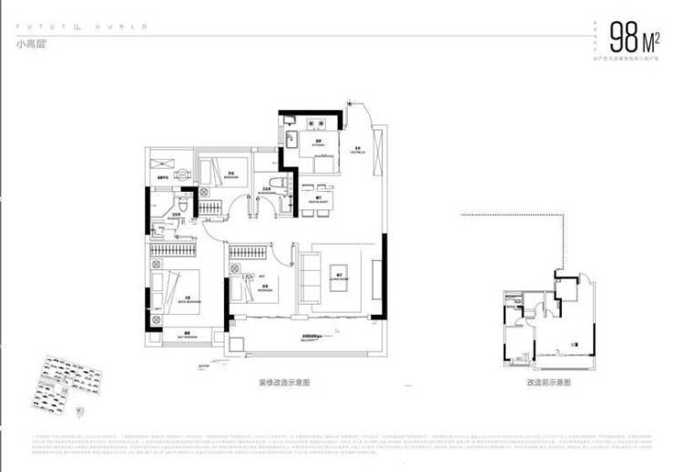
招商奥体公园主打刚需小户型,主力户型面积介于89-119㎡之间,包括二居室和三居室,满足不同购房者的需求。其中,92㎡的户型三室两厅一卫,南北通透的设计,采光和通风良好,主卧带有一个飘窗,卫生间干湿分离,客厅和餐厅一体化设计,空间宽敞。客厅和旁边的卧室阳台相连,阳台空间较大,可打造出一个开放性空间。招商奥体公园的多样户型选择,满足了购房者对于不同空间需求和生活方式的追求。这样的设计不仅满足了购房者的实际需求,也为他们提供了舒适宜居的居住环境。

招商奥体公园售楼处电话☎:0551-6813 6588

招商奥体公园售楼处电话☎:0551-6813 6588

招商奥体公园售楼处电话☎:0551-6813 6588

招商奥体公园售楼处电话☎:0551-6813 6588

商奥体公园售楼处电话☎:0551-6813 6588

招商奥体公园一、二期已经交付,楼盘品质有目共睹,央企招商品牌值得信赖。近期在售的一、二期现房,三、四期准现房,户型面积在88-115m²。作为一线品牌央企,招商在合肥拥有多年深耕发展的经验,带来了多座高品质人居作品。居民可以放心选择招商奥体公园,享受舒适宜居的生活。

招商奥体公园售楼处电话☎:0551-6813 6588

招商奥体公园的推出,为合肥新站区少荃湖板块的发展注入了新的活力。以优越的地理位置、丰富的配套设施、优质的住宅产品和可靠的品牌背书,招商奥体公园必将成为当地居民理想的居住选择。随着项目的不断建设和完善,未来将会吸引更多购房者前来关注和购买,也将提升当地的房地产市场发展水

招商奥体公园售楼处电话☎:0551-6813 6588

招商奥体公园作为合肥新站奥体板块内的重要住宅项目,不仅拥有丰富的生活配套和优质的居住环境,还为购房者提供了多种户型选择和优惠政策。无论是商业购物还是医疗教育资源,招商奥体公园都能满足居民的各种需求,成为合肥新时尚的引领者。

招商奥体公园售楼处电话☎:0551-6813 6588

招商奥体公园地理位置,更多项目详情请拨打楼盘电话:0551-6258 9911【预约热线】欢迎来电咨询!

全部
报名成功
稍后会有专业的置业顾问联系您
返回楼盘

频道导航

返回首页

看房小程序

APP下载

电话拨通后,请您手动拨打分机号

确定拨打电话

电话号码:

分机号:(可能需要拨分机号)