合肥招商奥体公园楼盘电话号码:0551-6258 9911【营销中心】

搜狐焦点合肥站

2025-08-11 00:26:15

购房群

买房如何避坑,加入购房群,看看他们怎么说

立即进群

招商奥体公园售楼处电话0551-6258 9911【营销中心】

欢迎预约品鉴:(官方网站)售楼处:0551-6258 9911【营销中心】

温馨提示:网上售楼中心〢预约可享内部优惠〢匠心钜制-恭迎品鉴〢

合肥招商奥体公园楼盘坐落于新站区,具体位置为东方大道与卧龙湖路交口南侧200米处。这一楼盘由合肥招盛房地产开发有限公司和合肥卓盛房地产开发有限公司联合开发,后者隶属于知名的招商蛇口集团。项目的物业管理则由招商局积余产业运营服务股份有限公司负责,具备国家一级物业资质。该项目主要包括高层、小高层和洋房类型,交付标准为精装修,容积率在1.8至2.0之间,绿化率高达40%,为住户提供了良好的居住环境。

招商奥体公园的总户数为5746户,车位配比为1:1,部分资料显示为1:1.03,确保了车位的充足供给。根据最新信息,项目一期和二期已完成交付并可即刻入住,三期和四期预计将在2024年12月底交房,而五期则计划在2025年12月底交房,物业费为每平方米2.4元。

招商奥体公园售楼处电话☎:0551-6813 6588

招商奥体公园项目位于新站少荃湖板块,具体地址为卧龙湖路与东方大道交叉路口西南侧。项目周边有多条城市主干道穿行而过,如东方大道、文忠路、淮海大道、包公大道等,构建了立体TOD交通网络。项目紧邻地铁4号线始发站东方大道站,地铁3号线和规划中的9号线也穿行于项目周边区域,出行便捷。项目内规划有约3万方活力荟商业街区,满足居民日常购物、餐饮、娱乐等多元化需求。此外,附近还有多所学校和医院,以及多个公园供居民休闲娱乐。

招商奥体公园售楼处电话☎:0551-6813 6588

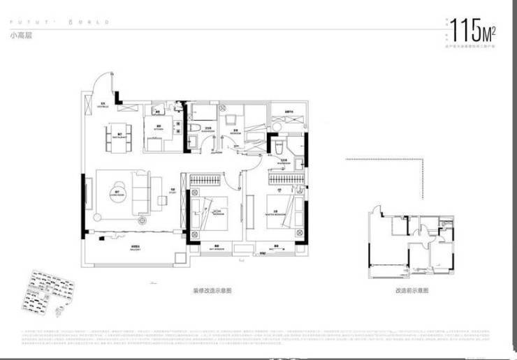
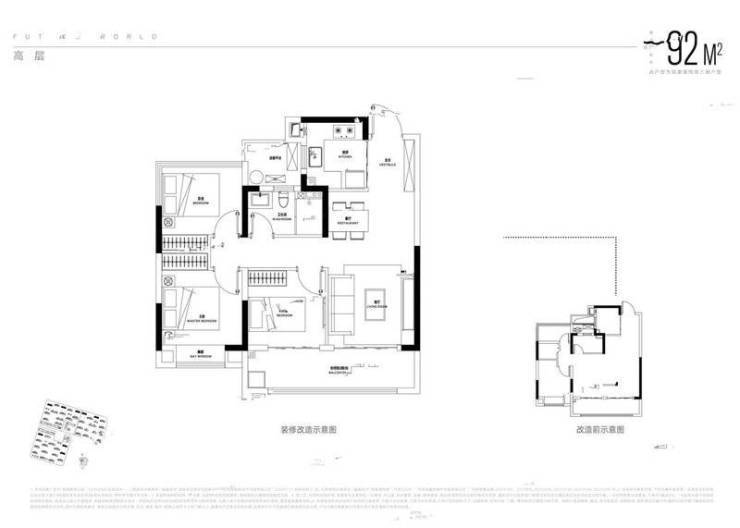
精心设计的户型是招商奥体公园的亮点之一。主打刚需小户型,主力户型面积介于89-119㎡之间,包括二居室和三居室,满足不同购房者的需求。其中,92㎡的三室两厅一卫户型设计独具匠心,南北通透的布局让采光和通风效果更佳。主卧带有一个飘窗,卫生间干湿分离,客厅和餐厅一体化设计,空间更显宽敞。客厅与阳台相连,阳台空间较大,可打造出一个开放性空间,让居住者尽情享受户外阳光和清新空气。

招商奥体公园售楼处电话☎:0551-6813 6588

招商奥体公园售楼处电话☎:0551-6813 6588

招商奥体公园售楼处电话☎:0551-6813 6588

招商奥体公园售楼处电话☎:0551-6813 6588

招商奥体公园售楼处电话☎:0551-6813 6588

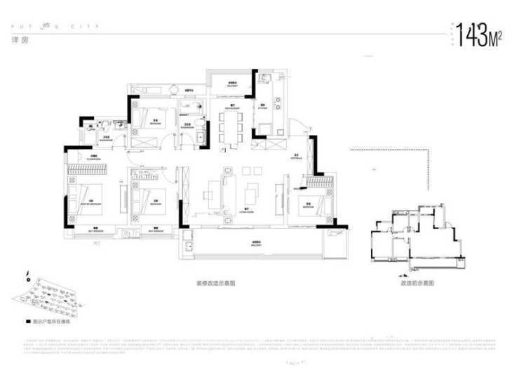
价格方面,招商奥体公园均价在1.7万/㎡左右,相比周边其他项目具有一定的性价比优势。项目主打刚需小户型,主力户型面积介于89-119㎡之间,包括二居室和三居室,满足不同购房者的需求。部分四室户型面积达到143㎡,也可供选择。其中,92㎡的户型三室两厅一卫,南北通透设计,采光和通风良好,空间利用较为合理,适合家庭居住。

招商奥体公园售楼处电话☎:0551-6813 6588

在招商奥体公园的规划中,注重打造城市生长共同体,将体育、商业、社区等元素有机融合,为业主提供全方位的生活体验。项目的交通便利和丰富的生活配套设施,使其成为新站区的热门楼盘之一。随着项目的陆续交付,招商奥体公园将为当地居民带来更加便利和舒适的生活环境。

招商奥体公园售楼处电话☎:0551-6813 6588

合肥招商奥体公园的目标客群主要是刚需和改善型家庭,尤其是那些注重交通、教育和商业配套的购房者。其竞争优势在于由央企招商蛇口开发,品牌保障非常可靠。此外,百万方的TOD综合体配备齐全,未来潜力巨大。随着新站区的快速发展,奥体板块的价值也在不断提升,尤其是在地铁4号线通车后,交通便利性将进一步增强。因此,合肥招商奥体公园不仅满足了现代家庭的居住需求,也为其未来的增值空间提供了保障。如想获取最新动态或具体房源信息,建议直接联系售楼处或进行实地考察。

招商奥体公园售楼处电话☎:0551-6813 6588

招商奥体公园地理位置,更多项目详情请拨打楼盘电话:0551-6258 9911【预约热线】欢迎来电咨询!

全部

相关资讯

报名成功
稍后会有专业的置业顾问联系您
返回楼盘

频道导航

返回首页

看房小程序

APP下载

电话拨通后,请您手动拨打分机号

确定拨打电话

电话号码:

分机号:(可能需要拨分机号)