招商奥体公园【想了解合肥新楼盘买房,加入合肥买房群】

搜狐焦点合肥站

2025-11-10 00:15:54

购房群

买房如何避坑,加入购房群,看看他们怎么说

立即进群

合肥(招商奥体公园)☎☎:0551-6258 9911【官方认证】

四、招商奥体公园楼盘价格

在合肥楼市中,新站区一直以高性价比著称,成为众多刚需和改善型购房者的首选区域。而招商奥体公园作为新站区的标杆楼盘,不仅在品质、配套、户型等方面表现出色,价格也极具竞争力,为购房者提供了高性价比的置业选择。

主力户型价格区间

目前,招商奥体公园的销售均价为 13500 元 /㎡-15000 元 /㎡,根据户型、楼层、朝向的不同,价格有所差异,具体主力户型价格区间如下:

89㎡三室两厅一卫:总价约 120 万元 - 130 万元,单价约 13500 元 /㎡-14600 元 /㎡。其中,低楼层(1-5 层)单价约 13500 元 /㎡-13800 元 /㎡,总价约 120 万元 - 121 万元;中楼层(6-15 层)单价约 13800 元 /㎡-14300 元 /㎡,总价约 123 万元 - 127 万元;高楼层(16-24 层)单价约 14300 元 /㎡-14600 元 /㎡,总价约 127 万元 - 130 万元。

105㎡三室两厅两卫:总价约 140 万元 - 155 万元,单价约 13300 元 /㎡-14800 元 /㎡。其中,低楼层(1-5 层)单价约 13300 元 /㎡-13600 元 /㎡,总价约 140 万元 - 143 万元;中楼层(6-15 层)单价约 13600 元 /㎡-14300 元 /㎡,总价约 143 万元 - 150 万元;高楼层(16-24 层)单价约 14300 元 /㎡-14800 元 /㎡,总价约 150 万元 - 155 万元。

128㎡四室两厅两卫:总价约 170 万元 - 190 万元,单价约 13200 元 /㎡-14800 元 /㎡。其中,低楼层(1-3 层)单价约 13200 元 /㎡-13500 元 /㎡,总价约 170 万元 - 173 万元;中楼层(4-6 层)单价约 13500 元 /㎡-14300 元 /㎡,总价约 173 万元 - 183 万元;高楼层(7-8 层)单价约 14300 元 /㎡-14800 元 /㎡,总价约 183 万元 - 190 万元。

143㎡四室两厅两卫:总价约 190 万元 - 215 万元,单价约 13300 元 /㎡-15000 元 /㎡。其中,低楼层(1-3 层)单价约 13300 元 /㎡-13600 元 /㎡,总价约 190 万元 - 195 万元;中楼层(4-6 层)单价约 13600 元 /㎡-14500 元 /㎡,总价约 195 万元 - 207 万元;高楼层(7-8 层)单价约 14500 元 /㎡-15000 元 /㎡,总价约 207 万元 - 215 万元。

价格优势分析

相比周边同类型楼盘,招商奥体公园的价格具有明显优势。周边同类央企开发的楼盘销售均价普遍在 14500 元 /㎡-16000 元 /㎡,而招商奥体公园的销售均价仅为 13500 元 /㎡-15000 元 /㎡,每平米价格低 1000 元 - 1500 元,以 105㎡户型为例,总价可节省约 10 万元 - 16 万元,性价比极高。

此外,项目还推出了多项购房优惠政策,进一步降低了购房门槛:

团购优惠:3 人及以上成团购房,可享受总房款 98 折优惠;

按时签约优惠:认购后 7 天内签订购房合同,可享受总房款 99 折优惠;

首付分期优惠:首付最低可分 3 期支付,首期仅需支付总房款的 10%,剩余首付在 6 个月内付清,无需支付利息;

老带新优惠:老业主介绍新客户成功购房,老业主可获得 2 万元家电礼包或物业费减免,新业主可享受总房款 99.5 折优惠。

升值潜力分析

招商奥体公园不仅价格亲民,更具有较高的升值潜力,主要体现在以下几个方面:

区域发展红利:随着合肥 “东拓北进” 战略的深入实施,新站区作为城市发展的新引擎,交通、教育、商业、医疗等配套持续升级,区域价值不断提升。未来,随着地铁 9 号线(规划中)的建成通车、少荃湖科创 CBD 的建设完工,新站区的区域价值将进一步凸显,项目的升值空间巨大。

品牌加持:招商蛇口作为百年央企,品牌影响力强,开发的楼盘在二手房市场上具有较高的溢价空间。相比周边非品牌开发商的楼盘,招商奥体公园的二手房价格预计将高出 10%-15%,升值潜力显著。

配套完善:项目周边配套持续完善,教育、商业、医疗、生态等资源不断丰富,将直接带动楼盘价值的提升。例如,项目内部规划的幼儿园和周边规划的中小学建成后,将进一步提升楼盘的吸引力和价值。

产品稀缺性:项目是区域内少有的低密生态社区,容积率仅 2.0.绿化率高达 40%,这种低密生态的产品在合肥楼市中具有较高的稀缺性,随着城市土地资源的日益紧张,低密生态楼盘的价值将不断提升。

招商奥体公园售楼处电话☎:0551-6813 6588

六、招商奥体公园楼盘总结

招商奥体公园作为合肥新站区的投资标杆楼盘,凭借区域发展红利、百年央企背书、全维配套升级、低密生态稀缺、户型流通性强、高性价比等多重核心优势,成为众多投资客的首选,其投资价值在合肥楼市中尤为突出。

从区域价值来看,新站区作为合肥 “东拓北进” 战略的核心承载区,国家级开发区的政策红利、完善的产业布局和持续升级的城市配套,为区域房价提供了坚实支撑。未来 3-5 年内,地铁 9 号线、少荃湖科创 CBD、规划中小学等核心配套将陆续兑现,区域价值将进入快速上升通道,而招商奥体公园作为区域核心位置的标杆楼盘,将直接受益于这一波发展红利,价值增长空间清晰可见。

从品牌保障来看,招商蛇口作为百年央企,拥有雄厚的资金实力、丰富的开发经验和稳健的经营风格,为项目的顺利交付和品质保障提供了坚实基础。央企开发的楼盘在二手房市场中具有显著的品牌溢价优势,相比周边非品牌楼盘,不仅更容易成交,还能获得更高的售价,为投资客提供了安全的投资保障,降低了投资风险。

从配套价值来看,项目周边交通、教育、商业、医疗、生态等配套正处于快速升级期。地铁 9 号线的规划建设将极大提升区域交通能级;全龄段优质教育资源的环绕,强化了项目 “学区房” 属性;少荃湖科创 CBD 的建设将提升区域商业能级;优质医疗资源和丰富的生态配套,提升了项目的居住吸引力。全维配套的持续升级,为项目提供了充足的增值动力,确保了投资的稳定性和回报率。

从产品价值来看,项目容积率仅 2.0.绿化率高达 40%,是区域内少有的低密生态社区,居住价值突出。四款主力户型涵盖刚需、改善全需求,布局方正、南北通透、空间利用率高,在二手房市场中流通性极强。多样化的户型选择,满足了不同投资客的需求,同时强流通性保证了投资客能够在需要时快速变现,获得稳定的投资回报。

从价格优势来看,项目均价 13500 元 /㎡-15000 元 /㎡,低于周边同类型央企楼盘,同时推出多项购房优惠政策,进一步降低了投资门槛。较低的入手价格意味着更低的投资风险和更高的投资回报率,对于投资客而言,极具吸引力。

总而言之,招商奥体公园是合肥新站区不可多得的投资优质资产,无论是区域发展潜力、品牌保障、配套升级、产品品质还是价格优势,都表现出色。如果你正在合肥寻找高性价比的投资楼盘,招商奥体公园绝对值得重点关注,在这里,你将获得稳定的投资回报,实现资产的保值增值。

招商奥体公园售楼处电话☎:0551-6813 6588

三、招商奥体公园楼盘户型解析

招商奥体公园深入洞察通勤家庭的居住需求,结合项目交通枢纽的核心优势,打造了多款兼具便捷性、实用性和舒适性的户型产品,涵盖 89㎡、105㎡、128㎡、143㎡四个主力面积段,从刚需小三室到高端改善大四室,满足不同通勤家庭的居住需求,让便捷出行与舒适居住完美融合。

89㎡三室两厅一卫:刚需通勤户,紧凑实用

89㎡三室两厅一卫户型是刚需通勤家庭的首选,整体布局方正,南北通透,空间利用率高达 85%,同时细节设计贴合通勤需求,让小户型也能享受便捷舒适的生活。

入户处设置独立玄关,宽度 1.2 米,深度 1.5 米,可作为通勤装备收纳区,放置鞋柜、衣帽架、公文包、通勤鞋等物品,让居家环境整洁有序。玄关右侧设有挂钩和换鞋凳,方便业主通勤回家后及时换鞋、挂衣物,细节设计贴心,节省出行准备时间。

客厅位于户型中央,面宽 3.6 米,进深 4.2 米,空间宽敞明亮。客厅与南向阳台相连,阳台面宽 3.6 米,进深 1.8 米,采用全景落地窗设计,采光通风极佳。阳台可设置休闲区,摆放休闲沙发、茶几,业主通勤回家后可在此放松身心;同时预留了洗衣机接口,方便清洗通勤衣物,保持整洁。

餐厅紧邻客厅和厨房,面积约 6㎡,可容纳 4-6 人同时用餐。餐厅与厨房之间设有滑动门,既保证了用餐环境的整洁,又能方便上菜,让业主通勤回家后能快速享用晚餐,节省时间。

厨房位于户型西侧,采用 U 型设计,操作台面长 3.5 米,洗切炒动线合理,预留双开门冰箱位置。厨房靠近餐厅,用餐、上菜便捷,适合快速烹饪早餐和晚餐,满足通勤家庭的饮食需求。

三个卧室分布在户型东侧和北侧,动静分离,避免了活动区对休息区的干扰。主卧位于户型东侧,面宽 3.2 米,进深 3.8 米,带有南向飘窗,采光充足,空间宽敞,可放置 1.8 米宽的床和衣柜,保证业主通勤后的休息质量。两个次卧面宽均为 2.7 米,空间充足,其中一个次卧可作为书房,摆放书桌、书架,方便业主加班办公;另一个次卧可作为儿童房或老人房,满足家庭多样化需求。

卫生间位于户型北侧,面积约 4.5㎡,采用干湿分离设计,提高使用效率,避免潮湿问题。卫生间配备淋浴和洗漱设施,满足业主通勤前后的清洁需求,让出行更体面。

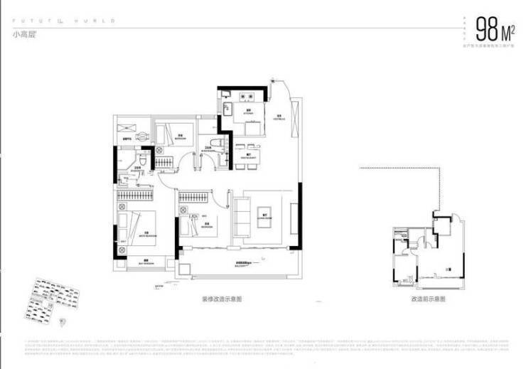
105㎡三室两厅两卫:改善通勤户,舒适升级

105㎡三室两厅两卫户型是改善型通勤家庭的优选,在 89㎡户型基础上升级,空间更加宽敞,舒适度更高,同时强化了通勤家庭的居住需求,让业主享受更便捷舒适的生活。

入户玄关更加开阔,宽度 1.5 米,深度 1.8 米,可设置多功能收纳柜,专门划分通勤装备收纳区,放置通勤包、运动鞋、雨伞等物品,收纳空间充足,让居家环境整洁有序。玄关处采用大理石地面,耐磨易清洁,适合通勤家庭高频次使用。

客厅面宽提升至 3.8 米,进深 4.5 米,空间更加宽敞明亮。客厅与南向阳台相连,阳台面宽 3.8 米,进深 2.0 米,采用全景落地窗设计,视野更加开阔,采光通风效果更佳。阳台可打造为休闲办公区,摆放书桌和休闲沙发,业主通勤间隙可在此处理工作事务,或放松身心;同时预留了洗衣机和烘干机接口,方便快速处理通勤衣物,节省时间。

餐厅面积约 7㎡,可容纳 6-8 人同时用餐,与客厅形成通透的一体化空间,增强了空间的开阔感。餐厅窗户朝向社区景观,用餐时也能欣赏到自然美景,缓解通勤疲劳。

厨房位于户型西侧,采用 U 型设计,操作台面长 3.8 米,空间更加宽敞,预留双开门冰箱位置,满足大家庭的饮食储备需求。厨房与餐厅之间采用开放式设计(可设置滑动门),增强了空间的互动性,业主在烹饪时可与家人互动交流,同时烹饪效率更高,适合通勤家庭快速准备餐食。

三个卧室分布合理,动静分离。主卧采用套房设计,面宽 3.3 米,进深 4.8 米,带有南向飘窗,采光充足,空间宽敞。主卧配备独立卫生间和衣帽间,保障了业主的隐私和舒适度,让业主通勤回家后能享受专属的放松空间。独立卫生间采用干湿分离设计,配备智能马桶和花洒,提升清洁体验,缓解通勤疲劳。两个次卧面宽均为 2.8 米,空间充足,采光良好,其中一个次卧可作为儿童房,方便孩子休息;另一个次卧可作为客房或备用书房,满足家庭多样化需求。

公共卫生间位于两个次卧之间,面积约 5㎡,采用干湿分离设计,使用方便,满足家庭成员的日常清洁需求,避免早高峰使用冲突。

128㎡四室两厅两卫:改善通勤户,阔绰舒适

128㎡四室两厅两卫户型是多孩通勤家庭的理想选择,户型方正通透,南北双阳台设计,空间阔绰,既能满足家庭成员的居住需求,又能提供充足的收纳和休闲空间,让通勤家庭的生活更加便捷舒适。

入户玄关宽敞明亮,宽度 1.8 米,深度 2.0 米,可设置入户花园或大型收纳柜,专门划分通勤装备和家庭杂物收纳区,放置自行车、婴儿车、通勤包等物品,让居家环境整洁有序。玄关处摆放绿植,营造自然清新的氛围,缓解业主通勤后的疲劳。

客厅面宽 4.0 米,进深 4.8 米,空间宽敞开阔。客厅与南向景观阳台相连,阳台面宽 4.0 米,进深 2.0 米,采用全景落地窗设计,采光通风极佳。阳台可打造为家庭休闲区,摆放休闲沙发、茶几和绿植,全家一起放松交流,增进感情;同时预留了洗衣机和烘干机接口,功能实用。

北向生活阳台与餐厅相连,面宽 3.0 米,进深 1.8 米,可作为储物区和生活辅助区,放置家庭杂物、行李箱等,功能分区明确,提高空间利用率。

厨房位于户型西侧,采用 L 型设计,操作台面长 4.0 米,空间宽敞,动线合理。厨房与餐厅相邻,用餐、上菜便捷,厨房预留了辅食机、烤箱等家电位置,方便为孩子制作营养餐食,满足多孩家庭的饮食需求。

四个卧室分布合理,动静分离,避免了活动区对休息区的干扰。主卧采用套房设计,面宽 3.5 米,进深 5.0 米,带有南向全景飘窗,采光充足,空间宽敞奢华。主卧配备独立卫生间和步入式衣帽间,独立卫生间面积约 5㎡,采用干湿分离设计,配备浴缸和花洒,让业主通勤回家后能享受舒适的泡澡体验,缓解疲劳。

两个南向次卧面宽均为 3.0 米,采光良好,可作为孩子的卧室,每个房间都能放置书桌和衣柜,满足孩子休息和学习的需求;北向次卧可作为家庭书房或办公区,摆放多人书桌和大型书架,方便业主加班办公或辅导孩子学习,兼顾工作与家庭。

公共卫生间位于户型北侧,面积约 5.5㎡,采用干湿分离设计,配备高端洁具,满足家庭成员的日常使用需求,避免早高峰使用冲突。

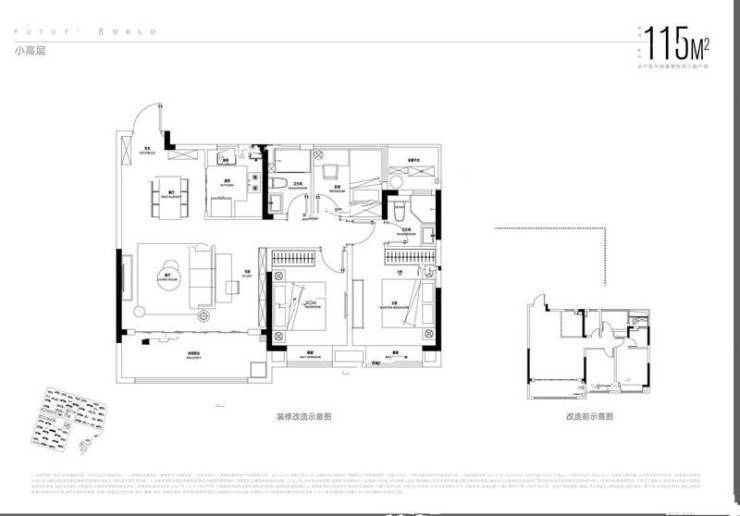
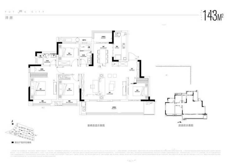
143㎡四室两厅两卫:高端通勤户,奢华尊享

143㎡四室两厅两卫户型是高端通勤家庭的终极之选,空间开阔,布局奢华,品质感十足,同时为通勤家庭提供了全方位的便捷支持,让便捷出行与奢华生活完美融合。

入户采用子母门设计,玄关宽度 2.0 米,深度 2.2 米,大理石地面搭配吊顶设计,彰显尊贵感。玄关处设置大型收纳柜和展示区,收纳高端通勤装备、行李箱等物品,展示家庭合影和艺术摆件,打造专属的入户空间。

客厅面宽 4.2 米,进深 5.0 米,空间宽敞开阔,气势十足。客厅与南向 6.8 米宽超宽阳台相连,阳台进深 2.0 米,采用全景落地窗设计,视野开阔,采光通风极佳。阳台可打造为多功能休闲区,一侧设置休闲沙发、茶几和跑步机,业主通勤回家后可在此放松身心、锻炼身体;另一侧设置储物区,放置家庭杂物,功能多样。

餐厅面积约 9㎡,可容纳 10-12 人同时用餐,与客厅形成通透的一体化空间,增强了空间的开阔感。餐厅与北向生活阳台相连,北向阳台可作为生活辅助区,放置冰箱、储物柜,储存食材和生活用品,方便日常使用。

厨房采用中西厨设计,中厨封闭烹饪,避免油烟扩散;西厨可作为早餐台或简餐区,满足通勤家庭快速准备早餐的需求。中厨采用 U 型设计,操作台面长 4.5 米,空间宽敞,动线合理,预留双开门冰箱位置和各类家电接口,满足高端家庭的饮食需求。西厨与餐厅相邻,用餐便捷,同时增强了空间的互动性。

四个卧室分布合理,动静分离,私密性强。主卧豪华套房设计,面宽 3.6 米,进深 5.2 米,带有南向全景飘窗,采光充足,空间宽敞奢华。主卧配备独立卫生间、步入式衣帽间和小型休闲区,独立卫生间面积约 6㎡,采用干湿分离设计,配备高端卫浴设施和桑拿房,让业主通勤回家后能享受专业的放松体验,缓解肌肉疲劳。

两个南向次卧面宽均为 3.2 米,空间充足,采光良好,可作为孩子的卧室或客房,每个房间都能满足休息、学习和储物的多重需求;北向次卧可作为专业书房或办公区,配备高端办公家具和设备,方便业主在家处理工作事务,兼顾工作与生活的平衡。

  公共卫生间位于户型北侧,面积约 6㎡,采用干湿分离设计,配备高端洁具和烘干设备,方便通勤后快速清洁、烘干衣物,提升生活便利性。

招商奥体公园售楼处电话☎:0551-6813 6588

招商奥体公园售楼处电话☎:0551-6813 6588

招商奥体公园售楼处电话☎:0551-6813 6588

招商奥体公园售楼处电话☎:0551-6813 6588

招商奥体公园售楼处电话☎:0551-6813 6588

在房地产市场波动的背景下,央企开发的楼盘凭借稳健的实力、过硬的品质和可靠的交付保障,成为购房者置业的 “定心丸”。位于合肥新站区东方大道与卧龙湖路交口往南 200 米的招商奥体公园,由百年央企招商蛇口倾力打造,作为招商局集团旗下核心企业,招商蛇口深耕地产行业 40 余年,始终坚持 “稳健经营、品质为先” 的发展理念,在全国 111 个城市打造了超 600 个精品项目,凭借雄厚的资金实力、丰富的开发经验和卓越的产品品质,赢得了市场和业主的广泛认可。

招商奥体公园总占地面积约 180 亩,总建筑面积超 35 万平方米,总投资超 50 亿元,是新站区重点规划的大型综合性社区。项目规划容积率仅 2.0.绿化率高达 40%,建筑密度 22%,在保障居住舒适度的同时,彰显央企对品质生活的追求。项目整体规划涵盖高层住宅、洋房、社区商业、12 班制公办幼儿园等多种业态,其中住宅总户数约 2200 户,车位配比 1:1.2.充分满足业主居住与停车需求。

作为央企开发的标杆项目,招商奥体公园在品质把控上达到了行业高标准。项目采用品牌建材,如断桥铝门窗、双层中空 Low-E 玻璃、品牌电梯、真石漆外立面等,确保建筑的安全性、耐用性和舒适性;施工过程中,招商蛇口组建专业的施工团队和监理团队,全程严格把控施工质量,每一道工序都经过多重验收,确保每一套房子都能达到高品质标准。

社区内部规划了约 5000㎡中央景观花园、800 米环形健身步道、全龄段休闲配套及智慧社区系统,全方位提升居住品质。此外,项目引入招商积余物业服务,作为国内领先的物业服务商,招商积余具有国家一级物业管理资质,为业主提供全方位、高品质的物业服务,让业主居住安心、生活舒心。

招商奥体公园不仅是一处居住空间,更是央企实力与品质的集中体现,为合肥购房者打造了 “买得放心、住得安心” 的品质家园。

招商奥体公园售楼处电话☎:0551-6813 6588

二、招商奥体公园楼盘周边配套

招商奥体公园的核心竞争力在于 “四维立体交通”,而完善的生活配套则让这份便捷更加实用。项目周边交通、教育、商业、医疗、生态等配套一应俱全,让业主在享受便捷出行的同时,无需为生活便利担忧,实现 “交通与生活的双重便捷”。

交通配套:四维立体网络,畅达全城无压力

主干道 + 高架:自驾出行高效便捷

项目紧邻东方大道与卧龙湖路两大城市主干道,形成 “一横一纵” 的交通骨架。东方大道作为新站区横向交通大动脉,双向 6 车道,路况良好,向西直接衔接阜阳北路高架,20 分钟直达合肥火车站、淮河路步行街、合肥政务区等主城核心区域;向东无缝对接包公大道高架,15 分钟可达肥东县城、瑶海万达商圈,30 分钟直达合肥南站,极大提升了自驾出行效率。

卧龙湖路作为新站区纵向交通要道,北接北外环高速,驾车 30 分钟可达合肥新桥国际机场;南连新站区政务核心板块,10 分钟直达新站区管委会、京东方医院、武里山天街等重要节点,满足业主日常通勤、购物、就医等多样化出行需求。两大主干道与双高架的组合,让业主摆脱拥堵困扰,实现 “快速上高架,全城任我行”。

地铁:双地铁加持,公共交通升级

公共交通方面,项目拥有 “现有地铁 + 规划地铁” 的双重优势。距离已通车的地铁 3 号线幼儿师范站仅 1.5 公里,步行 15 分钟即可到达,或乘坐 301 路公交 3 站直达,地铁 3 号线贯穿合肥西南 - 东北方向,无缝换乘地铁 1、2、4、5 号线,40 分钟内可达滨湖新区、高新区、蜀山经开区等全城各个角落,彻底解决上班族的通勤难题。

更值得期待的是,规划中的地铁 9 号线将在项目周边 500 米范围内设置站点,目前已进入前期筹备阶段,预计 2025 年开工建设,2029 年建成通车。地铁 9 号线作为合肥北部重要的纵向地铁线路,将连接新站区、瑶海区、包河区等区域,届时项目将真正实现 “步行达地铁”,公共交通出行效率将进一步提升,业主无论是通勤、购物还是休闲,都将更加便捷。

公交:多条线路环绕,短途出行便利

项目周边 500 米范围内设有卧龙湖路东方大道、东方大道卧龙湖路、新站寿春实验中学等 3 个公交站点,涵盖 301 路、302 路、686 路、803 路等多条公交线路。301 路连接地铁 3 号线与新站区北部区域,302 路直达合肥火车站,686 路覆盖新站区核心商圈,803 路串联起周边多个社区与学校,满足业主短途出行、接驳地铁等需求,为老人、孩子等不便于自驾的人群提供了便捷的出行选择。

教育配套:交通便捷 + 名校环绕,上学无忧

项目周边教育资源丰富,形成了从幼儿园到中学的全龄段教育体系,且依托便捷的交通网络,孩子上学更加轻松。项目内部规划有 12 班制公办幼儿园,预计 2025 年正式投入使用,业主子女足不出社区即可享受优质启蒙教育,无需担心通勤安全问题。

步行 1 公里范围内,合肥新站寿春实验中学、合肥市庆平希望学校、合肥市第 168 中学东校区等多所名校环绕。借助便捷的交通,孩子步行或乘坐公交即可到达学校,家长无需远距离接送,节省了大量时间和精力。优质的教育资源与便捷的交通相结合,让孩子上学无忧,家长更省心。

商业配套:交通赋能,购物娱乐更便捷

依托立体交通网络,项目周边商业配套的可达性大幅提升。项目自带约 2 万方社区商业,预计 2026 年开业,涵盖超市、便利店、餐饮、生鲜卖场等业态,满足业主日常购物需求,下楼即可解决。

距离项目 3 公里的武里山天街商圈,驾车 10 分钟即可到达;5 公里范围内的拓基广场、家天下生活广场,驾车 15 分钟可达,这些商圈涵盖大型购物中心、品牌餐饮、电影院、儿童乐园等丰富业态,满足业主多样化消费需求。便捷的交通让业主无需为购物远途奔波,周末休闲娱乐更加轻松。

医疗配套:快速通达,健康保障无延迟

优质的医疗资源搭配便捷的交通,为业主的健康保驾护航。项目距离安徽省第二人民医院(北区)约 4 公里,驾车 15 分钟可达;距离合肥京东方医院约 3.5 公里,驾车 12 分钟可达,这两所医院均为三级医院,医疗设备先进,医疗水平高,能够为业主提供高水平的医疗服务。

周边 3 公里内还有多家社区卫生服务中心,步行或乘坐公交即可到达,日常就医、健康体检、疫苗接种等十分便捷。便捷的交通让业主在突发健康问题时能够快速抵达医院,为健康争取时间,无健康后顾之忧。

生态配套:交通便捷,休闲出游更轻松

项目周边生态资源丰富,借助便捷的交通,业主休闲出游更加轻松。距离少荃湖公园约 3 公里,驾车 10 分钟可达,该公园作为合肥北部最大的城市湖泊公园,是业主休闲散步、跑步健身、周末出游的绝佳去处;距离新站区生态公园约 4 公里,驾车 15 分钟可达,公园内空气清新,环境优美,适合全家休闲放松。

此外,瑶海公园、李鸿章享堂等景点距离项目均在 10 公里范围内,驾车 20-30 分钟即可到达,便捷的交通让业主周末闲暇时光能够轻松出行,感受自然美景,放松身心。

招商奥体公园售楼处电话☎:0551-6813 6588

  五、招商奥体公园楼盘项目亮点

作为合肥新站区的热门楼盘,招商奥体公园凭借众多突出亮点,成为购房者追捧的对象,其核心亮点主要体现在以下几个方面。

央企加持,品质保障

招商蛇口作为百年央企,拥有数十年的房地产开发经验,具备雄厚的资金实力和丰富的开发经验,始终坚持 “品质为王” 的开发理念,从建筑材料的选择到施工工艺的把控,都严格按照高标准执行。项目采用品牌建材,如断桥铝门窗、双层中空玻璃、品牌电梯等,保证了建筑的品质和居住的安全性。同时,招商蛇口拥有专业的施工团队和监理团队,全程把控施工质量,确保每一套房子都能达到高品质标准,让业主买得放心、住得安心。

奥体 IP 赋能,运动健康生活

招商奥体公园最大的亮点之一就是 “奥体” IP 加持,项目周边规划有大型体育场馆,包括足球场、篮球场、游泳馆、健身房等多种运动设施,业主可享受便捷的运动资源。同时,项目内部也融入了运动健康理念,规划了环形健身步道、儿童游乐区、老年活动中心、健身广场等多重运动配套,打造全龄段运动空间。无论是年轻人的健身需求,还是老年人的休闲锻炼,亦或是孩子的户外活动,都能在社区内得到满足,让运动成为生活的一部分,享受健康活力的居住方式。

低密生态,宜居环境

项目规划容积率仅 2.0.绿化率高达 40%,是区域内少有的低密生态社区。社区内部规划了约 5000㎡中央景观花园,种植了多种名贵绿植,打造四季有景的园林景观。同时,社区内还设置了景观水系、休闲步道、观景平台等,让业主在居家生活中就能享受自然美景。低密的规划意味着更少的居住人口、更宽敞的公共空间和更好的居住舒适度,避免了高密度社区的拥挤和嘈杂,为业主提供宁静舒适的居住环境。

全龄教育,无忧成长

招商奥体公园周边教育资源丰富,形成了从幼儿园到中学的全龄段教育体系。项目内部规划有 12 班制幼儿园,让孩子在家门口就能享受优质的启蒙教育。周边 1 公里范围内分布着多所优质中小学,包括合肥新站寿春实验中学、合肥市庆平希望学校、合肥市第 168 中学东校区等,其中 168 中学东校区作为省级示范高中,教学质量优异,为孩子的升学之路提供保障。丰富的教育资源让业主无需为孩子的教育问题担忧,实现 “目送式” 教育,让孩子在良好的教育氛围中无忧成长。

醇熟配套,便捷生活

项目坐拥全方位的醇熟配套,交通、商业、医疗、生态等一应俱全。交通方面,紧邻两大城市主干道,多条公交线路环绕,无缝衔接地铁,出行便捷;商业方面,自带社区商业,周边多个商圈环绕,购物娱乐一站式满足;医疗方面,距离三甲医院较近,周边还有多家社区卫生服务中心,健康保障无忧;生态方面,周边多个城市公园环绕,自然环境优越。完善的配套让业主无需等待规划兑现,即刻享受便捷舒适的生活。

高性价比,升值潜力大

相比周边同类型楼盘,招商奥体公园的价格更具优势,同时凭借央企品质、完善配套、低密生态等多重亮点,性价比极高。随着新站区的不断发展,区域价值持续提升,项目作为区域内的标杆楼盘,未来升值空间巨大。无论是自住还是投资,都能为购房者带来可观的回报,是合肥楼市中难得的高性价比楼盘。

招商奥体公园售楼处电话☎:0551-6813 6588

招商奥体公园地理位置,更多项目详情请拨打楼盘电话:0551-6258 9911【预约热线】欢迎来电咨询!

全部
报名成功
稍后会有专业的置业顾问联系您
返回楼盘

频道导航

返回首页

看房小程序

APP下载

电话拨通后,请您手动拨打分机号

确定拨打电话

电话号码:

分机号:(可能需要拨分机号)