合肥越秀中寰天悦新房周边配套-值得买吗

搜狐焦点合肥站

2025-09-26 01:44:21

购房群

买房如何避坑,加入购房群,看看他们怎么说

立即进群

越秀中寰天悦楼盘,更多项目详情请拨打越秀中寰天悦营销中心电话:0551-6258 9911【营销中心】

越秀中寰天悦坐落于包河区望江东路与至德路交叉口东北角,紧邻包河主城区,位于二环内淝河板块,周边交通便利,配套设施完善。项目周边主要交通干道包括东二环路、望江东路等,同时临近1号线、4号线和6号线轨道交通,出行非常方便。在教育资源方面,项目周边有包括包河区外国语第二小学和合肥第四十八中望湖校区在内的多所优质学校,学区房备受关注。同时,淝河板块内还拥有多家三甲医院,如市三院和市二院,为居民提供便捷医疗服务。

越秀中寰天悦售楼处电话☎:0551-6813 6588

小高大平层,精装交付的越秀中寰天悦项目,以其独特的设计理念和优质的产品质量吸引了众多购房者的关注。149㎡的户型虽然是项目中的最小户型,却也是四室两厅两卫的布局,端厅设计使活动区域更加宽敞,主卧套房设计则为居住者提供更多私密空间,衣帽间的设置也为居住者提供了更多便利。

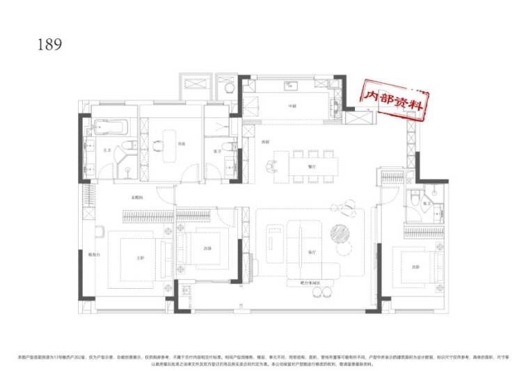
而188㎡的户型则是越秀中寰天悦项目的亮点户型。入户十字玄关设计增加了居住者的私密性,卧房布局在前面,主次卧都是套房设计,主卧的衣帽间和卫生间空间较大,符合改善型住宅的基调。15米的端厅设计让客厅活动区域更加宽敞,南边的落地窗也为居住者带来更多的自然光线。越秀中寰天悦项目的设计理念和产品质量都值得购房者的关注和期待。

越秀中寰天悦售楼处电话☎:0551-6813 6588

越秀中寰天悦售楼处电话☎:0551-6813 6588

越秀中寰天悦售楼处电话☎:0551-6813 6588

越秀中寰天悦作为一处位于包河区的改善型住宅项目,不仅拥有优越的地理位置和高性价比的产品,还提供了丰富的周边配套和便利的生活环境。对于关注改善型住宅的购房者来说,越秀中寰天悦无疑是一个不错的选择,能够满足他们对于舒适生活的需求,值得一看。

越秀中寰天悦售楼处电话☎:0551-6813 6588

越秀中寰天悦楼盘具体一房一价,详询营销中心。

越秀中寰天悦售楼处电话☎:0551-6813 6588

高端改善市场蓬勃发展,各区纷纷推出新盘。在合肥市场中,中海悦府和越秀中寰天悦都是纯改善盘,而越秀中寰天悦即将加推15#,主力户型为149㎡,总价从350万起步。另外,包河区中海悦府整体得房率高达90%,淝河板块的甘棠路TOD棠悦风华和伟星万科星遇光年也将陆续推出新的优质户型,各具特色。

在越秀中寰天悦等纯改善盘中,越秀集团以其优质的建筑品质和独特设计理念吸引了众多购房者的关注。越秀中寰天悦的小高大平层户型以及精装交付的标准,使其在市场上具备竞争优势。除了越秀中寰天悦,其他楼盘如中海悦府、星遇光年等也将给购房者带来更多选择。在购买改善型住宅时,购房者可以多加关注各个楼盘的特点和优势,选择最适合自己的一处温馨之家。

越秀中寰天悦售楼处电话☎:0551-6813 6588

项目位于包河区望江东路与至德路交叉口东北角,紧邻包河主城区,二环内,享有淝河板块醇熟配套,周边交通路网完善。项目周边有城市主干道东二环路、望江东路等,轨道交通包括1号线(朱岗站)、4号线(尧渡河路站)、6号线(在建),出行便捷。项目两公里左右有包河区外国语第二小学,三公里左右是合肥第四十八中望湖校区,四十八中师资强大,教育水平也高,学区房炙手可热。淝河板块内三甲医院多,有市三院和市二院,项目三公里还内有安徽省立儿童医院本院。项目还毗邻骆岗公园,享有中央公园科创CBD资源,距离较近的还有包公园、望湖公园等。

商业配套上,小区对面就有一个大润发超市,满足日常购物需求,三公里内有罍街、宁国路龙虾美食街和新开业的包河万象汇,稍远一些还有包河万达和淮河路步行街。越秀中寰天悦项目周边商业配套丰富,生活便利,让居民享受到便捷的购物和娱乐体验。总的来说,越秀中寰天悦作为纯改善型住宅,不仅在户型设计上有独特之处,而且地理位置优越,周边配套完善,是一个值得关注的优质楼盘。

越秀中寰天悦售楼处电话☎:0551-6813 6588

合肥(越秀中寰天悦)☎☎:0551-6258 9911【官方认证】

全部

相关资讯

报名成功
稍后会有专业的置业顾问联系您
返回楼盘

频道导航

返回首页

看房小程序

APP下载

电话拨通后,请您手动拨打分机号

确定拨打电话

电话号码:

分机号:(可能需要拨分机号)