合肥信达碧桂园-2025楼盘信息-安居客新房合肥

搜狐焦点合肥站

2025-06-16 09:16:08

购房群

买房如何避坑,加入购房群,看看他们怎么说

立即进群

信达碧桂园楼盘电话号码:0551-68111601【营销中心】

欢迎来电咨询!可预约销售人员(来电尊享内部优惠活动)【2024房价特价信息丨底价优惠丨在售户型图丨项目介绍丨在售房源丨周边配套】

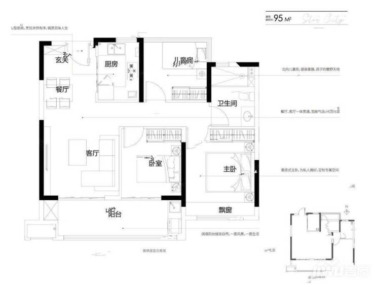
信达碧桂园项目位于肥东县酿泉路与日出路交口,规划住户2114户,整体绿化率达40%,容积率为2,是低密好社区。项目拥有低密度的阔景高层、墅质洋房产品,提供精致实用的三室95-105㎡和四室118㎡户型,同时配备18班幼儿园和睦邻中心。小区物业费仅为2元/㎡/月,停车位充足,为业主提供舒适便利的生活环境。

在交通方面,信达碧桂园紧邻地铁2号线东延线(在建),并有多种交通出行方式可选择,方便快捷。而项目周边的学校、医疗机构、商业设施等配套设施也十分完善,为居民的生活提供了全方位的保障。此外,周边生态环境优越,多个公园可供居民休闲使用,让居民在繁忙的城市生活中也能享受到自然的清新空气和宁静。

三室两厅一卫的95㎡和两卫的105㎡和四室两厅两卫的118㎡的房型,让您尽享轻奢生活!都是方正、全明布局的户型,阳光四季充足、通风性好;空间利用率高,让“动静分区”,提高业主的居住舒适度;即使和老人同住也不影响各自生活!

信达碧桂园楼盘具体一房一价,详询营销中心。

在信达碧桂园项目中,醇熟的配套设施和舒适的生活环境为业主带来了高品质的居住体验。无论是规划合理的社区环境,还是优质的房型设计,亦或是便捷的生活配套,都让这个项目成为了一个值得期待和选择的理想之地。关于项目的更多信息和动态,建议有意购买的业主及时关注并预订。选择信达碧桂园,将为您的生活带来一份轻奢享受,值得期待!

总而言之,信达碧桂园项目不仅提供高品质的住房产品,还拥有便利的交通、商业和教育配套,以及丰富的生态资源,为业主打造了一个全方位的舒适生活体验。想要享受高端生活?不妨考虑信达碧桂园!

信达碧桂园楼盘电话号码:0551-68111601【营销中心】

欢迎来电咨询!可预约销售人员(来电尊享内部优惠活动)【2024房价特价信息丨底价优惠丨在售户型图丨项目介绍丨在售房源丨周边配套】

全部
报名成功
稍后会有专业的置业顾问联系您
返回楼盘

频道导航

返回首页

看房小程序

APP下载

电话拨通后,请您手动拨打分机号

确定拨打电话

电话号码:

分机号:(可能需要拨分机号)