信达碧桂园项目最新相关信息

搜狐焦点合肥站

2025-06-10 10:08:42

购房群

买房如何避坑,加入购房群,看看他们怎么说

立即进群

信达碧桂园楼盘电话号码:0551-68111601【营销中心】

欢迎来电咨询!可预约销售人员(来电尊享内部优惠活动)【2024房价特价信息丨底价优惠丨在售户型图丨项目介绍丨在售房源丨周边配套】

信达碧桂园项目位于肥东县酿泉路与日出路交口西北角,地理位置优越,交通便利,周边配套设施齐全,吸引了众多购房者的目光。项目规划33栋住宅楼,包括28栋高层和5栋洋房,总占地面积165.59亩,规划用途为居住,容积率≤2.0。一期交付时间为2023年5月30日,二期交付时间为2024年4月30日,给购房者提供了明确的期待。项目交付标准为毛坯,让购房者可以根据自己的喜好和需求进行装修,更加个性化和自由。

信达碧桂园项目地铁2号线延长线在侧,便利出行;周边有惠宜品购物中心等商业配套,满足基本日常需求;同时,东城实验*、安师大附属*等丰富的教育资源,为孩子提供一站式教育体系。项目还拥有和睦湖公园、肥东体育公园等生态资源,让业主在闲暇时享受赏景、散步的乐趣。

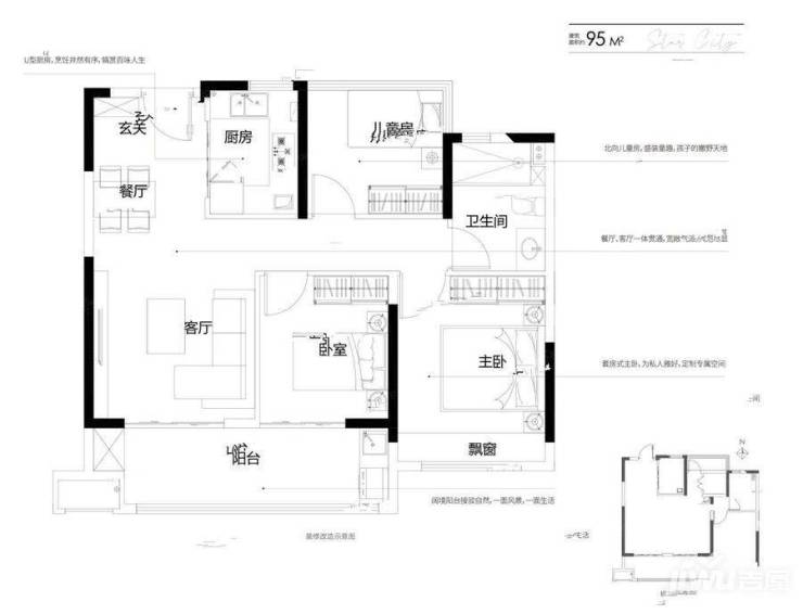
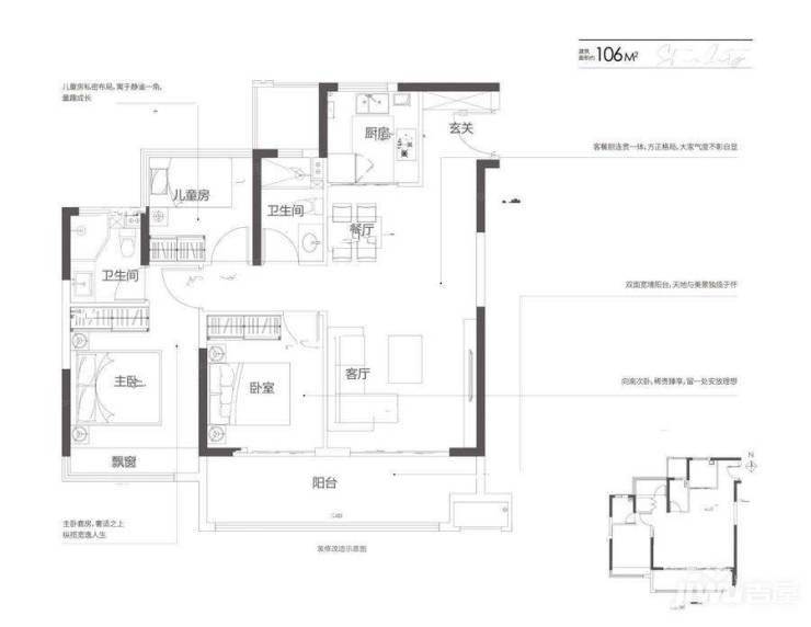
信达碧桂园的户型设计包括三室两厅一卫的95㎡,两卫的105㎡和四室两厅两卫的118㎡房型,让购房者尽享轻奢生活。所有户型都采用方正、全明布局,阳光四季充足、通风性好,空间利用率高,提高了业主的居住舒适度。无论是单身青年还是三口之家,都能在这里找到适合自己的理想家园。

信达碧桂园楼盘具体一房一价,详询营销中心。

项目注重品质,建筑设计精良,采用优质材料,保证房屋的质量和耐久性。项目内设有儿童乐园、健身房、社区花园等配套设施,为居民提供便利的生活体验。交付标准为毛坯,让购房者可以根据自己的喜好和需求进行装修,更加个性化和自由。

信达碧桂园作为一个新兴的住宅项目,不仅地理位置优越,交通便利,周边配套设施齐全,而且在户型设计和质量保障上都有着很高的水准,为购房者提供了一个理想的家园选择。无论是单身青年还是三口之家,都能在这里找到满足自己需求的房屋,享受轻奢生活。信达碧桂园,值得入手!

信达碧桂园楼盘电话号码:0551-68111601【营销中心】

欢迎来电咨询!可预约销售人员(来电尊享内部优惠活动)【2024房价特价信息丨底价优惠丨在售户型图丨项目介绍丨在售房源丨周边配套】

全部
报名成功
稍后会有专业的置业顾问联系您
返回楼盘

频道导航

返回首页

看房小程序

APP下载

电话拨通后,请您手动拨打分机号

确定拨打电话

电话号码:

分机号:(可能需要拨分机号)