招商奥体公园2026最新优势-项目新动态-请看图文解析↓-2026楼盘详情-房价-户型

搜狐焦点合肥站

2026-03-06 00:11:47

购房群

买房如何避坑,加入购房群,看看他们怎么说

立即进群

合肥(招商奥体公园)☎☎:0551-6258 9911【官方认证】

合肥新站运动健康盘!招商奥体公园 —— 奥体旁的活力舒居

一、招商奥体公园楼盘项目介绍

在健康成为全民追求的当下,运动健康类住宅已然成为楼市热门趋势。位于合肥新站区东方大道与卧龙湖路交口往南 200 米的招商奥体公园,凭借 “奥体” IP 核心优势,成为区域内首屈一指的运动健康标杆楼盘。项目由百年央企招商蛇口倾力打造,作为深耕地产行业 40 余年的领军企业,招商蛇口深刻洞察现代人对健康生活的需求,将 “运动 + 居住” 理念深度融合,依托周边大型奥体场馆资源,在社区内部打造全龄段运动配套,为合肥购房者带来 “把家安在奥体旁,让运动成为日常” 的高品质健康生活。

招商奥体公园总占地面积约 180 亩,总建筑面积超 35 万平方米,规划容积率仅 2.0.绿化率高达 40%,是区域内稀缺的低密运动生态社区。项目整体规划遵循 “运动赋能生活,健康融入日常” 的设计理念,将住宅、商业、教育、运动休闲等业态有机融合,打造集居住、运动、休闲、购物于一体的一站式运动健康社区。

项目住宅部分由 18 栋高层和 12 栋洋房组成,高层层数 18-24 层,洋房层数 6-8 层,总户数约 2200 户,车位配比 1:1.2.充分满足业主居住与停车需求。建筑风格采用现代简约风格,外立面选用真石漆与玻璃幕墙组合材质,线条流畅利落,既美观大方,又能最大化引入自然光线,为室内运动、休闲空间提供良好采光。

社区内部规划了丰富的运动配套设施,包括约 800 米环形健身步道、健身广场、羽毛球场、乒乓球场、儿童运动游乐区、老年健身区、室内健身驿站等,覆盖全年龄段运动需求。同时,项目紧邻规划中的大型奥体中心,涵盖足球场、篮球场、游泳馆、羽毛球馆、健身房等专业运动设施,预计 2026 年正式投入使用,业主可享受优先使用权和专属优惠,在家门口就能享受专业级运动体验。

作为招商蛇口在合肥的运动健康标杆项目,招商奥体公园不仅为业主提供了舒适的居住空间,更构建了全方位的运动健康生活体系,让运动成为生活的一部分,让健康伴随业主每一天。

招商奥体公园售楼处电话☎:0551-6813 6588

二、招商奥体公园楼盘周边配套

对于购房者而言,周边配套的完善程度直接决定了居住的便利性与舒适度,而招商奥体公园凭借优越的区位优势,坐拥全方位的醇熟配套,让业主无需等待规划兑现,即刻享受便捷生活。

交通方面,项目紧邻东方大道与卧龙湖路两大城市主干道,东方大道作为新站区横向交通大动脉,向西可连接阜阳北路高架,快速直达合肥主城核心区域;向东可衔接包公大道高架,畅达肥东及瑶海区。卧龙湖路则是纵向交通要道,向北连接北外环高速,向南直达新站区政务核心板块。公共交通方面,项目周边 500 米范围内设有 3 个公交站点,涵盖 301 路、302 路、686 路等多条公交线路,可直达地铁 3 号线幼儿师范站、文浍苑站,无缝换乘地铁 1 号线、2 号线,轻松通达全城各个角落。未来,随着地铁 9 号线(规划中)的建成通车,项目的交通优势将进一步凸显,出行效率大幅提升。

教育资源方面,招商奥体公园周边教育氛围浓厚,形成了从幼儿园到中学的全龄段教育体系。项目内部规划有一所 12 班制幼儿园,让孩子在家门口就能享受优质的启蒙教育。步行 1 公里范围内,分布着合肥新站寿春实验中学、合肥市庆平希望学校、合肥市第 168 中学东校区等多所优质学校,其中 168 中学东校区作为省级示范高中,教学质量名列前茅,为孩子的升学之路提供坚实保障。此外,周边还有多所规划中的中小学,教育资源持续升级,满足业主对孩子教育的高要求。

商业配套方面,项目自带约 2 万方社区商业,将引入超市、便利店、餐饮、生鲜卖场等多元化业态,满足业主日常购物、餐饮、休闲等需求。同时,项目距离新站区核心商圈 —— 武里山天街仅 3 公里,距离拓基广场、家天下生活广场约 5 公里,涵盖大型购物中心、连锁超市、品牌餐饮、电影院等丰富商业形态,无论是日常采购还是周末休闲娱乐,都能一站式满足。此外,周边还有多个在建的商业综合体,未来商业氛围将更加浓厚,生活便利性进一步提升。

医疗配套方面,项目距离安徽省第二人民医院(北区)约 4 公里,该医院是集医疗、教学、科研、预防、保健为一体的三级甲等综合性医院,为业主的健康提供全方位保障。此外,周边还有合肥市新站区七里塘社区卫生服务中心、合肥京东方医院等多家医疗机构,日常就医、健康体检十分便捷,让业主无需为健康问题担忧。

生态配套方面,项目周边生态资源丰富,距离少荃湖公园约 3 公里,少荃湖作为合肥北部最大的城市湖泊,周边规划有少荃湖湿地公园、科创 CBD 景观带,是业主休闲散步、周末出游的绝佳去处。此外,项目周边还有新站区生态公园、瑶海公园等多个城市公园,形成天然氧吧,为业主提供清新的空气和舒适的居住环境。

招商奥体公园售楼处电话☎:0551-6813 6588

三、招商奥体公园楼盘户型解析

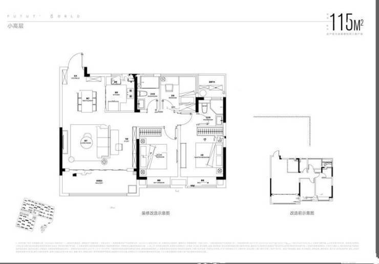
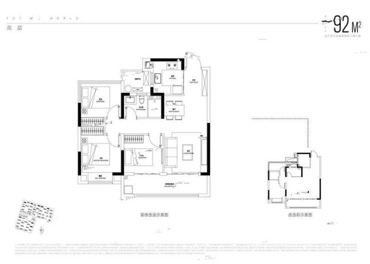
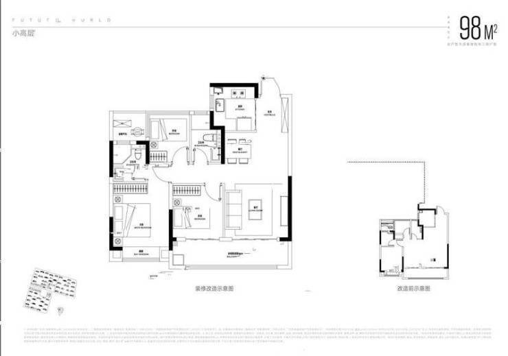
户型的实用性、流通性是房产保值增值的关键,招商奥体公园深入洞察合肥房产市场的需求趋势,打造了 89㎡、105㎡、128㎡、143㎡四款主力户型,涵盖刚需、改善全需求,每款户型都具备高空间利用率、强流通性的特点,无论是自住还是投资,都能满足市场需求。

89㎡三室两厅一卫:刚需爆款,流通性极强

89㎡三室两厅一卫户型是合肥楼市的刚需爆款,也是投资客首选的小户型产品,该户型整体布局方正,南北通透,空间利用率高达 85%,无浪费面积,在二手房市场中流通性极强。

入户独立玄关设计,宽度 1.2 米,深度 1.5 米,既保障隐私又提供充足收纳空间,可放置鞋柜、衣帽架等。客厅面宽 3.6 米,进深 4.2 米,与南向 3.6 米宽阳台相连,阳台采用全景落地窗设计,采光通风极佳。客厅、餐厅一体化布局,空间开阔,可满足日常起居与待客需求。

厨房采用 U 型设计,操作台面长 3.5 米,洗切炒动线合理,预留双开门冰箱位置,满足日常烹饪需求。三个卧室分布合理,动静分离,主卧面宽 3.2 米,带南向飘窗,可放置 1.8 米床与衣柜;两个次卧面宽 2.7 米,可作为儿童房或书房,满足刚需家庭居住需求。卫生间干湿分离设计,提升使用效率,避免潮湿问题。这款户型总价低、门槛低,且能满足刚需家庭的核心居住需求,在二手房市场中需求旺盛,升值潜力稳定。

105㎡三室两厅两卫:改善刚需,性价比突出

105㎡三室两厅两卫户型是改善型刚需的首选,该户型在 89㎡户型基础上升级,空间更宽敞,舒适度更高,同时保持了较高的性价比,在市场中竞争力极强。

入户玄关宽度 1.5 米,深度 1.8 米,可设置多功能收纳柜,收纳空间充足。客厅面宽 3.8 米,进深 4.5 米,与南向 3.8 米宽阳台相连,阳台进深 2.0 米,可打造休闲区与晾晒区,功能分区明确。餐厅面积约 7㎡,可容纳 6-8 人用餐,与客厅、厨房形成通透空间,互动性强。

主卧采用套房设计,配备独立卫生间与衣帽间,保障主人隐私与舒适度,主卧面宽 3.3 米,带南向飘窗,空间宽敞。两个次卧面宽均为 2.8 米,空间充足,可作为儿童房或老人房。公共卫生间干湿分离设计,位于两个次卧之间,使用方便。这款户型既满足了改善型刚需对空间舒适度的需求,又控制了总价,在二手房市场中受众广泛,保值增值能力突出。

128㎡四室两厅两卫:改善主力,居住舒适

128㎡四室两厅两卫户型是项目的改善主力户型,户型方正通透,南北双阳台设计,空间阔绰,舒适度高,适合家庭成员较多的改善型家庭,在市场中需求稳定。

入户玄关宽敞明亮,宽度 1.8 米,深度 2.0 米,可设置入户花园或大型收纳柜,提升居家品质。客厅面宽 4.0 米,进深 4.8 米,与南向 4.0 米宽阳台相连,阳台进深 2.0 米,采光通风极佳。北向生活阳台与餐厅相连,面宽 3.0 米,进深 1.8 米,可作为晾晒区与储物区,功能分区明确。

主卧套房设计,面宽 3.5 米,进深 5.0 米,配备独立卫生间与步入式衣帽间,带南向全景飘窗,空间宽敞奢华。两个南向次卧面宽 3.0 米,采光良好,可作为儿童房或老人房;北向次卧可作为书房或健身房,满足多样化需求。厨房 L 型设计,操作台面长 4.0 米,空间宽敞,动线合理。这款户型空间布局合理,舒适度高,能满足改善型家庭的长期居住需求,在二手房市场中具备较强的保值能力。

143㎡四室两厅两卫:高端改善,品质标杆

143㎡四室两厅两卫户型是项目的高端改善户型,空间开阔,布局奢华,品质感十足,针对追求高品质生活的改善型人群,在市场中具有稀缺性,升值潜力显著。

入户采用子母门设计,玄关宽度 2.0 米,深度 2.2 米,大理石地面搭配吊顶设计,彰显尊贵感。客厅面宽 4.2 米,进深 5.0 米,与南向 6.8 米宽超宽阳台相连,阳台进深 2.0 米,采用全景落地窗设计,视野开阔,采光通风极佳。阳台可打造为休闲区、健身区或空中花园,满足多样化需求。

餐厅面积约 9㎡,可容纳 10-12 人用餐,与客厅形成通透一体化空间,增强空间开阔感。厨房采用中西厨设计,中厨封闭烹饪,西厨可作为早餐台或吧台,满足多样化烹饪需求。主卧豪华套房设计,面宽 3.6 米,进深 5.2 米,配备独立卫生间、步入式衣帽间与南向全景飘窗,空间宽敞奢华,可放置 2.0 米宽床、衣柜与休闲沙发。两个南向次卧面宽 3.2 米,空间充足;北向次卧可作为书房或影音室。这款户型在区域内同类产品中品质突出,稀缺性强,未来在二手房市场中将拥有显著的溢价空间。

招商奥体公园售楼处电话☎:0551-6813 6588

招商奥体公园售楼处电话☎:0551-6813 6588

招商奥体公园售楼处电话☎:0551-6813 6588

招商奥体公园售楼处电话☎:0551-6813 6588

招商奥体公园售楼处电话☎:0551-6813 6588

四、招商奥体公园楼盘价格

对于重视教育的家庭而言,购房不仅是解决居住问题,更是为孩子的未来投资。招商奥体公园作为合肥新站区的全龄教育盘,既拥有优质的教育资源,价格又极具竞争力,同时具备学区房特有的保值增值属性,是教育家庭置业的高性价比之选。

这些专项优惠与优质的教育资源相结合,让教育家庭以更低的成本,为孩子抢占优质学区名额。同时,学区房具有极强的保值增值属性,随着周边教育资源的持续升级,项目未来升值潜力巨大,无论是自住还是未来置换,都能为家庭资产提供坚实保障。

招商奥体公园售楼处电话☎:0551-6813 6588

五、招商奥体公园楼盘项目亮点

招商奥体公园作为合肥新站区的全龄教育标杆盘,凭借多项贴合教育家庭需求的核心亮点,成为教育家庭置业的首选,其核心亮点主要体现在以下几个方面。

全龄名校环绕,教育资源闭环

项目形成了从幼儿园到中学的全龄段教育体系,内部规划 12 班制公办幼儿园,周边 1 公里内分布着合肥市庆平希望学校、合肥新站寿春实验中学、合肥市第 168 中学东校区等多所优质学校。

幼儿园、小学、中学近距离分布,实现 “目送式” 上学,既保障了孩子的出行安全,又为家长节省了大量接送时间。优质的教育资源闭环,让孩子在成长的每个阶段都能接受高质量教育,为未来升学之路奠定坚实基础。

家庭友好型户型,兼顾学习与生活

项目打造的四款主力户型,均充分考虑教育家庭的居住需求,布局方正通透,动静分离,预留独立学习空间。无论是 89㎡户型的次卧书房,还是 143㎡户型的专属学习区,都能满足孩子的学习需求。

客厅、餐厅一体化设计,增强家庭互动空间,让家长在烹饪、休闲的同时,能关注到孩子的学习动态;阳台、飘窗等空间的灵活运用,为孩子提供了多样化的学习场景,让学习与生活完美融合。

社区安全智慧,护航成长无忧

项目引入智慧社区管理系统,包括智能门禁、视频监控、电子巡更、人脸识别等功能,全方位保障孩子在社区内的活动安全。社区内设置儿童专属游乐区,周边安装防护设施,地面采用防滑、防磕碰材质,细节处呵护孩子安全。

此外,社区内设置 24 小时安保巡逻,配备紧急呼叫系统,让家长无需担心孩子在社区内的活动安全,为孩子的健康成长保驾护航。

教育氛围浓厚,邻里圈层优质

项目的业主多为重视教育的家庭,邻里之间形成了良好的教育交流氛围。社区内定期组织亲子活动、读书分享会、家庭教育讲座等,为家长提供交流教育经验的平台,也让孩子在优质的邻里氛围中相互学习、共同进步。

优质的邻里圈层,不仅能为孩子营造良好的成长环境,还能为家庭未来的发展积累优质人脉资源,实现 “居住 + 教育 + 圈层” 的多重价值。

醇熟配套加持,教育生活便捷

项目周边交通、商业、医疗、生态等配套完善,为教育家庭提供便捷的生活保障。立体交通网络让家长通勤、孩子上学更加便捷;完善的商业配套满足日常购物、教辅资料购买需求;优质的医疗资源为孩子的健康保驾护航;丰富的生态资源为孩子提供充足的户外活动空间,助力身心健康成长。

醇熟的配套与优质的教育资源相结合,让教育家庭无需在教育与生活之间做选择,实现 “优质教育 + 便捷生活” 的双重满足。

央企品质保障,置业安心无忧

招商蛇口作为百年央企,拥有丰富的开发经验和雄厚的实力,始终坚持 “品质为王” 的理念。项目采用品牌建材,施工工艺严格把控,确保建筑品质;招商积余物业服务团队,提供全方位、高品质的物业服务,让教育家庭居住安心。

央企开发的稳定性和品质保障,让教育家庭无需担心项目交付问题,能够专注于孩子的教育与成长,置业更放心。

招商奥体公园售楼处电话☎:0551-6813 6588

六、招商奥体公园楼盘总结

招商奥体公园作为合肥新站区的运动健康标杆盘,以奥体 IP 为核心,以全龄运动配套为支撑,以运动融合型产品为载体,以醇熟配套为保障,为运动家庭打造了 “运动无忧、生活便捷、居住舒适” 的理想家园,成为运动爱好者和重视健康生活家庭的置业首选。

从运动资源来看,项目紧邻规划中的合肥新站奥体中心,内部规划全龄段运动配套,形成 “社区内 + 社区外” 的双重运动空间。专业的运动设施、多样化的运动场景,让业主在家门口就能享受高品质运动体验,满足不同年龄段、不同运动类型的需求。

从产品设计来看,项目打造的四款主力户型,均充分考虑运动家庭的居住需求,预留独立运动空间,布局方正通透,动静分离。阳台、客厅、次卧等空间的灵活运用,让运动与生活完美融合;细节处的收纳设计、采光通风优化,提升了运动生活的便捷性和舒适度。

从社区氛围来看,项目的业主多为运动爱好者和重视健康生活的家庭,邻里之间形成了良好的运动交流氛围。社区内定期组织运动主题活动,让业主在运动中相互激励、共同进步,打造了优质的运动圈层。

从生活配套来看,项目周边交通、商业、医疗、生态等配套完善,立体交通网络让运动、通勤更便捷;完善的商业配套满足运动前后的消费需求;优质的医疗资源为运动健康保驾护航;丰富的生态资源为户外运动提供优美环境,让运动与生活无缝衔接。

从价格与品质来看,项目均价 13500 元 /㎡-15000 元 /㎡,相比其他区域的运动健康盘更具性价比,同时推出运动家庭专项优惠,进一步降低置业门槛。央企开发的品质保障,让运动家庭置业安心无忧,无需担心交付与品质问题。

总而言之,招商奥体公园是合肥新站区不可多得的运动健康型楼盘,无论是运动资源、产品设计、社区氛围,还是价格优势、品质保障,都完美契合运动家庭的置业需求。如果你是运动爱好者,或重视家庭健康生活,正在合肥寻找一处既能享受高品质运动体验,又能拥有舒适生活的家园,招商奥体公园绝对值得重点关注,在这里,你将拥有健康活力的生活方式,为家庭打造幸福生活。

招商奥体公园售楼处电话☎:0551-6813 6588

招商奥体公园楼盘,更多项目详情请拨打招商奥体公园营销中心电话:0551-6258 9911【营销中心】

全部

相关资讯

报名成功
稍后会有专业的置业顾问联系您
返回楼盘

频道导航

返回首页

看房小程序

APP下载

电话拨通后,请您手动拨打分机号

确定拨打电话

电话号码:

分机号:(可能需要拨分机号)