包河区招商雍润府均价多少

搜狐焦点合肥站

2024-06-03 17:37:28

购房群

买房如何避坑,加入购房群,看看他们怎么说

立即进群

近几年来,随着一众品牌央企纷纷入驻,带来了一座座高端竞品质楼盘项目,再加上得天独厚的优越地理位置,便捷发达的交通,让淝河板块成为楼市的热门区域,无论是刚需还是改善,置业热门均高。

在目前淝河板块一批在售的新盘中,招商雍润府的交房时间相当早,预计今年年底交付,对交房时间有硬性要求的网友,招商雍润府可重点考虑下。

营销咨询号码:0551-68111210

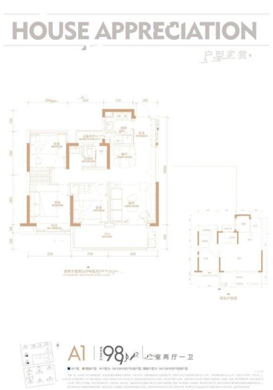
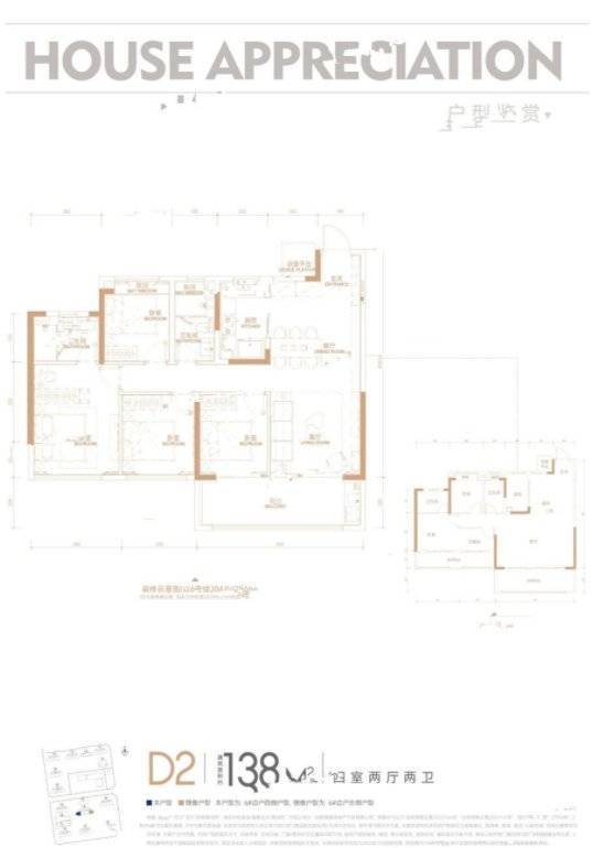
项目具体位于郎溪路与历口路交叉口,地处淝河2.0板块,旁边便是招商四季臻邸、中国铁建花语江南等项目,是央企旗下的雍系人居作品,项目整体规划拟建11栋住宅,体量不算大,规划户型面积段98-138平,主要面向城市刚需、刚改客群。

招商雍润府项目地理位置不错,周边汇集了丰富齐全的配套资源与规划,例如郎溪路、上海路、北京路、东二环、四号线、六号线双地铁口,交通便捷发达,去往各大区域均很方便高效,周边还有多所学校,满足孩子上学需求,翡翠天际商业、华润万象汇、星隆购物广场、杉杉奥特莱斯、合肥第三人民医院、市中医院、淝河生态公园等,全方位配套,满足日常多元化需求。

在品质方面,雍润府采用基座铝板、石材等建筑材料,构建高品质的建筑外立面,酒店式双入户大堂与独立电梯厅,多主题架空层,配套丰富,满足业主多样需求,三轴两环两园五剧场围合式的社区景观布局,为业主呈现一派静谧生态宜居场所,项目为装修交付,品质高,中央空调、地暖和新风三大件一应俱全,精选一线品牌,规划4大收纳系统,8大精工配置,62项匠心细节设计等,让业主带来更高品质的人居生活。

营销咨询号码:0551-68111210

招商雍润府尾盘少量房源在售,均价约1.9万-2.2万,具体一房一价,更多项目详情欢迎致电咨询。

全部

相关资讯

报名成功
稍后会有专业的置业顾问联系您
返回楼盘

频道导航

返回首页

看房小程序

APP下载

电话拨通后,请您手动拨打分机号

确定拨打电话

电话号码:

分机号:(可能需要拨分机号)