【少荃湖招商新房】新站区招商奥体公园新房周边配套-学区

搜狐焦点合肥站

2025-11-19 01:26:57

购房群

买房如何避坑,加入购房群,看看他们怎么说

立即进群

招商奥体公园楼盘电话号码:0551-6258 9911【营销中心】

欢迎来电咨询!可预约销售人员(来电尊享内部优惠活动)

【2024房价特价信息丨详细解答丨在售户型图丨项目介绍丨在售房源丨周边配套】

在合肥 “东拓北进” 的城市发展战略下,新站高新技术产业开发区已然成为城市发展的新引擎,而位于东方大道与卧龙湖路交口往南 200 米的招商奥体公园,正是这片价值高地中最受瞩目的楼盘之一。项目由招商蛇口匠心打造,作为招商局集团旗下的核心企业,招商蛇口深耕地产行业 40 余年,业务遍布全国 111 个城市及地区,开发了超 600 个精品项目,凭借稳健的经营风格、卓越的产品品质和优质的服务,赢得了市场和业主的广泛认可,连续多年位列中国房地产百强企业前列。

招商奥体公园总投资超 50 亿元,总占地面积约 180 亩,总建筑面积约 35.6 万平方米,其中住宅建筑面积约 25 万平方米,社区商业约 2 万平方米,幼儿园约 0.6 万平方米,其余为公共配套及地下车库。项目规划容积率仅 2.0.建筑密度 22%,绿化率高达 40%,是区域内稀缺的低密生态社区,旨在为业主打造 “推窗见绿、出门入园” 的宜居环境。

项目整体规划遵循 “以人为本、生态优先、动静分离” 的设计理念,将住宅、商业、教育、休闲等功能业态有机融合。住宅部分由 18 栋高层和 12 栋洋房组成,高层产品层数为 18-24 层,洋房产品层数为 6-8 层,总户数约 2200 户,车位配比 1:1.2.充分满足业主的停车需求。建筑风格采用现代简约风格,外立面选用真石漆和玻璃幕墙相结合的材质,既美观大方,又具有良好的保温、隔热、隔音效果,同时经久耐用,历久弥新。

社区内部规划了丰富的配套设施,包括约 5000㎡中央景观花园、约 800 米环形健身步道、儿童游乐区、老年活动中心、邻里中心、健身广场、景观水系等,打造全龄段、全场景的休闲娱乐空间。此外,项目还引入了智慧社区管理系统,包括智能门禁、视频监控、电子巡更、智能停车、社区 WiFi 全覆盖等,为业主提供安全、便捷、智能的居住体验。

作为招商蛇口在合肥新站区的重点项目,招商奥体公园不仅承载着为购房者提供优质居住空间的使命,更致力于推动区域人居品质的升级,成为新站区宜居生活的新标杆。

招商奥体公园售楼处电话☎:0551-6813 6588

二、招商奥体公园楼盘周边配套

招商奥体公园的核心竞争力在于 “四维立体交通”,而完善的生活配套则让这份便捷更加实用。项目周边交通、教育、商业、医疗、生态等配套一应俱全,让业主在享受便捷出行的同时,无需为生活便利担忧,实现 “交通与生活的双重便捷”。

交通配套:四维立体网络,畅达全城无压力

主干道 + 高架:自驾出行高效便捷

项目紧邻东方大道与卧龙湖路两大城市主干道,形成 “一横一纵” 的交通骨架。东方大道作为新站区横向交通大动脉,双向 6 车道,路况良好,向西直接衔接阜阳北路高架,20 分钟直达合肥火车站、淮河路步行街、合肥政务区等主城核心区域;向东无缝对接包公大道高架,15 分钟可达肥东县城、瑶海万达商圈,30 分钟直达合肥南站,极大提升了自驾出行效率。

卧龙湖路作为新站区纵向交通要道,北接北外环高速,驾车 30 分钟可达合肥新桥国际机场;南连新站区政务核心板块,10 分钟直达新站区管委会、京东方医院、武里山天街等重要节点,满足业主日常通勤、购物、就医等多样化出行需求。两大主干道与双高架的组合,让业主摆脱拥堵困扰,实现 “快速上高架,全城任我行”。

地铁:双地铁加持,公共交通升级

公共交通方面,项目拥有 “现有地铁 + 规划地铁” 的双重优势。距离已通车的地铁 3 号线幼儿师范站仅 1.5 公里,步行 15 分钟即可到达,或乘坐 301 路公交 3 站直达,地铁 3 号线贯穿合肥西南 - 东北方向,无缝换乘地铁 1、2、4、5 号线,40 分钟内可达滨湖新区、高新区、蜀山经开区等全城各个角落,彻底解决上班族的通勤难题。

更值得期待的是,规划中的地铁 9 号线将在项目周边 500 米范围内设置站点,目前已进入前期筹备阶段,预计 2025 年开工建设,2029 年建成通车。地铁 9 号线作为合肥北部重要的纵向地铁线路,将连接新站区、瑶海区、包河区等区域,届时项目将真正实现 “步行达地铁”,公共交通出行效率将进一步提升,业主无论是通勤、购物还是休闲,都将更加便捷。

公交:多条线路环绕,短途出行便利

项目周边 500 米范围内设有卧龙湖路东方大道、东方大道卧龙湖路、新站寿春实验中学等 3 个公交站点,涵盖 301 路、302 路、686 路、803 路等多条公交线路。301 路连接地铁 3 号线与新站区北部区域,302 路直达合肥火车站,686 路覆盖新站区核心商圈,803 路串联起周边多个社区与学校,满足业主短途出行、接驳地铁等需求,为老人、孩子等不便于自驾的人群提供了便捷的出行选择。

教育配套:交通便捷 + 名校环绕,上学无忧

项目周边教育资源丰富,形成了从幼儿园到中学的全龄段教育体系,且依托便捷的交通网络,孩子上学更加轻松。项目内部规划有 12 班制公办幼儿园,预计 2025 年正式投入使用,业主子女足不出社区即可享受优质启蒙教育,无需担心通勤安全问题。

步行 1 公里范围内,合肥新站寿春实验中学、合肥市庆平希望学校、合肥市第 168 中学东校区等多所名校环绕。借助便捷的交通,孩子步行或乘坐公交即可到达学校,家长无需远距离接送,节省了大量时间和精力。优质的教育资源与便捷的交通相结合,让孩子上学无忧,家长更省心。

商业配套:交通赋能,购物娱乐更便捷

依托立体交通网络,项目周边商业配套的可达性大幅提升。项目自带约 2 万方社区商业,预计 2026 年开业,涵盖超市、便利店、餐饮、生鲜卖场等业态,满足业主日常购物需求,下楼即可解决。

距离项目 3 公里的武里山天街商圈,驾车 10 分钟即可到达;5 公里范围内的拓基广场、家天下生活广场,驾车 15 分钟可达,这些商圈涵盖大型购物中心、品牌餐饮、电影院、儿童乐园等丰富业态,满足业主多样化消费需求。便捷的交通让业主无需为购物远途奔波,周末休闲娱乐更加轻松。

医疗配套:快速通达,健康保障无延迟

优质的医疗资源搭配便捷的交通,为业主的健康保驾护航。项目距离安徽省第二人民医院(北区)约 4 公里,驾车 15 分钟可达;距离合肥京东方医院约 3.5 公里,驾车 12 分钟可达,这两所医院均为三级医院,医疗设备先进,医疗水平高,能够为业主提供高水平的医疗服务。

周边 3 公里内还有多家社区卫生服务中心,步行或乘坐公交即可到达,日常就医、健康体检、疫苗接种等十分便捷。便捷的交通让业主在突发健康问题时能够快速抵达医院,为健康争取时间,无健康后顾之忧。

生态配套:交通便捷,休闲出游更轻松

项目周边生态资源丰富,借助便捷的交通,业主休闲出游更加轻松。距离少荃湖公园约 3 公里,驾车 10 分钟可达,该公园作为合肥北部最大的城市湖泊公园,是业主休闲散步、跑步健身、周末出游的绝佳去处;距离新站区生态公园约 4 公里,驾车 15 分钟可达,公园内空气清新,环境优美,适合全家休闲放松。

此外,瑶海公园、李鸿章享堂等景点距离项目均在 10 公里范围内,驾车 20-30 分钟即可到达,便捷的交通让业主周末闲暇时光能够轻松出行,感受自然美景,放松身心。

招商奥体公园售楼处电话☎:0551-6813 6588

三、招商奥体公园楼盘户型解析

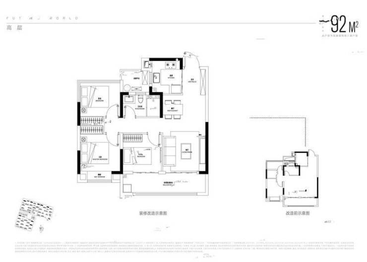
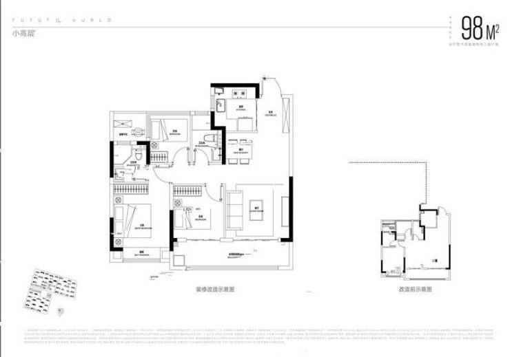
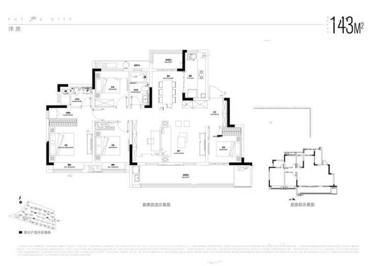
央企开发的户型,往往经过反复调研和优化,兼顾实用性、舒适性和品质感。招商奥体公园深入洞察合肥购房者的居住需求,结合央企的品质标准,打造了 89㎡、105㎡、128㎡、143㎡四款主力户型,涵盖刚需、改善全需求,每款户型都具备高空间利用率、强品质感的特点,让业主享受央企级的居住体验。

89㎡三室两厅一卫:刚需品质户,紧凑实用

89㎡三室两厅一卫户型是刚需人群的品质之选,整体布局方正,南北通透,空间利用率高达 85%,无浪费面积,同时在细节处彰显央企品质。

入户处设置独立玄关,宽度 1.2 米,深度 1.5 米,采用大理石地面,耐磨易清洁,玄关柜选用环保板材,无甲醛异味,既保障了室内隐私,又能作为收纳空间,放置鞋柜、衣帽架等。玄关右侧设有挂钩和换鞋凳,细节设计贴心,方便业主日常使用。

客厅位于户型中央,面宽 3.6 米,进深 4.2 米,空间宽敞明亮。客厅墙面采用环保乳胶漆,平整度高,无开裂风险;地面采用品牌瓷砖,防滑耐磨,打理方便。客厅与南向阳台相连,阳台面宽 3.6 米,进深 1.8 米,采用断桥铝门窗 + 双层中空 Low-E 玻璃,隔音、隔热、保温效果极佳,阳台栏杆采用不锈钢材质,安全牢固。

餐厅紧邻客厅和厨房,面积约 6㎡,可容纳 4-6 人同时用餐。餐厅与厨房之间设有滑动门,采用品牌五金件,开关顺畅,静音效果好。厨房位于户型西侧,采用 U 型设计,操作台面长 3.5 米,选用石英石材质,耐磨耐脏;橱柜选用品牌定制,环保等级高,收纳空间充足;厨房配备品牌抽油烟机、燃气灶,性能稳定,排烟效果好。

三个卧室分布在户型东侧和北侧,动静分离,避免了活动区对休息区的干扰。卧室墙面采用环保乳胶漆,地面铺设品牌实木复合地板,脚感舒适,环保无味。主卧面宽 3.2 米,带南向飘窗,飘窗台面采用大理石材质,耐用易清洁;两个次卧面宽均为 2.7 米,空间充足,可作为儿童房或书房,满足刚需家庭居住需求。

卫生间位于户型北侧,面积约 4.5㎡,采用干湿分离设计,地面选用防滑瓷砖,墙面采用防水瓷砖,防水效果好,不易受潮发霉。卫生间配备品牌马桶、洗手盆、花洒,品质可靠,使用便捷;预留了洗衣机接口,方便业主使用。

105㎡三室两厅两卫:改善品质户,舒适升级

105㎡三室两厅两卫户型是改善型刚需的品质优选,在 89㎡户型基础上升级,空间更宽敞,舒适度更高,同时进一步强化了央企品质细节。

入户玄关更加开阔,宽度 1.5 米,深度 1.8 米,采用大理石地面搭配金属线条装饰,彰显品质感。玄关柜选用品牌定制,采用推拉门设计,收纳空间充足,可放置家庭杂物、孩子的玩具等,让居家生活更加整洁有序。

客厅面宽提升至 3.8 米,进深 4.5 米,空间更加宽敞明亮。客厅吊顶采用双眼皮设计,搭配筒灯和射灯,营造出温馨舒适的氛围;电视背景墙预留了插座和网线接口,方便业主安装电视和智能家居设备。客厅与南向阳台相连,阳台面宽 3.8 米,进深 2.0 米,采用全景落地窗设计,断桥铝门窗 + 双层中空 Low-E 玻璃,最大化引入自然光线,同时保障了隔音隔热效果。

餐厅面积约 7㎡,可容纳 6-8 人同时用餐,与客厅形成通透的一体化空间,增强了空间的开阔感。餐厅吊顶与客厅吊顶相呼应,风格统一;餐厅墙面预留了装饰画挂钩,方便业主个性化装饰。

厨房位于户型西侧,采用 U 型设计,操作台面长 3.8 米,石英石材质耐磨耐脏;橱柜选用品牌定制,配备缓冲铰链,开关无声;厨房配备品牌燃气热水器、抽油烟机、燃气灶,性能稳定,使用安全;预留了双开门冰箱位置,满足大家庭的储物需求。

三个卧室分布合理,动静分离。主卧采用套房设计,面宽 3.3 米,进深 4.8 米,带南向飘窗,飘窗台面大理石材质,视野开阔。主卧配备独立卫生间和衣帽间,衣帽间采用品牌定制衣柜,收纳空间充足;独立卫生间采用干湿分离设计,配备品牌智能马桶、花洒、洗手盆,品质高端,使用舒适。两个次卧面宽均为 2.8 米,空间充足,采光良好,可作为儿童房或老人房,满足改善型家庭居住需求。

公共卫生间位于两个次卧之间,面积约 5㎡,采用干湿分离设计,地面防滑瓷砖,墙面防水瓷砖,防水效果好;配备品牌洁具,品质可靠,使用便捷。

128㎡四室两厅两卫:改善品质户,阔绰舒适

128㎡四室两厅两卫户型是项目的改善主力户型,户型方正通透,南北双阳台设计,空间阔绰,舒适度高,品质感十足,适合家庭成员较多的改善型家庭。

入户玄关宽敞明亮,宽度 1.8 米,深度 2.0 米,采用大理石地面和吊顶设计,搭配筒灯和射灯,营造出高端大气的氛围。玄关柜选用品牌定制,采用组合式设计,既有开放式展示区,又有封闭式收纳区,收纳空间充足,可放置入户花园绿植、家庭杂物等。

客厅面宽 4.0 米,进深 4.8 米,空间宽敞开阔。客厅墙面采用环保乳胶漆,搭配金属装饰线条,彰显品质感;地面铺设品牌实木复合地板,脚感舒适,环保无味。客厅与南向景观阳台相连,阳台面宽 4.0 米,进深 2.0 米,断桥铝门窗 + 双层中空 Low-E 玻璃,采光通风极佳;阳台栏杆采用不锈钢材质,安全牢固,同时不影响观景效果。

北向生活阳台与餐厅相连,面宽 3.0 米,进深 1.8 米,可作为晾晒区和储物区,功能分区明确。生活阳台配备品牌晾衣架,使用便捷;预留了洗衣机、烘干机接口,满足家庭多样化需求。

餐厅面积约 8㎡,可容纳 8-10 人同时用餐,与客厅形成通透的一体化空间,增强了空间的开阔感。餐厅吊顶采用圆形设计,搭配水晶吊灯,彰显尊贵感;餐厅墙面预留了餐边柜位置,方便业主定制收纳。

厨房位于户型西侧,采用 L 型设计,操作台面长 4.0 米,石英石材质耐磨耐脏;橱柜选用品牌定制,收纳空间充足,配备缓冲铰链和抽屉导轨,使用便捷;厨房配备品牌抽油烟机、燃气灶、洗碗机,解放双手,提升生活品质;预留了双开门冰箱位置,满足大家庭的储物需求。

四个卧室分布合理,动静分离,每个卧室都能享受良好的采光和通风。主卧采用套房设计,面宽 3.5 米,进深 5.0 米,带南向全景飘窗,飘窗台面大理石材质,视野开阔。主卧配备独立卫生间和步入式衣帽间,独立卫生间面积约 5㎡,采用干湿分离设计,配备品牌浴缸、智能马桶、花洒、洗手盆,品质高端,使用舒适;步入式衣帽间采用品牌定制衣柜,收纳空间充足,满足业主的衣物收纳需求。

两个南向次卧面宽均为 3.0 米,采光良好,空间充足,可作为儿童房或老人房,卧室墙面预留了书桌和衣柜位置,方便业主定制;北向次卧可作为书房或健身房,空间宽敞,满足多样化需求。

公共卫生间位于户型北侧,面积约 5.5㎡,采用干湿分离设计,配备品牌洁具,品质可靠,使用便捷。

143㎡四室两厅两卫:高端品质户,奢华尊享

143㎡四室两厅两卫户型是项目的高端改善户型,空间开阔,布局奢华,品质感十足,针对追求高品质生活的改善型人群,彰显央企的顶级工艺和品质。

入户采用子母门设计,门体选用品牌安全门,配备指纹锁,安全系数高,使用便捷。玄关宽度 2.0 米,深度 2.2 米,采用大理石地面和吊顶设计,搭配水晶吊灯,营造出奢华大气的氛围。玄关柜选用品牌定制,采用实木材质,工艺精湛,收纳空间充足,同时设有展示区,摆放艺术摆件和家庭合影,提升居家品质。

客厅面宽 4.2 米,进深 5.0 米,空间宽敞开阔,气势十足。客厅墙面采用木饰面和环保乳胶漆组合设计,彰显高端品质;地面铺设品牌实木地板,脚感舒适,环保无味;客厅吊顶采用复杂的造型设计,搭配筒灯、射灯和灯带,营造出奢华的氛围。客厅与南向 6.8 米宽超宽阳台相连,阳台进深 2.0 米,采用全景落地窗设计,断桥铝门窗 + 双层中空 Low-E 玻璃,视野开阔,采光通风极佳;阳台可打造为多功能休闲区,满足休闲、健身、观景等多种需求。

餐厅面积约 9㎡,可容纳 10-12 人同时用餐,与客厅形成通透的一体化空间,增强了空间的开阔感。餐厅吊顶与客厅吊顶相呼应,搭配水晶吊灯,彰显尊贵感;餐厅墙面采用木饰面装饰,品质高端;餐厅与北向生活阳台相连,功能分区明确。

厨房采用中西厨设计,中厨封闭烹饪,避免油烟扩散;西厨可作为早餐台或吧台,满足多样化的烹饪需求。中厨采用 U 型设计,操作台面长 4.5 米,石英石材质耐磨耐脏;橱柜选用品牌定制,实木材质,工艺精湛;中厨配备品牌抽油烟机、燃气灶、洗碗机、蒸烤箱等高端家电,性能稳定,使用便捷;预留了双开门冰箱位置,满足大家庭的储物需求。西厨采用大理石台面,搭配品牌水槽和龙头,品质高端。

四个卧室分布合理,动静分离,私密性强。主卧豪华套房设计,面宽 3.6 米,进深 5.2 米,带南向全景飘窗,飘窗台面大理石材质,视野开阔。主卧配备独立卫生间、步入式衣帽间和小型休闲区,独立卫生间面积约 6㎡,采用干湿分离设计,配备品牌智能马桶、花洒、浴缸、洗手盆等高端洁具,品质奢华,使用舒适;步入式衣帽间采用品牌定制衣柜,实木材质,收纳空间充足;小型休闲区可放置休闲沙发和茶几,打造专属的私密放松空间。

两个南向次卧面宽均为 3.2 米,空间充足,采光良好,可作为儿童房或老人房,卧室墙面采用环保乳胶漆,地面铺设品牌实木复合地板,品质可靠;北向次卧可作为书房或影音室,空间宽敞,满足多样化需求。

公共卫生间位于户型北侧,面积约 6㎡,采用干湿分离设计,配备品牌高端洁具,品质可靠,使用便捷。

招商奥体公园售楼处电话☎:0551-6813 6588

招商奥体公园售楼处电话☎:0551-6813 6588

招商奥体公园售楼处电话☎:0551-6813 6588

招商奥体公园售楼处电话☎:0551-6813 6588

招商奥体公园售楼处电话☎:0551-6813 6588

四、招商奥体公园楼盘价格

对于重视教育的家庭而言,购房不仅是解决居住问题,更是为孩子的未来投资。招商奥体公园作为合肥新站区的全龄教育盘,既拥有优质的教育资源,价格又极具竞争力,同时具备学区房特有的保值增值属性,是教育家庭置业的高性价比之选。

主力户型价格区间

目前,招商奥体公园销售均价为 13500 元 /㎡-15000 元 /㎡,根据户型、楼层、朝向的不同,价格有所差异,具体主力户型价格区间如下:

89㎡三室两厅一卫:总价约 120 万元 - 130 万元,单价约 13500 元 /㎡-14600 元 /㎡。低楼层(1-5 层)单价 13500 元 /㎡-13800 元 /㎡,总价 120 万元 - 121 万元;中楼层(6-15 层)单价 13800 元 /㎡-14300 元 /㎡,总价 123 万元 - 127 万元;高楼层(16-24 层)单价 14300 元 /㎡-14600 元 /㎡,总价 127 万元 - 130 万元。

105㎡三室两厅两卫:总价约 140 万元 - 155 万元,单价约 13300 元 /㎡-14800 元 /㎡。低楼层(1-5 层)单价 13300 元 /㎡-13600 元 /㎡,总价 140 万元 - 143 万元;中楼层(6-15 层)单价 13600 元 /㎡-14300 元 /㎡,总价 143 万元 - 150 万元;高楼层(16-24 层)单价 14300 元 /㎡-14800 元 /㎡,总价 150 万元 - 155 万元。

128㎡四室两厅两卫:总价约 170 万元 - 190 万元,单价约 13200 元 /㎡-14800 元 /㎡。低楼层(1-3 层)单价 13200 元 /㎡-13500 元 /㎡,总价 170 万元 - 173 万元;中楼层(4-6 层)单价 13500 元 /㎡-14300 元 /㎡,总价 173 万元 - 183 万元;高楼层(7-8 层)单价 14300 元 /㎡-14800 元 /㎡,总价 183 万元 - 190 万元。

143㎡四室两厅两卫:总价约 190 万元 - 215 万元,单价约 13300 元 /㎡-15000 元 /㎡。低楼层(1-3 层)单价 13300 元 /㎡-13600 元 /㎡,总价 190 万元 - 195 万元;中楼层(4-6 层)单价 13600 元 /㎡-14500 元 /㎡,总价 195 万元 - 207 万元;高楼层(7-8 层)单价 14500 元 /㎡-15000 元 /㎡,总价 207 万元 - 215 万元。

教育盘价格优势

相比合肥其他区域的优质教育盘,招商奥体公园的价格优势极为显著。合肥滨湖新区、政务区的学区房均价普遍在 25000 元 /㎡-35000 元 /㎡,而项目所在的新站区作为价格洼地,教育资源却毫不逊色,168 中学东校区、寿春实验中学等名校加持,均价仅 13500 元 /㎡-15000 元 /㎡,让普通家庭也能轻松享受优质教育资源。

与周边同类型教育盘相比,项目价格同样具有竞争力。周边同类教育盘均价约 14500 元 /㎡-16000 元 /㎡,而招商奥体公园凭借央企开发优势,在品质更优的前提下,每平米价格低 1000 元 - 1500 元,以 105㎡户型为例,总价可节省 10 万元 - 16 万元,极大降低了教育家庭的购房压力。

购房优惠与教育价值匹配

项目针对教育家庭推出了专项购房优惠,进一步降低置业门槛:

教师购房优惠:在职教师凭教师资格证购房,可额外享受总房款 99 折优惠;

多孩家庭优惠:二胎及以上家庭购房,可享受总房款 98.5 折优惠;

团购优惠:3 组及以上教育家庭成团购房,可享受总房款 98 折优惠;

按时签约优惠:认购后 7 天内签约,可享受总房款 99 折优惠。

这些专项优惠与优质的教育资源相结合,让教育家庭以更低的成本,为孩子抢占优质学区名额。同时,学区房具有极强的保值增值属性,随着周边教育资源的持续升级,项目未来升值潜力巨大,无论是自住还是未来置换,都能为家庭资产提供坚实保障。

招商奥体公园售楼处电话☎:0551-6813 6588

五、招商奥体公园楼盘项目亮点

招商奥体公园作为合肥新站区的运动健康标杆盘,凭借多项贴合运动家庭需求的核心亮点,成为运动爱好者和重视健康生活家庭的置业首选,其核心亮点主要体现在以下几个方面。

奥体 IP 加持,运动资源顶级

项目紧邻规划中的合肥新站奥体中心,总建筑面积约 10 万方,涵盖足球场、篮球场、游泳馆、健身房等专业运动设施,预计 2026 年正式投入使用。业主可享受优先使用权、专属运动优惠,在家门口就能享受专业级运动体验。

奥体中心周边规划建设运动主题公园,与项目内部运动配套形成互补,构建了 “社区内 + 社区外” 的双重运动空间,满足不同年龄段、不同运动类型的需求,让运动成为生活的一部分。

全龄运动配套,覆盖全家需求

项目内部规划了约 800 米环形健身步道、健身广场、羽毛球场、乒乓球场、儿童运动游乐区、老年健身区、室内健身驿站等全龄段运动配套,覆盖从幼儿到老人的全年龄段运动需求。

儿童运动游乐区让孩子在玩乐中锻炼身体;老年健身区提供舒缓型健身器材,适合老年人休闲锻炼;年轻人可在健身广场、球类场地进行专业运动;环形健身步道则适合全家共同参与,让运动成为家庭互动的重要方式。

运动融合户型,空间灵活实用

项目打造的四款主力户型,均充分考虑运动家庭的居住需求,预留独立运动空间,布局方正通透,动静分离。阳台、客厅、次卧等空间可灵活改造为运动区,放置健身器材、球类设施等,让运动与生活完美融合。

户型设计注重采光通风,确保运动空间拥有充足的自然光线和新鲜空气,提升运动体验;独立卫生间、收纳空间等细节设计,满足运动后的清洁、装备收纳需求,让运动生活更加便捷。

运动健康圈层,邻里氛围优质

项目的业主多为运动爱好者和重视健康生活的家庭,邻里之间形成了良好的运动交流氛围。社区内定期组织业主运动会、健身课程、户外徒步等运动主题活动,为业主提供交流运动经验、结识志同道合朋友的平台。

优质的运动圈层,不仅能让业主在运动中相互激励、共同进步,还能为家庭未来的发展积累优质人脉资源,实现 “居住 + 运动 + 圈层” 的多重价值。

醇熟配套加持,运动生活便捷

项目周边交通、教育、商业、医疗、生态等配套完善,为运动家庭提供便捷的生活保障。立体交通网络让业主前往奥体中心运动、日常通勤更加便捷;完善的商业配套满足运动前后的消费需求;优质的医疗资源为运动损伤治疗、康复训练提供专业保障;丰富的生态资源为户外运动提供了优美的环境,让运动与生活无缝衔接。

央企品质保障,置业安心无忧

招商蛇口作为百年央企,拥有丰富的开发经验和雄厚的实力,始终坚持 “品质为王” 的理念。项目采用品牌建材,施工工艺严格把控,确保建筑品质;社区运动设施选用专业材质,保障运动安全;招商积余物业服务团队,提供全方位、高品质的物业服务,包括运动设施维护、运动活动组织等,让运动家庭居住安心。

央企开发的稳定性和品质保障,让运动家庭无需担心项目交付问题,能够专注于运动与健康生活,置业更放心。

招商奥体公园售楼处电话☎:0551-6813 6588

六、招商奥体公园楼盘总结

在合肥新站区这片充满活力的热土上,招商奥体公园以央企实力为根基,以完善配套为支撑,以优质户型为核心,以高性价比为优势,成为区域内宜居楼盘的典范之作,无论是刚需人群还是改善型人群,都能在这里找到理想的家。

从项目本身来看,招商蛇口作为百年央企,凭借雄厚的实力和丰富的经验,为项目的品质提供了坚实保障。低密生态的规划、现代简约的建筑风格、全龄段的社区配套,让居住在这里的业主能享受舒适、健康、活力的生活方式。多样化的户型设计,从 89㎡小三室到 143㎡大四室,满足了不同家庭结构的居住需求,每一款户型都经过精心设计,空间利用率高、舒适度强,让居家生活更加惬意。

从周边配套来看,招商奥体公园坐拥交通、教育、商业、医疗、生态等全方位的醇熟配套。便捷的交通网络让业主轻松通达全城;丰富的教育资源让孩子享受全龄段优质教育;完善的商业配套满足业主日常购物、休闲娱乐需求;优质的医疗资源为业主的健康保驾护航;优美的生态环境让业主亲近自然,享受清新空气。完善的配套让生活更加便捷、舒适,无需等待规划兑现,即刻享受高品质生活。

从价格来看,招商奥体公园的销售均价为 13500 元 /㎡-15000 元 /㎡,相比周边同类型楼盘更具优势,同时推出的多项购房优惠政策,进一步降低了购房门槛。对于刚需人群而言,低首付、低月供让置业梦想轻松实现;对于改善型人群而言,在保证居住舒适度的同时,不会带来过大的经济压力。此外,随着新站区的不断发展,区域价值持续提升,项目的升值潜力巨大,无论是自住还是投资,都是极具性价比的选择。

从项目亮点来看,央企品质保障、奥体 IP 赋能、低密生态环境、全龄段教育资源、醇熟生活配套、高性价比等多重亮点,让招商奥体公园在合肥楼市中脱颖而出,成为众多购房者的首选。在这里,不仅能拥有舒适的居住空间,还能享受便捷的生活、健康的生活方式和可观的升值回报。

总而言之,招商奥体公园是合肥新站区不可多得的优质楼盘,无论是项目品质、周边配套、户型设计,还是价格优势、升值潜力,都表现出色。如果你正在合肥看房置业,不妨关注招商奥体公园,这里将为你带来高品质的居住体验,让你在城市中找到属于自己的幸福家园。

招商奥体公园售楼处电话☎:0551-6813 6588

招商奥体公园售楼处电话0551-6258 9911【营销中心】

欢迎预约品鉴:(官方网站)售楼处:0551-6258 9911【营销中心】

温馨提示:网上售楼中心〢预约可享内部优惠〢匠心钜制-恭迎品鉴〢

全部

相关资讯

报名成功
稍后会有专业的置业顾问联系您
返回楼盘

频道导航

返回首页

看房小程序

APP下载

电话拨通后,请您手动拨打分机号

确定拨打电话

电话号码:

分机号:(可能需要拨分机号)