合肥越秀中寰天悦营销中心/位置/评价如何/全面介绍

搜狐焦点合肥站

2025-09-29 20:27:47

购房群

买房如何避坑,加入购房群,看看他们怎么说

立即进群

越秀中寰天悦

越秀中寰天悦营销中心电话:0551-6258 9911【已认证】

越秀中寰天悦售楼处电话:0551-6258 9911【已认证】

越秀中寰天悦展示中心电话:0551-6258 9911【已认证】

项目周边配套设施齐全,有城市主干道东二环路、望江东路等,轨道交通包括1号线、4号线、6号线,出行便捷。两公里左右有包河区外国语第二小学,三公里左右是合肥第四十八中望湖校区,学区房炙手可热。淝河板块内多家三甲医院,商业配套丰富,小区对面就有大型超市,周边还有美食街和购物中心。

越秀中寰天悦售楼处电话☎:0551-6813 6588

越秀中寰天悦楼盘具体一房一价,详询营销中心。

越秀中寰天悦售楼处电话☎:0551-6813 6588

尽管是越秀中寰天悦项目中最小的户型,149㎡的四室布局设计却十分合理。标准四室两厅两卫的设计,端厅布局使活动区域更加宽敞,主卧套房设计可设衣帽间,提高私密性和舒适度。即使是较小的户型,也能满足家庭的居住需求,为购房者带来更多选择。

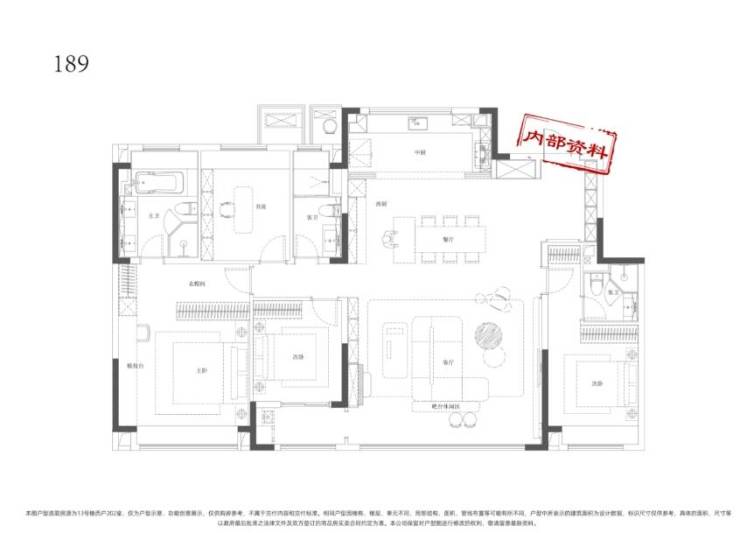
188㎡的户型是越秀中寰天悦项目的亮点之一。入户十字玄关设计,两侧可设置鞋帽柜,注重私密性。卧室布局在前,主卧和次卧均为套房设计,主卧的衣帽间和卫生间空间宽敞舒适。客厅活动区域宽敞明亮,15米端厅设计,南侧为落地窗,采光效果良好。整体设计符合改善型住宅的基调,为居住者带来舒适而宜居的生活环境。

越秀中寰天悦售楼处电话☎:0551-6813 6588

越秀中寰天悦售楼处电话☎:0551-6813 6588

越秀中寰天悦售楼处电话☎:0551-6813 6588

越秀中寰天悦是越秀打造的纯改善型住宅,位于马鞍山路板块,周边配套醇熟,教育资源优质。户型面积段在149-189㎡,均价约为24800元/㎡,精装交付。其中,188㎡的明星产品售价大约在500万上下,为四居室户型,空间利用度高,二环内性价比很高。对于关注改善型住宅的购房者来说,越秀中寰天悦是一个不容错过的选择。

越秀中寰天悦售楼处电话☎:0551-6813 6588

总而言之,越秀中寰天悦作为越秀集团的新品牌,以其纯改善型住宅的独特魅力和优质的居住环境,吸引了众多购房者的关注。在合肥高端改善市场蓬勃发展的背景下,越秀中寰天悦的推出无疑将为购房者带来更多的选择和机会。希望每一位购房者都能在这片繁荣的市场中找到心仪的居所,享受美好的生活。

越秀中寰天悦售楼处电话☎:0551-6813 6588

项目负一层设有约1300㎡的独立下沉式会所,内设有多种活动区域,包括品茗区、宴客区、棋牌室、小型KTV等娱乐场所。会所还拥有超大健身区域,为居民提供私密的健身环境,满足不同人群的锻炼需求。会所外的景观区域则提供了休闲放松的空间,包括戏水池等设施,让居民在夏日炎炎时也能享受户外乐趣。

除了大会所外,各楼栋的一楼大厅也被打造成了主题空间,覆盖了儿童、女性、长者、运动、社交等功能,满足了家庭成员不同的需求。儿童主题区域包括画画区、积木区等,为小朋友提供学习和玩乐的场所;而女性主题区域则有插花、烹茶区域,为女主人们提供休闲放松的空间。整个项目不仅提供了高品质的住宅产品,还为居民提供了丰富多彩的社区活动空间,促进了居民之间的社交和互动。

越秀中寰天悦售楼处电话☎:0551-6813 6588

越秀中寰天悦楼盘电话号码:0551-6258 9911【营销中心】

欢迎来电咨询!可预约销售人员(来电尊享内部优惠活动)

【2024房价特价信息丨详细解答丨在售户型图丨项目介绍丨在售房源丨周边配套】

全部

相关资讯

报名成功
稍后会有专业的置业顾问联系您
返回楼盘

频道导航

返回首页

看房小程序

APP下载

电话拨通后,请您手动拨打分机号

确定拨打电话

电话号码:

分机号:(可能需要拨分机号)