招商奥体公园项目【楼市现状|合肥哪里有新房开盘】

搜狐焦点合肥站

2025-07-21 20:42:04

购房群

买房如何避坑,加入购房群,看看他们怎么说

立即进群

招商奥体公园楼盘电话号码:0551-6258 9911【营销中心】

欢迎来电咨询!可预约销售人员(来电尊享内部优惠活动)

【2024房价特价信息丨详细解答丨在售户型图丨项目介绍丨在售房源丨周边配套】

招商奥体公园位于合肥新站奥体板块内,总面积超过百万平方米,集六种不同业态于一体。项目内规划有高层、小高层和洋房等多种住宅类型,以满足不同购房者的需求。所有住宅均为精装交付,且绿化率较高,项目紧邻地铁4号线,多条主要道路交汇,兼顾了舒适居住与出行便捷。

招商奥体公园售楼处电话☎:0551-6813 6588

商业配套完善,自带活力荟商业街区,周边有大型商业综合体、星级酒店和弘盛商业广场。教育资源丰富,从幼儿园到小学、中学全覆盖。医疗资源充沛,周边有三级甲等医院和数字化医院。自然景观环绕,提供休闲娱乐好去处。户型多样,主打建面89-109㎡,目前享8折优惠,购房还可返现总房款1.5%(税前),但需满足首次到访等条件。招商奥体公园,以卓越品质和丰富配套,引领合肥新风尚。

招商奥体公园售楼处电话☎:0551-6813 6588

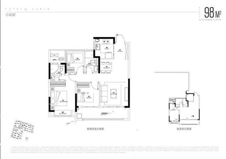
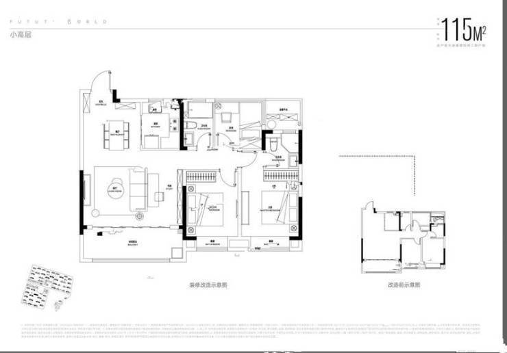
招商奥体公园主打刚需小户型,主力户型面积介于89-119㎡之间,包括二居室和三居室,满足不同购房者的需求。其中,92㎡的户型三室两厅一卫,南北通透的设计,采光和通风良好,主卧带有一个飘窗,卫生间干湿分离,客厅和餐厅一体化设计,空间宽敞。客厅和旁边的卧室阳台相连,阳台空间较大,可打造出一个开放性空间。招商奥体公园的多样户型选择,满足了购房者对于不同空间需求和生活方式的追求。这样的设计不仅满足了购房者的实际需求,也为他们提供了舒适宜居的居住环境。

招商奥体公园售楼处电话☎:0551-6813 6588

招商奥体公园售楼处电话☎:0551-6813 6588

招商奥体公园售楼处电话☎:0551-6813 6588

招商奥体公园售楼处电话☎:0551-6813 6588

商奥体公园售楼处电话☎:0551-6813 6588

近期在售的招商奥体公园一、二期现房,三、四期准现房,户型面积在88-115m²。作为一线品牌央企,招商在合肥拥有多年深耕发展的经验,带来了多座高品质人居作品。

招商奥体公园售楼处电话☎:0551-6813 6588

新站区是合肥市区产证的价格洼地,适合刚需人群,对于刚需客户来说,新站区的房价比较友好。

招商奥体公园售楼处电话☎:0551-6813 6588

招商奥体公园作为合肥新站奥体板块内的综合性住宅项目,拥有优越的地理位置、完善的商业配套和丰富的生活资源。购房者可以在这里找到舒适宜居的住宅,享受便捷的生活服务,同时还能获得优惠政策和回馈。选择招商奥体公园,就是选择高品质生活的开始。

招商奥体公园售楼处电话☎:0551-6813 6588

招商奥体公园地理位置,更多项目详情请拨打楼盘电话:0551-6258 9911【预约热线】欢迎来电咨询!

全部
报名成功
稍后会有专业的置业顾问联系您
返回楼盘

频道导航

返回首页

看房小程序

APP下载

电话拨通后,请您手动拨打分机号

确定拨打电话

电话号码:

分机号:(可能需要拨分机号)