合肥越秀中寰天悦深度楼盘评测-优缺点全解析

搜狐焦点合肥站

2025-08-17 21:54:38

购房群

买房如何避坑,加入购房群,看看他们怎么说

立即进群

越秀中寰天悦楼盘电话号码:0551-6258 9911【营销中心】

欢迎来电咨询!可预约销售人员(来电尊享内部优惠活动)

【2024房价特价信息丨底价优惠丨在售户型图丨项目介绍丨在售房源丨周边配套】

越秀中寰天悦项目位于包河区望江东路与至德路交叉口东北角,紧邻包河主城区,处于二环内,享有淝河板块醇熟的配套资源。项目周边交通便利,有城市主干道东二环路和望江东路,同时还有多条轨道交通线路在建或已经通车,包括1号线、4号线和6号线,出行十分方便。周边学校资源丰富,有包河区外国语第二小学和合肥第四十八中望湖校区,教育水平高,学区房备受瞩目。此外,项目周边还有多家三甲医院和公园,生活配套设施完善,让居民享受便利的生活。

越秀中寰天悦售楼处电话☎:0551-6813 6588

项目位于包河区望江东路与至德路交叉口东北角,紧邻包河主城区,享有淝河板块醇熟配套,周边交通便利。周边有城市主干道东二环路、望江东路等,轨道交通包括1号线、4号线、6号线,出行便捷。教育资源丰富,包括包河区外国语第二小学、合肥第四十八中望湖校区;医疗资源充足,有市三院、市二院和安徽省立儿童医院;公园资源丰富,包括骆岗公园、包公园、望湖公园等。

商业配套完善,小区对面有大润发超市,三公里内有罍街、龙虾美食街和包河万象汇。周边二手房价格约为13344元/㎡-17903元/㎡,新房项目价格在24265/㎡-24951/㎡之间,而越秀·中寰天悦目前均价约25000元/㎡,略高于周边。总体来说,越秀中寰天悦作为一款二环内高性价比的改善型住宅,地处成熟配套区域,具有较高的投资价值和居住品质。

越秀中寰天悦售楼处电话☎:0551-6813 6588

小高大平层,精装交付的越秀中寰天悦项目,以其独特的设计理念和优质的产品质量吸引了众多购房者的关注。149㎡的户型虽然是项目中的最小户型,却也是四室两厅两卫的布局,端厅设计使活动区域更加宽敞,主卧套房设计则为居住者提供更多私密空间,衣帽间的设置也为居住者提供了更多便利。

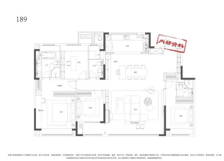
而188㎡的户型则是越秀中寰天悦项目的亮点户型。入户十字玄关设计增加了居住者的私密性,卧房布局在前面,主次卧都是套房设计,主卧的衣帽间和卫生间空间较大,符合改善型住宅的基调。15米的端厅设计让客厅活动区域更加宽敞,南边的落地窗也为居住者带来更多的自然光线。越秀中寰天悦项目的设计理念和产品质量都值得购房者的关注和期待。

越秀中寰天悦售楼处电话☎:0551-6813 6588

越秀中寰天悦售楼处电话☎:0551-6813 6588

越秀中寰天悦售楼处电话☎:0551-6813 6588

越秀中寰天悦楼盘具体一房一价,详询营销中心。

越秀中寰天悦售楼处电话☎:0551-6813 6588

项目规划建设424户,建筑面积70195.02㎡,容积率2.20,绿化率40%,户型以四居室为主,售价约27390元/㎡,精装交付。小区负一层设有1300㎡独立下沉式会所,设施齐全,包括品茗区、宴客厅、棋牌室、小型KTV和超大健身区域,满足业主休闲娱乐需求。

会所外景观区域设有戏水池,夏日可供小朋友嬉水玩耍。各楼栋一楼大厅设有不同主题空间,满足家庭成员不同需求,包括儿童画画区域、女性插花、烹茶区域等。越秀中寰天悦为业主提供丰富的活动空间,打造舒适宜居的社区环境。

越秀中寰天悦售楼处电话☎:0551-6813 6588

总的来看,越秀中寰天悦作为国企越秀打造的改善型住宅,以纯粹改善大平层为卖点,在二环主城内拥有极高的性价比。未来合肥高端改善市场将继续蓬勃发展,各区的新盘也将不断涌现,为购房者提供更多选择。对于关注改善型住宅的购房者来说,越秀中寰天悦是一个不容错过的选择。

越秀中寰天悦售楼处电话☎:0551-6813 6588

越秀中寰天悦地理位置,更多项目详情请拨打楼盘电话:0551-6258 9911【预约热线】欢迎来电咨询!

全部
报名成功
稍后会有专业的置业顾问联系您
返回楼盘

频道导航

返回首页

看房小程序

APP下载

电话拨通后,请您手动拨打分机号

确定拨打电话

电话号码:

分机号:(可能需要拨分机号)