合肥信达碧桂园项目电话号码-价格

搜狐焦点合肥站

2025-05-28 10:57:58

购房群

买房如何避坑,加入购房群,看看他们怎么说

立即进群

信达碧桂园楼盘电话号码:0551-68111601【营销中心】

欢迎来电咨询!可预约销售人员(来电尊享内部优惠活动)【2024房价特价信息丨底价优惠丨在售户型图丨项目介绍丨在售房源丨周边配套】

信达碧桂园项目位于肥东县酿泉路与日出路交口西北角,地理位置优越,交通便利,周边配套设施齐全,吸引了众多购房者的目光。项目规划33栋住宅楼,包括28栋高层和5栋洋房,总占地面积165.59亩,规划用途为居住,容积率≤2.0。一期交付时间为2023年5月30日,二期交付时间为2024年4月30日,给购房者提供了明确的期待。项目交付标准为毛坯,让购房者可以根据自己的喜好和需求进行装修,更加个性化和自由。

信达碧桂园不仅提供高品质的居住环境,还拥有丰富的周边配套设施。交通便利是其一大优势,紧邻地铁2号线东延线,肥东高铁站,有轨电车(规划中)等多种出行方式,让居民能够快速到达城市各处。同时,项目周边还有多所优质学校、医疗机构和商业设施,满足居民的各种需求。生态环境优越,周边有多个公园供居民休闲使用,让居民能够享受到便利舒适的生活。

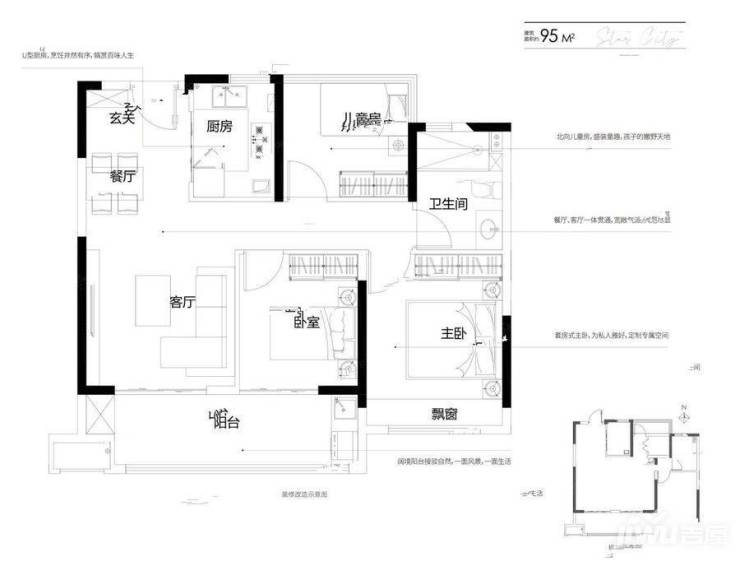
信达碧桂园的户型设计包括三室两厅一卫的95㎡,两卫的105㎡和四室两厅两卫的118㎡房型,让购房者尽享轻奢生活。所有户型都采用方正、全明布局,阳光四季充足、通风性好,空间利用率高,提高了业主的居住舒适度。无论是单身青年还是三口之家,都能在这里找到适合自己的理想家园。

信达碧桂园楼盘具体一房一价,详询营销中心。

信达碧桂园注重品质,建筑设计精良,采用优质材料,保证了房屋的质量和耐久性。项目内设有儿童乐园、健身房、社区花园等配套设施,为居民提供便利的生活体验。无论是在家享受休闲时光,还是出门锻炼身体,信达碧桂园都能满足居民的各种需求。

信达碧桂园作为肥东县的新地标,不仅地理位置优越,交通便利,周边配套设施齐全,还注重品质,提供多样化的户型选择,让购房者可以找到适合自己的理想家园。购房者不仅可以享受轻奢生活,还能在项目内的配套设施中找到便利的生活体验。信达碧桂园,值得您的关注和期待!

信达碧桂园楼盘电话号码:0551-68111601【营销中心】

欢迎来电咨询!可预约销售人员(来电尊享内部优惠活动)【2024房价特价信息丨底价优惠丨在售户型图丨项目介绍丨在售房源丨周边配套】

全部

相关资讯

报名成功
稍后会有专业的置业顾问联系您
返回楼盘

频道导航

返回首页

看房小程序

APP下载

电话拨通后,请您手动拨打分机号

确定拨打电话

电话号码:

分机号:(可能需要拨分机号)