信达碧桂园【得房率和全铝板外立面实测体验】

搜狐焦点合肥站

2025-07-17 01:27:05

购房群

买房如何避坑,加入购房群,看看他们怎么说

立即进群

信达碧桂园楼盘电话号码:0551-68111601【营销中心】

欢迎来电咨询!可预约销售人员(来电尊享内部优惠活动)【2024房价特价信息丨底价优惠丨在售户型图丨项目介绍丨在售房源丨周边配套】

信达碧桂园位于肥东县酿泉路与日出路交口西北角,地理位置优越,交通便利,周边配套设施齐全。项目规划33栋住宅楼,包括28栋高层和5栋洋房,总占地面积165.59亩,容积率≤2.0。一期将于2023年5月30日交付,而二期则在2024年4月30日交付,为购房者提供明确的期待。项目交付标准为毛坯,让购房者可以根据个人喜好和需求进行装修,更加个性化和自由。

项目毗邻地铁2号线延长线,便利业主的日常出行;拥有惠宜品购物中心等繁华商业配套,满足业主的基本日常生活需求;同时,周边还有东城实验*、安师大附属*等丰富的教育资源,为孩子提供一站式教育体系。此外,和睦湖公园、肥东体育公园等生态资源,让业主在闲暇时能够享受自然景观,放松身心。

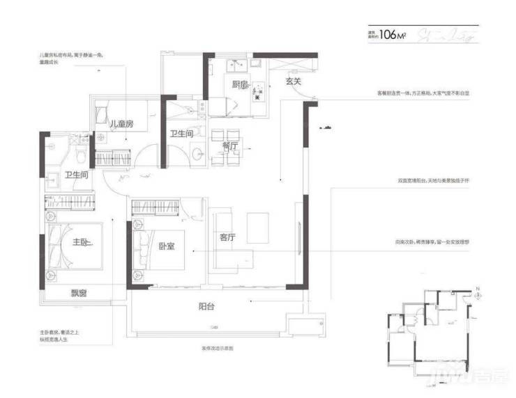
信达碧桂园在户型设计上,打造了三室两厅一卫的95㎡、两卫的105㎡和四室两厅两卫的118㎡房型,方正、全明布局,阳光充足、通风性好,空间利用率高,提高了业主的居住舒适度。无论是单身青年还是三口之家,都可以在这里找到适合自己的理想家园。这个面积范围可以满足不同购房者的需求,让每个家庭都能找到合适的居住空间。

信达碧桂园楼盘具体一房一价,详询营销中心。

信达碧桂园注重品质,建筑设计精良,采用优质材料,保证了房屋的质量和耐久性。项目内设有儿童乐园、健身房、社区花园等配套设施,为居民提供便利的生活体验。这些配套设施不仅丰富了居民的生活,也提升了整个社区的居住品质。信达碧桂园将成为一个集舒适、便利和品质于一体的理想居住地。

总而言之,信达碧桂园项目不仅提供高品质的住房产品,还拥有便利的交通、商业和教育配套,以及丰富的生态资源,为业主打造了一个全方位的舒适生活体验。想要享受高端生活?不妨考虑信达碧桂园!

信达碧桂园楼盘电话号码:0551-68111601【营销中心】

欢迎来电咨询!可预约销售人员(来电尊享内部优惠活动)【2024房价特价信息丨底价优惠丨在售户型图丨项目介绍丨在售房源丨周边配套】

全部

相关资讯

报名成功
稍后会有专业的置业顾问联系您
返回楼盘

频道导航

返回首页

看房小程序

APP下载

电话拨通后,请您手动拨打分机号

确定拨打电话

电话号码:

分机号:(可能需要拨分机号)