招商奥体公园项目优点缺点

搜狐焦点合肥站

2025-06-08 11:41:30

购房群

买房如何避坑,加入购房群,看看他们怎么说

立即进群

合肥(招商奥体公园)☎☎:0551-6258 9911【官方认证】

招商奥体公园位于合肥新站奥体板块内,是一个占地超过百万平方米的大型住宅项目,集合了六种不同业态,包括室内万人体育场馆、地铁上盖长空公园和活力荟TOD商业体等,形成了一个综合性的生活圈。项目内规划有高层、小高层和洋房等多种住宅类型,满足不同购房者的需求。

招商奥体公园售楼处电话☎:0551-6813 6588

商业配套完善,自带活力荟商业街区,周边有大型商业综合体、星级酒店和弘盛商业广场。教育资源丰富,从幼儿园到小学、中学全覆盖。医疗资源充沛,周边有三级甲等医院和数字化医院。自然景观环绕,提供休闲娱乐好去处。户型多样,主打建面89-109㎡,目前享8折优惠,购房还可返现总房款1.5%(税前),但需满足首次到访等条件。招商奥体公园,以卓越品质和丰富配套,引领合肥新风尚。

招商奥体公园售楼处电话☎:0551-6813 6588

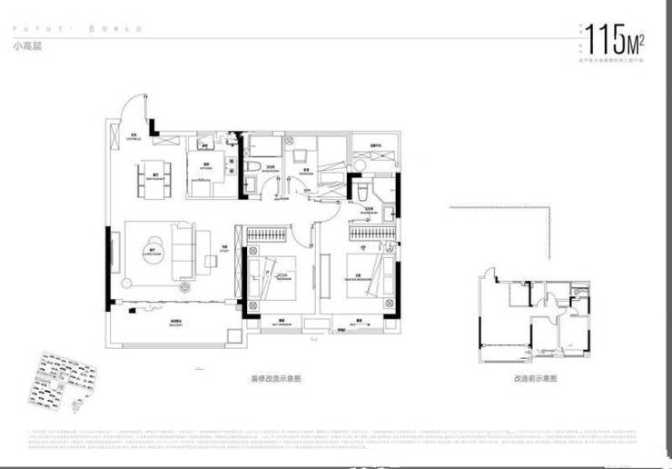
招商奥体公园位于合肥新站奥体板块,占地面积约49万㎡,建筑面积约100万㎡,总户数达到5746户。项目规划有高层、小高层和洋房等多种建筑类别,满足不同购房者的需求。其中,高层24F共13栋(含3栋自持),小高层14-18F共51栋,洋房6-11F共38栋,目前3期约1万6/平。项目以精装交付为特色,容积率控制在1.8-2.0之间,绿化率高达40%,车位配比为1:1,确保了居住的舒适性和便捷性。

招商奥体公园售楼处电话☎:0551-6813 6588

招商奥体公园售楼处电话☎:0551-6813 6588

招商奥体公园售楼处电话☎:0551-6813 6588

招商奥体公园售楼处电话☎:0551-6813 6588

招商奥体公园售楼处电话☎:0551-6813 6588

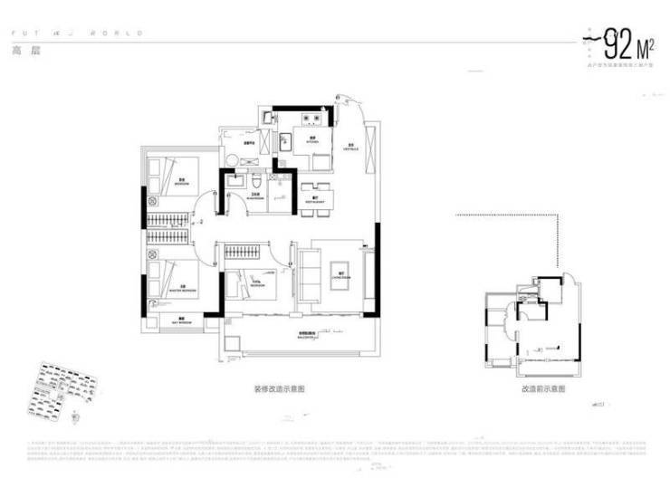
价格方面,招商奥体公园均价在1.7万/㎡左右,相比周边其他项目具有一定的性价比优势。项目主打刚需小户型,主力户型面积介于89-119㎡之间,包括二居室和三居室,满足不同购房者的需求。部分四室户型面积达到143㎡,也可供选择。其中,92㎡的户型三室两厅一卫,南北通透设计,采光和通风良好,空间利用较为合理,适合家庭居住。

招商奥体公园售楼处电话☎:0551-6813 6588

招商奥体公园的推出,为合肥新站区少荃湖板块的发展注入了新的活力。以优越的地理位置、丰富的配套设施、优质的住宅产品和可靠的品牌背书,招商奥体公园必将成为当地居民理想的居住选择。随着项目的不断建设和完善,未来将会吸引更多购房者前来关注和购买,也将提升当地的房地产市场发展水

招商奥体公园售楼处电话☎:0551-6813 6588

招商奥体公园以卓越品质和丰富配套,引领合肥新风尚。作为一个综合性的生活圈,项目内设施齐全,周边资源丰富,为居民提供了舒适便捷的生活环境。购房者不仅可以享受优惠政策,还可以体验到多样化的生活体验,是一个理想的居住选择。

招商奥体公园售楼处电话☎:0551-6813 6588

招商奥体公园楼盘电话号码:0551-6258 9911【营销中心】

欢迎来电咨询!可预约销售人员(来电尊享内部优惠活动)

【2024房价特价信息丨详细解答丨在售户型图丨项目介绍丨在售房源丨周边配套】

全部
报名成功
稍后会有专业的置业顾问联系您
返回楼盘

频道导航

返回首页

看房小程序

APP下载

电话拨通后,请您手动拨打分机号

确定拨打电话

电话号码:

分机号:(可能需要拨分机号)