信达碧桂园楼盘怎么样-值得买吗

搜狐焦点合肥站

2025-05-31 11:38:37

购房群

买房如何避坑,加入购房群,看看他们怎么说

立即进群

信达碧桂园楼盘电话号码:0551-68111601【营销中心】

欢迎来电咨询!可预约销售人员(来电尊享内部优惠活动)【2024房价特价信息丨底价优惠丨在售户型图丨项目介绍丨在售房源丨周边配套】

信达碧桂园位于肥东县酿泉路与日出路交口西北角,地理位置优越,交通便利,周边配套设施齐全,吸引了众多购房者的目光。项目规划33栋住宅楼,包括28栋高层和5栋洋房,占地面积165.59亩,规划用途为居住,容积率≤2.0。交付时间分为一期和二期,为购房者提供了一个明确的期待。信达碧桂园的交付标准为毛坯,让购房者可以根据个人喜好进行装修,更具个性化和自由。

在交通方面,信达碧桂园紧邻地铁2号线东延线(在建),并有多种交通出行方式可选择,方便快捷。而项目周边的学校、医疗机构、商业设施等配套设施也十分完善,为居民的生活提供了全方位的保障。此外,周边生态环境优越,多个公园可供居民休闲使用,让居民在繁忙的城市生活中也能享受到自然的清新空气和宁静。

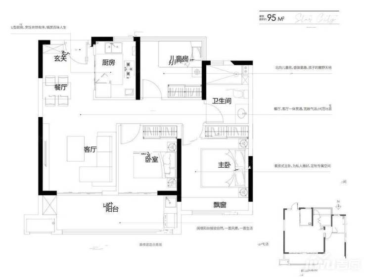
信达碧桂园在户型设计上,打造了三室两厅一卫的95㎡、两卫的105㎡和四室两厅两卫的118㎡房型,方正、全明布局,阳光充足、通风性好,空间利用率高,提高了业主的居住舒适度。无论是单身青年还是三口之家,都可以在这里找到适合自己的理想家园。这个面积范围可以满足不同购房者的需求,让每个家庭都能找到合适的居住空间。

信达碧桂园楼盘具体一房一价,详询营销中心。

信达碧桂园注重品质,建筑设计精良,采用优质材料,保证了房屋的质量和耐久性。项目内设有儿童乐园、健身房、社区花园等配套设施,为居民提供便利的生活体验。这些配套设施不仅丰富了居民的生活,也提升了整个社区的居住品质。信达碧桂园将成为一个集舒适、便利和品质于一体的理想居住地。

信达碧桂园作为肥东县的新兴住宅项目,以其优越的地理位置、多样化的户型选择和注重品质的建筑设计,吸引了众多购房者的关注。无论是购房者的居住需求还是生活体验,信达碧桂园都能为他们提供理想的选择。希望信达碧桂园能成为更多家庭梦想的归宿,为他们营造一个舒适、便利、品质的家园。

信达碧桂园楼盘电话号码:0551-68111601【营销中心】

欢迎来电咨询!可预约销售人员(来电尊享内部优惠活动)【2024房价特价信息丨底价优惠丨在售户型图丨项目介绍丨在售房源丨周边配套】

全部
报名成功
稍后会有专业的置业顾问联系您
返回楼盘

频道导航

返回首页

看房小程序

APP下载

电话拨通后,请您手动拨打分机号

确定拨打电话

电话号码:

分机号:(可能需要拨分机号)