官网→信达碧桂园售楼中心《官方发布》2025最新房价!

搜狐焦点合肥站

2025-05-30 13:10:33

购房群

买房如何避坑,加入购房群,看看他们怎么说

立即进群

信达碧桂园楼盘电话号码:0551-68111601【营销中心】

欢迎来电咨询!可预约销售人员(来电尊享内部优惠活动)【2024房价特价信息丨底价优惠丨在售户型图丨项目介绍丨在售房源丨周边配套】

信达碧桂园项目位于肥东县酿泉路与日出路交口西北角,地理位置优越,交通便利,周边配套设施齐全,吸引了众多购房者的目光。项目规划33栋住宅楼,包括28栋高层和5栋洋房,总占地面积165.59亩,规划用途为居住,容积率≤2.0。一期交付时间为2023年5月30日,二期交付时间为2024年4月30日,给购房者提供了明确的期待。项目交付标准为毛坯,让购房者可以根据自己的喜好和需求进行装修,更加个性化和自由。

在教育方面,附近拥有多所幼儿园、小学和中学,包括安师大附属肥东实验中学等知名学府。医疗方面,距离一级医院肥东县人民医院仅3公里。购物中心、公园等生活配套也齐全,满足居民的各种需求。信达碧桂园的地址位于合肥市肥东县酿泉路与日出路交口,交通便利,生活便捷。

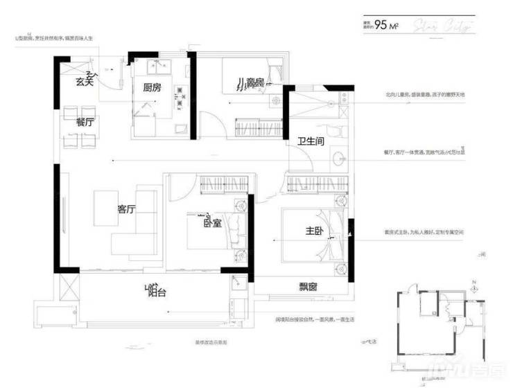
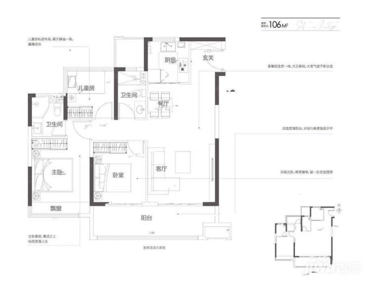
信达碧桂园的三室两厅一卫95㎡和105㎡、四室两厅两卫118㎡的房型,都采用方正、全明布局,阳光充足、通风性好。空间利用率高,实现“动静分区”,提高业主的居住舒适度。即使和老人同住,也能保持各自的私密空间,让每一位家庭成员都能享受到轻奢生活的乐趣。

信达碧桂园楼盘具体一房一价,详询营销中心。

信达碧桂园项目周边拥有和睦湖公园、肥东体育公园等生态资源,让业主在闲暇时可以享受赏景散步的乐趣。关于信达碧桂园的购买价值,基本信息已经介绍完毕,欢迎关注项目动态和资讯,预购从速,体验醇熟配套带来的舒适体验。

总而言之,信达碧桂园项目不仅提供高品质的住房产品,还拥有便利的交通、商业和教育配套,以及丰富的生态资源,为业主打造了一个全方位的舒适生活体验。想要享受高端生活?不妨考虑信达碧桂园!

信达碧桂园楼盘电话号码:0551-68111601【营销中心】

欢迎来电咨询!可预约销售人员(来电尊享内部优惠活动)【2024房价特价信息丨底价优惠丨在售户型图丨项目介绍丨在售房源丨周边配套】

全部
报名成功
稍后会有专业的置业顾问联系您
返回楼盘

频道导航

返回首页

看房小程序

APP下载

电话拨通后,请您手动拨打分机号

确定拨打电话

电话号码:

分机号:(可能需要拨分机号)