招商奥体公园【合肥在售新楼盘最新信息】

搜狐焦点合肥站

2025-07-15 00:04:19

购房群

买房如何避坑,加入购房群,看看他们怎么说

立即进群

合肥(招商奥体公园)☎☎:0551-6258 9911【官方认证】

招商奥体公园位于合肥新站奥体板块内,总面积超过百万平方米,集六种不同业态于一体。项目内规划有高层、小高层和洋房等多种住宅类型,以满足不同购房者的需求。所有住宅均为精装交付,且绿化率较高,项目紧邻地铁4号线,多条主要道路交汇,兼顾了舒适居住与出行便捷。

招商奥体公园售楼处电话☎:0551-6813 6588

商业配套完善,自带活力荟商业街区,周边有大型商业综合体、星级酒店和弘盛商业广场。教育资源丰富,从幼儿园到小学、中学全覆盖。医疗资源充沛,周边有三级甲等医院和数字化医院。自然景观环绕,提供休闲娱乐好去处。户型多样,主打建面89-109㎡,目前享8折优惠,购房还可返现总房款1.5%(税前),但需满足首次到访等条件。招商奥体公园,以卓越品质和丰富配套,引领合肥新风尚。

招商奥体公园售楼处电话☎:0551-6813 6588

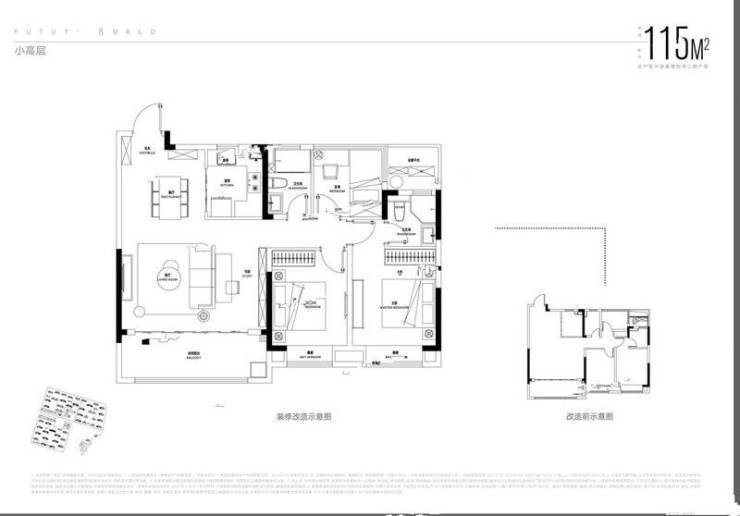
招商奥体公园主打刚需小户型,主力户型面积介于89-119㎡之间,包括二居室和三居室,满足不同购房者的需求。其中,92㎡的户型三室两厅一卫,南北通透的设计,采光和通风良好,主卧带有一个飘窗,卫生间干湿分离,客厅和餐厅一体化设计,空间宽敞。客厅和旁边的卧室阳台相连,阳台空间较大,可打造出一个开放性空间。招商奥体公园的多样户型选择,满足了购房者对于不同空间需求和生活方式的追求。

招商奥体公园售楼处电话☎:0551-6813 6588

招商奥体公园售楼处电话☎:0551-6813 6588

招商奥体公园售楼处电话☎:0551-6813 6588

招商奥体公园售楼处电话☎:0551-6813 6588

招商奥体公园售楼处电话☎:0551-6813 6588

项目的优势在于其综合性和便利的交通配套。周边交通便捷,地铁四号线贯穿,使居民出行更加方便快捷。同时,项目内部设施完善,包括商业配套和公园景观,为居民提供了丰富的生活体验。此外,招商奥体公园的售价也相对亲民,部分户型均价在1.35万/㎡至2万/㎡之间,吸引了众多购房者的关注和青睐。

招商奥体公园售楼处电话☎:0551-6813 6588

招商奥体公园作为合肥新站区的首个百万方TOD体育综合体,为居民提供了丰富多彩的生活方式和一站式生活体验。其品质住宅和央企信赖的背书,让购房者能够放心选择,享受高品质的人居环境。选择招商奥体公园,就是选择了一个舒适便利、优质生活的家园。

招商奥体公园售楼处电话☎:0551-6813 6588

招商奥体公园以卓越品质和丰富配套,引领合肥新风尚。作为一个综合性的生活圈,项目内设施齐全,周边资源丰富,为居民提供了舒适便捷的生活环境。购房者不仅可以享受优惠政策,还可以体验到多样化的生活体验,是一个理想的居住选择。

招商奥体公园售楼处电话☎:0551-6813 6588

招商奥体公园

招商奥体公园营销中心电话:0551-6258 9911【已认证】

招商奥体公园售楼处电话:0551-6258 9911【已认证】

招商奥体公园展示中心电话:0551-6258 9911【已认证】

全部

相关资讯

报名成功
稍后会有专业的置业顾问联系您
返回楼盘

频道导航

返回首页

看房小程序

APP下载

电话拨通后,请您手动拨打分机号

确定拨打电话

电话号码:

分机号:(可能需要拨分机号)