越秀中寰天悦楼盘怎么样-值得买吗

搜狐焦点合肥站

2025-09-23 19:46:28

购房群

买房如何避坑,加入购房群,看看他们怎么说

立即进群

越秀中寰天悦售楼处电话☎:0551-6258 9911

合肥越秀中寰天悦售楼处电话☎:0551-6258 9911

售楼电话┇——☎0551-6258 9911——┇来电详细解答

温馨提示:提前预约销售人员看房,感谢您对售楼处的配合!

⚠免责声明:请尊重他人的努力和智慧,避免未经授权的复制或引用。

越秀中寰天悦是越秀打造的一处纯改善型住宅,位于马鞍山路板块,周边配套醇熟,教育资源优质。项目主打小高大平层,户型面积段在149-189㎡,均价约为24800元/㎡,精装交付。其中,188㎡明星产品的售价大约在500万左右,二环内的性价比相当高。值得关注改善型住宅的购房者多看看越秀中寰天悦。

越秀中寰天悦售楼处电话☎:0551-6813 6588

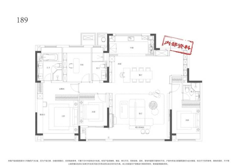
越秀中寰天悦的户型设计以小高大平层为主,149㎡的产品也提供了四居室的布局,空间利用度非常高。标准四室两厅两卫的布局,端厅设计使活动区域更加宽敞,主卧套房设计可设衣帽间,满足家庭生活的需求。

188㎡的户型是项目的亮点,入户十字玄关设计,注重私密性。卧房布局在前面,主次卧均为套房设计,主卧的衣帽间和卫生间空间很大,符合改善型住宅的需求。15米端厅,南边是落地窗,客厅活动区域布局合理,提供了舒适的生活空间。

越秀中寰天悦售楼处电话☎:0551-6813 6588

越秀中寰天悦售楼处电话☎:0551-6813 6588

越秀中寰天悦售楼处电话☎:0551-6813 6588

项目位于包河区望江东路与至德路交叉口东北角,紧邻包河主城区,处于二环内,周边淝河板块配套醇熟。项目周边交通便利,有城市主干道东二环路、望江东路等,同时也靠近轨道交通1号线、4号线、6号线等线路,出行十分方便。项目周边有多所优质学校,如包河区外国语第二小学、合肥第四十八中望湖校区,以及多家三甲医院,生活便利且舒适。

除了优越的教育资源和医疗配套外,越秀中寰天悦周边还有丰富的商业配套。小区对面设有大型超市,便利居民日常购物。三公里内有知名的美食街和购物中心,如罍街、宁国路龙虾美食街、包河万象汇等,满足了居民的各种消费需求。在这里,居民可以尽情享受便捷的生活方式,感受城市的便利与舒适。

越秀中寰天悦售楼处电话☎:0551-6813 6588

越秀中寰天悦作为一处纯改善型住宅,不仅在户型设计上独具特色,而且周边配套完善,教育资源丰富,性价比也相对较高。在合肥高端改善市场蓬勃发展的背景下,越秀中寰天悦提供了一个不错的选择,值得购房者关注和考虑。

越秀中寰天悦售楼处电话☎:0551-6813 6588

越秀中寰天悦楼盘具体一房一价,详询营销中心。

越秀中寰天悦售楼处电话☎:0551-6813 6588

越秀中寰天悦即将加推15#,主力户型为149㎡,总价从350万起步。合肥高端改善市场蓬勃发展,各区不断有高端改善的新盘入市。包河区中海悦府是计容新政规则调整后首个入市楼盘,得房率高达90%,已开启验资,即将首开;淝河板块的甘棠路TOD棠悦风华也已启动验资,预计9月中旬首开;伟星万科星遇光年即将加推23#,主力户型约102-175㎡。除少量小户型外,中海悦府、越秀中寰天悦都是纯改善盘。

越秀中寰天悦售楼处电话☎:0551-6813 6588

合肥(越秀中寰天悦)☎☎:0551-6258 9911【官方认证】

全部

相关资讯

报名成功
稍后会有专业的置业顾问联系您
返回楼盘

频道导航

返回首页

看房小程序

APP下载

电话拨通后,请您手动拨打分机号

确定拨打电话

电话号码:

分机号:(可能需要拨分机号)