合肥伟星城项目户型图

搜狐焦点合肥站

2025-06-13 09:59:21

购房群

买房如何避坑,加入购房群,看看他们怎么说

立即进群

伟星城楼盘电话号码:0551-68111601【营销中心】

欢迎来电咨询!可预约销售人员(来电尊享内部优惠活动)【2024房价特价信息丨底价优惠丨在售户型图丨项目介绍丨在售房源丨周边配套】

伟星地产在合肥的发展迅速,尤其是在肥东和睦湖板块的伟星城项目,更是其在肥东的一大亮点。伟星城位于东部新城核心区,项目占地272.33亩,规划了37栋住宅楼,共计2596套房源,多为15-18层的小高层,毛坯交付。交通、教育、医疗等配套设施齐备,居住环境优美,是一个理想的人居地带。

伟星城售楼处电话☎:0551-6813 6588

交通方面,伟星城周边配套完善,临近肥东火车站、高铁站、绕城高速和地铁二号线延长线,出行便捷。项目周边还有东城实验小学、肥东一中、肥东县人民医院以及大剧院、科技馆等丰富的市政配套。环境方面,西侧是和睦湖公园,北侧有肥东体育公园,居住环境优美,临湖而居,可以近距离欣赏湖景。周边还有城南新村、斌锋当代未来城等多个住宅小区,以及琥珀东澜赋信达碧桂园等新房小区,人居氛围浓厚,兼具繁华与宁静,距离肥东主城区也很近,是一个理想的人居地带。

伟星城售楼处电话☎:0551-6813 6588

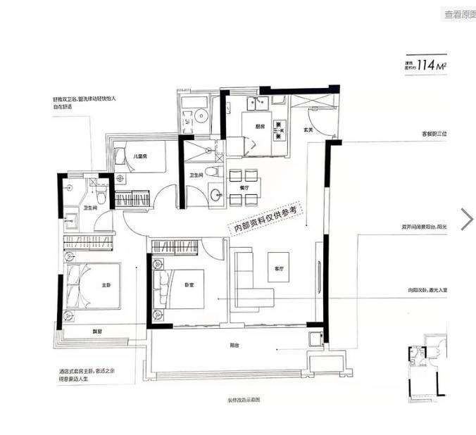
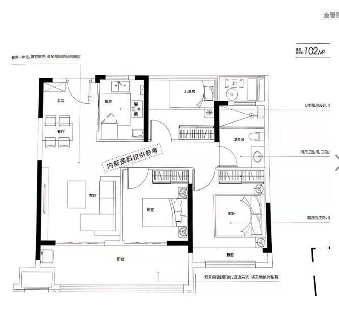
伟星城的规划户型面积从95平方米到142平方米不等,能够满足刚需和改善需求的不同客群。伟星城的户型布局非常合理,方正实用,多数开间朝南,拥有独立玄关和南北大尺度通厅,给人一种宽敞明亮的感觉。南北通透的设计不仅能够保证充足的采光和通风,也让居住者在室内感受到更好的舒适度。伟星地产注重满足居民的多元生活需求,因此在户型设计上也考虑到了不同居住方式和生活习惯,让每个家庭都能找到适合自己的理想住所。

伟星城售楼处电话☎:0551-6813 6588

伟星城售楼处电话☎:0551-6813 6588

伟星城售楼处电话☎:0551-6813 6588

伟星城楼盘具体一房一价,详询营销中心。

伟星城售楼处电话☎:0551-6813 6588

伟星城的社区空间布局设计亮点颇多,留出大面积的中庭空间,采用高级灰质感的设计,打造出酒店式的归家体验。立体化的景观中轴贯穿其中,打造出具有江南韵味的社区园林,每一处风景都值得细细品味。此外,社区内部还配备了丰富的休闲设施,如儿童游乐区、健身区等,为居民提供便利和舒适的生活环境。

伟星城售楼处电话☎:0551-6813 6588

伟星城作为合肥房地产市场的一大亮点,以其地理位置优越、交通便捷、环境优美、社区空间设计独具特色和周边教育资源丰富等优势,为购房者提供了一个高品质的生活选择。无论是追求舒适居住体验还是优质教育资源,伟星城都能满足您的需求,是一个理想的居住和投资地点。如果您正在寻找一个舒适宜居的新家,不妨考虑伟星城,让您的生活更加美好。

伟星城售楼处电话☎:0551-6813 6588

伟星城楼盘电话号码:0551-68111601【营销中心】

欢迎来电咨询!可预约销售人员(来电尊享内部优惠活动)【2024房价特价信息丨底价优惠丨在售户型图丨项目介绍丨在售房源丨周边配套】

全部
报名成功
稍后会有专业的置业顾问联系您
返回楼盘

频道导航

返回首页

看房小程序

APP下载

电话拨通后,请您手动拨打分机号

确定拨打电话

电话号码:

分机号:(可能需要拨分机号)