信达碧桂园项目户型图-优惠

搜狐焦点合肥站

2025-07-01 01:22:16

购房群

买房如何避坑,加入购房群,看看他们怎么说

立即进群

信达碧桂园楼盘电话号码:0551-68111601【营销中心】

欢迎来电咨询!可预约销售人员(来电尊享内部优惠活动)【2024房价特价信息丨底价优惠丨在售户型图丨项目介绍丨在售房源丨周边配套】

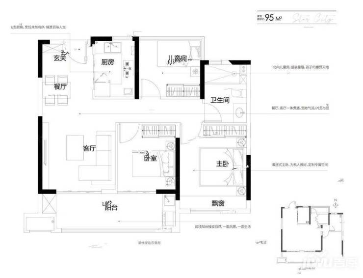
信达碧桂园项目位于肥东县酿泉路与日出路交口,规划住户2114户,整体绿化40%,容积率为2,是低密好社区。项目包括三室的95-105㎡和四室的118㎡户型,同时还会修建幼儿园和睦邻中心,小区物业费为2元/㎡/月,停车位达2359个。

项目毗邻地铁2号线延长线,便利业主的日常出行;拥有惠宜品购物中心等繁华商业配套,满足业主的基本日常生活需求;同时,周边还有东城实验*、安师大附属*等丰富的教育资源,为孩子提供一站式教育体系。此外,和睦湖公园、肥东体育公园等生态资源,让业主在闲暇时能够享受自然景观,放松身心。

三室两厅一卫的95㎡和两卫的105㎡和四室两厅两卫的118㎡的房型,让您尽享轻奢生活!都是方正、全明布局的户型,阳光四季充足、通风性好;空间利用率高,让“动静分区”,提高业主的居住舒适度;即使和老人同住也不影响各自生活!

信达碧桂园楼盘具体一房一价,详询营销中心。

在信达碧桂园项目中,醇熟的配套设施和舒适的生活环境为业主带来了高品质的居住体验。无论是规划合理的社区环境,还是优质的房型设计,亦或是便捷的生活配套,都让这个项目成为了一个值得期待和选择的理想之地。关于项目的更多信息和动态,建议有意购买的业主及时关注并预订。选择信达碧桂园,将为您的生活带来一份轻奢享受,值得期待!

信达碧桂园项目由信达地产和碧桂园集团联合开发建设,地处肥东和睦湖板块,拥有高品质的住宅产品和丰富的周边配套设施。项目的户型设计合理,让居民享受舒适的居住体验;周边交通、教育、医疗和商业设施完善,生活便利无忧。信达碧桂园致力于打造高品质生活,让每一位居民都能享受到舒适便利的居住环境。

信达碧桂园楼盘电话号码:0551-68111601【营销中心】

欢迎来电咨询!可预约销售人员(来电尊享内部优惠活动)【2024房价特价信息丨底价优惠丨在售户型图丨项目介绍丨在售房源丨周边配套】

全部
报名成功
稍后会有专业的置业顾问联系您
返回楼盘

频道导航

返回首页

看房小程序

APP下载

电话拨通后,请您手动拨打分机号

确定拨打电话

电话号码:

分机号:(可能需要拨分机号)