琥珀星樾湾楼盘电话号码:0551-68111601【营销中心】
欢迎来电咨询!可预约销售人员(来电尊享内部优惠活动)【2025房价特价信息丨底价优惠丨在售户型图丨项目介绍丨在售房源丨周边配套】
合肥包河区琥珀星樾湾 —— 地铁 1 号线沿线盘!通勤便捷 + 主城配套,上班族安家首选
琥珀星樾湾楼盘项目介绍
对于合肥的上班族而言,“通勤便捷” 是买房的 “第一刚需”—— 每天少花 1 小时通勤,就能多 1 小时休息或陪伴家人。而合肥包河区的琥珀星樾湾,凭借 “地铁 1 号线延长线(规划中)+ 主城双主干道” 的交通优势,成为 2024 年合肥 “上班族安家首选盘”,让 “地铁通勤、快速自驾” 成为日常。
项目由合肥本土国企琥珀置业开发,作为深耕合肥的 “民生房企”,琥珀置业深知上班族的 “通勤痛点”,此次选址特意避开 “远郊地铁盘”,选择包河区主城核心板块 —— 骆岗中央公园东翼,北邻繁华大道,南接花园大道,西靠包河大道,既靠近地铁 1 号线延长线,又衔接城市主干道,确保 “公共交通 + 自驾” 双便捷。
从项目基础信息来看,琥珀星樾湾总占地面积约 68 亩,总建筑面积约 12.5 万㎡,容积率 2.2.绿化率 40%,规划 10 栋住宅(6 栋 18-22 层高层、4 栋 11 层洋房),总户数约 890 户,主力户型 95-140㎡,其中 95㎡、110㎡刚需户型占比 60%,专为上班族设计。项目预计 2026 年 6 月交付,而地铁 1 号线延长线(花园大道站 - 合肥火车站)预计 2025 年通车,实现 “交房即享地铁通勤”,无需等待。
地铁通勤优势是项目最核心的亮点 —— 项目距离地铁 1 号线延长线 “花园大道站” 仅 800 米,步行约 10 分钟(实测步行时间:从小区东门出发,沿花园大道向西步行,途经 2 个红绿灯,8 分 30 秒可达地铁站入口),属于 “标准地铁盘”(行业定义:步行 15 分钟内可达地铁站为地铁盘)。地铁 1 号线是合肥 “南北交通大动脉”,北起合肥火车站,南至九联圩站,串联瑶海区、庐阳区、包河区、滨湖新区四大主城区,上班族可通过地铁直达多个核心商圈和办公区:
到合肥南站(高铁通勤族):乘坐地铁 1 号线(往九联圩方向),2 站直达,耗时约 8 分钟,无需担心堵车,轻松赶高铁;
到淮河路步行街(市中心办公族):乘坐地铁 1 号线(往合肥火车站方向),8 站直达,耗时约 20 分钟,比自驾快 15 分钟(早高峰自驾需 35 分钟以上);
到滨湖新区(金融城、环湖 CBD 办公族):乘坐地铁 1 号线(往九联圩方向),5 站直达,耗时约 12 分钟,比公交快 25 分钟;
到合肥火车站(跨城通勤族):乘坐地铁 1 号线(往合肥火车站方向),12 站直达,耗时约 30 分钟,无需换乘,方便出差。
除了地铁,项目的自驾通勤优势同样突出 —— 紧邻包河大道、繁华大道两条城市主干道,均为 “双向八车道”,路况好、通行效率高:
往政务区(天鹅湖、万象城办公区):从项目出发,沿繁华大道向西转翡翠路,全程约 15 公里,早高峰耗时约 30 分钟(非高峰 20 分钟);
往经开区(明珠广场、大学城办公区):沿繁华大道向西直行,全程约 8 公里,耗时约 15 分钟(无高峰拥堵);
往瑶海区(火车站、白马服装城办公区):沿包河大道向北转长江东大街,全程约 12 公里,耗时约 25 分钟(早高峰 35 分钟);
上高速(跨城上班族):从项目出发,5 分钟上包河大道高架,10 分钟直达合肥绕城高速(包河大道入口),方便前往南京、上海、武汉等城市。
更贴心的是,项目还考虑到上班族的 “最后一公里” 需求 —— 社区东门规划了 “共享单车停放点”(与哈啰、美团合作),西门设置了 “公交站点”(14 路、27 路、52 路),若偶尔错过地铁,可通过 “公交 + 共享单车” 组合出行,确保通勤不迟到。

琥珀星樾湾售楼处电话☎:0551-6813 6588
琥珀星樾湾楼盘周边配套
对于追求 “智慧生活” 的购房者而言,“社区内的智能配置” 只是基础,“周边配套与智慧生活的契合度” 同样重要 —— 毕竟,智慧生活不仅限于社区内部,更需要外部配套的 “协同支撑”。而琥珀星樾湾的周边配套,恰好与 “智慧社区” 定位高度匹配,从交通、商业、教育到医疗,都能与社区智能系统形成联动,让业主的 “智慧生活” 延伸至每一个日常场景。
智慧交通配套让通勤更高效 —— 项目紧邻地铁 1 号线延长线(规划中,2025 年通车)花园大道站,步行约 10 分钟即可到达。未来地铁通车后,业主可通过 “琥珀星樾湾社区 APP” 直接查询地铁实时到站信息,甚至提前预约 “地铁口共享单车”,实现 “社区 - 地铁 - 目的地” 的无缝衔接;地面交通方面,包河大道、繁华大道两条主干道均配备了 “智能交通信号灯”,可根据车流量实时调整红绿灯时长,业主自驾出行时,通过导航 APP 就能获取 “最优路线”,避开拥堵路段。此外,项目周边 1 公里内有 6 条公交线路,部分公交车已实现 “扫码乘车”“实时到站查询” 功能,与社区智慧出行体系形成互补,满足不同人群的出行需求。
智慧商业配套满足品质消费 —— 项目 3 公里范围内,悦方 ID MALL、百大心悦城、加侨国际广场三大商场均已实现 “智慧化运营”。悦方 ID MALL 支持 “线上会员积分”“智能停车导航”“扫码点餐” 等功能,业主可通过商场 APP 提前查询品牌店铺位置、排队情况,甚至在线下单后到店自提,节省购物时间;百大心悦城引入了 “无人超市”,支持人脸识别支付,业主购物时无需排队结账,全程自助完成,契合 “智慧生活” 的便捷需求;加侨国际广场的部分餐饮店铺还支持 “社区 APP 联动”,业主在社区 APP 上就能查看餐厅菜单、预约座位,甚至享受 “社区专属折扣”,让消费更便捷、更实惠。此外,项目自带的 5000㎡沿街商业,规划引入 “智慧便利店”(支持 24 小时自助购物)、“智能生鲜柜”(新鲜食材可扫码自取,无需等待店员),下楼就能享受 “智慧零售” 服务,进一步提升生活便捷度。
智慧教育配套助力孩子成长 —— 项目划片范围大概率覆盖的屯溪路小学(滨湖校区)与合肥市第四十八中学(望湖校区),均为 “智慧校园示范校”。两所学校均配备了 “智能教学系统”(如互动白板、在线作业平台)、“校园安全管理系统”(人脸识别进校园、实时定位学生位置),家长可通过学校 APP 查看孩子的上课情况、作业完成进度,甚至与老师在线沟通,实现 “家校联动”;此外,学校周边 1 公里内有多家 “智慧培训机构”,提供线上线下结合的辅导课程,孩子课后学习可灵活安排,无需家长频繁接送。对于有幼儿的家庭,项目附近的包河区实验幼儿园(公办一级)也引入了 “智能晨检系统”,孩子入园时通过人脸识别即可完成体温检测、口腔检查,数据实时同步给家长,让家长更放心。
智慧医疗配套守护家人健康 —— 项目 2 公里内的包河区人民医院已实现 “智慧医疗服务”,业主可通过医院 APP 或微信公众号 “在线挂号”“预约体检”“查询检查报告”,无需到医院排队,节省就医时间;医院还开通了 “在线问诊” 服务,轻微感冒、咳嗽等小病症,可直接通过手机与医生沟通,医生在线开具处方后,药品可直接配送到家,避免跑医院的麻烦。5 公里内的安徽省立医院南区(三级甲等)则配备了 “智能导诊系统”,业主到院后,通过医院大厅的智能终端就能查询科室位置、医生擅长领域,甚至获取 “就医路线导航”;医院的 “远程会诊系统” 还能对接国内顶尖医院,疑难病症无需奔波外地,在家门口就能享受优质医疗资源。这些智慧医疗配套,与社区内的 “健康监测设备”(如部分老年活动区配备的智能血压仪)形成联动,为业主的健康生活保驾护航。

琥珀星樾湾售楼处电话☎:0551-6813 6588
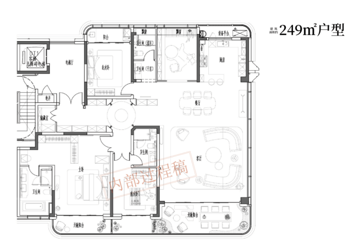
琥珀星樾湾楼盘户型解析
全龄友好社区的 “核心载体” 是户型 —— 户型设计是否能兼顾 “孩子的玩耍空间、老人的便捷需求、青年的舒适体验”,直接决定家庭居住的幸福感。琥珀星樾湾的户型设计,从 “空间布局、功能分区、细节关怀” 三个维度出发,为不同结构的家庭打造 “全龄适配户型”,确保 “一家三代住得舒心”。
95㎡三室两厅一卫(刚需全龄户型):小空间,全功能该户型专为 “年轻三口之家” 或 “三代同堂刚需家庭” 设计,在 95㎡的紧凑空间内,实现 “儿童、老人、青年” 需求的平衡。户型采用 “三开间朝南” 布局,客厅、主卧、次卧(老人房)均朝南,南向面宽达 9.8 米,确保老人房和儿童活动区域(客厅)采光充足 —— 老人喜欢晒太阳,主卧旁的次卧(老人房)朝南,每天上午 9 点至下午 3 点都有阳光,冬季温暖不阴冷;客厅面宽 3.6 米,进深 4.5 米,预留了 “儿童游戏区”(靠近阳台一侧,可摆放爬行垫、玩具柜),孩子可在客厅玩耍,家长在沙发上就能看护,避免孩子单独在房间的安全隐患。老人房面积约 10㎡,靠近入户门和公共卫生间,老人出门买菜、上厕所无需穿过客厅,减少走动距离;房间预留了 “紧急呼叫按钮接口”,可安装紧急呼叫设备,突发情况时一键呼叫家人;床头插座高度降低至 0.7 米,方便老人插拔电器(如电热毯、手机充电)。主卧面积约 12㎡,带 270° 飘窗,飘窗台面铺设防滑大理石,可作为 “青年休闲区”,睡前看书、刷剧;主卧与儿童游戏区(客厅)相邻,方便家长随时关注孩子动态。厨房采用 U 型设计,操作台面长达 2.8 米,预留了 “老人辅助操作台”(高度 0.8 米,比普通台面低 0.1 米,方便老人切菜);厨房连接生活阳台,可放置洗衣机和老人的代步车,保持室内整洁。公共卫生间做到 “干湿分离”,安装了 “老人扶手”(马桶旁和淋浴区各 1 个),地面铺设防滑瓷砖,避免老人、孩子滑倒;卫生间还预留了 “儿童洗手台”(可后期加装折叠式儿童洗手台,高度 0.6 米),方便孩子自主洗漱。
125㎡四室两厅两卫(改善全龄户型):大空间,全关怀该户型专为 “二胎家庭” 或 “三代同堂改善家庭” 设计,125㎡的四室空间,为每个家庭成员提供 “专属区域”,兼顾 “私密性” 与 “互动性”。户型采用 “四开间朝南 + 南北通透” 布局,南向面宽达 12.2 米,客厅、主卧、两个次卧(儿童房、老人房)均朝南,采光与通风效果极佳。客厅面宽 4.2 米,进深 6.8 米,餐客一体空间总面积约 28㎡,划分 “家庭互动区”(摆放沙发、茶几,全家看电视、聊天)和 “儿童游乐区”(靠近阳台,设置收纳式玩具柜,避免玩具散落),既满足全家互动,又不影响孩子玩耍。老人房面积约 11㎡,位于入户门旁,远离儿童房和主卧,减少噪音干扰;房间带独立阳台(宽度 1.2 米),老人可在阳台晾晒衣物、种植绿植;房间预留了 “轮椅通道”(门洞宽度 1 米,方便后期改造),床边插座高度 0.7 米,满足老人生活需求。两个儿童房面积分别约 10㎡、9㎡,靠近主卧,方便家长照顾 —— 大儿童房(10㎡)可作为哥哥 / 姐姐的房间,摆放 1.5 米床 + 书桌 + 衣柜,培养独立学习习惯;小儿童房(9㎡)可作为弟弟 / 妹妹的房间,摆放 1.2 米床 + 玩具架,后期可改造成书房;两个儿童房间隔仅 2 米,孩子可互相串门玩耍,避免孤独。主卧采用 “套房设计”,面积约 18㎡,配备独立卫生间和步入式衣帽间,满足青年夫妻的 “私密性” 需求;主卧带 3.2 米宽飘窗,可作为 “夫妻休闲区”,周末一起看书、聊天,享受二人世界。厨房采用 L 型设计,操作台面长达 3.2 米,预留了 “双开门冰箱位” 和 “嵌入式烤箱位”,适合喜欢烹饪的家庭;厨房与餐厅相邻,老人帮忙做饭时,孩子在餐厅等待,全家互动更频繁。公共卫生间面积约 6㎡,做到 “干湿分离”,安装了 “儿童马桶圈”(可拆卸)和 “老人扶手”,满足全龄使用需求;卫生间还预留了 “洗衣机位”,方便洗衣晾晒。
140㎡四室两厅两卫(终极全龄户型):宽境空间,全家乐享该户型是琥珀星樾湾的 “全龄顶配户型”,专为 “三代同堂终极改善家庭” 设计,140㎡的宽境空间,搭配洋房低密属性(得房率 85%),为每个家庭成员提供 “舒适且独立” 的生活空间。户型采用 “五开间朝南” 布局,南向面宽达 14.5 米,客厅、主卧、两个儿童房、老人房均朝南,每个房间都有充足阳光。客厅面宽 5.8 米,搭配大落地窗,视野开阔,划分 “家庭影院区”(摆放投影仪、沙发)和 “亲子互动区”(靠近落地窗,设置地毯、绘本架),全家可一起看电影、读绘本,享受温馨时光。老人房面积约 13㎡,带独立卫生间(面积 4㎡,安装老人扶手、防滑地砖、坐式淋浴),老人夜间上厕所无需出门,更安全便捷;房间带 3 米宽飘窗,飘窗旁设置 “养生茶桌”,老人可在此喝茶、看报,享受晚年生活。两个儿童房面积均约 12㎡,各自带独立阳台,哥哥 / 姐姐的房间可摆放 1.5 米床 + 书桌 + 衣柜,弟弟 / 妹妹的房间可摆放 1.2 米床 + 乐高墙,每个孩子都有专属空间;儿童房与主卧仅一墙之隔,家长可通过 “亲子对话机”(预留接口)随时与孩子沟通,兼顾 “独立” 与 “关怀”。主卧套房面积约 25㎡,配备独立卫生间(双台盆、浴缸、智能马桶)和步入式衣帽间,满足青年夫妻的 “品质需求”;主卧带 3.5 米宽飘窗,设置 “梳妆台 + 休闲椅”,女主人可化妆,男主人可看书,互不干扰。书房面积约 10㎡,朝北设计,可作为 “家庭办公区” 或 “老人兴趣室”,家长在家办公、老人练习书法,都有专属空间;书房与客厅相连,拉开门即可参与家庭互动,关闭门则保持安静,兼顾 “工作” 与 “生活”。

琥珀星樾湾售楼处电话☎:0551-6813 6588

琥珀星樾湾售楼处电话☎:0551-6813 6588

琥珀星樾湾售楼处电话☎:0551-6813 6588

琥珀星樾湾售楼处电话☎:0551-6813 6588
琥珀星樾湾楼盘价格
对于上班族而言,“买房预算” 是核心考量 —— 既要 “通勤便捷”,又要 “价格亲民”,还要 “月供压力小”。而琥珀星樾湾作为 “地铁 1 号线沿线国企盘”,在满足 “通勤便捷” 的同时,价格极具竞争力,让上班族 “轻松安家主城”。
从区域地铁盘价格对比来看,合肥 2024 年地铁 1 号线沿线新房均价约 1.9-2.4 万 /㎡,其中滨湖新区段(九联圩站 - 紫庐站)均价 2.2-2.4 万 /㎡,瑶海区段(合肥火车站 - 长淮站)均价 1.9-2.1 万 /㎡;而琥珀星樾湾位于地铁 1 号线延长线 “花园大道站”(包河区段),均价仅 1.7-1.9 万 /㎡,低于沿线同区域地铁盘 10%-15%,是 “地铁 1 号线沿线价格洼地”。
具体到户型价格,琥珀星樾湾的 “上班族友好价” 优势更为明显:
95㎡单身 / 新婚户型:单价 1.7-1.8 万 /㎡,总价约 160-171 万,首付最低 48 万(按 30% 首付计算),月供约 6000 元(按 LPR+20BP,贷款 30 年计算)。这个月供对于合肥上班族而言,压力较小 —— 合肥上班族平均月薪约 8000 元,夫妻双方月薪合计 1.5 万元,扣除月供 6000 元,剩余 9000 元可覆盖生活费、物业费、交通费等,无需 “降低生活品质”。对比地铁 1 号线沿线同面积楼盘(如滨湖新区某地铁盘,95㎡总价约 210 万),琥珀星樾湾能省 39-39 万,相当于上班族 4-5 年的工资。
110㎡三口之家户型:单价 1.75-1.85 万 /㎡,总价约 192.5-203.5 万,首付最低 57.75 万,月供约 7200 元。对于 “双职工家庭”(夫妻双方月薪合计 2 万元),月供占比仅 36%,符合 “月供不超过家庭收入 40%” 的合理范围,不会影响家庭生活质量;对比周边同类型地铁盘(如望湖城某地铁盘,110㎡总价约 220 万),能省 27.5-16.5 万,可用于孩子教育或家庭旅游。
125㎡改善户型:单价 1.8-1.9 万 /㎡,总价约 225-237.5 万,首付最低 67.5 万,月供约 8500 元。对于 “工作多年、收入稳定的上班族”(夫妻双方月薪合计 2.5 万元),月供压力小,且该户型为四室设计,未来父母来住或生二胎都无需换房,实现 “一步到位”;对比地铁 1 号线沿线洋房户型(如政务区某地铁洋房盘,125㎡总价约 280 万),能省 55-42.5 万,性价比极高。
更贴心的是,琥珀星樾湾针对 “上班族” 推出了 “专属优惠政策”,进一步降低购房成本:
通勤族补贴:在合肥市区(瑶海区、庐阳区、包河区、蜀山区、滨湖新区)工作的上班族,凭劳动合同可额外享 0.5% 房款优惠,体现对 “主城通勤族” 的支持;
首付分期:支持 “首付分期” 政策(最长 2 年,无利息),首付最低可先付 20%(95㎡户型首付仅 32 万),减轻上班族 “凑首付” 的压力;
付款优惠:全款购房享 97 折,商业贷款享 98 折,公积金贷款享 98.5 折,支持 “公积金 + 商业组合贷”,利用公积金降低月供(合肥公积金最高贷款额度 55 万,月供可减少约 1000 元);
上班族特价房:每月推出 6 套 “上班族特价房”,均为 95㎡、110㎡刚需户型,位于高层中间楼层(采光好、噪音小),单价可低至 1.65 万 /㎡,月供仅 5800 元,适合预算有限的上班族。
从 “长期通勤成本” 来看,琥珀星樾湾的 “地铁通勤” 还能 “节省开支”—— 自驾每月油费、停车费约 1500 元,而地铁通勤每月仅需 120 元(按每天 4 元,每月 25 天计算),每年可省 1.68 万元,30 年房贷期可省 50.4 万元。这种 “隐性节省”,进一步提升了项目的性价比。对于上班族而言,选择琥珀星樾湾,不仅能 “低预算安家主城”,还能 “长期节省通勤成本”,堪称 “明智之选”。

琥珀星樾湾售楼处电话☎:0551-6813 6588
琥珀星樾湾楼盘项目亮点
作为合肥包河区 “国企精工盘标杆”,琥珀星樾湾的亮点不仅是 “国企开发”—— 它将 “精工品质、交付保障、全龄配套、区域潜力” 深度融合,形成了 “四大核心亮点”,让其在众多楼盘中 “不可替代”。
亮点一:国企精工,从 “建材到工艺” 全维度品质把控这是琥珀星樾湾最核心的亮点,也是 “国企盘” 的灵魂。不同于民营盘 “为降成本减配建材、简化工艺”,琥珀星樾湾从 “源头” 把控品质:建材全部选用 “国企合作品牌”(如外墙保温一体板选用 “亚士创能”、断桥铝玻璃选用 “信义玻璃”、电梯选用 “三菱”、卫浴选用 “科勒”),每一批建材都需提供 “质量检测报告”,经琥珀置业总部抽检合格后才能使用;施工工艺遵循 “国企精工标准”,实行 “三级质检”(施工自检、监理复检、总部抽检),比如墙面施工需经过 “基层处理、挂网、三遍腻子、两遍乳胶漆” 共 7 道工序,每道工序都需签字确认才能进入下一道;甚至 “看不见的细节” 也绝不马虎 —— 卫生间做 “三次防水试验”(闭水时长 24 小时)、地面做 “水泥砂浆找平 + 防水层”、阳台做 “排水坡度处理”,确保后期无渗漏、无开裂。这种 “全维度品质把控”,让业主无需担心 “交房即维权”,住得更安心。
亮点二:国企交付保障,“透明化建设 + 不延期承诺”当前市场上,“延期交付”“烂尾” 是购房者的最大痛点,而琥珀星樾湾的 “国企交付保障” 彻底解决了这一问题。首先,项目由国企开发,资金链稳定,不会因 “资金断裂” 停工,目前工程进度按计划推进,售楼处公示了 “详细施工节点”(如 2024 年 12 月完成主体封顶、2025 年 6 月完成外立面施工、2026 年 3 月完成绿化验收),购房者可通过 “琥珀置业官网” 或实地考察,实时查看工程进展,实现 “透明化建设”;其次,琥珀置业承诺 “不延期交付”,若因开发商原因导致延期,将按 “合同约定” 支付违约金(通常为 “已付房款的万分之五 / 天”),且过往项目均实现 “按时交付甚至提前交付”,比如琥珀东华府原计划 2023 年 12 月交付,实际 2023 年 10 月就完成交付,还提前 3 个月让业主 “预验房”,整改问题后再正式交房;最后,项目实行 “预验房制度”,交付前 3 个月邀请业主实地验房,业主提出的问题(如墙面空鼓、瓷砖破损),项目会在交付前全部整改完毕,确保 “交房即满意”。
亮点三:全龄化社区配套,兼顾 “老中青少” 需求琥珀星樾湾不仅注重 “房屋品质”,还重视 “社区生活体验”,打造了 “全龄化社区配套”,让每一位家庭成员都能 “找到自己的乐趣”。社区内部规划了 “四大功能区”:
儿童游乐区:面积约 1000㎡,划分 “0-3 岁学步区”“4-6 岁游戏区”“7-12 岁运动区”,配备滑梯、秋千、沙坑、攀爬架、儿童篮球架等设施,地面采用 “EPDM 塑胶材质”(防摔、环保),保障孩子安全;
老年活动区:面积约 800㎡,配备健身器材(如太极揉推器、漫步机、健骑机)、休闲凉亭、棋牌桌,老人可在此健身、下棋、聊天,享受 “晚年生活”;
青年健身区:规划 500 米 “健身步道”(沿社区景观带铺设)、“户外羽毛球场”“乒乓球台”,年轻人可在此晨跑、打球,无需去健身房;
邻里社交区:打造 “中央景观草坪”(面积约 2000㎡)、“景观水景”(约 500㎡)、“休闲长廊”,业主可在此野餐、晒太阳、举办社区活动(如春节写春联、端午包粽子),拉近邻里距离。
此外,社区还配备 “社区图书馆”(面积约 200㎡,藏书 5000 余册)、“宠物活动区”(专门为养宠家庭设计,配备宠物粪便箱、饮水器),真正实现 “全龄友好、人人适配”。
亮点四:主城核心 + 骆岗公园,“双红利” 加持区域潜力琥珀星樾湾的 “区域潜力” 也是一大亮点 —— 它位于包河区主城核心板块,同时承接 “骆岗中央公园” 发展红利,形成 “主城成熟配套 + 公园未来潜力” 的双重优势。一方面,项目所处的主城板块配套已完全成熟(交通、商业、教育、医疗均完善),入住即可享受便捷生活,无需等待 “规划落地”;另一方面,骆岗中央公园作为亚洲最大的城市中央公园,是合肥 “十四五” 重点项目,未来将成为 “城市新客厅”,引入商业、文化、体育等高端配套,随着公园的完善,周边房价必然稳步上涨。琥珀星樾湾距离骆岗公园仅 1.5 公里,是 “公园红利” 的直接受益者,未来增值空间巨大。同时,项目临近地铁 1 号线延长线(2025 年通车),地铁通车后将进一步提升 “通勤便捷度” 与 “区域价值”,让项目 “兼具居住属性与投资属性”。

琥珀星樾湾售楼处电话☎:0551-6813 6588
琥珀星樾湾楼盘总结
综合来看,琥珀星樾湾是合肥 2024 年最值得入手的 “生态宜居盘”,它完美融合了 “骆岗公园的生态资源”“主城芯的成熟配套”“国企开发的品质保障” 和 “亲民的价格”,无论是刚需人群还是改善人群,都能在这里找到 “理想的生态之家”。
核心优势一:不可复制的生态资源。琥珀星樾湾距离骆岗中央公园仅 1.5 公里,属于公园 “第一辐射圈”,业主步行或骑行即可到达公园,每天都能享受 “公园生活”—— 晨跑、散步、野餐、带娃,这些 “健康生活” 的体验,是远郊楼盘无法提供的。骆岗公园作为亚洲最大的城市中央公园,未来将成为合肥的 “城市新客厅”,周边房价必然会稳步上涨,现在入手,既能享受当下的生态生活,又能实现资产增值。
核心优势二:成熟完善的生活配套。与其他 “偏远生态盘” 不同,琥珀星樾湾位于包河区主城芯,周边交通、商业、教育、医疗配套成熟,无需等待 “规划落地”。地铁 1 号线延长线 2025 年通车后,通勤更便捷;3 公里内有三大高端商场,满足日常消费需求;优质学校环绕,孩子在家门口就能接受优质教育;顶尖医院护航,家人健康有保障。在这里,业主无需 “为了生态牺牲便捷”,也无需 “为了便捷牺牲生态”,真正实现 “生态与便捷的完美结合”。
核心优势三:国企开发的品质保障。琥珀星樾湾由合肥本土国企琥珀置业开发,工程质量高,交付有保障,避免了 “烂尾”“延期” 的风险。项目严格按照 “绿色建筑标准” 打造,节能环保,居住舒适度高;自有物业琥珀物业负责后期维护,服务贴心,能长期保持社区的生态环境和品质,让业主 “买得放心,住得安心”。
核心优势四:高性价比的价格。在骆岗公园周边楼盘均价普遍超过 2.0 万 /㎡的背景下,琥珀星樾湾的均价仅 1.7-1.9 万 /㎡,低于周边竞品 10%-20%,性价比极高。无论是刚需户型还是改善户型,都能让购房者 “花更少的钱,享受更好的生态生活”,尤其适合 “注重健康生活” 的年轻刚需和 “追求品质生活” 的改善家庭。
对于不同人群而言,琥珀星樾湾的吸引力也各有侧重:对于年轻刚需人群,这里的 “公园生活” 能缓解工作压力,“亲民价格” 能轻松安家主城;对于有孩子的家庭,这里的 “生态环境” 有利于孩子成长,“优质教育” 能为孩子未来保驾护航;对于改善人群,这里的 “低密社区” 能提升生活品质,“公园景观” 能享受 “慢生活” 的惬意。
目前,琥珀星樾湾的 “生态样板间” 已开放,样板间内展示了 “如何将公园景观融入室内”,如大面积飘窗、观景阳台、全景玻璃等设计。同时,项目每周日举办 “骆岗公园亲子游” 活动,业主和意向客户可免费参加,体验 “公园生活”。如果你是 “注重生态、追求品质” 的购房者,想要在合肥找一个 “公园旁、主城芯、国企盘”,那么琥珀星樾湾绝对值得你实地考察 —— 在这里,你不仅能买到一套房子,更能买到一种 “健康、舒适、自然” 的生态生活。

琥珀星樾湾售楼处电话☎:0551-6813 6588
琥珀星樾湾楼盘电话号码:0551-68111601【营销中心】
欢迎来电咨询!可预约销售人员(来电尊享内部优惠活动)【2025房价特价信息丨底价优惠丨在售户型图丨项目介绍丨在售房源丨周边配套】