瑶海区伟星长城御澜道项目【选择与努力的平衡】

搜狐焦点合肥站

2025-08-27 16:16:04

购房群

买房如何避坑,加入购房群,看看他们怎么说

立即进群

伟星长城御澜道楼盘电话号码:0551-6258 9911【营销中心】

欢迎来电咨询!可预约销售人员(来电尊享内部优惠活动)【2024房价特价信息丨底价优惠丨在售户型图丨项目介绍丨在售房源丨周边配套】

110-143m²的户型设计主打的是刚改+改善的风格。以122m²三室两厅两卫户型为例,动静分区明显,厨房、客厅、餐厅在西边,卫生间和卧室集中在东边,每个卧室都配有飘窗。然而,客厅区域的厨房侧向通风,南北通风、采光效果相对较差。

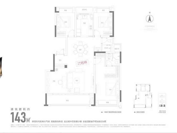
另外,143m²三室两厅两卫户型中,主卧配有衣帽间,同时有一个书房可以根据自己的需求改造。然而,三个卧室都朝北,导致采光不太理想。因此,在选择户型时,需要根据个人喜好和需求进行权衡考虑。

伟星长城御澜道售楼处电话☎:0551-6813 6588

伟星长城御澜道售楼处电话☎:0551-6813 6588

伟星长城御澜道售楼处电话☎:0551-6813 6588

从交通方面来看,御澜道距离2号线漕冲站直线约600米,距离4号线站塘站直线约900米。同时临泉东路、北二环、长江中路串联合肥东西主城,铜陵路高架、东二环、郎溪路高架接连合肥南北动脉交通网。商业配套方面,对面就是瑶海万达,周边有长江180、瑶海天街、东城广场、万象汇(在建),商业资源丰富。

在教育方面,御澜道周边拥有众多优质学府,行知本部(初中)距离项目直线约600米,近6年来综合排名位列合肥初中前列。此外,还有合肥众望中学、和平小学教育集团郎溪路小学、合肥市行知小学等优质教育资源。项目周边生活配套齐全,居民生活便利舒适。

伟星长城御澜道售楼处电话☎:0551-6813 6588

伟星长城御澜道楼盘具体一房一价,详询营销中心。

伟星长城御澜道售楼处电话☎:0551-6813 6588

伟星长城御澜道项目拟建2栋24层高层和1栋11层小高层,总共仅有三栋楼,因为地块较小,楼栋纵向摆放,南北无遮挡。在建筑外立面设计上,项目与国际一线设计单位·拓观设计合作,采用了非对称顶檐设计、南北公建化立面和大面积玻璃幕墙,营造出现代时尚的建筑风格。这种设计不仅增加了建筑的美感,也为居民提供了更加宽敞明亮的居住空间。

除了建筑外观的设计精良,伟星长城御澜道项目的品质也体现在细节之处。地下车库选材精良,入户大堂设计华丽,让居民在回家的那一刻就能感受到尊贵和舒适。在配套设施方面,项目周边商业设施齐全,生活便利。而且,对面就是万达商场,购物、餐饮、娱乐等各种需求都可以得到满足。行知本部的设立更是为家庭提供了优质的教育资源,让孩子们能够在优越的环境中学习成长。

伟星长城御澜道售楼处电话☎:0551-6813 6588

伟星长城御澜道项目目前均价1.7万元/m²,面积段在110-143m²,位于瑶海老城,配套齐全,对面就是万达,出门就是行知本部。想要在瑶海老城置业的,可以考虑本项目。

伟星长城御澜道售楼处电话☎:0551-6813 6588

伟星长城御澜道项目不仅地理位置优越,周边配套完善,更是在设计上精益求精,打造出一个现代化、高品质的居住社区。无论是对于置业者来说,还是投资者,都是一个不容错过的好选择。如果您想在瑶海老城拥有一个舒适宜居的家,伟星长城御澜道绝对是一个不错的选择。赶快行动起来,不要错过这个机会!

伟星长城御澜道售楼处电话☎:0551-6813 6588

伟星长城御澜道楼盘电话号码:0551-6258 9911【营销中心】

欢迎来电咨询!可预约销售人员(来电尊享内部优惠活动)【2024房价特价信息丨底价优惠丨在售户型图丨项目介绍丨在售房源丨周边配套】

全部

相关资讯

报名成功
稍后会有专业的置业顾问联系您
返回楼盘

频道导航

返回首页

看房小程序

APP下载

电话拨通后,请您手动拨打分机号

确定拨打电话

电话号码:

分机号:(可能需要拨分机号)