和睦湖伟星城楼盘怎么样-学区

搜狐焦点合肥站

2025-05-29 11:28:59

购房群

买房如何避坑,加入购房群,看看他们怎么说

立即进群

伟星城楼盘电话号码:0551-68111601【营销中心】

欢迎来电咨询!可预约销售人员(来电尊享内部优惠活动)【2024房价特价信息丨底价优惠丨在售户型图丨项目介绍丨在售房源丨周边配套】

伟星地产在合肥的发展蒸蒸日上,特别是在肥东和睦湖板块的伟星城项目,更是其在肥东的一大亮点。伟星城位于东部新城核心区,紧邻山水路与闻水路交口西北侧,地理位置优越,周边自然资源丰富。项目占地272.33亩,其中居住用地199.755亩,商业用地72.578亩,规划了37栋住宅楼,共计2596套房源,多为15-18层的小高层,毛坯交付。此外,项目还规划了一个约14万平方米的城市级商业综合体,涵盖多种业态,满足居民的日常生活需求。

伟星城售楼处电话☎:0551-6813 6588

伟星城周边交通、教育和医疗等配套设施齐全,临近肥东火车站、高铁站、绕城高速和地铁二号线延长线,出行便捷。项目周边还有东城实验小学、肥东一中、肥东县人民医院以及大剧院、科技馆等丰富的市政配套。环境方面,西侧是和睦湖公园,北侧有肥东体育公园,居住环境优美,临湖而居,可以近距离欣赏湖景。周边还有多个住宅小区和新房小区,人居氛围浓厚,兼具繁华与宁静,距离肥东主城区也很近,是一个理想的人居地带。

伟星城售楼处电话☎:0551-6813 6588

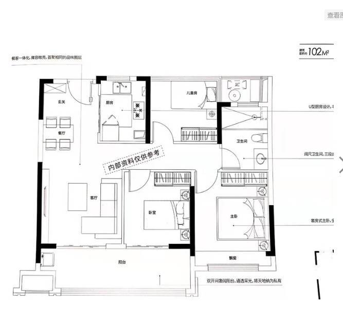
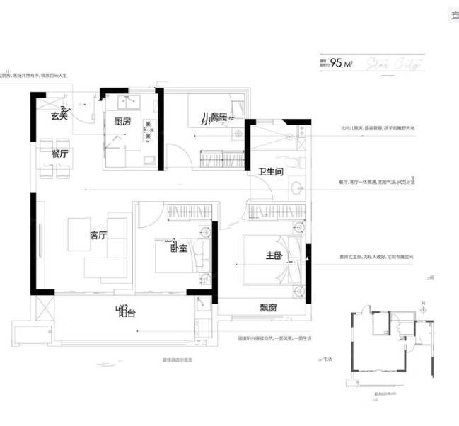
伟星城的规划户型面积从95平方米到142平方米不等,能够满足刚需和改善需求的不同客群。伟星城的户型布局非常合理,方正实用,多数开间朝南,拥有独立玄关和南北大尺度通厅,给人一种宽敞明亮的感觉。南北通透的设计不仅能够保证充足的采光和通风,也让居住者在室内感受到更好的舒适度。伟星地产注重满足居民的多元生活需求,因此在户型设计上也考虑到了不同居住方式和生活习惯,让每个家庭都能找到适合自己的理想住所。

伟星城售楼处电话☎:0551-6813 6588

伟星城售楼处电话☎:0551-6813 6588

伟星城售楼处电话☎:0551-6813 6588

伟星城楼盘具体一房一价,详询营销中心。

伟星城售楼处电话☎:0551-6813 6588

伟星城的高品质不仅体现在硬件设施上,更在于其对细节的精雕细琢。从社区入口的精心设计到每栋楼的布局规划,从园林景观的打造到内部设施的完善,每一个环节都体现了伟星地产对品质的追求。项目周边的教育资源也非常丰富,是一个不可多得的优质选择。

伟星城售楼处电话☎:0551-6813 6588

伟星城不仅在住宅品质和社区氛围上精益求精,更在对细节的精雕细琢上下足功夫。无论是家庭居住还是投资置业,伟星城都是一个值得考虑的高品质选择。如果您对该项目感兴趣,不妨联系营销中心了解更详细的信息和价格详情。

伟星城售楼处电话☎:0551-6813 6588

伟星城楼盘电话号码:0551-68111601【营销中心】

欢迎来电咨询!可预约销售人员(来电尊享内部优惠活动)【2024房价特价信息丨底价优惠丨在售户型图丨项目介绍丨在售房源丨周边配套】

全部
报名成功
稍后会有专业的置业顾问联系您
返回楼盘

频道导航

返回首页

看房小程序

APP下载

电话拨通后,请您手动拨打分机号

确定拨打电话

电话号码:

分机号:(可能需要拨分机号)